Sanierung Bad 12qm - Ideen zur T-Lösung - ausreichend Platz?

4,80 Stern(e) 5 Votes
Zuletzt aktualisiert 16.10.2025
Sie befinden sich auf der Seite 2 der Diskussion zum Thema: Sanierung Bad 12qm - Ideen zur T-Lösung - ausreichend Platz?
>> Zum 1. Beitrag <<

P

Pacman0411

Was ist denn unterhalb dieses Raumes? Entwässerung muss ja auch irgendwo hin.

Es ist nicht so zielführend für jede Änderung einen eigenen Thread zu machen, wo es jeweils nur Raumausschnitte gibt. Ein Haus ist schließlich etwas, wo alles zusammenwirkt.
Unterhalb diesen Raumes ist ein weiteres Badezimmer (Gäste Badezimmer), allerdings nur 2,73m x 3,09m
 
P

Pacman0411

Unterhalb diesen Raumes ist ein weiteres Badezimmer (Gäste Badezimmer), allerdings nur 2,73m x 3,09m
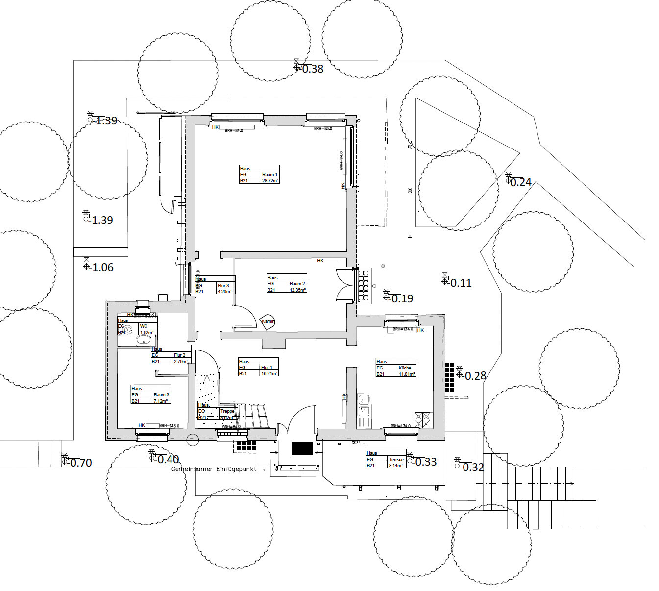
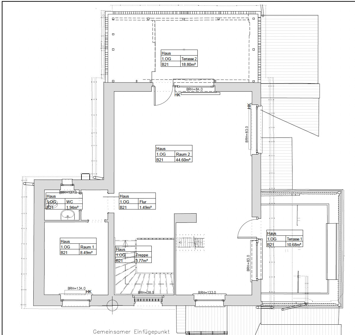
Anbei noch der Grundriss vom EG - das Badezimmer im OG befindet sich von der Lage "unten links", um 90 Grad gedreht

das neue Badezimmer im OG wird aus dem WC, Raum 1 und dem Flur zusammengelegt (2, Bild)
Grundriss eines Hauses mit Innenraumaufteilung, Türen, Fenstern und umliegenden Bäumen.

Grundriss eines Hauses mit mehreren Räumen, Treppen und Terrassen.
 
H

hanghaus2023

Ich würde das WC nicht abbrechen. Die Wann eher in die Ecke.


Grundriss eines Badezimmers: Badewanne links, WC und Waschbecken rechts.



Virtueller Badezimmer-Entwurf mit Waschbecken, Badewanne, Fenster und Spiegel.
 
Zuletzt bearbeitet von einem Moderator:
H

hanghaus2023

Würde mir nicht gefallen. Dann eher an die Wand einen Handtuchheizkörper. Oder ein grosses Regal. Dusche ist 1,0 m * 1,4 m


Modernes Badezimmer mit Badewanne, Waschbecken, Spiegel, grauen Fliesen und Fenster mit Bergblick.



Badezimmer-Grundriss: Badewanne links, Waschbecken in Mitte, WC rechts, Tür unten.
 
Zuletzt bearbeitet von einem Moderator:
Zuletzt aktualisiert 16.10.2025
Im Forum Sanitär / Bad / WC gibt es 1365 Themen mit insgesamt 14346 Beiträgen


Ähnliche Themen zu Sanierung Bad 12qm - Ideen zur T-Lösung - ausreichend Platz?
Nr.ErgebnisBeiträge
1Grundrissplanung: Badezimmer Dusche 47
2In der Dusche kommt kein Warmwasser mehr an... 13
3Badezimmer Familienbad Stadtvilla - Badplanungs Ideen? - Seite 331
4Badezimmer Planung / Feedback erwünscht !!! 17
5Größe begehbare Dusche - Seite 230
6Badezimmer Planung 1-Personen Haushalt im Neubau 26
7Beratung: Neues Badezimmer, 5,9qm mit Badewanne - Seite 648
8Mann plant Badezimmer, kann das gut gehen? 52
9Lautsprecher und Fernseher im Badezimmer 15
10Badezimmer Planung - Ideen zur Sanierung 15
11Badezimmer raumhoch oder halbhoch Fliesen? 32
12Fliesenmuster Wände im Badezimmer - Seite 326
13Radio im Badezimmer - ja oder nein 45
14Zusätzliches Badezimmer über Bauträger oder nur Rohre legen? 10
15Badezimmer-Grundriss Planung - Wie die Fenster platzieren? 12
16Lautsprecher im Badezimmer u. Terrasse 19
17Welche Badezimmer Accessoires habt ihr verbaut? 21
18Fliesengröße 80x80 im Badezimmer 17
19Einrichtung Ankleidezimmer Tür zum Badezimmer 34
20Trockenbauwand für Badezimmer einziehen 13

Oben