ᐅ richtige Treppe finden - welche Möglichkeiten habe ich?
Erstellt am: 22.12.20 00:32
B
blockschrift722.12.20 00:32Hallo zusammen,
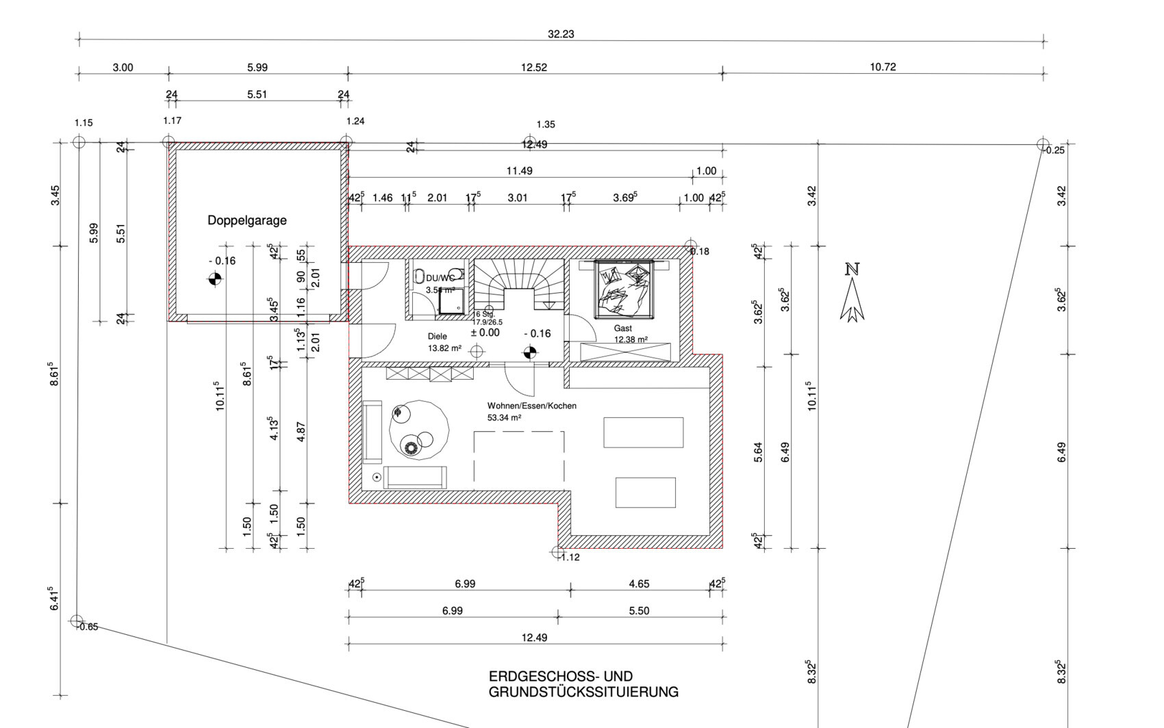
wir sind mittlerweile wirklich fast am Ende unserer Planung - das einzige was uns noch nicht ganz zufrieden stellt ist die Treppe. :-)
Laut unserem Architekten ist eine andere Treppe aufgrund der Maße nicht umsetzbar - ich will mich damit noch nicht zufrieden geben, deshalb versuche ich mein Glück hier 🙂
Wir würden eine U-Form Treppe mit einem oder mehreren zwischen Podesten bevorzugen - das wäre wirklich unser Traum.
Nun die Frage an Euch - seht ihr da eine Möglichkeit die ich / wir nicht sehen?
Danke 🙂


wir sind mittlerweile wirklich fast am Ende unserer Planung - das einzige was uns noch nicht ganz zufrieden stellt ist die Treppe. :-)
Laut unserem Architekten ist eine andere Treppe aufgrund der Maße nicht umsetzbar - ich will mich damit noch nicht zufrieden geben, deshalb versuche ich mein Glück hier 🙂
Wir würden eine U-Form Treppe mit einem oder mehreren zwischen Podesten bevorzugen - das wäre wirklich unser Traum.
Nun die Frage an Euch - seht ihr da eine Möglichkeit die ich / wir nicht sehen?
Danke 🙂
H
hampshire22.12.20 05:48Eine andere Treppe bedeutet eine andere Anordnung der Räume oben wie unten.
N
nordanney22.12.20 07:45Andere Treppe = anderer Grundriss. Da stimmt ich meinen Vorrednern zu.
B
blockschrift722.12.20 11:20ok vielen Dank - ihr habt mir wieder geholfen.... 🙂
Ähnliche Themen