Planung Heiz- und Lüftungstechnik KfW 40-Plus Einfamilienhaus

4,70 Stern(e) 10 Votes
Zuletzt aktualisiert 21.11.2025
Sie befinden sich auf der Seite 4 der Diskussion zum Thema: Planung Heiz- und Lüftungstechnik KfW 40-Plus Einfamilienhaus
>> Zum 1. Beitrag <<

H

halmi

Gerade auch in Verbindung mit dem geplanten Ofen + KFW40 sollte das doch perfekt für eine Luft-Wasser-Wärmepumpe sein. Wenn der Installateur das noch auf 28° ausleget, könnte es schwierig bis unmöglich werden für die Sole-Wasser-Wärmepumpe die Mehrkosten wieder rein zu bekommen.
 
K

knalltüte

wenn man mit der Außeneinheit der Luft-Wasser-Wärmepumpe leben kann, dann sicherlich.
Zudem glaube ich das die Kühlung mit einer Luft-Wasser-Wärmepumpe nahezu rein elektrisch erfolgt, bei einer Sole-Wasser-Wärmepumpe geht immerhin wohl 2-3 Grad durch PC
 
DaSch17

DaSch17

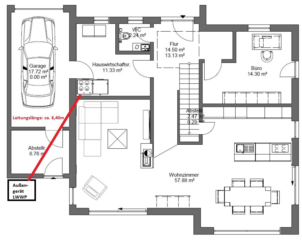
Das ist die große Frage. Uns gefallen weder die Außeneinheiten, noch die Lüftungsschlitze an der Hauswand, die bei einer Luft-Wasser-Wärmepumpe erforderlich sind. Daher wäre die Wahl einer Sole-Wasser-Wärmepumpe wohl im Wesentlichen auf optische Gründe zurückzuführen.

Alternativ wollten wir das Außengerät dann gerne hinter der Garage platzieren, wobei das eigentlich auch ein schöner Platz für ein Holzlager ist...


Grundriss eines Hauses: Garage mit Auto, Wohnen, Küche, Büro, WC, Flur; Leitung zum Außen-LWWP.
 
Zuletzt aktualisiert 21.11.2025
Im Forum Haustechnik / Ökologisches Bauen gibt es 927 Themen mit insgesamt 12081 Beiträgen


Ähnliche Themen zu Planung Heiz- und Lüftungstechnik KfW 40-Plus Einfamilienhaus
Nr.ErgebnisBeiträge
1Heizungskonzept für Einfamilienhaus Neubau ca. 190m²:Split Wärmepumpe vs. Sole - Seite 213
2Sole-Wärmepumpe/worauf beim Angebot achten ( Einfamilienhaus, Neubau , KFW70) 22
3Grabenkollektor Sole-Wasser-Wärmepumpe oder Luft-Wasser-Wärmepumpe? 49
4Kühlung über Fußbodenheizung mit Sole-Wärmepumpe - Seite 245
5Erfahrungen Sole-Wärmepumpe 491
6Kontrollierte-Wohnraumlüftung mit Kühlung: Sole-Erdwärmepumpe statt Luft-Wasser-Wärmepumpe? 30
7Stiebel Sole-Wasser-Wärmepumpe vs. Wolf Monoblock + welche Kontrollierte-Wohnraumlüftung? - Seite 849
8Lohnt sich eine Sole-Wasser-Wärmepumpe bei KfW 40+ noch? 34
9Sole-Wasser-Wärmepumpe mit Erdsonde Erfahrungen? 42
10Welche Sole-Wasser-Wärmepumpe Viessmann, Niebe oder Stiebel WPE-I 10 H 12
11KFW 40, Sole-Wasser Wärmepumpe lohnenswert oder doch Luft-Wasser? 15
12Umrüstung Gastherme in Wärmepumpe 35
13Gas, Wärmepumpe und Solar für ein Einfamilienhaus? - Seite 236
14Wärmepumpe / Endenergiebedarf / Jahresarbeitszahl? 20
15Luft-Wasser-Wärmepumpe, Gas, Solarthermie Fertighaus, Vor- Nachteile? 18
16Wärmepumpe besser im Haus oder im Garten? - Seite 238
17Welche Wärmepumpe? Lüftungsanlage / Luft-Wasser-Wärmepumpe - Seite 493
18Nibe F750 oder Luft-Wasser-Wärmepumpe Erfahrungen? 10
19Ringgrabenkollektor für Sole-Wärmepumpen 18
20Heizungsnalge Neubau (Wärmepumpe + Ofen + Solar) - Seite 235

Oben