Es gibt kleine Mängel, aber grundsätzlich finde ich den Entwurf gut.
Aber auch mit kleinen Mängel kann man leben wie zB die Treppe an der Haustür, wenn der Rest stimmt.
Allerdings ist zu wenig Platz in der Küche für die Hochschränke. Vlt kann man die unter die Treppe einbauen?
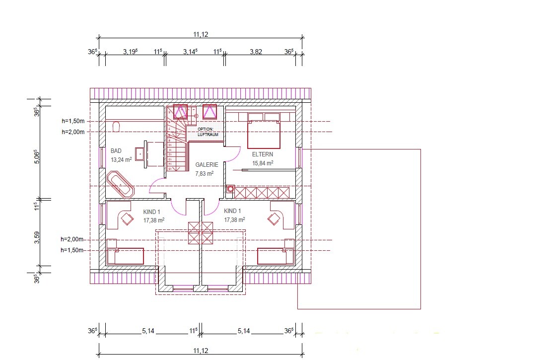
Schlafzimmer ist auch nicht ideal, und ob man Luftraum braucht??? Manchmal kann man sich aber an so unwichtige Sachen wie diesen Luftraum jeden Tag begeistern, sodass man andere Mängel in Kauf nimmt
