Hallo zusammen,
wir haben mit unserer Architektin die folgenden zwei Grundrisse für das EG ausgearbeitet.
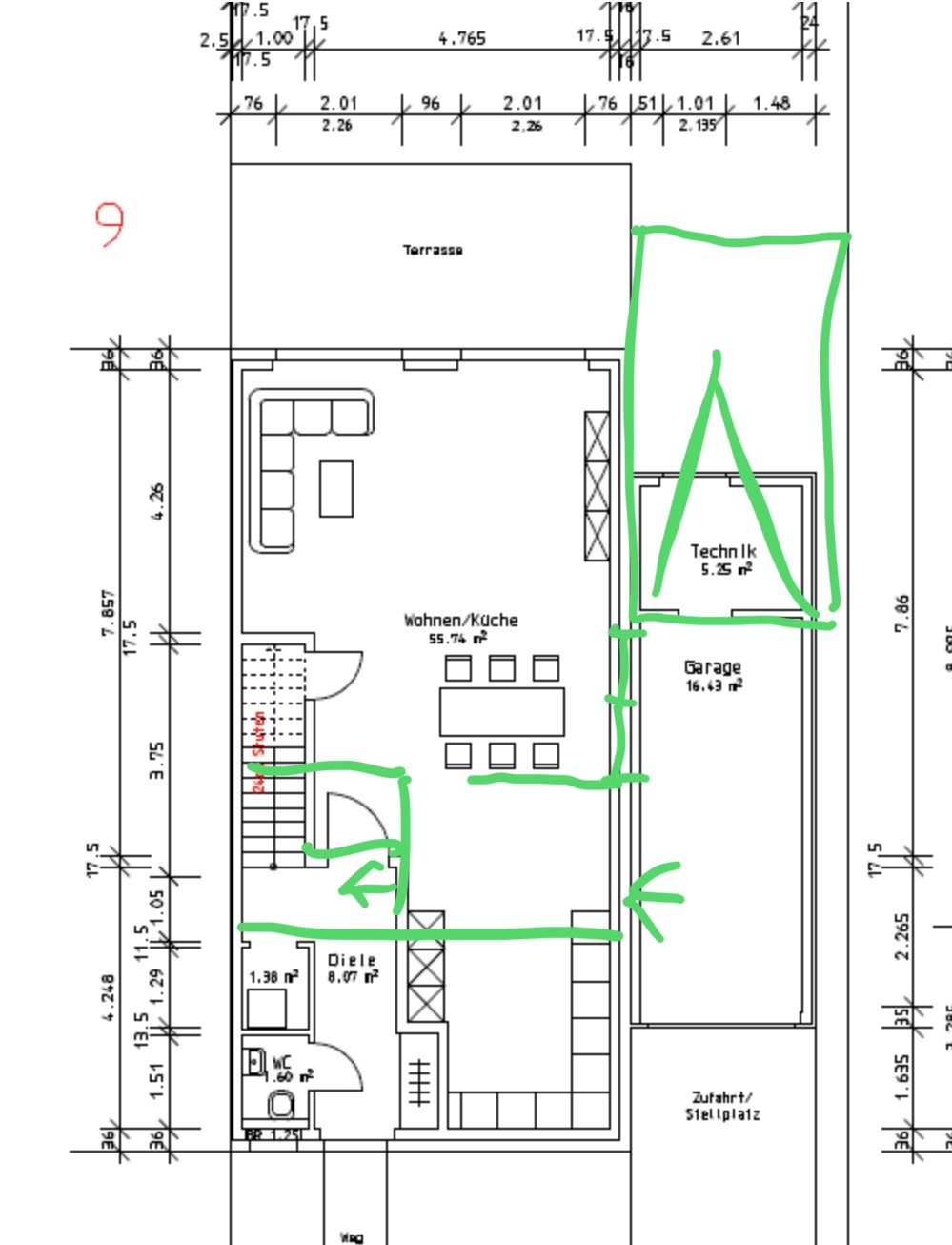
Doppelhaushälfte mit Garage
Grundstück 235 qm - 10 m breit, 23,5 m lang
Baufenster von 6,5 x 13 m
Terrassenseite SW
3-4 Personen (1-2 Kinder)
Wir bevorzugen Entwurf 8 mit einer Nische direkt rechts neben der Haustür (wie in Entwurf 9) und würden die Küche als U-Form planen (Kochinsel haben wir optisch mit einer Breite von 3,26 m an der Fensterfront leider nicht hinbekommen).
Im Entwurf 9 wäre die Küche als U-Form zu lang gezogen, sodass es wahrscheinlich optisch nicht so schön aussehen würde.
Waschmaschine und Trockner würden wir im Badezimmer im OG integrieren und ohne Hauswirtschaftsraum bauen.
Habt Ihr Tipps oder Ideen was wir verbessern könnten bzw. wie findet Ihr den Grundriss allgemein?
Danke und viele Grüße,

wir haben mit unserer Architektin die folgenden zwei Grundrisse für das EG ausgearbeitet.
Doppelhaushälfte mit Garage
Grundstück 235 qm - 10 m breit, 23,5 m lang
Baufenster von 6,5 x 13 m
Terrassenseite SW
3-4 Personen (1-2 Kinder)
Wir bevorzugen Entwurf 8 mit einer Nische direkt rechts neben der Haustür (wie in Entwurf 9) und würden die Küche als U-Form planen (Kochinsel haben wir optisch mit einer Breite von 3,26 m an der Fensterfront leider nicht hinbekommen).
Im Entwurf 9 wäre die Küche als U-Form zu lang gezogen, sodass es wahrscheinlich optisch nicht so schön aussehen würde.
Waschmaschine und Trockner würden wir im Badezimmer im OG integrieren und ohne Hauswirtschaftsraum bauen.
Habt Ihr Tipps oder Ideen was wir verbessern könnten bzw. wie findet Ihr den Grundriss allgemein?
Danke und viele Grüße,
S
Simon198804.03.26 19:37Wir können den GU und die Architektin nicht mehr wechseln. Wir bauen ohne Keller / Staffelgeschoss.
Der Entwurf ist m.E. Unsinn, solange kein Platz für die Technik eingeplant wird.
Darüber hinaus ist es trotz der Länge letztlich ein kleines Haus, wo man mit den qm haushalten muss. 57qm für einen Allraum sind bei dieser Hausgröße imho völlig am Leben vorbei geplant. Ich sehe den Raum schon jetzt regelmäßig zugemüllt, da jeglicher Stauraum fehlt.
Bitte doch die Architektin mal, Heizung, Warmwasserspeicher für 4 Personen, Elektroschrank, Wasseranschluss und sowas wir Staubsauger, Eimer, Kinderwagen(?) und ähnliches maßstabsgetreu einzuzeichnen! Bin gespannt, wie sie sich das vorstellt.
Darüber hinaus ist es trotz der Länge letztlich ein kleines Haus, wo man mit den qm haushalten muss. 57qm für einen Allraum sind bei dieser Hausgröße imho völlig am Leben vorbei geplant. Ich sehe den Raum schon jetzt regelmäßig zugemüllt, da jeglicher Stauraum fehlt.
Bitte doch die Architektin mal, Heizung, Warmwasserspeicher für 4 Personen, Elektroschrank, Wasseranschluss und sowas wir Staubsauger, Eimer, Kinderwagen(?) und ähnliches maßstabsgetreu einzuzeichnen! Bin gespannt, wie sie sich das vorstellt.
Simon1988 schrieb:
Keller, Geschosse: Bau auf Bodenplatte ohne Kellern [...] Wir können den GU und die Architektin nicht mehr wechseln. Wir bauen ohne Keller / Staffelgeschoss.Normalerweise helfe ich gerne mit Fachkompetenz. In diesem Fall werde ich mich darauf beschränken müssen, für Euch zu beten. Schade :-(
Wieso rennt man so in sein Verderben, obwohl man sich vorher in diesem Forum angemeldet hatte ? - ich verstehe es nicht !
Ich sehe den halben Meter Graben neben der Garage nur schwerlich ausreichen, um den HAR mit den Leitungen anfahren zu können. Schwenkt zumindest auf einen offenen Stellplatz um, das kann das Fiasko noch lindern.
Simon1988 schrieb:
Entwurf einer Architektin, vermittelt von unserem GU [...] Bei der Stufentiefe sind wir unsicher, Zugang vom Haus in die Garage sinnvoll?Wie gesagt, der Entwurf funktioniert so wie gezeichnet nicht. Also doch vielleicht zum Anwalt, als nur auf mein Beten zu bauen ?
Die Unsicherheit über die Stufen kann ich nur teilen, da wir wie gesagt die Geschosshöhe nicht kennen. 24 bzw. 25 cm Tiefe wären 19,5 bzw. 19 cm Stufenhöhe, mal 16 Steigungen also 3,12 bzw. 3,04 m Geschosshöhe. Üblich wären eher 2,80 bis 2,90 m Geschosshöhe und entsprechend 17,8 bis 18,2 cm Stufenhöhe ergebend etwa 27/28 cm Stufentiefe, also entsprechend längere Treppen. 420k Maximalbudget werden knapp, die langen für 140 qm. Da sehe ich lang und schmutzig Eigenleistung drohen.
https://www.instagram.com/11antgmxde/
https://www.linkedin.com/company/bauen-jetzt/
S
Simon198804.03.26 20:41Der Technikraum befindet sich hinter der Garage. Stauraum wäre unter der Treppe bzw. in der Garage als Kellerersatzraum vorhanden.
Prima, damit kann man doch etwas arbeiten.
Allerdings halte ich vieles für überlegenswert - besser gesagt: hier solltet Ihr Euch belehren lassen, dass diese Gedanken oder Wünsche schlecht, sehr schlecht mit diesem DH vereinbar sind.
Die habt ihr so gut wie keine. Unter der Treppe ist ein Raum/Bereich, den man nicht begehen kann. Es reicht für Dinge, die man mit einem Schritt rein greifen kann. Der Technikraum ist nicht groß genug, noch Werkzeug, Pflanzzeugs usw, was man eigentlich auch IM Haus lagern möchte oder sollte (Batterien, Müll zur Zwischenlagerung, Taschen für den Einkauf, einige Vorräte). Das Haus wird somit unfunktionell oder ein Sammelsurium an Plätzen, wo Kommoden verteilt werden.
Auch wenn ein Büro nicht nötig ist, so hat man ggf. einen Familienbüroplatz mit Drucker und Ordner. Geschenkpapier, Grußkarten, Dekobänder usw. Zu Locher, Hefter und Schreibpapier, die so in einer Schublade Platz haben könnten, gesellen sich eine Menge nötiger Firlefanz in einem Kinderhaushalt. Insofern wäre ein adäquater Raum bei 4 Personen sinnvoll.
Und wohin mit dem Pkw? Vor die Garage?!
Ist völlig sinnbefreit bei Standard-Doppelhäusern dieser Breite. Bei 5 Metern wäre eine 1/4 gewendelte sinnvoll, bei 6 Metern Breite eine 2-fach gewendelte. Sie entwickelt sich aus den Räumen im OG. Wenn man fragt, warum, dann sehe man sich diesen schlangenartigen, unfunktionellen Flur im OG an. Man kann natürlich gegen den Strom schwimmen, aber nicht mit 4 Personen, noch mit dem Budget oder den restlichen Vorgaben.
Technik außerhalb der Gebäudehülle ist nicht sinnvoll. Ist auch teurer, wenn man die thermische Hülle nach außen erweitert.
Ankleide hat hier keinen Platz - der ist wahrer Luxus für der Eltern auf anderer Kosten.
Umfunktionieren… plant gleich richtig, dann machen die Räume auch zufrieden.
Kinderzimmer gehören auf die Lichtseite, Bäder übereinander. Keinen Tanzsaal im Allraum. Effektive Meterbreiten sinnvoll planen, dann gibt es auch keine Leerflächen oder Schnörkelflure. Schlicht, kompakt, dadurch werden die meisten Häuser großzügig.
Als Beispiel etwas Gekritzel als Stütze für das OG

Und hier die Idee, die Garage noch weiter nach hinten zu ziehen, um seitlich Fenster zu generieren und ggf. den Eingang.
Sofern ich gelesen habe, bezieht sich die Gleichheit der Doppelhaushälfte nicht auf Türen oder Fenster.
Hier habe ich allerdings die Treppe nicht verändert, es geht nur um die Idee der Versetzung der Küche und/oder dem Eingang.


Allerdings halte ich vieles für überlegenswert - besser gesagt: hier solltet Ihr Euch belehren lassen, dass diese Gedanken oder Wünsche schlecht, sehr schlecht mit diesem DH vereinbar sind.
Simon1988 schrieb:
Abstellmöglichkeiten
Die habt ihr so gut wie keine. Unter der Treppe ist ein Raum/Bereich, den man nicht begehen kann. Es reicht für Dinge, die man mit einem Schritt rein greifen kann. Der Technikraum ist nicht groß genug, noch Werkzeug, Pflanzzeugs usw, was man eigentlich auch IM Haus lagern möchte oder sollte (Batterien, Müll zur Zwischenlagerung, Taschen für den Einkauf, einige Vorräte). Das Haus wird somit unfunktionell oder ein Sammelsurium an Plätzen, wo Kommoden verteilt werden.
Simon1988 schrieb:
Büro (Familiennutzung oder Homeoffice): Ein Büro wäre wünschenswert, aber kein Muss
Auch wenn ein Büro nicht nötig ist, so hat man ggf. einen Familienbüroplatz mit Drucker und Ordner. Geschenkpapier, Grußkarten, Dekobänder usw. Zu Locher, Hefter und Schreibpapier, die so in einer Schublade Platz haben könnten, gesellen sich eine Menge nötiger Firlefanz in einem Kinderhaushalt. Insofern wäre ein adäquater Raum bei 4 Personen sinnvoll.
Simon1988 schrieb:
Garage, Carport: Garage für zahlreiche Fahrräder, Kinderfahrzeuge, Werkzeug etc
Und wohin mit dem Pkw? Vor die Garage?!
Simon1988 schrieb:
gerade Treppe
Ist völlig sinnbefreit bei Standard-Doppelhäusern dieser Breite. Bei 5 Metern wäre eine 1/4 gewendelte sinnvoll, bei 6 Metern Breite eine 2-fach gewendelte. Sie entwickelt sich aus den Räumen im OG. Wenn man fragt, warum, dann sehe man sich diesen schlangenartigen, unfunktionellen Flur im OG an. Man kann natürlich gegen den Strom schwimmen, aber nicht mit 4 Personen, noch mit dem Budget oder den restlichen Vorgaben.
Simon1988 schrieb:
Technikraum hinter der Garage
Technik außerhalb der Gebäudehülle ist nicht sinnvoll. Ist auch teurer, wenn man die thermische Hülle nach außen erweitert.
Simon1988 schrieb:
Schlafzimmer Eltern mit separate Ankleide
Ankleide hat hier keinen Platz - der ist wahrer Luxus für der Eltern auf anderer Kosten.
Simon1988 schrieb:
Ankleide was evtl. als Büro umfunktioniert werden könnte,
Umfunktionieren… plant gleich richtig, dann machen die Räume auch zufrieden.
Kinderzimmer gehören auf die Lichtseite, Bäder übereinander. Keinen Tanzsaal im Allraum. Effektive Meterbreiten sinnvoll planen, dann gibt es auch keine Leerflächen oder Schnörkelflure. Schlicht, kompakt, dadurch werden die meisten Häuser großzügig.
Als Beispiel etwas Gekritzel als Stütze für das OG
Und hier die Idee, die Garage noch weiter nach hinten zu ziehen, um seitlich Fenster zu generieren und ggf. den Eingang.
Sofern ich gelesen habe, bezieht sich die Gleichheit der Doppelhaushälfte nicht auf Türen oder Fenster.
Hier habe ich allerdings die Treppe nicht verändert, es geht nur um die Idee der Versetzung der Küche und/oder dem Eingang.
Simon1988 schrieb:
Stauraum wäre unter der Treppe bzw. in der Garage als Kellerersatzraum vorhanden.Es gibt eine Garagenverordnung, die untersagt, eine Garage als Kellerersatzraum, quasi als Abstellraum zu nutzen. Machen zwar viele, aber es ist nicht erlaubt. Da braucht sich ja nur jemand von Euch geärgert fühlen, und schon hagelt es eine Ordnungsstrafe inkl Frust, weil keine Option vorhanden ist.
Ähnliche Themen