ᐅ Neubau Einfamilienhaus 150qm Wohnfläche, Saarland
Erstellt am: 29.04.21 16:04
Hallo zusammen,
ich werde dieses Jahr einen Neubau im Saarland starten.
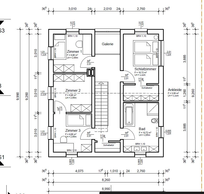
Die Außenmaße des Hauses sollen ca. 9,5x10,5 Meter sein. Ich wollte euch mal meinen Grundriss teilen und fragen, ob ihr dazu Meinungen habt. Diese sind allerdings noch in den Maßen 9x10 Meter.
Meine erste Überlegung ist schon, die Wand zur Treppe in der Küche wegzumachen und eine 3m Kücheninsel von der rechten Hauswand parallel zur Küchenzeile an der Wand zu bilden.
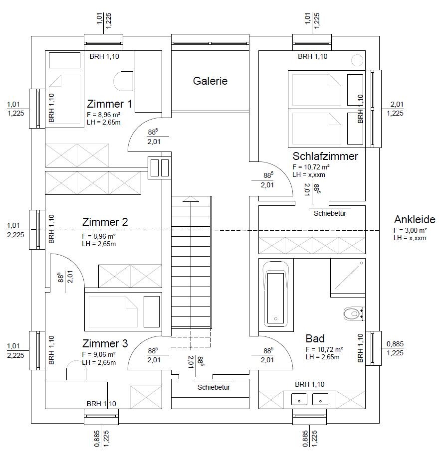
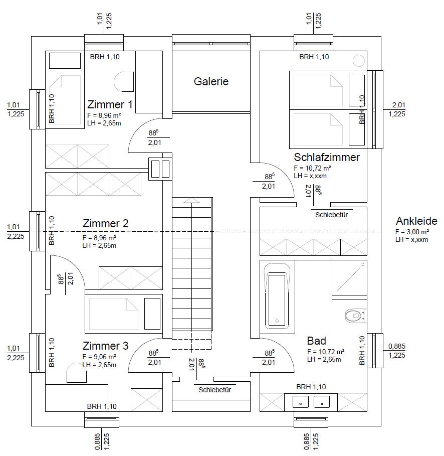
Im OG soll der Ankleideraum größer werden und einen Durchgang zum Bad bekommen.
An den Hauswirtschaftsraum kommt vornedran noch eine Garage mit Durchgang.
Zum Lageplan: das Haus wird doch hinter dem Haus mit der Nummer 84 stehen, also nicht wie eingezeichnet. Hausnummer 84 wird im Vorfeld abgerissen.
Danke vorab.
Viele Grüße
Christoph



ich werde dieses Jahr einen Neubau im Saarland starten.
Die Außenmaße des Hauses sollen ca. 9,5x10,5 Meter sein. Ich wollte euch mal meinen Grundriss teilen und fragen, ob ihr dazu Meinungen habt. Diese sind allerdings noch in den Maßen 9x10 Meter.
Meine erste Überlegung ist schon, die Wand zur Treppe in der Küche wegzumachen und eine 3m Kücheninsel von der rechten Hauswand parallel zur Küchenzeile an der Wand zu bilden.
Im OG soll der Ankleideraum größer werden und einen Durchgang zum Bad bekommen.
An den Hauswirtschaftsraum kommt vornedran noch eine Garage mit Durchgang.
Zum Lageplan: das Haus wird doch hinter dem Haus mit der Nummer 84 stehen, also nicht wie eingezeichnet. Hausnummer 84 wird im Vorfeld abgerissen.
Danke vorab.
Viele Grüße
Christoph
^chrisOo schrieb:
Zum Lageplan: das Haus wird doch hinter dem Haus mit der Nummer 84 stehen, also nicht wie eingezeichnet. Hausnummer 84 wird im Vorfeld abgerissen.Also Du baust nun nicht Haus 86, sondern Haus "84 neu", und teilst das Grundstück nicht ?https://www.instagram.com/11antgmxde/
https://www.linkedin.com/company/bauen-jetzt/
11ant schrieb:
Also Du baust nun nicht Haus 86, sondern Haus "84 neu", und teilst das Grundstück nicht ?Genau. Quasi hinter die 84 und die kommt weg.P
pagoni202029.04.21 18:16Du solltest unbedingt den Fragebogen ausfüllen, da ich glaube, dass dieser Grundriss erklärungsbedürftig ist.
Wieviele Kinder?
Büro wirklich notwendig?
Warum so großes Bad mit Wanne im EG?
Viel Flurfläche im OG, warum platzverschwendende Galerie bei ansonsten eingeengten Platzverhältnissen.
Der Allraum mit 33qm ist sehr knapp bemessen, da bleibt kein Platz für Spielerei.
Wie gesagt, wenn die Fragen ausführlich beantwortet sind kann man sichb ein Besseres Bild vom Bedarf und Euren Präferenzen machen.
Wieviele Kinder?
Büro wirklich notwendig?
Warum so großes Bad mit Wanne im EG?
Viel Flurfläche im OG, warum platzverschwendende Galerie bei ansonsten eingeengten Platzverhältnissen.
Der Allraum mit 33qm ist sehr knapp bemessen, da bleibt kein Platz für Spielerei.
Wie gesagt, wenn die Fragen ausführlich beantwortet sind kann man sichb ein Besseres Bild vom Bedarf und Euren Präferenzen machen.
Das Teil platzt schon aus allen Nähten, bevor ihr eingezogen seid. Viel zu viele Räume auf dieser überschaubaren Grundfläche. Wohnzimmer + Kinderzimmer jeweils 9 m². HILFEEEEEEE.........
Galerie und gerade Treppe sind aber ganz wichtig, um noch mehr m² zu verschenken, die man nicht hat.
Galerie und gerade Treppe sind aber ganz wichtig, um noch mehr m² zu verschenken, die man nicht hat.
Ähnliche Themen