Hausbau - Ratgeber
Bauherrenhilfe
- Bauherrenhilfe vor Vertragsabschluss
-- Warum einen unabhängigen Baubetreuer?
-- Vertragsgrundlagen
-- Bausumme
-- Zahlungsplan zur Kostenkontrolle
-- Pflichten des Bauherren vor Vertragsabschluss
-- Unterlagen beim Hausbau vor Vertragsabschluss
- Bauherrenhilfe nach Vertragsabschluss
-- Bauantrag bei Behörden
-- Bau-Genehmigungsverfahren bei Baubehörden
-- Bauspezifische Versicherungen
-- Bauzeitenplan
-- Baubeginn - die Letzten Pflichten der Bauherrschaft
- Bauherrenhilfe während der Bauzeit
- Gewährleistungsansprüche
- Bauabnahme
Baufinanzierung
- Baufinanzierung - Allgemeine Fragen
- Kreditarten
- Kredit-Konditionen
- Bausparen
- Staatliche Förderungen
- Verkehrswert
- Haushaltsrechnung und Bonität
Hausbau Planung
- Haustypen
- Hausbau Vorbereitungsarbeiten
- Das Baugrundstück
- Baugrund beim Hausbau
- Baurecht
- Gebäudeschutz
- Erdarbeiten und Wasserhaltung
- Stützmauern
- Einfriedung
- Untergeschoss
- Kanalisation
- Tragende Elemente
- Nichttragende Innenwände
- Fundation / Fundament
- Deckenkonstruktionen
- Dächer
- Kaminanlagen
- Treppen Rampen Leitern
- Dachbeläge und Spengler
- Fenster
- Sonnen und Wetterschutz
- Aussenputze
- Einbauten, Küchen, Türen
- Bodenbeläge und Unterlagsböden
- Parkett
- Gips, Wand, Decke
Haustechnik und Energie
- Heiztechnik
- Lüftung und Klimatechnik
- Sanitärtechnik
- Elektrotechnik
- Erneuerbare Energie
Whirlpools / Jacuzzi
Hausbau Magazin
- Baufinanzierung trotz Krise?
- Das Blockhaus
- Moderne Dämmstoffe im Vergleich
- Erker Vor- und Nachteile
- Glasflächen beim Hausbau
- Günstig ein Haus Bauen
- Mediterraner Hausbaustil
- Mehrgenerationenhaus
- Moderne Architektur
- Gartengestaltung leicht gemacht
- Traditioneller Ziegelbau
- Villa als höchster Traum
- Im Eigenheim Ruhestand geniessen
- Altbau sanieren
- Kauf einer Holzgarage
- Immobilienmakler
- Arbeitshandschuhe für den Winter
- Zuhause verschönern
- Outdoor-Plissees
- Schlafzimmer planen
- Terrassenüberdachung
- Wohngebäudeversicherung
- Girokonto für Bauherren finden
- Hauseingang gestalten
- Zaunarten und Eigenschaften
- Der perfekte Grundriss
- Sparsamer heizen im Altbau
- Einfamilienhaus smart finanzieren
- Planung einer PV-Anlage
- Neues Haus
- Immobilienfinanzierung
- Installation einer Photovoltaikanlage
- Asbest erkennen und entfernen
- Gartenpflege im Frühling – worauf achten
- Sauna im Fokus - Wellness zuhause
- Erfolgreich vermieten
- Die perfekte Winterbekleidung
- Das Niedrigenergiehaus
- Der April und seine Stürme
- Architektonische Vielfalt
- Ökologisch und nachhaltig bauen
- Das perfekte Schlafzimmer
- Nachhaltige Energieversorgung
- Zukunftsorientiert bauen
- Nachhaltigkeit beim Hausbau
- Tiny Houses
- Wärmepumpen als nachhaltige Heizvariante
- Maßgeschneiderten Kleiderschrank
- Der richtige Baukredit
- Ratgeber für erfolgreichen Hausbau
- Haus als Altersvorsorge
Do-it-yourself Anleitungen
- Verlegeanleitung für Bodenbeläge und Parkett
- Bodenbeläge und Parkett reinigen und pflegen
- Malerarbeiten am Haus
- Garten Tipps
- Umzug und Reinigung

ᐅ Meinungen zum Grundriss von 195qm Wohnfläche erwünscht

Erstellt am: 17.02.17 18:02
H
Hofhaus
Hallo liebe Forumsmitglieder,

wir stehen noch recht am Anfang der Planung und wollen als Ersatzwohnhaus ein Haus im Außenbereich auf dem Hof meiner Oma bauen. Das grundsätzliche OK des Bauamtes liegt vor, daher möchte ich hier bitte keine Diskussion über das Bauen im Außenbereich, sondern gerne kritische Anmerkungen zum Grundriss den wir nun von unserem Architekten erhalten haben. Ich versuche mal strukturiert die Fragen die gefordert werden zu beantworten. Ich bin leider ein ziemlicher Baulaie. Bitte seid gnädig mit mir.

Bebauungsplan/Einschränkungen
Größe des Grundstücks - mehrere HA, die Hofstelle ca, 5000qm.(?)
Hang -
Grundflächenzahl -
Geschossflächenzahl -
Baufenster, Baulinie und -grenze -
Randbebauung -
Anzahl Stellplatz -
Geschossigkeit 1-2
Dachform -
Stilrichtung -
Ausrichtung -
Maximale Höhen/Begrenzungen -
weitere Vorgaben - "In den Außenbereich passend"

Anforderungen der Bauherren
Stilrichtung, Dachform, Gebäudetyp - Nordisch, typisches Einfamilienhaus mit "Kapitänsgiebel" vorne und hinten, ´Klinker
Keller, Geschosse - 1,5 kein Keller, da großes Nebengebäude vorhanden
Anzahl der Personen, Alter - Derzeit 2 (29,34, Haus soll für 2-3 potenzielle Kinder ausgelegt werden)
Raumbedarf im EG, OG - Wohnzimmer mit anschließender Küche, kleines Arbeitszimmer, Hauswirtschaftsraum, Gästebad (mit Dusche)
Büro: Familiennutzung oder Homeoffice? - reine Familiennutzung, Unterlagen usw. ggf. wenn wirklich mal 3 Kinder da sein sollten, dann soll eine Schlafcouch reinpassen....
Schlafgäste pro Jahr - unregelmäßig, schlecht abzuschätzen
offene oder geschlossene Architektur - ?
konservativ oder moderne Bauweise - vermutlich konservativ, mit modernen Elementen oder so....
offene Küche, Kochinsel - wäre schön, aber eigentlich wollen wir gerne eine Schiebetür um das Chaos auch mal zuschieben zu können
Anzahl Essplätze - 1 Essplatz im Wohnzimmer, ein Tresen in der Küche wäre schön.
Kamin- gerne gemauert, eventuell auch zunächst "nur" ein Schwedenofen.
Musik/Stereowand -
Balkon, Dachterrasse -
Garage, Carport - Werden wir keine Baugenehmigung dafür bekommen, Scheune/Hofplatz vorhanden, muss reichen.
Nutzgarten, Treibhaus - nein

Hausentwurf
Von wem stammt die Planung: Architekt nach unseren Ideen, die wir im Internet und in Fertighauswelten gesehen haben

Was gefällt besonders? Warum?- Ich mag den offenen Wohnbereich / Eckverglasung da wir dahinter grüne Wiese mit Bachlauf haben, schöne Diele mit Abstellraum unter der Treppe und Garderobe, Anzahl der Zimmer die wir wollen ist erfüllt, großes Elternschlafzimmer, "gedrehte" Treppe

Was gefällt nicht? Warum? -Tendenziell ein etwas zu großes Elternschlafzimmer, etwas zu kleine Kinderzimmer, müsste nicht unbedingt ein Kinderbad haben, zu großes Gäste-WC, zu kleine Küche (keine Möglichkeit für Küchenblock oder Tresen....
Preisschätzung lt Architekt/Planer: -
Persönliches Preislimit fürs Haus, inkl Ausstattung: 500TEUR (inkl. Abriss und Vorbereitungsarbeiten am Grundstück ca. 60TEUR)
favorisierte Heiztechnik: Unsicher....Erdwärme mit Solar ggf.

Wenn Ihr verzichten müsst, auf welche Details/Ausbauten
-könnt Ihr verzichten:
-könnt Ihr nicht verzichten:

Ich hoffe auf ein wenig Input was ihr gut oder eher nicht so gut findet, wo man als Laie wenn man an das Thema rangeht erst mal nicht denkt. Alle unsere kritischen Anmerkungen werden wir natürlich auch unserem Architekten noch einmal mitgeben zum Überarbeiten, trotzdem finde ich schadet es nicht sich auch hier und da Anmerkungen zu holen. Leider ist auf den Grundrissen die Himmelsrichtung nicht angezeigt.
Das Wohnzimmer geht Süd/West raus, als grobe Orientierung.Die Außenansichten bekommen wir heute erst zugesendet, die liefer ich dann umgehend nach.
Grundriss eines Hauses mit Wohnzimmer, Essbereich, Küche, Büro, HWR/Vorrat, Diele, Bad, Treppenhaus.

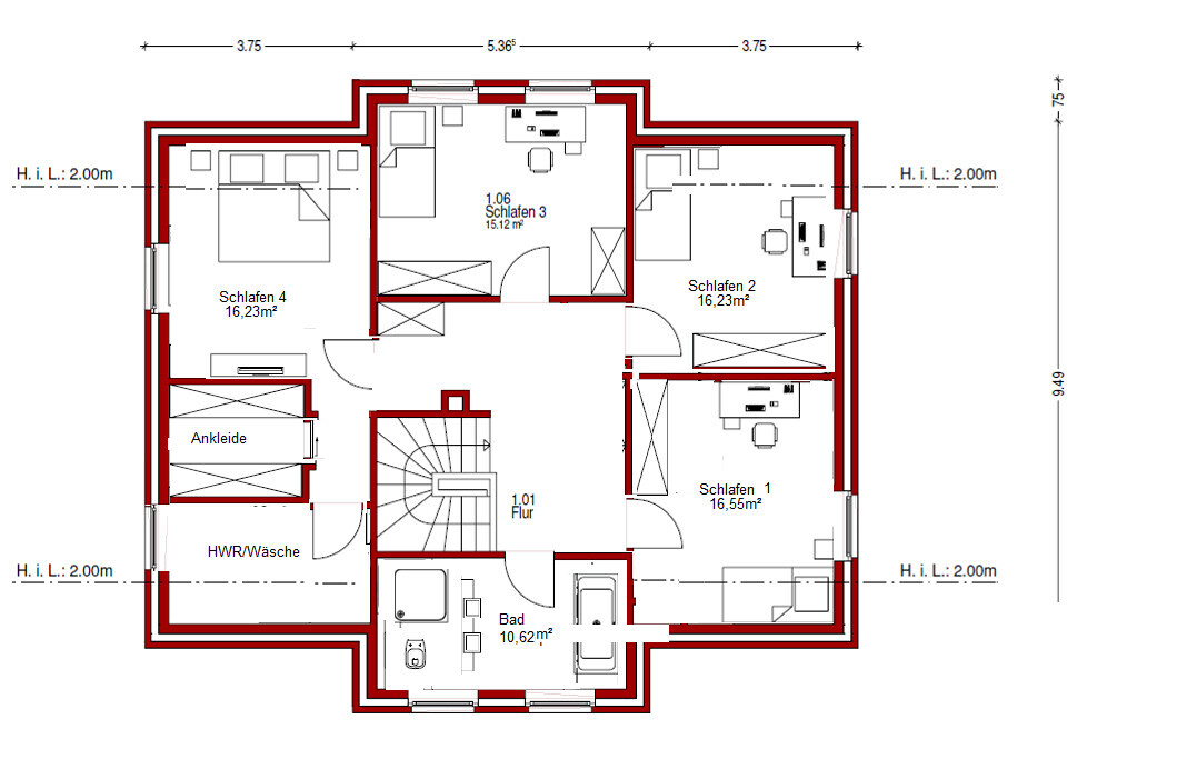
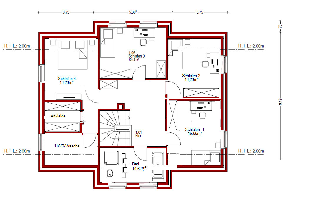
Grundriss eines Obergeschosses mit Flur, Treppenhaus, 4 Schlafzimmer, Ankleide, Bad und Kinderbad


Vielen Dank vorab.
Y
ypg
18.02.17 14:12
11ant schrieb:
Das war mir schon klar, nur nicht der Sinn, den Platz unter der Treppe nur zur Hälfte als Abstellraum zu nutzen und eine verlorene Abseite davon wegzumauern. Wenn da ein geheimer Tresor hin soll, würde ich es nicht ins Internet stellen

Es gibt Menschen, die mögen keine versteckten und schlecht erreichbare Ecken, sodass diese abgemauert sind. Ob sinnig oder nicht - jeder (auch Architekten) haben ihre Handschrift und Vorlieben.


Gruß, Yvonne
I
Iktinos
18.02.17 16:25
Hofhaus schrieb:

.... müsste nicht unbedingt ein Kinderbad haben,
Ich frage mich, wie sich Dein Architekt die Entwässerung des Kinderbades gedacht hat?
C
Curly
18.02.17 21:12
ich würde niemals auf das Kinderbad verzichten, schon gar nicht bei drei Kindern! Als unsere Kinder klein waren gab es gar keine Probleme mit dem Bad, das hat sich aber im Teenie-Alter komplett geändert. Deshalb freuen wir uns jetzt ganz besonders auf unser eigenes Bad.

LG
Sabine
H
Hofhaus
18.02.17 21:28
Hallo!

Vielen Dank schon einmal für euer konstruktives Feedback. Besonders Yvonnes Idee mit einem zweiten Hauswirtschaftsraum/Wäscheraum oben hat es mir angetan, und somit haben wir mal in Paint (ich weiss, sehr professionell) herumgespielt und den Grundriss oben verändert. Sicherlich sprechen wir das auch noch mal mit unserem Architekten im nächsten Termin noch mal gründlich durch, und bspw. die Badmöblierung ist noch völlig undurchdacht, und ob das alles so zu realisieren ist kann ich natürlich schlecht beurteilen, das lege ich dann aber gerne in die Hände unseres Architekten dem wir schon sehr vertrauen.

Unsere Ankleide ist nun etwas kleiner, dafür sollen da nun auch nicht mehr alles hinnein, sondern man hat ja noch weiteren Platz im Hauswirtschaftsraum. Das Kinderbad ist nun gewichen und eigentlich wollte ich ja von vornherein keines, da wir ja unten noch ein Duschbad haben, und ich möchte wirklich ungern drei Badezimmer einrichten und putzen . Ich glaub aber das ist einfach eine Glaubensfrage. Ich habe mir mit zwei Schwestern und den Eltern ein Bad geteilt. Das war zwar nicht perfekt, aber so richtig gestört hat es mich ehrlich gesagt auch selten.
Des Weiteren haben wir die Seiten getauscht. Erstens haben wir nun den etwas schöneren Blick....und die Kinderzimmer sind dafür größer geworden.

Ich werde mich gleich noch mal unten dran machen, da die Wände etwas umherzuschieben und zu schauen was geht. Der Vorteil ist jetzt natürlich schon, dass im derzeit unten vorhandenen Hauswirtschaftsraum keine Waschmaschine und kein Trockner mehr hinmuss, sondern alles frei ist für weitere Küchenutensilien und auch ein paar Schuhe und Jacken.

Ich bin gespannt was ihr davon haltet, ich finde es so deutlich aufgeräumter. Leider habe ich kein separiertes WC mit Waschbecken hinbekommen, die Idee hat mir nämlich auch sehr gut gefallen. Da werde ich definitiv noch mal unseren Architekten ansprechen.

Grundriss eines Etagenplans mit Flur, vier Schlafzimmern, Bad, Ankleide und HWR/Wäsche.
Y
ypg
18.02.17 21:43
Ich habe mir gedacht, dass Du die Idee mit dem Hauswirtschaftsraum gut findest und aufgreifen wirst
Allerdings ist der Wechsel oben nicht gut: Dir fehlen jetzt wertvolle QM, die jetzt ungenutzt im Flur schlummern.
Ich hätte die Idee, beim ursprünglichen Plan planunten rechts (das Teil mit der Wanne) in einen Hauswirtschaftsraum umzuwandeln, davor das Toilettenseparee (Fallrohr) und den Rest von dem Kinderbad und dem Teil vor der Treppe als Bad zu nehmen. Aber ich komme noch nicht dazu, mal skizzenhaft (ich hab es gern mit Bleistift und co ), auszuprobieren, ob es nicht anders besser wäre.


Gruß, Yvonne

P.d. In der Ankleide sollten 120cm zwischen den Schränken sein!
11ant18.02.17 21:43
Hofhaus schrieb:
und somit haben wir mal in Paint (ich weiss, sehr professionell) herumgespielt

Bauherren dürfen das. Professionell bleibt man in diesem Planungsdiskussions-Stadium eigentlich noch auf der Ebene der Schmierblatt-Handzeichnungen
https://www.instagram.com/11antgmxde/
https://www.linkedin.com/company/bauen-jetzt/
hauswirtschaftsraumarchitektenkinderbadankleide