Hallo liebe Forumsmitglieder,
wir stehen noch recht am Anfang der Planung und wollen als Ersatzwohnhaus ein Haus im Außenbereich auf dem Hof meiner Oma bauen. Das grundsätzliche OK des Bauamtes liegt vor, daher möchte ich hier bitte keine Diskussion über das Bauen im Außenbereich, sondern gerne kritische Anmerkungen zum Grundriss den wir nun von unserem Architekten erhalten haben. Ich versuche mal strukturiert die Fragen die gefordert werden zu beantworten. Ich bin leider ein ziemlicher Baulaie. Bitte seid gnädig mit mir.
Bebauungsplan/Einschränkungen
Größe des Grundstücks - mehrere HA, die Hofstelle ca, 5000qm.(?)
Hang -
Grundflächenzahl -
Geschossflächenzahl -
Baufenster, Baulinie und -grenze -
Randbebauung -
Anzahl Stellplatz -
Geschossigkeit 1-2
Dachform -
Stilrichtung -
Ausrichtung -
Maximale Höhen/Begrenzungen -
weitere Vorgaben - "In den Außenbereich passend"
Anforderungen der Bauherren
Stilrichtung, Dachform, Gebäudetyp - Nordisch, typisches Einfamilienhaus mit "Kapitänsgiebel" vorne und hinten, ´Klinker
Keller, Geschosse - 1,5 kein Keller, da großes Nebengebäude vorhanden
Anzahl der Personen, Alter - Derzeit 2 (29,34, Haus soll für 2-3 potenzielle Kinder ausgelegt werden)
Raumbedarf im EG, OG - Wohnzimmer mit anschließender Küche, kleines Arbeitszimmer, Hauswirtschaftsraum, Gästebad (mit Dusche)
Büro: Familiennutzung oder Homeoffice? - reine Familiennutzung, Unterlagen usw. ggf. wenn wirklich mal 3 Kinder da sein sollten, dann soll eine Schlafcouch reinpassen....
Schlafgäste pro Jahr - unregelmäßig, schlecht abzuschätzen
offene oder geschlossene Architektur - ?
konservativ oder moderne Bauweise - vermutlich konservativ, mit modernen Elementen oder so....
offene Küche, Kochinsel - wäre schön, aber eigentlich wollen wir gerne eine Schiebetür um das Chaos auch mal zuschieben zu können
Anzahl Essplätze - 1 Essplatz im Wohnzimmer, ein Tresen in der Küche wäre schön.
Kamin- gerne gemauert, eventuell auch zunächst "nur" ein Schwedenofen.
Musik/Stereowand -
Balkon, Dachterrasse -
Garage, Carport - Werden wir keine Baugenehmigung dafür bekommen, Scheune/Hofplatz vorhanden, muss reichen.
Nutzgarten, Treibhaus - nein
Hausentwurf
Von wem stammt die Planung: Architekt nach unseren Ideen, die wir im Internet und in Fertighauswelten gesehen haben
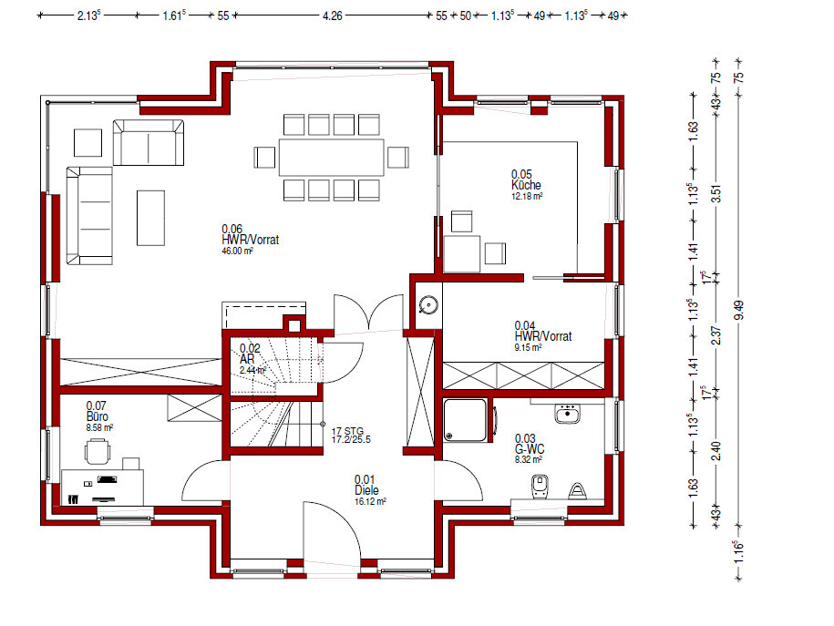
Was gefällt besonders? Warum?- Ich mag den offenen Wohnbereich / Eckverglasung da wir dahinter grüne Wiese mit Bachlauf haben, schöne Diele mit Abstellraum unter der Treppe und Garderobe, Anzahl der Zimmer die wir wollen ist erfüllt, großes Elternschlafzimmer, "gedrehte" Treppe
Was gefällt nicht? Warum? -Tendenziell ein etwas zu großes Elternschlafzimmer, etwas zu kleine Kinderzimmer, müsste nicht unbedingt ein Kinderbad haben, zu großes Gäste-WC, zu kleine Küche (keine Möglichkeit für Küchenblock oder Tresen....
Preisschätzung lt Architekt/Planer: -
Persönliches Preislimit fürs Haus, inkl Ausstattung: 500TEUR (inkl. Abriss und Vorbereitungsarbeiten am Grundstück ca. 60TEUR)
favorisierte Heiztechnik: Unsicher....Erdwärme mit Solar ggf.
Wenn Ihr verzichten müsst, auf welche Details/Ausbauten
-könnt Ihr verzichten:
-könnt Ihr nicht verzichten:
Ich hoffe auf ein wenig Input was ihr gut oder eher nicht so gut findet, wo man als Laie wenn man an das Thema rangeht erst mal nicht denkt. Alle unsere kritischen Anmerkungen werden wir natürlich auch unserem Architekten noch einmal mitgeben zum Überarbeiten, trotzdem finde ich schadet es nicht sich auch hier und da Anmerkungen zu holen. Leider ist auf den Grundrissen die Himmelsrichtung nicht angezeigt.
Das Wohnzimmer geht Süd/West raus, als grobe Orientierung.Die Außenansichten bekommen wir heute erst zugesendet, die liefer ich dann umgehend nach.
Vielen Dank vorab.
wir stehen noch recht am Anfang der Planung und wollen als Ersatzwohnhaus ein Haus im Außenbereich auf dem Hof meiner Oma bauen. Das grundsätzliche OK des Bauamtes liegt vor, daher möchte ich hier bitte keine Diskussion über das Bauen im Außenbereich, sondern gerne kritische Anmerkungen zum Grundriss den wir nun von unserem Architekten erhalten haben. Ich versuche mal strukturiert die Fragen die gefordert werden zu beantworten. Ich bin leider ein ziemlicher Baulaie. Bitte seid gnädig mit mir.
Bebauungsplan/Einschränkungen
Größe des Grundstücks - mehrere HA, die Hofstelle ca, 5000qm.(?)
Hang -
Grundflächenzahl -
Geschossflächenzahl -
Baufenster, Baulinie und -grenze -
Randbebauung -
Anzahl Stellplatz -
Geschossigkeit 1-2
Dachform -
Stilrichtung -
Ausrichtung -
Maximale Höhen/Begrenzungen -
weitere Vorgaben - "In den Außenbereich passend"
Anforderungen der Bauherren
Stilrichtung, Dachform, Gebäudetyp - Nordisch, typisches Einfamilienhaus mit "Kapitänsgiebel" vorne und hinten, ´Klinker
Keller, Geschosse - 1,5 kein Keller, da großes Nebengebäude vorhanden
Anzahl der Personen, Alter - Derzeit 2 (29,34, Haus soll für 2-3 potenzielle Kinder ausgelegt werden)
Raumbedarf im EG, OG - Wohnzimmer mit anschließender Küche, kleines Arbeitszimmer, Hauswirtschaftsraum, Gästebad (mit Dusche)
Büro: Familiennutzung oder Homeoffice? - reine Familiennutzung, Unterlagen usw. ggf. wenn wirklich mal 3 Kinder da sein sollten, dann soll eine Schlafcouch reinpassen....
Schlafgäste pro Jahr - unregelmäßig, schlecht abzuschätzen
offene oder geschlossene Architektur - ?
konservativ oder moderne Bauweise - vermutlich konservativ, mit modernen Elementen oder so....
offene Küche, Kochinsel - wäre schön, aber eigentlich wollen wir gerne eine Schiebetür um das Chaos auch mal zuschieben zu können
Anzahl Essplätze - 1 Essplatz im Wohnzimmer, ein Tresen in der Küche wäre schön.
Kamin- gerne gemauert, eventuell auch zunächst "nur" ein Schwedenofen.
Musik/Stereowand -
Balkon, Dachterrasse -
Garage, Carport - Werden wir keine Baugenehmigung dafür bekommen, Scheune/Hofplatz vorhanden, muss reichen.
Nutzgarten, Treibhaus - nein
Hausentwurf
Von wem stammt die Planung: Architekt nach unseren Ideen, die wir im Internet und in Fertighauswelten gesehen haben
Was gefällt besonders? Warum?- Ich mag den offenen Wohnbereich / Eckverglasung da wir dahinter grüne Wiese mit Bachlauf haben, schöne Diele mit Abstellraum unter der Treppe und Garderobe, Anzahl der Zimmer die wir wollen ist erfüllt, großes Elternschlafzimmer, "gedrehte" Treppe
Was gefällt nicht? Warum? -Tendenziell ein etwas zu großes Elternschlafzimmer, etwas zu kleine Kinderzimmer, müsste nicht unbedingt ein Kinderbad haben, zu großes Gäste-WC, zu kleine Küche (keine Möglichkeit für Küchenblock oder Tresen....
Preisschätzung lt Architekt/Planer: -
Persönliches Preislimit fürs Haus, inkl Ausstattung: 500TEUR (inkl. Abriss und Vorbereitungsarbeiten am Grundstück ca. 60TEUR)
favorisierte Heiztechnik: Unsicher....Erdwärme mit Solar ggf.
Wenn Ihr verzichten müsst, auf welche Details/Ausbauten
-könnt Ihr verzichten:
-könnt Ihr nicht verzichten:
Ich hoffe auf ein wenig Input was ihr gut oder eher nicht so gut findet, wo man als Laie wenn man an das Thema rangeht erst mal nicht denkt. Alle unsere kritischen Anmerkungen werden wir natürlich auch unserem Architekten noch einmal mitgeben zum Überarbeiten, trotzdem finde ich schadet es nicht sich auch hier und da Anmerkungen zu holen. Leider ist auf den Grundrissen die Himmelsrichtung nicht angezeigt.
Das Wohnzimmer geht Süd/West raus, als grobe Orientierung.Die Außenansichten bekommen wir heute erst zugesendet, die liefer ich dann umgehend nach.
Vielen Dank vorab.
Kapitänsgiebel und Eckfenster sind eine "originelle" Kombination. An die Wand geklatschte Fensterlaibungen in Diele / Küche / Elternbad würden mir nicht liegen. Der Windfang wird heute häufig weggelassen, warum auch immer. Zwei Eltern / zwei waschbecken, aber drei Kinder / ein Waschbecken halte ich nicht für geschickt. Die Trennwand in der Kammer unter der Treppe verstehe ich nicht. Mich erinnert der Entwurf an das Viebrockhaus Maxime 700, da dieser Tage schon´mal hier diskutiert wurde. das Katzentischchen in der Küche paßt nicht recht zur sonstigen Großzügigkeit. Wo sollen Hausanschluss- und Heizungsraum liegen ?
Was ist denn überhaupt ein "Ersatzwohnhaus" ? - auf Höfen kenne ich nur das Ausgedinge / Altenteil, aber das ist für die Altbauern (?)
https://www.instagram.com/11antgmxde/
https://www.linkedin.com/company/bauen-jetzt/
Was ist denn überhaupt ein "Ersatzwohnhaus" ? - auf Höfen kenne ich nur das Ausgedinge / Altenteil, aber das ist für die Altbauern (?)
https://www.instagram.com/11antgmxde/
https://www.linkedin.com/company/bauen-jetzt/
Mitbdem Eckfenster hat mein Vorredner recht. Der Kapitänsgiebel ist ein in sich geprägtes Stilelement. Oben braucht er einen Balkon mit bodentiefer Tür, das wird das Kontor. Das älteste Kind kann ja unten ins Büro gehen, hat da ja auch das eigene Bad. Zwei Waschbecken nebeneinander, der Sinn erschliesst sich mir nicht, da lass mal eines weg und plane lieber ein Pissoir ein, damit Mann nicht immer im Sitzen....das Schaufenster unterm Kapitänsgiebel sieht auch mit zwei bodentiefen Elementen stilsicherer aus. Und vor so ein Haus gehört ein Flaggenmast, wenigstens ein Flaggenstockhalter an den Balkon, dessen Form übrigens am Besten halbrund wäre.
Dass Problem mit der Technik und dem Hauswirtschaftsraum seh ich auch. Da geht alles rein, aber das kostet Platz und so ein Riesen Vorratsraum wirds dann nicht. Dennoch, hohen Gefrierschrank, Waschmaschine und so, das geht dann schon. Gut die zweite Spüle da drin zum Fische putzen und so.
Mein Haus soll m.E. unbedingt rot geklinkert sein und weisse Fenster und Türen haben. Übrigens, gestehe ein, wenn ich mir sowas leisten könnte, baute ich mir das auch.
Dass Problem mit der Technik und dem Hauswirtschaftsraum seh ich auch. Da geht alles rein, aber das kostet Platz und so ein Riesen Vorratsraum wirds dann nicht. Dennoch, hohen Gefrierschrank, Waschmaschine und so, das geht dann schon. Gut die zweite Spüle da drin zum Fische putzen und so.
Mein Haus soll m.E. unbedingt rot geklinkert sein und weisse Fenster und Türen haben. Übrigens, gestehe ein, wenn ich mir sowas leisten könnte, baute ich mir das auch.
Vielen Dank schon einmal für eure Anmerkungen!
Das habe ich im Eingangspost doch wirklich vergessen zu erwähnen. Die Haustechnik wandert ins Nebengebäude (eine Scheune die neben dem Haus steht).
@11ant: Was meinst du mit "an die Wand geklatschte Fensterlaibungen"? In wie weit die Trennwand unter der Treppe da Sinn macht, werde ich mal beim Architekten ansprechen. Die "Ausstattungen" die eingezeichnet sind, sind auch erst mal nur so ganz grob vom Architekten, da haben wir noch gar nicht weiter gedacht.
Der Katzentisch in der Küche wundert mich auch. Vielleicht ist es besser ohne Schiebetür mit Küchenblock/Theke zum dranhocken?
Wir waren in der Tat auch im Viebrockhaus Maxime 700 und im Wohnidee 425 und haben uns dort ein wenig inspirieren lassen. Ich schau da mal nach dem Thread. Danke für den Hinweis.
Übrigens bauen wir ein Ersatzwohnhaus unter der Prämisse, dass dann leider das alte Haus abgerissen werden muss nach Fertigstellung des neuen Hauses.Das alte Haus ist für uns einfach leider nicht bewohnbar/sinnvoll Umbaubar. Ein Altenteiler war leider auch nicht möglich (und wäre tendenziell auch zu klein gewesen, da diese größenmäßig begrenzt sind) da es keine aktive Landwirtschaft mehr ist. Im Endeffekt ist es so sinnvoll, da man so die heutige etwas unglückliche Hofaufteilung verändern und besser strukturieren kann. Emotional muss man da aber natürlich etwas schlucken.
@Nordlys: Ein Fahnenmast ist sogar in der Tat geplant. Für die Außenansicht müssen wir mal den fertigen Entwurf von außen abwarten, der natürlich leider heute nicht gekommen ist (Sind alle Architekten ein wenig schnarchig?) Wir planen aber da auf dem Hof auch ein Klinkerhaus, was anderes gefällt uns zwar auch, würde da aber nicht hinpassen und wäre wegen dem von allen Seiten freistehendem Haus, wegen Wetter auch nicht sinnvoll.
Das habe ich im Eingangspost doch wirklich vergessen zu erwähnen. Die Haustechnik wandert ins Nebengebäude (eine Scheune die neben dem Haus steht).
@11ant: Was meinst du mit "an die Wand geklatschte Fensterlaibungen"? In wie weit die Trennwand unter der Treppe da Sinn macht, werde ich mal beim Architekten ansprechen. Die "Ausstattungen" die eingezeichnet sind, sind auch erst mal nur so ganz grob vom Architekten, da haben wir noch gar nicht weiter gedacht.
Der Katzentisch in der Küche wundert mich auch. Vielleicht ist es besser ohne Schiebetür mit Küchenblock/Theke zum dranhocken?
Wir waren in der Tat auch im Viebrockhaus Maxime 700 und im Wohnidee 425 und haben uns dort ein wenig inspirieren lassen. Ich schau da mal nach dem Thread. Danke für den Hinweis.
Übrigens bauen wir ein Ersatzwohnhaus unter der Prämisse, dass dann leider das alte Haus abgerissen werden muss nach Fertigstellung des neuen Hauses.Das alte Haus ist für uns einfach leider nicht bewohnbar/sinnvoll Umbaubar. Ein Altenteiler war leider auch nicht möglich (und wäre tendenziell auch zu klein gewesen, da diese größenmäßig begrenzt sind) da es keine aktive Landwirtschaft mehr ist. Im Endeffekt ist es so sinnvoll, da man so die heutige etwas unglückliche Hofaufteilung verändern und besser strukturieren kann. Emotional muss man da aber natürlich etwas schlucken.
@Nordlys: Ein Fahnenmast ist sogar in der Tat geplant. Für die Außenansicht müssen wir mal den fertigen Entwurf von außen abwarten, der natürlich leider heute nicht gekommen ist (Sind alle Architekten ein wenig schnarchig?) Wir planen aber da auf dem Hof auch ein Klinkerhaus, was anderes gefällt uns zwar auch, würde da aber nicht hinpassen und wäre wegen dem von allen Seiten freistehendem Haus, wegen Wetter auch nicht sinnvoll.
R
RobsonMKK17.02.17 21:07Hofhaus schrieb:
Die Haustechnik wandert ins Nebengebäude (eine Scheune die neben dem Haus steht).Bedacht das dieser Raum auch komplett gedämmt sein muss?Ähnliche Themen