ᐅ Mehrfamilienhaus (3 WEH, Wohnkeller, Doppelgarage): Anregungen zur Planung
Erstellt am: 10.12.15 20:57
M
MarcWen
Bebauungsplan/Einschränkungen
Größe des Grundstücks: ca. 1.700 qm, Form Parallelogramm, N-S-Ausrichtung (Eingang im Norden)
Hang: nein
Bebauungsplan: nein, §34 Nachbarschaftsbebauung
Anzahl Stellplatz: 1 pro WEH
Anforderungen der Bauherren
Gebäudetyp: Kfw Energiesparhaus 55
Keller, Geschosse: ja, 2 Vollgeschosse
Anzahl der Personen, Alter: Bauherren (39 und 33 Jahre) + Tochter (10M), 2. Kind geplant, Schwiegereltern (72 und 58 Jahre)
Raumbedarf im UG: UG (Wohnkeller) barrierefrei, ca. 75 qm Einliegerwohnung (Schwiegereltern), Technik, Hauswirtschaftsraum, Abstellraum
Raumbedarf im EG: EG barrierefrei, alle Räumlichkeiten des täglichen Bedarfs (inkl. Bad, Schlafzimmer, Büro)
Raumbedarf im OG: OG 2 Kinderzimmer + Gästezimmer
Büro: Familiennutzung und Homeoffice (1-2 Tage pro Woche)
Schlafgäste pro Jahr: ca. 20
offene oder geschlossene Architektur: sowohl als auch, Kosten-Nutzen und zweckmäßig
konservativ oder moderne Bauweise: sowohl als auch, Kosten-Nutzen und zweckmäßig
offene Küche, Kochinsel: ja, ja
Anzahl Essplätze: 3-4, mit Besuch 6-8
Kamin: nein
Musik/Stereowand: nein
Balkon, Dachterrasse: ja, nein (nicht realisierbar)
Garage, Carport: ja, nein
Nutzgarten, Treibhaus: nein, nein
weitere Wünsche/Besonderheiten/Tagesablauf:
Vorgabe war die Realisierung von 2 barrierefreien Wohnungen. Ferner sollten im EG alle Räumlichkeiten des täglichen Bedarfs untergebracht werden. Da wir aktuell in einer 85 qm 3-Raumwohnung wohnen, sollte das so geplante EG nicht weniger als 100 qm Wohnfläche bekommen. Das OG haben wir flexibel geplant. 2 Kinderzimmer und eine separate WEH. Die WEH kann vermietet werden, für Pflegepersonal genutzt oder später von den Kindern bezogen werden. Theoretisch kann (nach Auszug der Kinder) auch das komplette OG vermietet werden.
Eine Dachterrasse auf der Doppelgarage ist wegen Grenzbebauung nicht möglich. Wir mussten zwischen 3 Meter Dachterrasse und Doppelgarage <-> 2 Einzelgaragen abwägen und haben uns für die Doppelgarage entschieden.
Hausentwurf
Von wem stammt die Planung: Architekt(in)
Was gefällt besonders? Die Planung baut im Wesentlichen auf unseren Vorgaben auf. Dazu natürlich die Ideen von unserer Architektin. Viele Räumlichkeiten sind einfach praktisch gedacht und sportlich in der Größe. Paar Annehmlichkeiten haben wir bewusst gestrichen. Ferner gibt es einige Einschränkungen vom Grundstück (Baufenster) oder Vorgaben vom Bauamt.
Was soll noch geändert werden?
· Fenster und Tür in der Garage nach vorne gesetzt und Tür nach außen öffnend
· Westbalkon im EG teilweise canceln, „Hausausschnitt Loggia EG“ zu, mehr Platz im Wohnbereich, Fenster mit Brüstung im Westen, im Süden große Balkontür analog Schlafzimmer UG, übrig bleibt ein kleiner Süd-Sonnenbalkon
· Im OG Treppenhaus ein 3. kleines Fenster, gleiche Optik wie bei Nordansicht
Persönliches Preislimit fürs Haus, inkl Ausstattung: 500.000 Euro
favorisierte Heiztechnik: Gas, aber abhängig vom Energiekonzept
Anliegen: Je länger man sich mit den Plänen beschäftigt, desto schwerer fällt es, unabhängig zu prüfen. Daher sind wir über weitere Tipps und Anregungen dankbar. Der Innenbereich ist noch nicht final. Gerade im Baddesign oder Türen wird noch entschieden. Wichtig ist, dass das Gebäude soweit steht, damit der BA noch bis Ende 2015 erfolgen kann. Die Gebäudeansichten sind natürlich auch schemenhaft (Treppen, Rampen).
Größe des Grundstücks: ca. 1.700 qm, Form Parallelogramm, N-S-Ausrichtung (Eingang im Norden)
Hang: nein
Bebauungsplan: nein, §34 Nachbarschaftsbebauung
Anzahl Stellplatz: 1 pro WEH
Anforderungen der Bauherren
Gebäudetyp: Kfw Energiesparhaus 55
Keller, Geschosse: ja, 2 Vollgeschosse
Anzahl der Personen, Alter: Bauherren (39 und 33 Jahre) + Tochter (10M), 2. Kind geplant, Schwiegereltern (72 und 58 Jahre)
Raumbedarf im UG: UG (Wohnkeller) barrierefrei, ca. 75 qm Einliegerwohnung (Schwiegereltern), Technik, Hauswirtschaftsraum, Abstellraum
Raumbedarf im EG: EG barrierefrei, alle Räumlichkeiten des täglichen Bedarfs (inkl. Bad, Schlafzimmer, Büro)
Raumbedarf im OG: OG 2 Kinderzimmer + Gästezimmer
Büro: Familiennutzung und Homeoffice (1-2 Tage pro Woche)
Schlafgäste pro Jahr: ca. 20
offene oder geschlossene Architektur: sowohl als auch, Kosten-Nutzen und zweckmäßig
konservativ oder moderne Bauweise: sowohl als auch, Kosten-Nutzen und zweckmäßig
offene Küche, Kochinsel: ja, ja
Anzahl Essplätze: 3-4, mit Besuch 6-8
Kamin: nein
Musik/Stereowand: nein
Balkon, Dachterrasse: ja, nein (nicht realisierbar)
Garage, Carport: ja, nein
Nutzgarten, Treibhaus: nein, nein
weitere Wünsche/Besonderheiten/Tagesablauf:
Vorgabe war die Realisierung von 2 barrierefreien Wohnungen. Ferner sollten im EG alle Räumlichkeiten des täglichen Bedarfs untergebracht werden. Da wir aktuell in einer 85 qm 3-Raumwohnung wohnen, sollte das so geplante EG nicht weniger als 100 qm Wohnfläche bekommen. Das OG haben wir flexibel geplant. 2 Kinderzimmer und eine separate WEH. Die WEH kann vermietet werden, für Pflegepersonal genutzt oder später von den Kindern bezogen werden. Theoretisch kann (nach Auszug der Kinder) auch das komplette OG vermietet werden.
Eine Dachterrasse auf der Doppelgarage ist wegen Grenzbebauung nicht möglich. Wir mussten zwischen 3 Meter Dachterrasse und Doppelgarage <-> 2 Einzelgaragen abwägen und haben uns für die Doppelgarage entschieden.
Hausentwurf
Von wem stammt die Planung: Architekt(in)
Was gefällt besonders? Die Planung baut im Wesentlichen auf unseren Vorgaben auf. Dazu natürlich die Ideen von unserer Architektin. Viele Räumlichkeiten sind einfach praktisch gedacht und sportlich in der Größe. Paar Annehmlichkeiten haben wir bewusst gestrichen. Ferner gibt es einige Einschränkungen vom Grundstück (Baufenster) oder Vorgaben vom Bauamt.
Was soll noch geändert werden?
· Fenster und Tür in der Garage nach vorne gesetzt und Tür nach außen öffnend
· Westbalkon im EG teilweise canceln, „Hausausschnitt Loggia EG“ zu, mehr Platz im Wohnbereich, Fenster mit Brüstung im Westen, im Süden große Balkontür analog Schlafzimmer UG, übrig bleibt ein kleiner Süd-Sonnenbalkon
· Im OG Treppenhaus ein 3. kleines Fenster, gleiche Optik wie bei Nordansicht
Persönliches Preislimit fürs Haus, inkl Ausstattung: 500.000 Euro
favorisierte Heiztechnik: Gas, aber abhängig vom Energiekonzept
Anliegen: Je länger man sich mit den Plänen beschäftigt, desto schwerer fällt es, unabhängig zu prüfen. Daher sind wir über weitere Tipps und Anregungen dankbar. Der Innenbereich ist noch nicht final. Gerade im Baddesign oder Türen wird noch entschieden. Wichtig ist, dass das Gebäude soweit steht, damit der BA noch bis Ende 2015 erfolgen kann. Die Gebäudeansichten sind natürlich auch schemenhaft (Treppen, Rampen).
P
Polle 196711.12.15 22:56Hallo nach allem was hier schon dazu geschrieben steht, ist mit noch eines unklar,
weshalb wollt ihr ein eben erdiges Grundstück? Wäre es nicht sinnvoller eine Hanglage?
Dort Könntet ihr dann das EG ebenerdig erreichen was deiner Beweglichkeit sehr entgegen kommen könnte,und die Garage ans EG setzen.
Den Eingang UG Seitlicher setzen.
Ihr müsstet nicht das ganze Grundstück abgraben, was auch eine enorme Kosten frage darstellt, allein den Aushub abfahren und Deponie werde euch ein vermögen Kosten.
Ich bin mir eben falls nicht sicher ob das mit der Abtragung vom Bauamt so ohne weiteres so genehmigt wird.
Und es durften dennoch nur ca. 2/3 es UGs frei stehen haben bei 2 Vollgeschossen. Befragt euch erst mal beim Bauamt denn es könnte sein das sie in eurem 3 Vollgeschosse anrechnen.
weshalb wollt ihr ein eben erdiges Grundstück? Wäre es nicht sinnvoller eine Hanglage?
Dort Könntet ihr dann das EG ebenerdig erreichen was deiner Beweglichkeit sehr entgegen kommen könnte,und die Garage ans EG setzen.
Den Eingang UG Seitlicher setzen.
Ihr müsstet nicht das ganze Grundstück abgraben, was auch eine enorme Kosten frage darstellt, allein den Aushub abfahren und Deponie werde euch ein vermögen Kosten.
Ich bin mir eben falls nicht sicher ob das mit der Abtragung vom Bauamt so ohne weiteres so genehmigt wird.
Und es durften dennoch nur ca. 2/3 es UGs frei stehen haben bei 2 Vollgeschossen. Befragt euch erst mal beim Bauamt denn es könnte sein das sie in eurem 3 Vollgeschosse anrechnen.
B
Bauexperte11.12.15 23:18Guten Abend,
Das OG hat zwar einen Flur als Verteilzentrum, gleichermaßen wird der Flur auch ein Stück weit privat von den Kindern genutzt werden, bspw. wenn sie sich wechselseitig "besuchen". Wären die Räume der Kinder analog der Einliegerwohnung des UG separiert, hätten sie ihren komplett eigenen Bereich; könnten zum Bleistift nackig über den Flur laufen, ohne damit rechnen zu müssen, daß jemand aus dem EG oder der Einliegerwohnung sie dabei beobachten/stören könnte. Kinder werden ja auch mal älter und haben nächtlichen Besuch 😀
Grüße, Bauexperte

MarcWen schrieb:Das UG hat ganz klar voneinander abgegrenzte Bereiche (Anlage). Einen Dielenbereich, welcher den Zugang in die Wirtschaftsräume, wie auch in die Einliegerwohnung eröffnet. Die Schnittmenge bildet ausschließlich die Diele. Anders ausgedrückt, wer aus dem EG in die Wirtschaftsräume möchte, "stört nicht die Schwiegereltern und umgekehrt.
Was ich nicht ganz verstanden habe, wo du einen Unterschied OG <> UG (siehst).
Das OG hat zwar einen Flur als Verteilzentrum, gleichermaßen wird der Flur auch ein Stück weit privat von den Kindern genutzt werden, bspw. wenn sie sich wechselseitig "besuchen". Wären die Räume der Kinder analog der Einliegerwohnung des UG separiert, hätten sie ihren komplett eigenen Bereich; könnten zum Bleistift nackig über den Flur laufen, ohne damit rechnen zu müssen, daß jemand aus dem EG oder der Einliegerwohnung sie dabei beobachten/stören könnte. Kinder werden ja auch mal älter und haben nächtlichen Besuch 😀
Grüße, Bauexperte
"@w.pickartz: Ich bin Mathematiker und kein Künstler. Wahrscheinlich könnte ich ein Haus mit „a-Grundidee“ nicht von einem Haus ohne unterscheiden, bin aber gerne lernbereit."
Gut! Mathematiker also. Lassen wir jetzt die Diskussion über funktionale Aspekte der Grundrisse beiseite. Vom Architekten wird erwartet, das er rechnen kann. Vom Mathematiker -Achtung! Umkehrschluss! - erwarte ich, daß er sich mit Ästhetik/Schönheit, mit Maß/Zahl/Proportion beschäftigten kann (der goldene Schnitt ! + die Fibonacci-Folge !), über die abstrakte Schönheit der mathematischen Beweisführung hinaus, die es ja in Fachkreisen schon zu einiger Berühmtheit gebracht hat:
"Mathematische Schönheit findet sich hauptsachlich auf drei Ebenen, die sehr eng miteinander verbunden sind:
Einmal auf der Ebene der Überraschung. Die faszinierendsten Beweise sind immer die, die man erst im letzten Satz versteht und dann auch gleich vollständig begreift.
Die zweite Ebene ist die der Eleganz und Klarheit eines mathematischen Ergebnisses. Die Klarheit ist erleichternd und erzeugt das Gefühl, den Sachverhalt zu beherrschen. Oftmals kann der Grad an Eleganz und Klarheit überraschend sein.
Die dritte Ebene ist die der Struktur. Zusammenhänge zwischen Objekten zu erkennen, ist die Triebkraft aller Wissenschaft, und in keiner Wissenschaft wurden wohl so klar und streng Strukturen aufgezeigt, wie in der Mathematik. Diese Ebene ist es, die auf den harmonischen Kosmos und das Transzendente hinweist.
Eine vierte Ebene, die allerdings nicht wissenschaftlich faßbar ist, ist die der mystische Schönheit. Anhänger der Kabbala oder der Numerologie verleihen den mathematischen Objekten, vor allem den 7 natürlichen Zahlen, erweiterte Bedeutung, deren paralleles Zusammenspiel auf mathematischer und erweiterter Ebene eine faszinierende Struktur und damit wieder eine gewisse Schönheit besitzt."
Erklären Sie die Ästhetik des Hausentwurfes, die stringente, innere Logik der Grundrisse und die delikaten proportionalen Maßverhältnisse der Fassade mit den Mitteln Ihrer Wissenschaft und suchen Sie eine eindeutige Antwort auf die elementare Frage: Ist dies ein schönes Haus ?
Gut! Mathematiker also. Lassen wir jetzt die Diskussion über funktionale Aspekte der Grundrisse beiseite. Vom Architekten wird erwartet, das er rechnen kann. Vom Mathematiker -Achtung! Umkehrschluss! - erwarte ich, daß er sich mit Ästhetik/Schönheit, mit Maß/Zahl/Proportion beschäftigten kann (der goldene Schnitt ! + die Fibonacci-Folge !), über die abstrakte Schönheit der mathematischen Beweisführung hinaus, die es ja in Fachkreisen schon zu einiger Berühmtheit gebracht hat:
"Mathematische Schönheit findet sich hauptsachlich auf drei Ebenen, die sehr eng miteinander verbunden sind:
Einmal auf der Ebene der Überraschung. Die faszinierendsten Beweise sind immer die, die man erst im letzten Satz versteht und dann auch gleich vollständig begreift.
Die zweite Ebene ist die der Eleganz und Klarheit eines mathematischen Ergebnisses. Die Klarheit ist erleichternd und erzeugt das Gefühl, den Sachverhalt zu beherrschen. Oftmals kann der Grad an Eleganz und Klarheit überraschend sein.
Die dritte Ebene ist die der Struktur. Zusammenhänge zwischen Objekten zu erkennen, ist die Triebkraft aller Wissenschaft, und in keiner Wissenschaft wurden wohl so klar und streng Strukturen aufgezeigt, wie in der Mathematik. Diese Ebene ist es, die auf den harmonischen Kosmos und das Transzendente hinweist.
Eine vierte Ebene, die allerdings nicht wissenschaftlich faßbar ist, ist die der mystische Schönheit. Anhänger der Kabbala oder der Numerologie verleihen den mathematischen Objekten, vor allem den 7 natürlichen Zahlen, erweiterte Bedeutung, deren paralleles Zusammenspiel auf mathematischer und erweiterter Ebene eine faszinierende Struktur und damit wieder eine gewisse Schönheit besitzt."
Erklären Sie die Ästhetik des Hausentwurfes, die stringente, innere Logik der Grundrisse und die delikaten proportionalen Maßverhältnisse der Fassade mit den Mitteln Ihrer Wissenschaft und suchen Sie eine eindeutige Antwort auf die elementare Frage: Ist dies ein schönes Haus ?
@Polle-1967: Am Anfang waren wir auch mit der Idee Grundstück mit Hang. Problem ist aber meist, der Hang ist meist kontraproduktiv. Dazu ist die Grudstückssuche an sich schwer genug, Größe, Baufenster, Lage, Ausrichtung. Dazu fallen wir bei gut 90% der Bebauungspläne durch. Dann ist das Thema Grundwasser auch nicht zu verachten. Wenn man dann noch in einem überschaubaren Markt (Kölner Umland) sucht, so rückt eine Hanglage sehr weit zurück. Das jetzige Grundstück käme der Planung sehr entgegen, wir müssten kaum abgraben. Wahrscheinlich müssen wir noch Erde ranbringen zum Anfüllen.
EG ebenerdig heißt, man fällt 2,80 Meter ins KG. Die Idee ist, wenn man auf Straßenniveau Null steht, von dort ein halbes Stockwerk nach unten und ein halbes Stockwerk nach oben. UG wird ein Vollgeschoss, beim OG werden wir aufpassen, dass es kein Vollgeschoss wird.
(Grundfläche OG: 7,26 x 13,0 + 2,0 x 0,49 + 4,74 X 13,0 = 156,99 qm
ZULÄSSIG: 156,99 qm x 0,75 = 117,74 qm
SCHNITT BEI 2,30 M LINIE: 117,10 qm (MIT CAD ERMITTELT)
117,10 < 117,74)
@Bauexperte: Aber da beißt sich doch die Katze in den Schwanz. Man wäre im UG nur dann ungestört, wenn Schwiegereltern sich in ihrer Wohnung einschließen. Die Idee ist doch die Gleiche, Flur mit 3 Türen als Verteiler. Man könnte das OG sicher umplanen, dass beide Kinderzimmer so liegen, dass sie untereinander die Einliegerwohnung nicht tangieren. Oder das OG so verplanen, dass es keinen gemeinsamen Verteiler mehr gibt. Das „Problem“ wird aber wenn nur verschoben. Im gemeinsam genutzten Treppenhaus bleibt eben eine Schnittmenge ungleich der Leeren Menge. Wenn also unsere Tochter Nachts nackig durchs Treppenhaus läuft, weil wir ja auf ein Kinderbad verzichtet haben, könnte Sie im Treppenhaus auf unseren Mieter(in) treffen.
@w.pickartz: Eine wirklich interessante Ausführung, gefällt mir gut (das meine ich ehrlich). Aber anders gefragt, was bringt es mir in der Praxis. Wenn ich jetzt behaupten würde, Die Fenster EG Gäste-WC, Bad und Büro stehen im gleichen Abstand/Verhältnis wie die Erde zum Mond und Sonne, so würden 50% der Leser hier sagen, aha, ist mir gar nicht aufgefallen und 50% sagen, toll, damit habt ihr Nachts auch nicht mehr Licht im Haus. Die Frage, ist dies ein schönes Haus, kann ich so nicht beantworten, dafür fehlt mir die Definition von „schön“. Ich kann aber sehr genau sagen, was mir gefällt, was mir nicht gefällt, und was mit soweit „egal“ ist. Wir sind an das Thema anders ran gegangen und haben unsere Ideen soweit geplant, Etagen u.a. in Excel. Hatten das Treppenhaus mittig, leicht nach vorne gesetzt, dann im OG versucht, hier Licht reinzubringen. Ansonsten Haus rechteckig, Satteldach, schlicht. Zum einen wegen den Kosten, zum anderen sind die Nachbargebäude auch recht schlicht. Dagegen im Vergleich gefällt uns der aktuelle Entwurf sehr gut. Die Idee mit dem gemeinsamen Verteiler links (spart unnötig Flure) oder den so geschaffenen Eingangsbereich im EG, wo man eine überdachte Fläche gewinnt ohne später sich Gedanken zu machen, wie bekommt man vernünftig ein Dach an die Hauswand, ohne im Regen stehen zu müssen oder das die Briefkästen ständig nass werden. Den Ausbau im Osten hat meine Frau gedanklich schon angemalt oder verklinkert. K.A. ob wir im Außenbild noch was absetzen.
EG ebenerdig heißt, man fällt 2,80 Meter ins KG. Die Idee ist, wenn man auf Straßenniveau Null steht, von dort ein halbes Stockwerk nach unten und ein halbes Stockwerk nach oben. UG wird ein Vollgeschoss, beim OG werden wir aufpassen, dass es kein Vollgeschoss wird.
(Grundfläche OG: 7,26 x 13,0 + 2,0 x 0,49 + 4,74 X 13,0 = 156,99 qm
ZULÄSSIG: 156,99 qm x 0,75 = 117,74 qm
SCHNITT BEI 2,30 M LINIE: 117,10 qm (MIT CAD ERMITTELT)
117,10 < 117,74)
@Bauexperte: Aber da beißt sich doch die Katze in den Schwanz. Man wäre im UG nur dann ungestört, wenn Schwiegereltern sich in ihrer Wohnung einschließen. Die Idee ist doch die Gleiche, Flur mit 3 Türen als Verteiler. Man könnte das OG sicher umplanen, dass beide Kinderzimmer so liegen, dass sie untereinander die Einliegerwohnung nicht tangieren. Oder das OG so verplanen, dass es keinen gemeinsamen Verteiler mehr gibt. Das „Problem“ wird aber wenn nur verschoben. Im gemeinsam genutzten Treppenhaus bleibt eben eine Schnittmenge ungleich der Leeren Menge. Wenn also unsere Tochter Nachts nackig durchs Treppenhaus läuft, weil wir ja auf ein Kinderbad verzichtet haben, könnte Sie im Treppenhaus auf unseren Mieter(in) treffen.
@w.pickartz: Eine wirklich interessante Ausführung, gefällt mir gut (das meine ich ehrlich). Aber anders gefragt, was bringt es mir in der Praxis. Wenn ich jetzt behaupten würde, Die Fenster EG Gäste-WC, Bad und Büro stehen im gleichen Abstand/Verhältnis wie die Erde zum Mond und Sonne, so würden 50% der Leser hier sagen, aha, ist mir gar nicht aufgefallen und 50% sagen, toll, damit habt ihr Nachts auch nicht mehr Licht im Haus. Die Frage, ist dies ein schönes Haus, kann ich so nicht beantworten, dafür fehlt mir die Definition von „schön“. Ich kann aber sehr genau sagen, was mir gefällt, was mir nicht gefällt, und was mit soweit „egal“ ist. Wir sind an das Thema anders ran gegangen und haben unsere Ideen soweit geplant, Etagen u.a. in Excel. Hatten das Treppenhaus mittig, leicht nach vorne gesetzt, dann im OG versucht, hier Licht reinzubringen. Ansonsten Haus rechteckig, Satteldach, schlicht. Zum einen wegen den Kosten, zum anderen sind die Nachbargebäude auch recht schlicht. Dagegen im Vergleich gefällt uns der aktuelle Entwurf sehr gut. Die Idee mit dem gemeinsamen Verteiler links (spart unnötig Flure) oder den so geschaffenen Eingangsbereich im EG, wo man eine überdachte Fläche gewinnt ohne später sich Gedanken zu machen, wie bekommt man vernünftig ein Dach an die Hauswand, ohne im Regen stehen zu müssen oder das die Briefkästen ständig nass werden. Den Ausbau im Osten hat meine Frau gedanklich schon angemalt oder verklinkert. K.A. ob wir im Außenbild noch was absetzen.
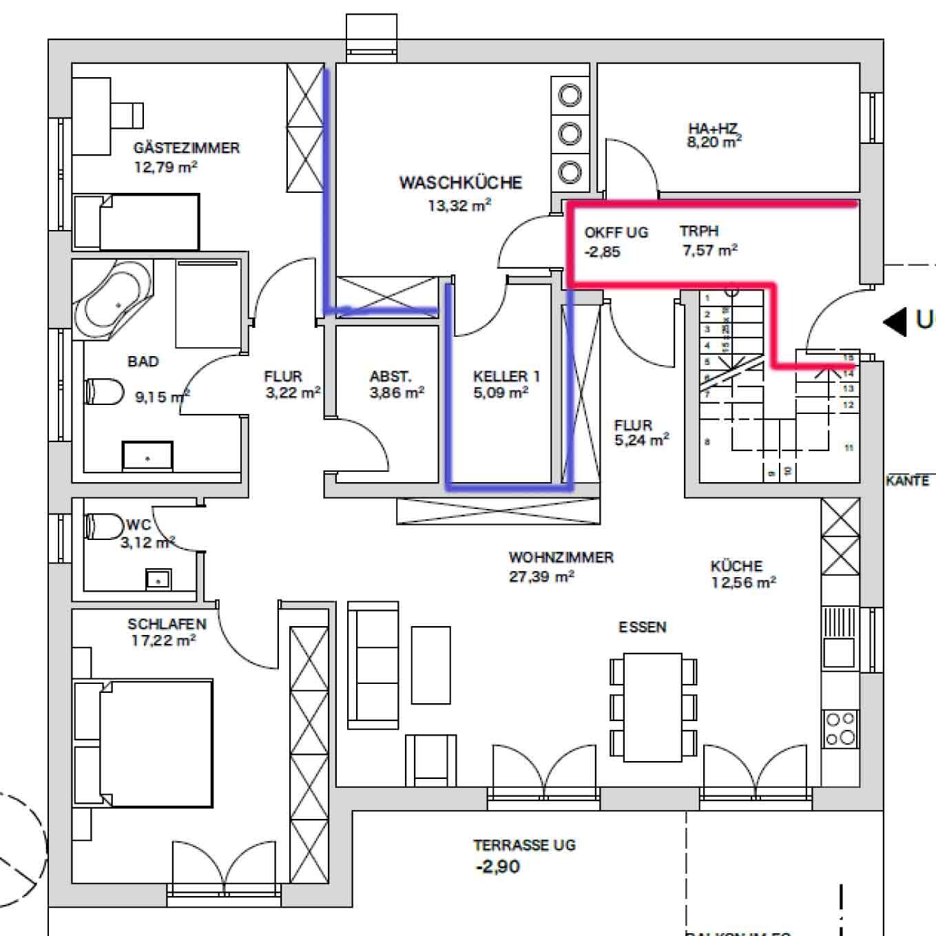
Hier auf Wunsch noch mal ein kleines Update und die aktuellen Pläne.
Grundbuchumtragung war letzte Woche, wir sind nun also offiziell Eigentümer. Baugenehmigung liegt leider noch nicht vor, wir warten hier täglich darauf, damit es endlich weiter gehen kann.
Anbei auch mal die aktuellen Planzahlen:
Im Anhang der Lageplan, Nordansicht mit Geländeverlauf und die Etagenpläne UG, EG und OG:
Grundbuchumtragung war letzte Woche, wir sind nun also offiziell Eigentümer. Baugenehmigung liegt leider noch nicht vor, wir warten hier täglich darauf, damit es endlich weiter gehen kann.
Anbei auch mal die aktuellen Planzahlen:
- Berechnung der Wohn- und Nutzflächen nach DIN 283 u. II.BVO: Nutzfläche gesamt: 55 qm, Wohnfläche gesamt: 322 qm
- Bruttorauminhalt: 1.500 cbm Wohnhaus, 165 cbm Garage
- Bäder bzw. Versorgungsschächte werden noch vernünftig geplant
- der Gesetzgeber schreibt für das EG vor, dass der Zugang max 6% Steigung/Gefälle haben darf. Der Weg wird also entweder im Vorgarten integriert oder wir planen einen Treppenlift/Hebebühne an der Treppe. Es wird also keine riesen Rampe dahin kommen
- Im UG wird es nach Süden eine große Terrasse geben, ca. 4 x 10 Meter, zum teil überdacht durch unseren Balkon im Osten. Ferner natürlich Zugang zum Garten. Da hier Schwiegereltern (Familie) einziehen, wird der Keller (Waschküche) gemeinsam genutzt. Ferner natürlich auch beim Garten/Terrasse keine starre Trennung. Aber trotzdem war uns auch eine klare Abgrenzung wichtig.
- Wir im EG werden über unseren Westbalkon einen vernünftigen Gartenzugang planen, keine Wendeltreppe. Am liebsten ebenerdig. Wir haben hier im Süd/Westen ca. 800 qm Grundstück jungfräulich zur Planung und Nutzung. Genaue Pläne gibt es hier noch nicht, da brauchen wir noch Input bzw. wohl einen Gartenarchitekten. Geplant natürlich eine Terrasse, Grillecke, Spielbereich und Garten (pflegeleicht)
- Die Einliegerwohnung im DG wird sicher fremd vermietet. Wie genau, wissen wir noch nicht. Über Freunde wissen wir u.a., dass gerade im Köln-Bonner Einzug viele Bundeswehrangehörige Einliegerwohnung über die Woche suchen. Hier haben wir aber eine klare Trennung vorgesehen, Waschmaschine ins Bad, Balkon vorhanden, keine Kellernutzung vorgesehen. Ob wir Garten mit anbieten hängt dann sicher auch von der Sympathie und Mieter ab.
Im Anhang der Lageplan, Nordansicht mit Geländeverlauf und die Etagenpläne UG, EG und OG:
Ähnliche Themen