ᐅ Lichtschächte für Kellerwohnung - Mögliche Realisierungsmodelle
Erstellt am: 07.01.25 17:00
G
goldfisch138G
goldfisch13807.01.25 17:00Hallo zusammen,
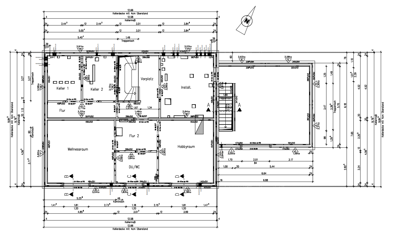
wir sind gerade dabei Lichtschächte für unsere Kellerwohnung zu planen. Wir haben eine Einliegerwohnung im Keller eingeplant und möchten nun die Lichtschächte für die Wohnung setzen. Hierbei gibt es für uns unterschiedliche Ansätze diese zu setzen. Gleich vorweg: Die Kellerwohnung wird nicht über eine Tür im Keller selbst erreicht sondern über das Treppenhaus des Haupthauses. Wir haben uns gerade auch aus Gründen der Dichtigkeit gegen einen direkten Zugang zur Kellerwohnung entschieden. Hier zur Orientierung noch der Kellerplan:

Aktueller Stand der Dinge ist folgender (natürlich muss noch die Bitumendeckschicht, Dämmmaterial etc. aufgebracht werden sowie die Noppenbahn über die Dämmung gezogen werden. Es geht hier nun um die Möglichkeiten für die Realisierung des Lichtgrabens und evtl. Erfahrungen eurerseits.
Hier ein aktuelles Bild der Baustelle:

Wir haben seitens Kellerwand ca. 4m Platz bis zur Hofeinfahrt, weshalb die beiden Grundstücke voneinander trennt (beide in meinem Besitz) - zweiteres unbebaut. Auf der Seite der Zisterne wird später der Balkon sein. Der Graben wird über eine Drainage an den großen Ringschacht angeschlossen, um das Regenwasser abzuleiten. Ich würde gerne noch an den Lichtschächten durchlaufen können und im besten Fall noch einen kleinen Grünstreifen haben, an welchen ich später entlang der Hofeinfahrt noch einen Zaun ziehen kann.
Meine aktuelle Idee wäre ein durchgezogener Lichtgraben entlang der 3 Kellerfenster, da drei unterbrochene Lichtgräben optisch mM nach nicht passen. Eine Überlegung war auch die Lichtgräben nicht bündig mit der Rasenfläche sondern etwas höher zu ziehen (mit L-Steinen), um eine gewisse Sicherheit zu gewährleisten. Vermutlich gibt es hier auch noch eine Bestimmung, welche regelt, dass ein Geländer o.Ä. verbaut werden muss.

Es ergeben sich folgende zentrale Fragestellungen:
- Gibt es Gründe, welche gegen einen durchgezogenen Lichtgraben sprechen? (Gefahr bei Starkregen o.Ä.)
- Mit welcher Breite muss gerechnet werden, um noch ausreichend Licht für die Kellerfenster zur Verfügung zu stellen? (Kellerfenster liegen Richtung SO)
- Habt ihr Erfahrungsberichte, welche Lösungen keinen Sinn machen oder ggf. gute Ideen
Danke euch vorab.
Gruß
Goldfisch138

wir sind gerade dabei Lichtschächte für unsere Kellerwohnung zu planen. Wir haben eine Einliegerwohnung im Keller eingeplant und möchten nun die Lichtschächte für die Wohnung setzen. Hierbei gibt es für uns unterschiedliche Ansätze diese zu setzen. Gleich vorweg: Die Kellerwohnung wird nicht über eine Tür im Keller selbst erreicht sondern über das Treppenhaus des Haupthauses. Wir haben uns gerade auch aus Gründen der Dichtigkeit gegen einen direkten Zugang zur Kellerwohnung entschieden. Hier zur Orientierung noch der Kellerplan:
Aktueller Stand der Dinge ist folgender (natürlich muss noch die Bitumendeckschicht, Dämmmaterial etc. aufgebracht werden sowie die Noppenbahn über die Dämmung gezogen werden. Es geht hier nun um die Möglichkeiten für die Realisierung des Lichtgrabens und evtl. Erfahrungen eurerseits.
Hier ein aktuelles Bild der Baustelle:
Wir haben seitens Kellerwand ca. 4m Platz bis zur Hofeinfahrt, weshalb die beiden Grundstücke voneinander trennt (beide in meinem Besitz) - zweiteres unbebaut. Auf der Seite der Zisterne wird später der Balkon sein. Der Graben wird über eine Drainage an den großen Ringschacht angeschlossen, um das Regenwasser abzuleiten. Ich würde gerne noch an den Lichtschächten durchlaufen können und im besten Fall noch einen kleinen Grünstreifen haben, an welchen ich später entlang der Hofeinfahrt noch einen Zaun ziehen kann.
Meine aktuelle Idee wäre ein durchgezogener Lichtgraben entlang der 3 Kellerfenster, da drei unterbrochene Lichtgräben optisch mM nach nicht passen. Eine Überlegung war auch die Lichtgräben nicht bündig mit der Rasenfläche sondern etwas höher zu ziehen (mit L-Steinen), um eine gewisse Sicherheit zu gewährleisten. Vermutlich gibt es hier auch noch eine Bestimmung, welche regelt, dass ein Geländer o.Ä. verbaut werden muss.
Es ergeben sich folgende zentrale Fragestellungen:
- Gibt es Gründe, welche gegen einen durchgezogenen Lichtgraben sprechen? (Gefahr bei Starkregen o.Ä.)
- Mit welcher Breite muss gerechnet werden, um noch ausreichend Licht für die Kellerfenster zur Verfügung zu stellen? (Kellerfenster liegen Richtung SO)
- Habt ihr Erfahrungsberichte, welche Lösungen keinen Sinn machen oder ggf. gute Ideen
Danke euch vorab.
Gruß
Goldfisch138
goldfisch138 schrieb:
Meine aktuelle Idee wäre ein durchgezogener Lichtgraben entlang der 3 Kellerfenster,Ich hätte jetzt gedacht, dass die Regeln für einen Lichtgraben konform mit denen der Erker sind, also hinsichtlich Abstandsregeln und nur bis zu einer bestimmten Länge im Verhältnis zum Haus, außer es ist explizit beantragt und genehmigt.W
wiltshire07.01.25 20:14goldfisch138 schrieb:
Es ergeben sich folgende zentrale Fragestellungen:
- Gibt es Gründe, welche gegen einen durchgezogenen Lichtgraben sprechen? (Gefahr bei Starkregen o.Ä.)
- Mit welcher Breite muss gerechnet werden, um noch ausreichend Licht für die Kellerfenster zur Verfügung zu stellen? (Kellerfenster liegen Richtung SO)
- Habt ihr Erfahrungsberichte, welche Lösungen keinen Sinn machen oder ggf. gute IdeenEs gibt keine technischen Gründe, die dagegen sprechen. Wasser kann abgeführt werden - das ist eine Sache der sorgfältigen Planung und Ausführung.Die Menge des einfallenden Lichts hat nicht nur mit der Breite zu tun, sondern auch mit dem Böschungswinkel. Je flacher, desto mehr Licht. Allerdings nimmt das dann auch mehr Platz ein.
Dein Musterfoto ist recht ansprechend - dort fehlt eine Absturzsicherung. Eine Alternative wäre es das Gelände deutlich weiträumiger zu modellieren und in einem "Schwung" zu denken und gleich einen ganzen Teil des Gartens "tiefer zu legen". Ist allerdings teuer, wenn es schön und gut werden soll. Gute Ideen für solche Situationen steuert eher ein garten und Landschaftsbauer bei als eine Hausbaufirma. Frag mal in der Gegend rum.
goldfisch138 schrieb:
wir sind gerade dabei Lichtschächte für unsere Kellerwohnung zu planen. Wir haben eine Einliegerwohnung im Keller eingeplant und möchten nun die Lichtschächte für die Wohnung setzen. Hierbei gibt es für uns unterschiedliche Ansätze diese zu setzen. Gleich vorweg: Die Kellerwohnung wird nicht über eine Tür im Keller selbst erreicht sondern über das Treppenhaus des Haupthauses.Einen Spa-Bereich als Einliegerwohnung hatten wir hier meines Erinnerns noch nicht. Ich staune anhaltend erschrocken, wie umfangreich hier "während der Fahrt geplant" wird - auch wenn jedes Kind weiß, daß das stets einen happigen Zuschlag kostet.hanse987 schrieb:
Was mich an der ganzen Sachen wundert. Da steht der komplette Keller schon und dann fängt man erst mit der Planung von grundlegenden Sachen an. Hast du dir in Detailplanung keine Gedanken darüber gemacht?kbt09 schrieb:
Was hier völlig fehlt, ist die Einzeichnung des Hausgrundrisses auf das vermaßte Grundstück. Da kann man dann auf die Vermaßungen des Hausgrundrisses verzichten.Das kennen wir doch bereits aus dem Garagen-im-Bau-Ausbeulungsthread https://www.hausbau-forum.de/threads/doppelgarage-fuer-2-fahrzeuge-mit-anschliessendem-carport.48511/ - da steht die Einordnung ins Grundstück immerhin im Eröffnungsbeitrag.https://www.instagram.com/11antgmxde/
https://www.linkedin.com/company/bauen-jetzt/
Ähnliche Themen