Hausbau - Ratgeber
Bauherrenhilfe
- Bauherrenhilfe vor Vertragsabschluss
-- Warum einen unabhängigen Baubetreuer?
-- Vertragsgrundlagen
-- Bausumme
-- Zahlungsplan zur Kostenkontrolle
-- Pflichten des Bauherren vor Vertragsabschluss
-- Unterlagen beim Hausbau vor Vertragsabschluss
- Bauherrenhilfe nach Vertragsabschluss
-- Bauantrag bei Behörden
-- Bau-Genehmigungsverfahren bei Baubehörden
-- Bauspezifische Versicherungen
-- Bauzeitenplan
-- Baubeginn - die Letzten Pflichten der Bauherrschaft
- Bauherrenhilfe während der Bauzeit
- Gewährleistungsansprüche
- Bauabnahme
Baufinanzierung
- Baufinanzierung - Allgemeine Fragen
- Kreditarten
- Kredit-Konditionen
- Bausparen
- Staatliche Förderungen
- Verkehrswert
- Haushaltsrechnung und Bonität
Hausbau Planung
- Haustypen
- Hausbau Vorbereitungsarbeiten
- Das Baugrundstück
- Baugrund beim Hausbau
- Baurecht
- Gebäudeschutz
- Erdarbeiten und Wasserhaltung
- Stützmauern
- Einfriedung
- Untergeschoss
- Kanalisation
- Tragende Elemente
- Nichttragende Innenwände
- Fundation / Fundament
- Deckenkonstruktionen
- Dächer
- Kaminanlagen
- Treppen Rampen Leitern
- Dachbeläge und Spengler
- Fenster
- Sonnen und Wetterschutz
- Aussenputze
- Einbauten, Küchen, Türen
- Bodenbeläge und Unterlagsböden
- Parkett
- Gips, Wand, Decke
Haustechnik und Energie
- Heiztechnik
- Lüftung und Klimatechnik
- Sanitärtechnik
- Elektrotechnik
- Erneuerbare Energie
Whirlpools / Jacuzzi
Hausbau Magazin
- Baufinanzierung trotz Krise?
- Das Blockhaus
- Moderne Dämmstoffe im Vergleich
- Erker Vor- und Nachteile
- Glasflächen beim Hausbau
- Günstig ein Haus Bauen
- Mediterraner Hausbaustil
- Mehrgenerationenhaus
- Moderne Architektur
- Gartengestaltung leicht gemacht
- Traditioneller Ziegelbau
- Villa als höchster Traum
- Im Eigenheim Ruhestand geniessen
- Altbau sanieren
- Kauf einer Holzgarage
- Immobilienmakler
- Arbeitshandschuhe für den Winter
- Zuhause verschönern
- Outdoor-Plissees
- Schlafzimmer planen
- Terrassenüberdachung
- Wohngebäudeversicherung
- Girokonto für Bauherren finden
- Hauseingang gestalten
- Zaunarten und Eigenschaften
- Der perfekte Grundriss
- Sparsamer heizen im Altbau
- Einfamilienhaus smart finanzieren
- Planung einer PV-Anlage
- Neues Haus
- Immobilienfinanzierung
- Installation einer Photovoltaikanlage
- Asbest erkennen und entfernen
- Gartenpflege im Frühling – worauf achten
- Sauna im Fokus - Wellness zuhause
- Erfolgreich vermieten
- Die perfekte Winterbekleidung
- Das Niedrigenergiehaus
- Der April und seine Stürme
- Architektonische Vielfalt
- Ökologisch und nachhaltig bauen
- Das perfekte Schlafzimmer
- Nachhaltige Energieversorgung
- Zukunftsorientiert bauen
- Nachhaltigkeit beim Hausbau
- Tiny Houses
- Wärmepumpen als nachhaltige Heizvariante
- Maßgeschneiderten Kleiderschrank
- Der richtige Baukredit
- Ratgeber für erfolgreichen Hausbau
- Haus als Altersvorsorge
Do-it-yourself Anleitungen
- Verlegeanleitung für Bodenbeläge und Parkett
- Bodenbeläge und Parkett reinigen und pflegen
- Malerarbeiten am Haus
- Garten Tipps
- Umzug und Reinigung

ᐅ Lichtplanung und Grundriss Doppelhaushälfte

Erstellt am: 26.02.17 23:03
M
MarkussukraM
Hallo Zusammen,

ich möchte gerne mein Grundriss und vor allem meine Lichtplanung zur Diskussion stellen.
Es handelt sich um eine Doppelhaushälfte mit ca 10x6m Grundfläche.
Oben im Plan ist Westen, Schiebetüre Richtung Süden.
sofa wird weiter nach mittig zur Schiebetüre nach oben gerückt, das ist im Plan noch nicht gezeichnet.
Küche ist noch nicht genau geplant. Daneben der Wäscheabwurfschacht.

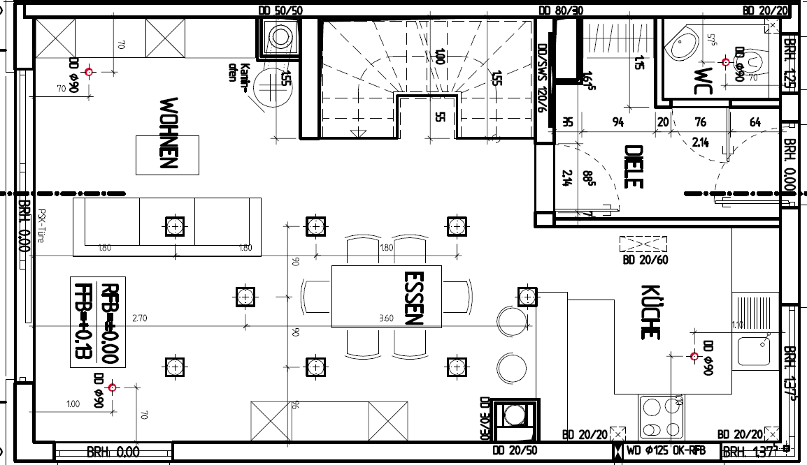
Zur Grundbeleuchtung im Wohnzimmer/Esszimmer dachte ich mir ca 6 Betondosen 10x10cm mit LED Strahlern mit weitem Abstrahlwinkel. Abstand 1,6m und 1,36m zur Wand und zueinander, siehe Bild. Am Esstisch und evtl. im Wohnzimmer kommen 2 Hängelampen hinzu. Später möchte ich eine schmale Lichtvoute oben und Links entlang der Schiebetüre mit Spots und LED Bändern installieren. In der Küche ebenfalls.
Treppe bekommt noch einen Wandstrahler und Bodenbeleuchtung.

Frage ist:
-Sind Deckeneinbauleuchten geeignet für Hintergrundbeleuchtung?
-Ist die Verteilung sinnvoll?

WC ist mit 1,05x 140cm sehr klein zugunsten einer Schrankbreite vom 1m in der Diele. Die Türe ist schmal. Sind die Masse praktikabel?

Herzlichen Dank für alle Anregungen und Kritik
K
kbt09
01.03.17 22:03


kann das sein, dass der zu öffnende Teil der Terrassentür zwischen sofa und Fernsehwand ist?

Und, überhaupt, mit welcher Größer hast du den Tisch eingezeichnet? Auf den Stühlen darf man auch nicht richtig sitzen, weil man dann an das Möbel stößt oder an die Küchenhalbinsel, wo auch noch mal Stühle stehen. Da kommt man ja von der Küche kaum noch Richtung Terrasse.

Und, was soll das Licht mitten in der Küche? Wie werden die Arbeitsplatten beleuchtet? Insbesondere im Bereich der Fenster?
Y
ypg
01.03.17 22:20
Ich versteh es nicht: die Doppelhaushälfte ist 6 Meter breit, das Sofa steht in etwa mittig, und Du schreibst, dass der TV vom Sofa ca. 4,5 Meter entfernt steht?



Gruß, Yvonne
K
kbt09
01.03.17 22:41
@ypg .. ich glaube, da meinte er den Architekten-Möblierungsvorschlag, der zusätzlich in Beitrag 2 anhängt, der aber grundsätzlich luftiger ist und bessere Wege durch den Raum ermöglicht. Das Innenmaß ist auch nur 543 cm.
Y
ypg
01.03.17 23:05
kbt09 schrieb:
@ypg .. ich glaube, da meinte er den Architekten-Möblierungsvorschlag, der zusätzlich in Beitrag 2 anhängt, der aber grundsätzlich luftiger ist und bessere Wege durch den Raum ermöglicht. Das Innenmaß ist auch nur 543 cm.

Ja klar, unten ist die zweite Zeichnung von #2 und nicht "im Post unten"


Gruß, Yvonne
M
MarkussukraM
02.03.17 23:22
Hier noch mal ein neues Bild.

Grundriss eines Apartments: Offenes Wohnen, Essen und Küche mit Insel; Bad und WC.



@ybt: Terrassentür wird unten geöffnet.
Küche soll keine Stühle bekommen, das wird sonst zu viel. Sofa kann noch mal etwas nach oben versetzt werden. Ich habe mich umgeschaut, ein Sofa mitten im Raum kann als Raumteiler fungieren und mit schönem Rücken sieht das auch gut aus.
Küche soll abgehängt werden. Das Kabel ist nur mal Zuleitung gedacht. Genauere Planung der Deckenspots kommt später. Genauso die Lichtleiste und Spots entlang vom Fernseher und der Schiebetür.

Die beiden Dosen auf der Mittellinie sind für Präsenzmelder mit mehreren Zonen. Sie sollen erkennen ob sich jemand im Wohnbereich, Essbereich oder in der Küche befindet. Den rechten werde ich noch etwas weiter rechts schieben lassen.
J
j.bautsch
03.03.17 07:27
für was ist denn der leere Raum hinterm Sofa gedacht? nur als durchgangsflur zur Terrasse? wenn ja erscheint mir das ein recht teurer und großzügiger Flur zu werden
sofakücheterrassentür