Hausbau - Ratgeber
Bauherrenhilfe
- Bauherrenhilfe vor Vertragsabschluss
-- Warum einen unabhängigen Baubetreuer?
-- Vertragsgrundlagen
-- Bausumme
-- Zahlungsplan zur Kostenkontrolle
-- Pflichten des Bauherren vor Vertragsabschluss
-- Unterlagen beim Hausbau vor Vertragsabschluss
- Bauherrenhilfe nach Vertragsabschluss
-- Bauantrag bei Behörden
-- Bau-Genehmigungsverfahren bei Baubehörden
-- Bauspezifische Versicherungen
-- Bauzeitenplan
-- Baubeginn - die Letzten Pflichten der Bauherrschaft
- Bauherrenhilfe während der Bauzeit
- Gewährleistungsansprüche
- Bauabnahme
Baufinanzierung
- Baufinanzierung - Allgemeine Fragen
- Kreditarten
- Kredit-Konditionen
- Bausparen
- Staatliche Förderungen
- Verkehrswert
- Haushaltsrechnung und Bonität
Hausbau Planung
- Haustypen
- Hausbau Vorbereitungsarbeiten
- Das Baugrundstück
- Baugrund beim Hausbau
- Baurecht
- Gebäudeschutz
- Erdarbeiten und Wasserhaltung
- Stützmauern
- Einfriedung
- Untergeschoss
- Kanalisation
- Tragende Elemente
- Nichttragende Innenwände
- Fundation / Fundament
- Deckenkonstruktionen
- Dächer
- Kaminanlagen
- Treppen Rampen Leitern
- Dachbeläge und Spengler
- Fenster
- Sonnen und Wetterschutz
- Aussenputze
- Einbauten, Küchen, Türen
- Bodenbeläge und Unterlagsböden
- Parkett
- Gips, Wand, Decke
Haustechnik und Energie
- Heiztechnik
- Lüftung und Klimatechnik
- Sanitärtechnik
- Elektrotechnik
- Erneuerbare Energie
Whirlpools / Jacuzzi
Hausbau Magazin
- Baufinanzierung trotz Krise?
- Das Blockhaus
- Moderne Dämmstoffe im Vergleich
- Erker Vor- und Nachteile
- Glasflächen beim Hausbau
- Günstig ein Haus Bauen
- Mediterraner Hausbaustil
- Mehrgenerationenhaus
- Moderne Architektur
- Gartengestaltung leicht gemacht
- Traditioneller Ziegelbau
- Villa als höchster Traum
- Im Eigenheim Ruhestand geniessen
- Altbau sanieren
- Kauf einer Holzgarage
- Immobilienmakler
- Arbeitshandschuhe für den Winter
- Zuhause verschönern
- Outdoor-Plissees
- Schlafzimmer planen
- Terrassenüberdachung
- Wohngebäudeversicherung
- Zaunarten und Eigenschaften
- Hauseingang gestalten
- Der perfekte Grundriss
- Sparsamer heizen im Altbau
- Einfamilienhaus smart finanzieren
- Planung einer PV-Anlage
- Neues Haus
- Immobilienfinanzierung
- Installation einer Photovoltaikanlage
- Asbest erkennen und entfernen
- Gartenpflege im Frühling – worauf achten
- Sauna im Fokus - Wellness zuhause
- Erfolgreich vermieten
- Die perfekte Winterbekleidung
- Das Niedrigenergiehaus
- Der April und seine Stürme
- Architektonische Vielfalt
- Ökologisch und nachhaltig bauen
- Das perfekte Schlafzimmer
- Nachhaltige Energieversorgung
- Zukunftsorientiert bauen
- Nachhaltigkeit beim Hausbau
- Tiny Houses
- Wärmepumpen als nachhaltige Heizvariante
- Maßgeschneiderten Kleiderschrank
- Der richtige Baukredit
- Ratgeber für erfolgreichen Hausbau
- Haus als Altersvorsorge
Do-it-yourself Anleitungen
- Verlegeanleitung für Bodenbeläge und Parkett
- Bodenbeläge und Parkett reinigen und pflegen
- Malerarbeiten am Haus
- Garten Tipps
- Umzug und Reinigung

ᐅ Leerrohre auf Grundstück - Ideen? - Noch ist es nicht zu spät :)

Erstellt am: 24.04.19 13:15
E
EdStark
E
EdStark
24.04.19 13:15
Hallo Hausbaufreunde,

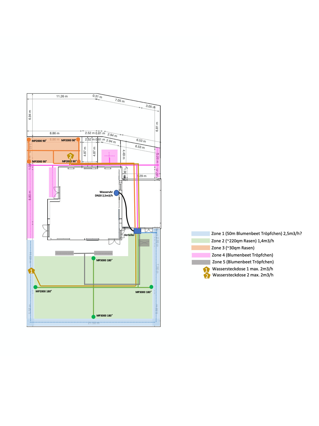
mein Tiefbauer fängt jetzt mit den Bodenarbeiten an (Kiesplatte für das Haus und Garage). Da er die Kiesplatte bis an die Grenze macht, fürchte ich wird es eng mit Stromleitung zu dem Vorder- und Hintergarten. Weiterhin plane ich eine Bewässerungsanlage und die Wasserschläuche müssen entsprechend verteilt werden. Macht es Sinn vom Tiefbauer direkt Leerrohre legen zu lassen in die ich Strom Erdkabel und Wasserschlauch (PE) verlegen kann später ohne erneut ausbuddeln zu müssen? Mir geht es um die Stellen wo kein Mutterboden darauf kommt, wie Garage und Einfahrt.
Habt ihr noch Tipps was ich jetzt noch umsetzen kann?

Das Haus ist ohne Keller und die Garage mit Streifenfundament ohne Bodenplatte.

Danke euch.
R
rick2018
24.04.19 20:53
Unter die Bereiche an die du später nicht mehr rankommst musst du natürlich die Rohre gleich verlegen (Strom, Wasser, Steuerung).
Wo du überall Strom bzw. einzeln Schaltkreise benötigst kannst nur du wissen. Kennen ja keine Pläne.
Wichtig sind die entsprechenden Durchführungen vom Haus bis an eine Stelle wo du rankommst.
Bezüglich deiner Bewässerung wirst du eh noch buddeln müssen. Hast du schon eine fertige Bewässerungsplanung (Anzahl Kreise, Anzahl Verteiler und Position, Anzahl und Position Regner, Tröpfchen- und Wurzelbewässerung....)? Wie wird die Bewässerung gespeist? Pumpe bring ordentlich Volumen? Wo sitzt der Bewässerungscomputer? Zu diesem musst du von jedem Verteiler auch der Steuerleitungen hinziehen. Diese gleich einplanen. Eventuelle Durchführungen...
Da du nach dem Bau den Boden wieder auflockern musst kannst du dabei auch mit der Grabenfräse die Gräben ziehen.
Ich empfehle dir die Hunter Rotatoren mit druckkompensierenden Gehäuse. Bitte nicht Gardena.
Y
ypg
24.04.19 21:06
Erklärt mal einer Frau die Bauwelt!
Sie sagt: Es geht ja alles später vom Zähler ab, entsprechend hat das doch all nichts mit der Bodenplatte zu tun. Alles andere ist in der Bodenplatte „verplant“.
Was die E-Werke oder Telekom für Leitungen wo legen wollen, steht ja in einem ganz anderen Kontext als der Bauherr so will.
R
rick2018
24.04.19 21:18
Sie schreibt von Wasserschläuchen (PE). Hier gehe ich von Bewässerungsleitungen aus.
Das muss nicht zwangsläufig vom Zähler aus sein sondern z.B. Zisterne.
Verteiler sind meist (und auch sinnvoller Weise) auf dem Grundstück verteilt.
Es gibt eine Hauptleitung mit der die Verteilerkästen angefahren werden und von dort aus unterverteilt wird.
In der Bauphase würde ich auch eher alles durch Mehrsparten führen. Lieber ein Leerrohr zu viel als zu wenig.
Ganz nach Nordlys "haben ist besser als brauchen".
Y
ypg
24.04.19 21:32
rick2018 schrieb:

Sie schreibt von Wasserschläuchen (PE). Hier gehe ich von Bewässerungsleitungen aus.
Das muss nicht zwangsläufig vom Zähler aus sein sondern z.B. Zisterne.
Verteiler sind meist (und auch sinnvoller Weise) auf dem Grundstück verteilt.
Es gibt eine Hauptleitung mit der die Verteilerkästen angefahren werden und von dort aus unterverteilt wird.
In der Bauphase würde ich auch eher alles durch Mehrsparten führen. Lieber ein Leerrohr zu viel als zu wenig.
Ganz nach Nordlys "haben ist besser als brauchen".

Aber das kommt doch später, nach Baustrasse und Bodenplatte... unter der Bodenplatte wird nichts verlegt. Zisternen machen später einen Sinn, wenn die Fallrohre gelegt werden.
R
rick2018
24.04.19 21:40
Ich glaube wir missverstehen uns gerade.
Ich hatte ja geschrieben. Bewässerung auf Gelände später.
Zuleitungen, Steuerleitungen, Strom usw. was ins Haus rein oder raus muss gleich einplanen. Am besten Mehrsparten oder später Kernbohrungen. Bei einem Haus ohne Hang oder Keller macht es Sinn dies durch die Bodenplatte zu legen. Ansonsten schwerere zu Verstecken da man über Boden rausfährt.
bodenplattestromgaragebewässerungverteilertiefbauerkellersteuerleitungenzählermehrsparten