ᐅ L-Bungalow mit 120qm - Aufteilung etc.?
Erstellt am: 20.07.19 09:02
A
allstar8320.07.19 09:02Hallo zusammen,
wir planen gerade einen L-Bungalow mit nachfolgenden Daten.
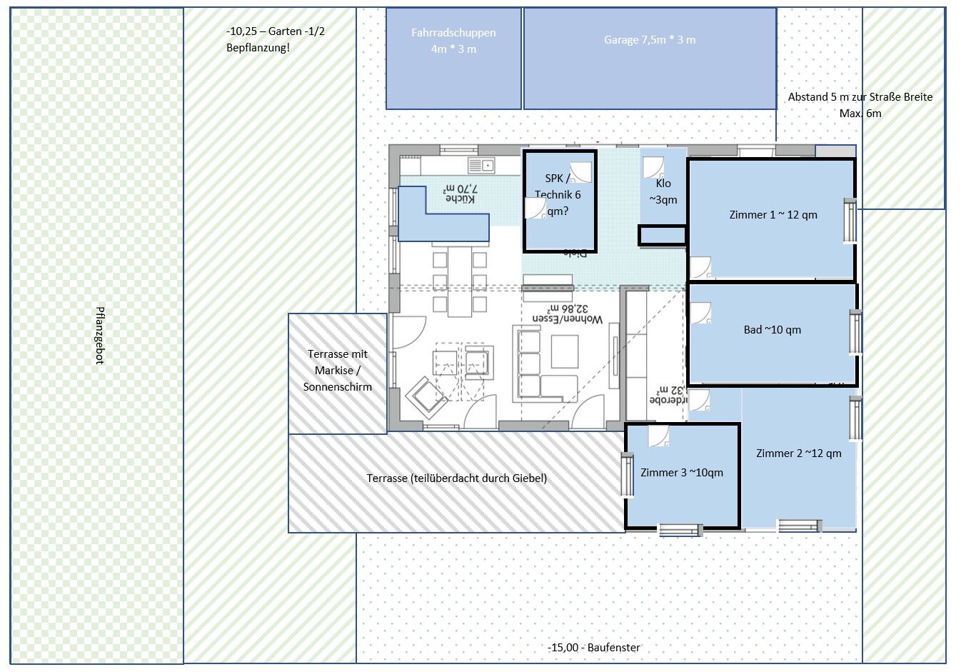
-->Super wären hier ein paar kritische Meinungen zum aktuellen (eigenen) Entwurf (Bild 1).
Dieser ist auf Grundlage des Town & Country Perfect 111 Bungalows (siehe Bild 2)
Durch die vorgegebene Gradzahl und die Dachform würde sich wohl eine Bühne ergeben - hier kann ich leider auch noch nicht einschätzen, was man damit machen soll.
Vielen Dank!
Bebauungsplan/Einschränkungen
Größe des Grundstücks: 540 qm
Gewünschte Wohnfläche: 120qm
Hang: keiner
Geschossigkeit: L-Bungalow
Fernwärme
Fußbodenheizung
Technikraum und Speisekammer in einem - von beiden Seiten begehbar
Dachform: Satteldach (Pflicht) 30-45 Grad
Giebelstellung des Hauptgiebels ist leider vorgegeben (lange Seite, siehe Bauplan, Bild 3)
Kein Keller, Bungalow
Anzahl der Personen Paar mit momentan einem Kind (0)
Garage oder Carport mit Dach zum Eingang hin
Wichtig wäre uns eine gut begehbare Fahrradgarage
Bauplatz in BW
Vielen Dank!



wir planen gerade einen L-Bungalow mit nachfolgenden Daten.
-->Super wären hier ein paar kritische Meinungen zum aktuellen (eigenen) Entwurf (Bild 1).
Dieser ist auf Grundlage des Town & Country Perfect 111 Bungalows (siehe Bild 2)
Durch die vorgegebene Gradzahl und die Dachform würde sich wohl eine Bühne ergeben - hier kann ich leider auch noch nicht einschätzen, was man damit machen soll.
Vielen Dank!
Bebauungsplan/Einschränkungen
Größe des Grundstücks: 540 qm
Gewünschte Wohnfläche: 120qm
Hang: keiner
Geschossigkeit: L-Bungalow
Fernwärme
Fußbodenheizung
Technikraum und Speisekammer in einem - von beiden Seiten begehbar
Dachform: Satteldach (Pflicht) 30-45 Grad
Giebelstellung des Hauptgiebels ist leider vorgegeben (lange Seite, siehe Bauplan, Bild 3)
Kein Keller, Bungalow
Anzahl der Personen Paar mit momentan einem Kind (0)
Garage oder Carport mit Dach zum Eingang hin
Wichtig wäre uns eine gut begehbare Fahrradgarage
Bauplatz in BW
Vielen Dank!
Puh Küche könnte knapp bzw. sehr eng werden. Technikraum dient doch dann zugleich als Hauswirtschaftsraum oder wo soll z.b. Waschmaschine / Trockner hin? Mit zwei Türen somit fast keinerlei Stellfläche.
Gibt glaube ich noch ganz viel Handlungsbedarf aber da gibt es die Profis hier!
Gibt glaube ich noch ganz viel Handlungsbedarf aber da gibt es die Profis hier!
A
allstar8320.07.19 09:44Muc1985 schrieb:
Puh Küche könnte knapp bzw. sehr eng werden. Technikraum dient doch dann zugleich als Hauswirtschaftsraum oder wo soll z.b. Waschmaschine / Trockner hin? Mit zwei Türen somit fast keinerlei Stellfläche.
Gibt glaube ich noch ganz viel Handlungsbedarf aber da gibt es die Profis hier! Danke Trockner steht momentan auch auf der Waschmaschine. Das wäre weniger tragisch. Von Küche würde die Türe ggf.. auch nach innen aufgehen oder ggf.. ne Schiebetür.
Ohne Maßangaben und etwas Beispielmöblierung ist da schlecht zu beurteilen, stimme aber @Muc1985 zu.
Der Hauswirtschaftsraum ... durch die beiden Türen wird da gerade die Technik passen. Für sonstiges ist da wenig Platz.
Da 9qm Zimmer ist Kinderzimmerreserve? Sonst evtl. Gast/Büro?
Basis ist ja wohl eher Danwood Perfect 111 und nicht Town & Country.
Es gibt von Ytong (117 K) einen Beispielgrundriss .. den ich hier mal entsprechend eures Grundstück gedreht einstelle.

Hier müßte man Waschmaschine vermutlich ins Bad mit stellen. Es passt mit 15 m gerade in Baufenster. Man könnte es vielleicht etwas breiter ziehen. Es gibt den Plan auch noch in der Variante Statt Gast/Büro ein innenliegendes Treppenhaus mit kleiner Speisekammer dahinter. Da könnte man dann im Dachgeschoss noch ein Kinderzimmer und ein Gast/Büro-Zimmer unterbringen. Mit Änderungen könnte man Wohnen/Essen/Kochen auch ganz offen gestalten. Oder aus aktuell Essen/Wohnen lieber Essen/Kochen machen und aus Küche einen abtrennbaren Sofa/TV-Rückzugbereich.
Der Hauswirtschaftsraum ... durch die beiden Türen wird da gerade die Technik passen. Für sonstiges ist da wenig Platz.
Da 9qm Zimmer ist Kinderzimmerreserve? Sonst evtl. Gast/Büro?
Basis ist ja wohl eher Danwood Perfect 111 und nicht Town & Country.
Es gibt von Ytong (117 K) einen Beispielgrundriss .. den ich hier mal entsprechend eures Grundstück gedreht einstelle.
Hier müßte man Waschmaschine vermutlich ins Bad mit stellen. Es passt mit 15 m gerade in Baufenster. Man könnte es vielleicht etwas breiter ziehen. Es gibt den Plan auch noch in der Variante Statt Gast/Büro ein innenliegendes Treppenhaus mit kleiner Speisekammer dahinter. Da könnte man dann im Dachgeschoss noch ein Kinderzimmer und ein Gast/Büro-Zimmer unterbringen. Mit Änderungen könnte man Wohnen/Essen/Kochen auch ganz offen gestalten. Oder aus aktuell Essen/Wohnen lieber Essen/Kochen machen und aus Küche einen abtrennbaren Sofa/TV-Rückzugbereich.
A
allstar8320.07.19 11:21kbt09 schrieb:
Ohne Maßangaben und etwas Beispielmöblierung ist da schlecht zu beurteilen, stimme aber @Muc1985 zu.
Der Hauswirtschaftsraum ... durch die beiden Türen wird da gerade die Technik passen. Für sonstiges ist da wenig Platz.
Da 9qm Zimmer ist Kinderzimmerreserve? Sonst evtl. Gast/Büro?
Basis ist ja wohl eher Danwood Perfect 111 und nicht Town & Country.
Es gibt von Ytong (117 K) einen Beispielgrundriss .. den ich hier mal entsprechend eures Grundstück gedreht einstelle.

Hier müßte man Waschmaschine vermutlich ins Bad mit stellen. Es passt mit 15 m gerade in Baufenster. Man könnte es vielleicht etwas breiter ziehen. Es gibt den Plan auch noch in der Variante Statt Gast/Büro ein innenliegendes Treppenhaus mit kleiner Speisekammer dahinter. Da könnte man dann im Dachgeschoss noch ein Kinderzimmer und ein Gast/Büro-Zimmer unterbringen. Mit Änderungen könnte man Wohnen/Essen/Kochen auch ganz offen gestalten. Oder aus aktuell Essen/Wohnen lieber Essen/Kochen machen und aus Küche einen abtrennbaren Sofa/TV-Rückzugbereich.Vielen Dank dafür!
Danwood genau - sry - kein Town & Country.
Ähnliche Themen