Hallo zusammen,
Meine Frau und ich (beide 29 Jahre alt) stehen vor der Entscheidung, eine Immobilie aus dem Jahr 1967 zu kaufen. Wir beschäftigen uns schon seit einiger Zeit mit der Frage, ob sich der Kauf und die Kernsanierung des Hauses lohnen würde und wie man das vorhandene Potenzial am besten nutzen kann.
Da wir beide keine Erfahrung in der Baubranche haben, entwickeln wir zwar einige Ideen, aber sind uns oft unsicher, was die Umsetzbarkeit und die Kosten betrifft. Daher würden wir uns sehr über Euer fachkundiges Feedback freuen! Gleichzeitig hoffen wir, dass ihr uns mit neuen Vorschlägen inspirieren könnt, die wir so vielleicht noch gar nicht in Betracht gezogen haben. Hier einige Eckdaten zum Haus:
Bebauungsplan/Einschränkungen
Lage: Südbaden (nahe Freiburg)
Baujahr: 1967
Bauweise: Massivbau (30 cm dicke Außenwände aus Ziegelstein)
Kellerdecke: hier bekannte "Kochdecke" (Hohlkörperdecke)
Wohnfläche: 130 m²
Nutzfläche: 133 m²
Größe des Grundstücks: 633 m²
Hang: nein
Baufenster, Baulinie und -grenze: kein Bebauungsplan vorhanden
Randbebauung: s.o.
Böden: ohne Estrich
Anzahl Stellplatz: 4
Geschossigkeit: 1,5
Dachform: Satteldach
Stilrichtung: ---
Ausrichtung: Süd-West
Maximale Höhen/Begrenzungen: kein Bebauungsplan vorhanden
Anforderungen der Bauherren
Stilrichtung, Dachform, Gebäudetyp: ---
Keller, Geschosse: EG, OG
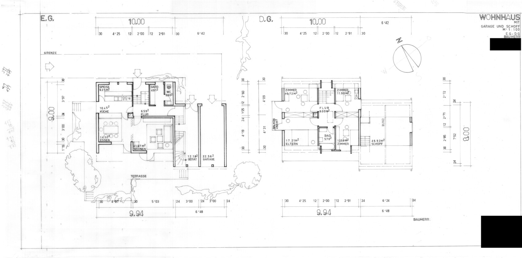
IST Räume im EG: 1 Garderobe, 1 Gäste-WC, 1 Küche, 1 Speisekammer, 1 Esszimmer, 1 Wohnzimmer
SOLL Räume im EG: offener Wohn-Essbereich, Gäste-WC mit Dusche, Garderobe
IST Räume im OG: 1 Bad, 3 Schlafzimmer
SOLL Räume im OG: 1 Bad (deutlich größer), 1 Elternschlafzimmer, 1 Kinderzimmer, 1 Büro
Zusätzlicher Bedarf: 2 Kinderzimmer
Ausbaureserve: DG, Garage DG (grenzt an Haus)
Anzahl der Personen, Alter: 2 Erwachsene (29 Jahre alt), 1 Kind (1 Jahr), 2 weitere Kinder in Planung
Büro: Homeoffice
Schlafgäste pro Jahr: 5
offene oder geschlossene Architektur: offen
konservativ oder moderne Bauweise: gemischt
offene Küche, Kochinsel: offen mit Kochinsel und Theke
Anzahl Essplätze: 6
Kamin: ja
Musik/Stereowand: nein
Balkon, Dachterrasse: Balkon
Garage, Carport: Garage vorhanden
Nutzgarten, Treibhaus: nein
Hausentwurf
Persönliches Preislimit für Kernsanierung und Erweiterungen, inkl. Ausstattung: 450 TEUR
favorisierte Heiztechnik: Fußbodenheizung mit Wärmepumpe
Uns liegen noch keine Statik-Pläne vor, weshalb wir nur anhand der Wandstärke die (nicht-)tragenden Wände abschätzen können.
Unsere Ideen zur Wohnraumerweiterung
Das Hauptproblem der Immobilie ist die unzureichende Wohnfläche. Hier haben wir uns überlegt, den Dachspitz der Garage auszubauen. Allerdings liegt die Garage ca. 1 m niedriger als das Haus, weshalb ein "einfacher" Durchbruch vom OG in den Dachspitz der Garage nicht ohne Weiteres möglich wäre (man würde gegen das Dachkonstrukt stoßen). Unsere Idee war daher, das Dach der Garage abzunehmen und die Geschosshöhe so zu vergrößern, dass ein Durchbruch mit Treppe zum Dachspitz möglich wäre. Was sind Eure Ideen und Gedanken dazu?
Ein weiterer Gedanke war, den Dachspitz des Hauses auszubauen. Da bei der Kernsanierung das Dach ohnehin neu gedeckt und gedämmt wird, wäre dies in unseren Augen ein "logischer" Schritt. Allerdings gibt es aktuell nur eine herunterklappbare Treppe im Flur des OGs, die auf den Dachboden führt. Hier müsste also eine feste Treppe eingebaut werden. Da haben wir aber keine Vorstellung, wo diese hinkommen könnte, ohne den Wohnraum zu verkleinern. Eine Idee war, das Treppenhaus zu erweitern. Jedoch sind wir uns nicht sicher, ob das mit der Dachausrichtung möglich ist. Was sagt ihr dazu?
Ein anderes Thema ist die Heizung. Weil wir eigentlich überall Fußbodenheizung möchten, stellen wir uns die Frage, wie man das im Dachspitz umsetzen könnte Habt ihr dazu Ideen?
Unsere Ideen zur Wohnraumverbesserung
EG
Aktuell dient ein Schrank als Trennwand zwischen Esszimmer und Küche. Als "offene Trennung" können wir uns stattdessen eine Kücheninsel in L-Form mit Theke vorstellen.
Obwohl wir Speisekammer-Fans sind, würden wir die Trennwand zu Gunsten einer größeren Küche aufgeben. Als Lagerersatz stellen wir uns 3-4 Hochschränke vor (hierfür sind in der Speisekammer die Fenster wahrscheinlich unpraktisch gesetzt). Eventuell lässt sich ein weiterer Abstellraum zwischen Haus und Garage realisieren (für Staubsauger und co.)?
Das Esszimmer hat keine Fenster nach Westen. Hier würden wir bodentiefe Fenster einbauen - oder sogar über Eck in Richtung Terrasse (nach Süden)?
Eine andere Idee wäre im Esszimmer eine Eckbank zu integrieren, um den Raum effizienter zu nutzen. Dann wären die bodentiefe Fenster wiederum falsch.
Im Wohnzimmer gestaltet sich die Position der Couch schwierig. Dort gibt es schon Fenster + eine Tür nach Süden. Um den Raum zwischen Wohn- und Esszimmer möglich frei und geräumig zu gestalten, würden wir die Couch ins Eck vor die Fenster mit Blick nach Norden stellen. Das ist unschön, gibt uns aber die freien Flächen für die Kinder zum Spielen.
Gerne würden wir am Kamin einen Schwedenofen platzieren. Ist dort genügend Platz? Könnte man hier einen Kachelofen mit Sitzmöglichkeit einbauen?
Bei den Türen zum Flur in Küche und Wohnzimmer sind wir uns unsicher. Einerseits wäre das offene wohnen schön, andererseits kann es sicherlich von Vorteil sein, die Etagen vom Lärm zu trennen. Vielleicht die Tür in der Küche wegmachen und im Wohnzimmer eine Schiebetür einbauen?
Die Garderobe finden wir praktisch und wird auch benötigt, allerdings hätten wir gerne eine kleine Dusche im WC. Da sind wir uns unsicher, wie ein Grundriss aussehen könnte.
OG
Wir möchten auf jeden Fall das Bad vergrößern und dazu das dritte Schlafzimmer aufgeben. Aus dem restlichen Raum könnte der Gang zum Durchbruch in Richtung Garage werden.
Im Treppenhaus gibt es eine Mini-Schleppgaube für die Belichtung. Diese würden wir vergrößern, damit die beiden Zimmer rechts und links davon ein weiteres Fenster erhalten.
Im Elternschlafzimmer (Süd-Westen) möchten wir ein weiteres Fenster erreichen. Dazu könnte man die Schleppgaube vom Bad aus vergrößern. Eine andere Überlegung wäre ein großes Dachfenster über dem Bett einzubauen.
Außerdem müssten wir die oben genannte Treppe zum Dachspitz unterbringen, sollten wir diesen zum Wohnraum umgestalten.
Im Anhang findet ihr alle Pläne. Unsere Ideen haben wir in der Datei "IDEEN_EG_DG" untergebracht.
Wir freuen uns auf Euer Feedback und eventuelle Anregungen, was man aus dieser Immobilie machen könnte.
Vielen Dank schon mal vorab!
Familie Lischli








Meine Frau und ich (beide 29 Jahre alt) stehen vor der Entscheidung, eine Immobilie aus dem Jahr 1967 zu kaufen. Wir beschäftigen uns schon seit einiger Zeit mit der Frage, ob sich der Kauf und die Kernsanierung des Hauses lohnen würde und wie man das vorhandene Potenzial am besten nutzen kann.
Da wir beide keine Erfahrung in der Baubranche haben, entwickeln wir zwar einige Ideen, aber sind uns oft unsicher, was die Umsetzbarkeit und die Kosten betrifft. Daher würden wir uns sehr über Euer fachkundiges Feedback freuen! Gleichzeitig hoffen wir, dass ihr uns mit neuen Vorschlägen inspirieren könnt, die wir so vielleicht noch gar nicht in Betracht gezogen haben. Hier einige Eckdaten zum Haus:
Bebauungsplan/Einschränkungen
Lage: Südbaden (nahe Freiburg)
Baujahr: 1967
Bauweise: Massivbau (30 cm dicke Außenwände aus Ziegelstein)
Kellerdecke: hier bekannte "Kochdecke" (Hohlkörperdecke)
Wohnfläche: 130 m²
Nutzfläche: 133 m²
Größe des Grundstücks: 633 m²
Hang: nein
Baufenster, Baulinie und -grenze: kein Bebauungsplan vorhanden
Randbebauung: s.o.
Böden: ohne Estrich
Anzahl Stellplatz: 4
Geschossigkeit: 1,5
Dachform: Satteldach
Stilrichtung: ---
Ausrichtung: Süd-West
Maximale Höhen/Begrenzungen: kein Bebauungsplan vorhanden
Anforderungen der Bauherren
Stilrichtung, Dachform, Gebäudetyp: ---
Keller, Geschosse: EG, OG
IST Räume im EG: 1 Garderobe, 1 Gäste-WC, 1 Küche, 1 Speisekammer, 1 Esszimmer, 1 Wohnzimmer
SOLL Räume im EG: offener Wohn-Essbereich, Gäste-WC mit Dusche, Garderobe
IST Räume im OG: 1 Bad, 3 Schlafzimmer
SOLL Räume im OG: 1 Bad (deutlich größer), 1 Elternschlafzimmer, 1 Kinderzimmer, 1 Büro
Zusätzlicher Bedarf: 2 Kinderzimmer
Ausbaureserve: DG, Garage DG (grenzt an Haus)
Anzahl der Personen, Alter: 2 Erwachsene (29 Jahre alt), 1 Kind (1 Jahr), 2 weitere Kinder in Planung
Büro: Homeoffice
Schlafgäste pro Jahr: 5
offene oder geschlossene Architektur: offen
konservativ oder moderne Bauweise: gemischt
offene Küche, Kochinsel: offen mit Kochinsel und Theke
Anzahl Essplätze: 6
Kamin: ja
Musik/Stereowand: nein
Balkon, Dachterrasse: Balkon
Garage, Carport: Garage vorhanden
Nutzgarten, Treibhaus: nein
Hausentwurf
Persönliches Preislimit für Kernsanierung und Erweiterungen, inkl. Ausstattung: 450 TEUR
favorisierte Heiztechnik: Fußbodenheizung mit Wärmepumpe
Uns liegen noch keine Statik-Pläne vor, weshalb wir nur anhand der Wandstärke die (nicht-)tragenden Wände abschätzen können.
Unsere Ideen zur Wohnraumerweiterung
Das Hauptproblem der Immobilie ist die unzureichende Wohnfläche. Hier haben wir uns überlegt, den Dachspitz der Garage auszubauen. Allerdings liegt die Garage ca. 1 m niedriger als das Haus, weshalb ein "einfacher" Durchbruch vom OG in den Dachspitz der Garage nicht ohne Weiteres möglich wäre (man würde gegen das Dachkonstrukt stoßen). Unsere Idee war daher, das Dach der Garage abzunehmen und die Geschosshöhe so zu vergrößern, dass ein Durchbruch mit Treppe zum Dachspitz möglich wäre. Was sind Eure Ideen und Gedanken dazu?
Ein weiterer Gedanke war, den Dachspitz des Hauses auszubauen. Da bei der Kernsanierung das Dach ohnehin neu gedeckt und gedämmt wird, wäre dies in unseren Augen ein "logischer" Schritt. Allerdings gibt es aktuell nur eine herunterklappbare Treppe im Flur des OGs, die auf den Dachboden führt. Hier müsste also eine feste Treppe eingebaut werden. Da haben wir aber keine Vorstellung, wo diese hinkommen könnte, ohne den Wohnraum zu verkleinern. Eine Idee war, das Treppenhaus zu erweitern. Jedoch sind wir uns nicht sicher, ob das mit der Dachausrichtung möglich ist. Was sagt ihr dazu?
Ein anderes Thema ist die Heizung. Weil wir eigentlich überall Fußbodenheizung möchten, stellen wir uns die Frage, wie man das im Dachspitz umsetzen könnte Habt ihr dazu Ideen?
Unsere Ideen zur Wohnraumverbesserung
EG
Aktuell dient ein Schrank als Trennwand zwischen Esszimmer und Küche. Als "offene Trennung" können wir uns stattdessen eine Kücheninsel in L-Form mit Theke vorstellen.
Obwohl wir Speisekammer-Fans sind, würden wir die Trennwand zu Gunsten einer größeren Küche aufgeben. Als Lagerersatz stellen wir uns 3-4 Hochschränke vor (hierfür sind in der Speisekammer die Fenster wahrscheinlich unpraktisch gesetzt). Eventuell lässt sich ein weiterer Abstellraum zwischen Haus und Garage realisieren (für Staubsauger und co.)?
Das Esszimmer hat keine Fenster nach Westen. Hier würden wir bodentiefe Fenster einbauen - oder sogar über Eck in Richtung Terrasse (nach Süden)?
Eine andere Idee wäre im Esszimmer eine Eckbank zu integrieren, um den Raum effizienter zu nutzen. Dann wären die bodentiefe Fenster wiederum falsch.
Im Wohnzimmer gestaltet sich die Position der Couch schwierig. Dort gibt es schon Fenster + eine Tür nach Süden. Um den Raum zwischen Wohn- und Esszimmer möglich frei und geräumig zu gestalten, würden wir die Couch ins Eck vor die Fenster mit Blick nach Norden stellen. Das ist unschön, gibt uns aber die freien Flächen für die Kinder zum Spielen.
Gerne würden wir am Kamin einen Schwedenofen platzieren. Ist dort genügend Platz? Könnte man hier einen Kachelofen mit Sitzmöglichkeit einbauen?
Bei den Türen zum Flur in Küche und Wohnzimmer sind wir uns unsicher. Einerseits wäre das offene wohnen schön, andererseits kann es sicherlich von Vorteil sein, die Etagen vom Lärm zu trennen. Vielleicht die Tür in der Küche wegmachen und im Wohnzimmer eine Schiebetür einbauen?
Die Garderobe finden wir praktisch und wird auch benötigt, allerdings hätten wir gerne eine kleine Dusche im WC. Da sind wir uns unsicher, wie ein Grundriss aussehen könnte.
OG
Wir möchten auf jeden Fall das Bad vergrößern und dazu das dritte Schlafzimmer aufgeben. Aus dem restlichen Raum könnte der Gang zum Durchbruch in Richtung Garage werden.
Im Treppenhaus gibt es eine Mini-Schleppgaube für die Belichtung. Diese würden wir vergrößern, damit die beiden Zimmer rechts und links davon ein weiteres Fenster erhalten.
Im Elternschlafzimmer (Süd-Westen) möchten wir ein weiteres Fenster erreichen. Dazu könnte man die Schleppgaube vom Bad aus vergrößern. Eine andere Überlegung wäre ein großes Dachfenster über dem Bett einzubauen.
Außerdem müssten wir die oben genannte Treppe zum Dachspitz unterbringen, sollten wir diesen zum Wohnraum umgestalten.
Im Anhang findet ihr alle Pläne. Unsere Ideen haben wir in der Datei "IDEEN_EG_DG" untergebracht.
Wir freuen uns auf Euer Feedback und eventuelle Anregungen, was man aus dieser Immobilie machen könnte.
Vielen Dank schon mal vorab!
Familie Lischli
Interessantes Projekt, welches Ihr Euch stellen wollt!
..
So ganz verstehe ich die Treppen in der Garage nicht. Braucht Ihr noch weitere Räume? Wie ist der Keller beschaffen?
Lischli schrieb:Ich denke, die bekommt Ihr baurechtlich durch. Die wären dem Haus bzw. der Fassade untergeordnet und sind machbar, Ob man sie im Schlafzimmer braucht, bezweifle ich. Dachflächenfenster würde ich wenn seitlich machen, nicht über dem Bett.
Schleppgaube
Lischli schrieb:Da sehe ich im Dachspitz keine nennenswerte Fläche mehr, die dem Aufenthalt dienlich sein kann.
Außerdem müssten wir die oben genannte Treppe zum Dachspitz unterbringen, sollten wir diesen zum Wohnraum umgestalten.
Lischli schrieb:Mit welchen Lärm rechnest Du?
andererseits kann es sicherlich von Vorteil sein, die Etagen vom Lärm zu trennen.
Lischli schrieb:Ich mag das, dafür muss aber auch der Raum die Größe hergeben, was hier ja wohl sein wird.
Das ist unschön, gibt uns aber die freien Flächen für die Kinder zum Spielen.
..
So ganz verstehe ich die Treppen in der Garage nicht. Braucht Ihr noch weitere Räume? Wie ist der Keller beschaffen?
Vielen Dank für Deine Antwort, ypg!
ypg schrieb:Da wir uns zwei weitere Kinder wünschen, brauchen wir neben dem Elternschlafzimmer insgesamt drei Kinderzimmer. Das geht mit den aktuellen Wohnfläche nicht (zumal ich eben ein Büro fürs Homeoffice benötige). Daher die beiden Ideen zur Wohnraumerweiterung, zu denen wir Feedback bräuchten.
So ganz verstehe ich die Treppen in der Garage nicht. Braucht Ihr noch weitere Räume? Wie ist der Keller beschaffen?
Kurzfassung: das Haus lohnt, aber für andere Leute (deren Ist und Soll besser übereinanderpassen), die Veränderungsideen werden hier kaum umsetzbar sein. Viel näher als 1995/2000 sehe ich dieses Haus nicht verjüngerbar, und das noch zu einem Preis spürbar über Neubaukosten.
https://www.instagram.com/11antgmxde/
https://www.linkedin.com/company/bauen-jetzt/
https://www.instagram.com/11antgmxde/
https://www.linkedin.com/company/bauen-jetzt/
Ähnliche Themen