ᐅ Kalkulation Einfamilienhaus mit 175m² Wohnfläche, Keller und Doppelgarage
Erstellt am: 10.06.20 14:12
W
Wormser1989W
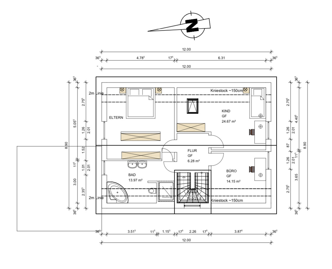
Wormser198925.06.20 09:48So - Die Hürde, die keine war (60 cm Kniestock) ist genommen. Nochmals vielen Dank für die Rückmeldungen. Wir sind derweil ein Schritt weiter. Jetzt haben wir Entwürfe des Architekten bekommen (Kniestock 1,5 Meter). Ertsmal grob zur Orientierung. Mir gefällt das schon ganz gut, Die Frau hat noch eins, zwei Dinge, die ich noch nicht ganz gut gefallen. (Anordnung Bad). Nach meinem Dafürhalten könnte das Schlafzimmer auch noch ein Dachfenster vertragen. Der Architekt hat uns gefragt ob wir eine Speisekammer wollen. Eigentlich nicht, aber er hat jetzt einen Entwurf mit und einen Entwurf ohne Speisekammer fertig gemacht. Mir gefällt die Variante mit Speisekammer dann doch besser, da sonst die Küche überdimensioniert ist. Ggf. hat hier aber auch noch jemand bessere vorschläge, wie man den Platz nutzen könnte
Ich stelle die Entwürfe mal ein und hoffe auf konstruktive Vorschläge





Ich stelle die Entwürfe mal ein und hoffe auf konstruktive Vorschläge
Bin nur kurz drüber geflogen. Das mit der überdimensionierten Küche wirkt so, weil die vom Planer eingezeichnete Küche voll blöd ist .
Mit den Maßen würde ich zwei Zeilen machen. Eine Wandzeile und nen fetten 3m x 1,2m Block.
Mir kommt der Esstisch etwas klein vor. Miss den mal und zeichne eine maßstabsgetreuen ein. Überprüfe auch die anderen Möbel.
Bad gefällt mir auch nicht, wird ja aber noch geändert.
Würde auch nicht diese abgetrennten Kleiderschränke im Schlafzimmer wollen. Da kannst auch eine richtige Ankleide machen.
Mit den Maßen würde ich zwei Zeilen machen. Eine Wandzeile und nen fetten 3m x 1,2m Block.
Mir kommt der Esstisch etwas klein vor. Miss den mal und zeichne eine maßstabsgetreuen ein. Überprüfe auch die anderen Möbel.
Bad gefällt mir auch nicht, wird ja aber noch geändert.
Würde auch nicht diese abgetrennten Kleiderschränke im Schlafzimmer wollen. Da kannst auch eine richtige Ankleide machen.
A
Alessandro25.06.20 10:05gefällt mir definitv auch besser mit Speisekammer.
Die Tür vom Schlafzimmer ins Bad finde ich total unnötig und verhindert einen breiteren schrank.
Ich würde den Schrank planunten über die gesamte Breite durchziehen und an der Wand vis a vis einen Schminktisch für die Frau platzieren oder eine Kommode zum Ablegen für die Uhr, Armbänder, Ohrringe etc.
Ich würde Badewanne mit Dusche tauschen. Aber nur aus dem Grund dass das Fenster dann näher zur Dusche ist und die Feuchtigkeit schneller abzieht.
Es gibt nichts hässlicheres als schimmelige Silikonfugen
Die Tür vom Schlafzimmer ins Bad finde ich total unnötig und verhindert einen breiteren schrank.
Ich würde den Schrank planunten über die gesamte Breite durchziehen und an der Wand vis a vis einen Schminktisch für die Frau platzieren oder eine Kommode zum Ablegen für die Uhr, Armbänder, Ohrringe etc.
Ich würde Badewanne mit Dusche tauschen. Aber nur aus dem Grund dass das Fenster dann näher zur Dusche ist und die Feuchtigkeit schneller abzieht.
Es gibt nichts hässlicheres als schimmelige Silikonfugen
A
Alessandro25.06.20 10:16Büro und Bad ggf. tauschen, dann liegen die Anschlüsse zum Gäste-WC im EG auch übereinander
Alessandro schrieb:
Ich würde Badewanne mit Dusche tauschen. Aber nur aus dem Grund dass das Fenster dann näher zur Dusche ist und die Feuchtigkeit schneller abzieht.
Es gibt nichts hässlicheres als schimmelige Silikonfugen Mit Kontrollierte-Wohnraumlüftung brauchst Dir da (fast) keine Sorgen machen.
Die Dusche geht doch eh nicht, guck mal wo die 2-Meter-Linie ist. Wo soll der Duschkopf denn da hin? Oder sehe ich da was nicht?
Meiner Meinung auch zu kleines Fenster im Bad. Ein Dachfenster oder sogar Zwillingsdachfenster würde da auch mehr Stehhöche ermöglichen
Alessandro schrieb:
Büro und Bad ggf. tauschen, dann liegen die Anschlüsse zum Gäste-WC im EG auch übereinanderDa bin ich auch dabei, sofern der TE nicht auf den direkten Durchgang Schlafzimmer-Ankleide-Bad besteht.
Ähnliche Themen