H
Hagiman200017.10.16 13:46Meine Frau und ich grübeln schon etwas länger über unseren E-Plan und haben uns jetzt überlegt über dieses Forum eine dritte Meinung einzuholen.
Es stellen sich so viele Fragen. Noch einen Stromanschluss unter dem für die Außenleuchte am Eingang für eine Kamera. Dann auch direkt ein Leerrohr für ein LAN Kabel oder reicht WLAN.
Starkstromanschluss in Garage für ein mögliches E-Auto in der Zukunft?
Alles ist natürlich nützlich aber man darf das Budget auch nicht aus den Augen verlieren.
Vielleicht fallen euch noch ein paar Must Haves auf, oder nützliche Orte für Elektrolösungen die uns verborgen geblieben sind. Vielen Dank im Voraus.







Es stellen sich so viele Fragen. Noch einen Stromanschluss unter dem für die Außenleuchte am Eingang für eine Kamera. Dann auch direkt ein Leerrohr für ein LAN Kabel oder reicht WLAN.
Starkstromanschluss in Garage für ein mögliches E-Auto in der Zukunft?
Alles ist natürlich nützlich aber man darf das Budget auch nicht aus den Augen verlieren.
Vielleicht fallen euch noch ein paar Must Haves auf, oder nützliche Orte für Elektrolösungen die uns verborgen geblieben sind. Vielen Dank im Voraus.
D
Doc.Schnaggls17.10.16 15:26Hallo Peter,
grundsätzlich solltet Ihr bedenken, dass alle Außenlampen und vor allem Außensteckdosen von innen schaltbar sein sollten. Am besten mit einem Schalter mit Kontrollleuchte - damit ist ein vergessen dann schon etwas schwieriger.
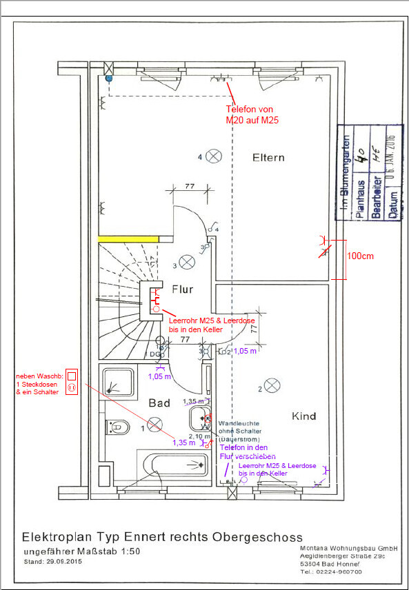
Ich sehe im Dachgeschoss kein Symbol für eine Deckenbrennstelle. Ist das tatsächlich so (gewollt), oder wurde das nur vergessen einzuzeichnen?
Aus den Steckdosen im DG würde ich (wenn es eventuell irgendwann einmal ausgebaut werden soll) jetzt gleich Doppelsteckdosen machen. Die Tür im DG wird so vermutlich nicht machbar sein. meines Wissens nach sind Türen, an die sich unmittelbar eine Treppe (nach unten) anschließt baurechtlich nicht zulässig.
Im Obergeschoss würde ich über folgendes Nachdenken:
Elternschlafzimmer: Die Doppelsteckdose neben dem Bett würde ich mindestens zu einer Dreifachsteckdose (jeweils) aufbohren. Jetzt ist mit einer Nachttischlampe und einem Radiowecker schon alles belegt. Jeweils noch ein Lichtschalter für die Hauptbeleuchtung am Bett wäre auch überlegenswert. Im Ankleidebereich (?) würde ich aus der Einzelsteckdoase auch mindestens eine Doppelsteckdose machen. Schrankbeleuchtung,...
Kinderzimmer: Meiner Meinung nach auch etwas knapp mit Steckdosen versorgt. Da würde ich auch noch mindestens 2 - 3 zusätzliche einplanen.
Bad: Nur eine Steckdose neben dem Waschbecken? Was habt Ihr denn alles so für Elektrogeräte im Bad? Rasierer, Föhn, elektrische Zahnbürste, Radio,...
Da wäre mir eine Steckdose in dem Bereich zu wenig. Falls Ihr eventuell später mal auf eines dieser neuen WC, die den Nutzer mit Wasser reinigen, umrüsten wollt, würde ich auch im Bereich des WC noch eine Steckdose und einen Wasseranschluss legen lassen.
Im Flur und im Bad könntet Ihr noch über eine Steckdose mit integriertem LED-Nachtlicht (Orientierungslicht) nachdenken - dann braucht man bei nacht im Zweifel nicht die "Flutlichtanlage" an der Decke anwerfen, wenn man mal ins Bad muss...
Erdgeschoss:
In der Küche "nur" zwei frei Steckdosen finde ich persönlich auch etwas knapp.
Im Wohnzimmer zwei Steckdosen neben dem Sat-Anschluss ist vielleicht auch ausbaufähig. TV-Gerät, DVD-Player und alle sind belegt. was ist mit eventuellem Sat-Receiver, Festplatten Rekorder, Surroundsystem? Auch wenn jetzt noch nicht alles da ist, weniger Geräte werden es bestimmt nicht...
Im Keller tatsächlich nur zwei Steckdosen für Waschmaschine und Trockner und sonst keine?
Alles in allem habt Ihr, gerade was Steckdosen angeht, meiner Meinung nach sehr zurückhaltend geplant. Natürlich kann man das auch später noch ändern, aber wenn ich den Mehrpreis einer oder zwei Steckdosen mehr je Raum ins Verhältnis zum dem Aufwand und dem Dreck einer Nachrüstung setzte wüsste ich, wie ich mich entscheiden würde.
Eine Starkstromanschluss (empfehlenswert mit 32 A) würde ich einmal in die Garage und einmal in den Keller legen lassen.
Grüße,
Dirk
grundsätzlich solltet Ihr bedenken, dass alle Außenlampen und vor allem Außensteckdosen von innen schaltbar sein sollten. Am besten mit einem Schalter mit Kontrollleuchte - damit ist ein vergessen dann schon etwas schwieriger.
Ich sehe im Dachgeschoss kein Symbol für eine Deckenbrennstelle. Ist das tatsächlich so (gewollt), oder wurde das nur vergessen einzuzeichnen?
Aus den Steckdosen im DG würde ich (wenn es eventuell irgendwann einmal ausgebaut werden soll) jetzt gleich Doppelsteckdosen machen. Die Tür im DG wird so vermutlich nicht machbar sein. meines Wissens nach sind Türen, an die sich unmittelbar eine Treppe (nach unten) anschließt baurechtlich nicht zulässig.
Im Obergeschoss würde ich über folgendes Nachdenken:
Elternschlafzimmer: Die Doppelsteckdose neben dem Bett würde ich mindestens zu einer Dreifachsteckdose (jeweils) aufbohren. Jetzt ist mit einer Nachttischlampe und einem Radiowecker schon alles belegt. Jeweils noch ein Lichtschalter für die Hauptbeleuchtung am Bett wäre auch überlegenswert. Im Ankleidebereich (?) würde ich aus der Einzelsteckdoase auch mindestens eine Doppelsteckdose machen. Schrankbeleuchtung,...
Kinderzimmer: Meiner Meinung nach auch etwas knapp mit Steckdosen versorgt. Da würde ich auch noch mindestens 2 - 3 zusätzliche einplanen.
Bad: Nur eine Steckdose neben dem Waschbecken? Was habt Ihr denn alles so für Elektrogeräte im Bad? Rasierer, Föhn, elektrische Zahnbürste, Radio,...
Da wäre mir eine Steckdose in dem Bereich zu wenig. Falls Ihr eventuell später mal auf eines dieser neuen WC, die den Nutzer mit Wasser reinigen, umrüsten wollt, würde ich auch im Bereich des WC noch eine Steckdose und einen Wasseranschluss legen lassen.
Im Flur und im Bad könntet Ihr noch über eine Steckdose mit integriertem LED-Nachtlicht (Orientierungslicht) nachdenken - dann braucht man bei nacht im Zweifel nicht die "Flutlichtanlage" an der Decke anwerfen, wenn man mal ins Bad muss...
Erdgeschoss:
In der Küche "nur" zwei frei Steckdosen finde ich persönlich auch etwas knapp.
Im Wohnzimmer zwei Steckdosen neben dem Sat-Anschluss ist vielleicht auch ausbaufähig. TV-Gerät, DVD-Player und alle sind belegt. was ist mit eventuellem Sat-Receiver, Festplatten Rekorder, Surroundsystem? Auch wenn jetzt noch nicht alles da ist, weniger Geräte werden es bestimmt nicht...
Im Keller tatsächlich nur zwei Steckdosen für Waschmaschine und Trockner und sonst keine?
Alles in allem habt Ihr, gerade was Steckdosen angeht, meiner Meinung nach sehr zurückhaltend geplant. Natürlich kann man das auch später noch ändern, aber wenn ich den Mehrpreis einer oder zwei Steckdosen mehr je Raum ins Verhältnis zum dem Aufwand und dem Dreck einer Nachrüstung setzte wüsste ich, wie ich mich entscheiden würde.
Eine Starkstromanschluss (empfehlenswert mit 32 A) würde ich einmal in die Garage und einmal in den Keller legen lassen.
Grüße,
Dirk
Ich bin ganz bei Dirk.
Steckdosen solltet ihr auf jeden Fall noch ein paar einplanen. Im Wohnzimmer z. B. an der geraden Wand oberhalb der Küche. Vielleicht bietet es sich auch an dort eine Steckdose 25cm über dem Boden zu machen. Wenn dann mal ein Sofa davor steht, sieht man die nicht unbedingt.
Lieber jetzt eine Steckdose zu viel, wie später irgendwo eine zu wenig.
Wenn ihr im Keller aus finanziellen Gründen spart kann ich das noch nachvollziehen. Aufputz kannst du später noch nachrüsten. Du solltest dann aber darauf achten, dass im Schaltschrank noch Plätze für eine Absicherung vorhanden sind.
Was ist mit LAN/WLAN Verteiler? Wo kommen die hin? Woher bekommen die ihren Strom?
Steckdosen solltet ihr auf jeden Fall noch ein paar einplanen. Im Wohnzimmer z. B. an der geraden Wand oberhalb der Küche. Vielleicht bietet es sich auch an dort eine Steckdose 25cm über dem Boden zu machen. Wenn dann mal ein Sofa davor steht, sieht man die nicht unbedingt.
Lieber jetzt eine Steckdose zu viel, wie später irgendwo eine zu wenig.
Wenn ihr im Keller aus finanziellen Gründen spart kann ich das noch nachvollziehen. Aufputz kannst du später noch nachrüsten. Du solltest dann aber darauf achten, dass im Schaltschrank noch Plätze für eine Absicherung vorhanden sind.
Was ist mit LAN/WLAN Verteiler? Wo kommen die hin? Woher bekommen die ihren Strom?
B
Bieber081517.10.16 16:32Hagiman2000 schrieb:
Noch einen Stromanschluss unter dem für die Außenleuchte am Eingang für eine Kamera. Dann auch direkt ein Leerrohr für ein LAN Kabel oder reicht WLAN. Für Kameras würde ich CAT7-Kabel Verlegen und dann PoE-fähige Geräte anschließen.Hagiman2000 schrieb:
Starkstromanschluss in Garage für ein mögliches E-Auto in der Zukunft? Ein (!) Drehstromanschluss gehört zu einem Haus (wie der Außenwasserhahn). Ich sehe den aber wirklich als nice to have, daher reicht IMHO einer. Bei uns ist der im Hauswirtschaftsraum.Hagiman2000 schrieb:
Vielleicht fallen euch noch ein paar Must Haves auf Gibt es schon eine Netzwerkverkabelung? Dimmer wären toll. Wenn das Grundstück es hergibt, könnte man gleich noch ein dickes Erdkabel legen lassen (Gartenhütte mit Sauna ...). Na ja, am Ende entscheidet das Geld.D
Doc.Schnaggls17.10.16 16:43Bieber0815 schrieb:
Wenn das Grundstück es hergibt, könnte man gleich noch ein dickes Erdkabel legen lassen .Ganz wichtiger Punkt! Die Erdkabel habe ich völlig vergessen. Die kosten nur zwei oder drei Euro der Meter sind aber wirklich ein unschätzbarer Komfortgewinn.
Wir haben im Garten auch eine (leider nur eine:rolleyes 🙂 Steckdosensäule die rege genutzt wird. Heute würde ich mir mindestens zwei solche Kabel legen lassen.
Gerade bei Gartenpartys, aber auch zum Rasenmähen, die Weihnachtsbeleuchtung oder für den (Achtung Wunschdenken!) Rasenmähroboter ist ein Außenstromanschluß (unbedingt von innen schaltbar) eine sehr charmante Sache...
Grüße,
Dirk
Ähnliche Themen