ᐅ Ideen gesucht - Badplanung kleines Bad
Erstellt am: 04.09.18 12:44
J
jessi775504.09.18 12:44Hallo,
ich habe mit online Badplanern schon so viel rum experimentiert doch irgendwie war die ultimative Idee noch nicht dabei.
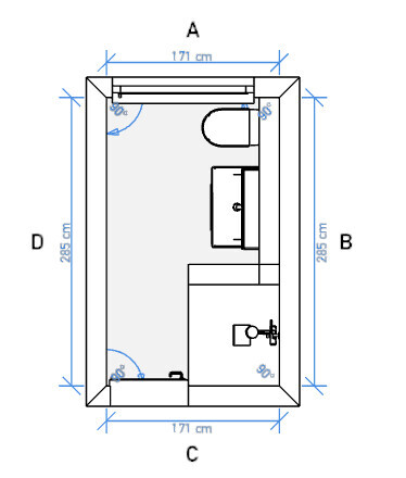
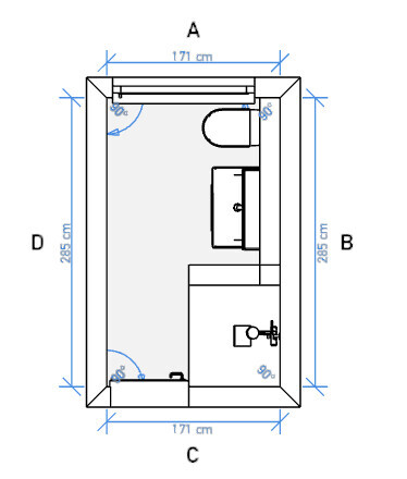
In unserem zukünftigen Haus gibt es zwei kleine Bäder. Hier geht es um eins davon. Die Position der Dusche ist auf Grund des Fensters und er Tür (bisher) fix.
Was fehlt, ist der waschtisch und die Toilette. Die Dusche sollte eigentlich 120 lang werden aber ich denke, der restliche Platz reicht dann nicht mehr aus sodass wir doch eher nur 100 nehmen werden. Zur Dusche hin soll es eine halb hohe Mauer geben, darüber eine Glasabtrennung. Die Dusche soll nur 85 cm breit sein, der online Planer gab dieses Maß nicht her, daher ist das jetzt mit der Tür sehr knapp. Wird aber dann "in echt" etwas kleiner.
Das sind unsere Ideen bisher, was würdet ihr besser machen?
Einmal eine Version mit kleinerem Waschtisch und zusätzlichem schrank oder größerer Waschtisch und WC auf der gleichen Wand? Diese Version wäre wohl einfacher, da die Anschlüsse jetzt auch dort liegen. Sind aber lt. Heizungsbauer problemlos auch zu verlegen.
Bei Version 1 habe ich ein bisschen Angst, dass das Fenster am Seitenschrank hängen bleibt, das müsste man noch mal genau prüfen.
Ich hoffe, ihr habt ein paar Anregungen für mich.



ich habe mit online Badplanern schon so viel rum experimentiert doch irgendwie war die ultimative Idee noch nicht dabei.
In unserem zukünftigen Haus gibt es zwei kleine Bäder. Hier geht es um eins davon. Die Position der Dusche ist auf Grund des Fensters und er Tür (bisher) fix.
Was fehlt, ist der waschtisch und die Toilette. Die Dusche sollte eigentlich 120 lang werden aber ich denke, der restliche Platz reicht dann nicht mehr aus sodass wir doch eher nur 100 nehmen werden. Zur Dusche hin soll es eine halb hohe Mauer geben, darüber eine Glasabtrennung. Die Dusche soll nur 85 cm breit sein, der online Planer gab dieses Maß nicht her, daher ist das jetzt mit der Tür sehr knapp. Wird aber dann "in echt" etwas kleiner.
Das sind unsere Ideen bisher, was würdet ihr besser machen?
Einmal eine Version mit kleinerem Waschtisch und zusätzlichem schrank oder größerer Waschtisch und WC auf der gleichen Wand? Diese Version wäre wohl einfacher, da die Anschlüsse jetzt auch dort liegen. Sind aber lt. Heizungsbauer problemlos auch zu verlegen.
Bei Version 1 habe ich ein bisschen Angst, dass das Fenster am Seitenschrank hängen bleibt, das müsste man noch mal genau prüfen.
Ich hoffe, ihr habt ein paar Anregungen für mich.
J
jessi775504.09.18 13:18Danke für deine Rückmeldung. Die Ecke wäre evtl. für eine Wäschetonne gut, die aber durchaus auch woanders stehen kann. Ansonsten hast du recht, das wird wohl eher eine Schmutzecke. Ich habe ein bisschen Angst, dass es zu eng wird wenn alles auf einer Wand ist.
Ja, eine Duschwand kommt auf jeden Fall hin, gab es leider im Online Planer nicht... Oder besser gesagt, ich habe sie nicht gefunden...
Ja, eine Duschwand kommt auf jeden Fall hin, gab es leider im Online Planer nicht... Oder besser gesagt, ich habe sie nicht gefunden...
M
MavinLandmann27.09.18 14:00Hallo,
ich würde mich für die zweite Zeichnung entscheiden, weil sonst haste echt ne Schmutzecke. 😉
Oder vielleicht sogar bei der ersten Zeichnung den Schrank neben dem Waschbecken ein kleines stück noch nach links versetzen. Aber an sich eine echt gute Aufteilung für ein kleines Bad. 🙂
Mfg Mavin
ich würde mich für die zweite Zeichnung entscheiden, weil sonst haste echt ne Schmutzecke. 😉
Oder vielleicht sogar bei der ersten Zeichnung den Schrank neben dem Waschbecken ein kleines stück noch nach links versetzen. Aber an sich eine echt gute Aufteilung für ein kleines Bad. 🙂
Mfg Mavin
Ähnliche Themen