Hallo,
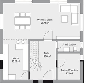
wir möchten nächstes Jahr beginnen unser Haus zu bauen. Momentan scheitern wir leider am Grundriss, besser gesagt am Grundriss im EG. Kurze Info: Hausgröße zw. 120-130qm, geplante Räume im EG: Küche (durch eine Schiebetür zum Ess- Wohnbereich getrennt), Ess- Wohnbereich, Hauswirtschaftsraum (10qm mit direkten Garagenzugang), Gäste-WC, wenn möglich kleine Speiß, jedoch nicht zwingend erforderlich.
Im Grundriss anbei sieht man wie die Räume ungefähr geordnet sein sollen, da ich die Küche zur Straßenseite bevorzuge und auf der rechten Seite der Hauswirtschaftsraum sein sollte. Wichtig ist mir auch im Gäste-WC und Hauswirtschaftsraum ein Fenster zu haben. Ich bin über jede Idee & Rat dankbar.
(Beim 2. Grundriss Arbeitsraum=Hauswirtschaftsraum)



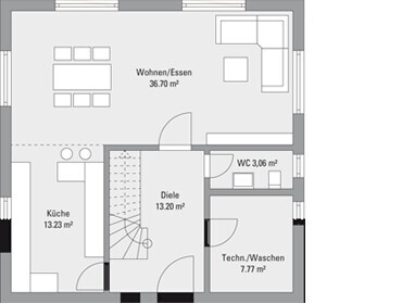
wir möchten nächstes Jahr beginnen unser Haus zu bauen. Momentan scheitern wir leider am Grundriss, besser gesagt am Grundriss im EG. Kurze Info: Hausgröße zw. 120-130qm, geplante Räume im EG: Küche (durch eine Schiebetür zum Ess- Wohnbereich getrennt), Ess- Wohnbereich, Hauswirtschaftsraum (10qm mit direkten Garagenzugang), Gäste-WC, wenn möglich kleine Speiß, jedoch nicht zwingend erforderlich.
Im Grundriss anbei sieht man wie die Räume ungefähr geordnet sein sollen, da ich die Küche zur Straßenseite bevorzuge und auf der rechten Seite der Hauswirtschaftsraum sein sollte. Wichtig ist mir auch im Gäste-WC und Hauswirtschaftsraum ein Fenster zu haben. Ich bin über jede Idee & Rat dankbar.
(Beim 2. Grundriss Arbeitsraum=Hauswirtschaftsraum)
Hast du
https://www.hausbau-forum.de/threads/grundrissplanung-bitte-vor-thread-erstellung-lesen.11714/ gelesen? Ist extra oben angepinnt, damit man sich das mal durchliest und möglichst danach handelt.
Und jetzt die Frage ... was erwartest du, wenn du hier 3 Grundrisse einstellst?
https://www.hausbau-forum.de/threads/grundrissplanung-bitte-vor-thread-erstellung-lesen.11714/ gelesen? Ist extra oben angepinnt, damit man sich das mal durchliest und möglichst danach handelt.
Und jetzt die Frage ... was erwartest du, wenn du hier 3 Grundrisse einstellst?
Schiebetür, die Küche (mit Tresen) vom Wohnbereich trennt, gängige Speis, direkter Garagenzugang sind meiner Meinung nach Wünsche, die schwer in einem 130qm -Haus zu realisieren sind. Zumindest gemeinsam. Ein guter Planer bekommt es sicherlich hin, aber ein angestellter Planer, dem die Daseinsberechtigung als Architekt genommen wurde?...
Und hier musst Du schon mit mehr Infos kommen. Wünschen kann jeder 🙂
Und hier musst Du schon mit mehr Infos kommen. Wünschen kann jeder 🙂
Ähnliche Themen