Hallo zusammen,
meine Fenster und die Haustür wurden nun auf gemessen
(Stadtvilla) und der Installateur, sagte zur der Haustür, ob wir uns sicher sind hier ein seitliches Licht haben zu wollen. Er selber würde die Tür etwas verbreitern und auf das Licht verzichten.
hier die Tür wie sie jetzt geplant ist:

was meint Ihr, ist das Licht zu klein und es würde Komisch aussehen und eine breitere Tür wäre hier komfortabler und "schöner" ?
LG
MAteo
meine Fenster und die Haustür wurden nun auf gemessen
(Stadtvilla) und der Installateur, sagte zur der Haustür, ob wir uns sicher sind hier ein seitliches Licht haben zu wollen. Er selber würde die Tür etwas verbreitern und auf das Licht verzichten.
hier die Tür wie sie jetzt geplant ist:
was meint Ihr, ist das Licht zu klein und es würde Komisch aussehen und eine breitere Tür wäre hier komfortabler und "schöner" ?
LG
MAteo
H
hampshire29.11.21 08:36Lasse die Türe breiter und integriere das Fenster in die Türe. Neben etwas mehr Licht im Flur hast Du dann auch Sichtkontakt zu Besuchern. Den Votrwil einer so schmalen feststehenden Fenstereinheit kann ich nicht erkennen.
A
Alessandro29.11.21 08:47ich würde den Seitenstreifen auch lassen. Warum wollt ihr aufs Vordach verzichten?
A
Alessandro29.11.21 09:19das einzige was mir einfallen würde, wäre die Treppe einzukoffern und in dem entsandenen Raum das Gäste-WC unterzubringen.
Dann hättest du eine größere Garderobe und könntest die Tür+Seitenfenster vergrößern.
Dann hättest du eine größere Garderobe und könntest die Tür+Seitenfenster vergrößern.
Das verstehst du falsch, der Rohbau steht schon und Fenster wurden nun auf gemessen 🙂
Treppe wird ausgekoffert und als "Abstellkammer" benutzt.
Ich habe nur diese 2 Möglichkeiten nun, Tür verbreitern mit etwas dickeren Rahmen und Fenster in der Tür oder ein Seitenlicht 15-20cm...
Licht wird sowieso rein kommen egal ob durch die Tür oder durch das Seitenlicht. Anscheinend war es aber vom Installateur eine berechtigte Anmerkung, dass das Seitenlicht zu klein ist um effektiv zu sein und sieht bescheiden aus. Teilweise kriege ich die Anmerkung hier ja auch bestätigt im Forum.
Treppe wird ausgekoffert und als "Abstellkammer" benutzt.
Ich habe nur diese 2 Möglichkeiten nun, Tür verbreitern mit etwas dickeren Rahmen und Fenster in der Tür oder ein Seitenlicht 15-20cm...
Licht wird sowieso rein kommen egal ob durch die Tür oder durch das Seitenlicht. Anscheinend war es aber vom Installateur eine berechtigte Anmerkung, dass das Seitenlicht zu klein ist um effektiv zu sein und sieht bescheiden aus. Teilweise kriege ich die Anmerkung hier ja auch bestätigt im Forum.
N
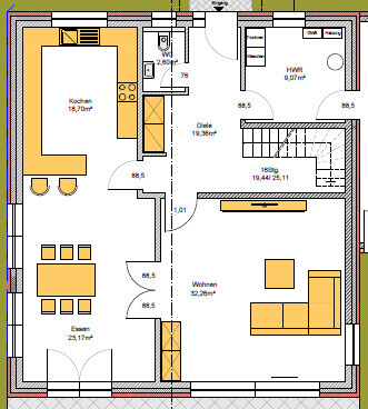
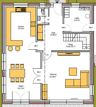
Nice-Nofret29.11.21 09:39mhh, also mich überteugen die Oeffnungen im ganzen Grundriss nicht wirklich.
Die Türe zum WC sollte nach außen öffnen. WC verlegen ist natürlich auch ne option, kommt aber auf die Fallleitungen im Haus drauf an.
Die Türen im Hauswirtschaftsraum sollten von der Treppenwand abgerückt werden, so dass die Wand besser genutzt werden kann; je nach vorgesehenen Installationen 40- 70cm Platz hinter den Türen vorsehen.
Die Küche, als wichtigster Arbeitsraum im Haus, ist seltsam unterbelichtet - ansonsten wird mit Fenster grosszügig umgegangen. Warum gönnt ihr der Küche nicht planlinks noch ein Fenster? oder verbreitert zumindest das Fenster planoben maximal?
Die Türe zum Wohnzimmere würde ich verbreitern und 2-flüglig gestalten.
Auch dem Esszimmer würde ich eine Schiebetüre gönnen - da nutzt sie mehr, da es der direkte Durchgang von der Küche nach draußen werden wird.
Die Türe zum WC sollte nach außen öffnen. WC verlegen ist natürlich auch ne option, kommt aber auf die Fallleitungen im Haus drauf an.
Die Türen im Hauswirtschaftsraum sollten von der Treppenwand abgerückt werden, so dass die Wand besser genutzt werden kann; je nach vorgesehenen Installationen 40- 70cm Platz hinter den Türen vorsehen.
Die Küche, als wichtigster Arbeitsraum im Haus, ist seltsam unterbelichtet - ansonsten wird mit Fenster grosszügig umgegangen. Warum gönnt ihr der Küche nicht planlinks noch ein Fenster? oder verbreitert zumindest das Fenster planoben maximal?
Die Türe zum Wohnzimmere würde ich verbreitern und 2-flüglig gestalten.
Auch dem Esszimmer würde ich eine Schiebetüre gönnen - da nutzt sie mehr, da es der direkte Durchgang von der Küche nach draußen werden wird.
Ähnliche Themen