ᐅ Hausplanung 135m2 in Österreich
Erstellt am: 20.03.19 11:15
G
Gugelhupf20.03.19 11:15Hallo miteinander!
Obwohl wir aus Österreich sind und auch hier bauen, verfolgen wir schon länger diverse Beiträge hier in diesem Forum. Hier sind viele kreative Köpfe unterwegs und ich finde eure Hinweise in den anderen Beiträgen super.
Wir selbst befinden uns jetzt schon einige Zeit in der Hausplanung. Mittlerweile haben wir ein Grundstück südlich von Wien gekauft und planen mit einem Baubeginn 2020. Es soll massiv gebaut werden, wir schwanken aber noch zwischen Ziegel (ist hier einfach sehr weit verbreitet) und Ytong (Ytong-Bausatzhaus gefällt uns sehr gut von dem was wir bisher dazu gehört haben, aber sehr selten in der Gegend).
Besonders wichtig ist uns in unserem neuen Haus das Thema Effizienz bei der Wohnraumnutzung (keine unnötigen Spielereien, keine langen Wege, keine Balkone oder Erker) aber auch bei der Haustechnik (Wärmepumpe, Kontrollierte-Wohnraumlüftung etc.)
Ich vermute mal, dass hier relativ wenig Erfahrung mit den Österreichsichen Baubestimmungen besteht, daher werde ich versuchen alle aufkommenden Fragen möglichst schnell und kompetent zu beantworten.
Hier der ausgefüllte Fragebogen:
Bebauungsplan/Einschränkungen
Größe des Grundstücks: 604 m²
Hang: nein, komplett eben
Grundflächenzahl: (gibt es hier nicht) - 32% Bebaubare Fläche
Geschossflächenzahl: (gibt es hier nicht)
Baufenster, Baulinie und -grenze: vorderer Bauwich 3m, seitlicher Bauwich 3m oder halbe Traufenhöhe der zugewandten Hausfront je nachdem was mehr ist, hinterer Bauwich 3m
Randbebauung: innerhalb des Bauwich bis Max. 3m Höhe
Anzahl Stellplatz: 2
Geschossigkeit: keine Angabe laut Bebauungsplan
Dachform: keine Beschränkung laut BBPL
Stilrichtung: keine Beschränkung
Ausrichtung: keine Beschränkung
Maximale Höhen/Begrenzungen: Max. Gebäudehöhe 6,8m (Traufenhöhe)
weitere Vorgaben: keine
Anforderungen der Bauherren
Stilrichtung, Dachform, Gebäudetyp: klassisch rechteckig, Satteldach oder versetztes Pultdach, möglichst einfacher Baukörper ohne Erker oder Gauben, kein Balkon!
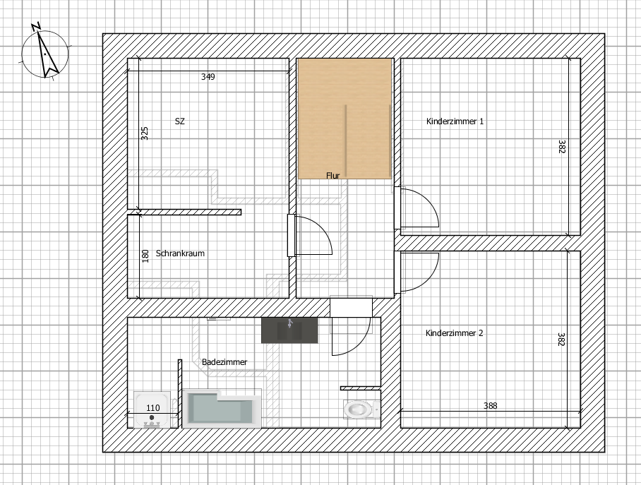
Keller, Geschosse: Keller (Fitness, Werkstatt, Waschküche und v.a. Stauraum), EG (Wohnräume + GZ), OG (Schlafräume)
Anzahl der Personen, Alter: Mann 28, Frau 34, 1x Kind 0,5j, 1x Kind 11j (jedes 2. Wochenende + Ferien)
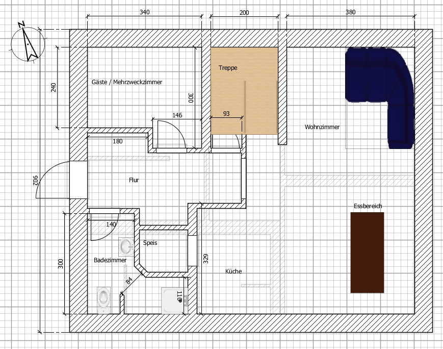
Raumbedarf im EG, OG: EG (Duschbad, Gäste/Homeoffice/Spiel/Mehrzweckraum, Wohnzimmer, Küche, Speis) OG (Schlafzimmer inkl Schrankraum, 2x Kinderzimmer, Badezimmer) KG (Fitnessraum, Waschküche, Lagerraum, Werkstatt)
Büro: Familiennutzung oder Homeoffice?: 80% Familiennutzung als Spielzimmer, 10% Homeoffice, 10% Gäste
Schlafgäste pro Jahr: ca. 5, aktuell hpts. Verwandtschaft die zu diversen Feiern von weit her anreist
offene oder geschlossene Architektur: Offen
konservativ oder moderne Bauweise: tendenziell eher konservativ aber wir sind offen für “Verrücktheiten”
offene Küche, Kochinsel: offene Küche mit Tresen
Anzahl Essplätze: Dauerhaft 6 Stk., für diverse Familienfeinern min 12 Stk. kurzfristig, >16Stk. langfristig
Kamin: nein
Musik/Stereowand: nein - aber großer Fernseher der oft genutzt wird
Balkon, Dachterrasse: definitiv nein!
Garage, Carport: Carport im Bauwich (im Norden?)
Nutzgarten, Treibhaus: definitives ja! Gartenarbeit ist ein großer Wunsch und der Grund für das ganze Projekt
weitere Wünsche/Besonderheiten/Tagesablauf, gern auch Begründungen, warum dieses oder das nicht sein soll: Das Haus soll möglichst auf Effizienz (bei Bau und vor allem im Betrieb) ausgelegt sein, daher keine verwinkelten Erker etc (A/V Verhältnis)
Weitere Wünsche: Kontrollierte-Wohnraumlüftung, Wäscheabwurfschacht, Trennwand zwischen den Kinderzimmern “nicht tragend”, damit diese in einigen Jahren entfernt werden kann wenn der große irgendwann gar nicht mehr kommt.
Das wichtigste ist uns ein möglichst großer Garten, daher kommt auch der Wunsch nach dem Keller, damit möglichst wenig Fläche verbaut wird.
Küche sollte definitiv groß genug sein, damit mindestens 2 Leute gleichzeitig darin kochen können - ist aktuell in der Wohnung ein Problem
Hausentwurf
Von wem stammt die Planung: Do-it-Yourself mit viel Input von Planern
Was gefällt besonders? Warum?: Quasi alle Wünsche umgesetzt
Was gefällt nicht? Warum?: Speis ist relativ klein, OG irgendwie noch nicht ganz ausgereift, Nische im Flur als Abstellraum-Ersatz für Staubsauger etc.
Preisschätzung lt Architekt/Planer: 430.000 € schlüsselfertig, 350.000 € “schlüsselfertig mit Bauherrenmithilfe”
Persönliches Preislimit fürs Haus, inkl Ausstattung: 350.000 € Belagsfertig ist das Ziel, hier ist noch ein ausreichender Polster vorhanden aber das wäre unsere Wunschvorstellung
favorisierte Heiztechnik: Wärmepumpe mit Erdwärmekollektor (Ringgrabenkollektor)
Anmerkung: Wir haben keinen Zeitdruck mit Planung und Bau. Wir sind sehr gerne dazu bereit und auch in der Lage vieles am Haus selbst zu bauen / auszubauen. Entsprechende “Eigenleistungsnachweise” für die Bank stellen auch kein Problem dar. Dadurch können wir die Baukosten gering halten.
Wenn Ihr verzichten müsst, auf welche Details/Ausbauten
-könnt Ihr verzichten: auf quasi alles außer der Speis und die offene Küche
-könnt Ihr nicht verzichten: Speis, offene Küche, ungern auf die Kontrollierte-Wohnraumlüftung
Warum ist der Entwurf so geworden, wie er jetzt ist?
Ein Gemisch aus vielen Beispielen aus Musterparks, Magazinen und vielen Gesprächen mit Planern / Architekten etc.
Was macht ihn in Euren Augen besonders gut oder schlecht?
Alle Räume die wir uns vorstellen vorhanden, relativ kurze Transportwege , kaum verschwendeter Platz
Was ist die wichtigste/grundlegende Frage zum Grundriss in 130 Zeichen zusammengefasst?
Wie findet ihr den Entwurf? Wo seht ihr noch Optimierungspotential? Platzierung Wäscheabwurfschacht?
Ich freue mich auf eure Meinungen und Kommentare!
Liebe Grüße,
euer Gugelhupf



Obwohl wir aus Österreich sind und auch hier bauen, verfolgen wir schon länger diverse Beiträge hier in diesem Forum. Hier sind viele kreative Köpfe unterwegs und ich finde eure Hinweise in den anderen Beiträgen super.
Wir selbst befinden uns jetzt schon einige Zeit in der Hausplanung. Mittlerweile haben wir ein Grundstück südlich von Wien gekauft und planen mit einem Baubeginn 2020. Es soll massiv gebaut werden, wir schwanken aber noch zwischen Ziegel (ist hier einfach sehr weit verbreitet) und Ytong (Ytong-Bausatzhaus gefällt uns sehr gut von dem was wir bisher dazu gehört haben, aber sehr selten in der Gegend).
Besonders wichtig ist uns in unserem neuen Haus das Thema Effizienz bei der Wohnraumnutzung (keine unnötigen Spielereien, keine langen Wege, keine Balkone oder Erker) aber auch bei der Haustechnik (Wärmepumpe, Kontrollierte-Wohnraumlüftung etc.)
Ich vermute mal, dass hier relativ wenig Erfahrung mit den Österreichsichen Baubestimmungen besteht, daher werde ich versuchen alle aufkommenden Fragen möglichst schnell und kompetent zu beantworten.
Hier der ausgefüllte Fragebogen:
Bebauungsplan/Einschränkungen
Größe des Grundstücks: 604 m²
Hang: nein, komplett eben
Grundflächenzahl: (gibt es hier nicht) - 32% Bebaubare Fläche
Geschossflächenzahl: (gibt es hier nicht)
Baufenster, Baulinie und -grenze: vorderer Bauwich 3m, seitlicher Bauwich 3m oder halbe Traufenhöhe der zugewandten Hausfront je nachdem was mehr ist, hinterer Bauwich 3m
Randbebauung: innerhalb des Bauwich bis Max. 3m Höhe
Anzahl Stellplatz: 2
Geschossigkeit: keine Angabe laut Bebauungsplan
Dachform: keine Beschränkung laut BBPL
Stilrichtung: keine Beschränkung
Ausrichtung: keine Beschränkung
Maximale Höhen/Begrenzungen: Max. Gebäudehöhe 6,8m (Traufenhöhe)
weitere Vorgaben: keine
Anforderungen der Bauherren
Stilrichtung, Dachform, Gebäudetyp: klassisch rechteckig, Satteldach oder versetztes Pultdach, möglichst einfacher Baukörper ohne Erker oder Gauben, kein Balkon!
Keller, Geschosse: Keller (Fitness, Werkstatt, Waschküche und v.a. Stauraum), EG (Wohnräume + GZ), OG (Schlafräume)
Anzahl der Personen, Alter: Mann 28, Frau 34, 1x Kind 0,5j, 1x Kind 11j (jedes 2. Wochenende + Ferien)
Raumbedarf im EG, OG: EG (Duschbad, Gäste/Homeoffice/Spiel/Mehrzweckraum, Wohnzimmer, Küche, Speis) OG (Schlafzimmer inkl Schrankraum, 2x Kinderzimmer, Badezimmer) KG (Fitnessraum, Waschküche, Lagerraum, Werkstatt)
Büro: Familiennutzung oder Homeoffice?: 80% Familiennutzung als Spielzimmer, 10% Homeoffice, 10% Gäste
Schlafgäste pro Jahr: ca. 5, aktuell hpts. Verwandtschaft die zu diversen Feiern von weit her anreist
offene oder geschlossene Architektur: Offen
konservativ oder moderne Bauweise: tendenziell eher konservativ aber wir sind offen für “Verrücktheiten”
offene Küche, Kochinsel: offene Küche mit Tresen
Anzahl Essplätze: Dauerhaft 6 Stk., für diverse Familienfeinern min 12 Stk. kurzfristig, >16Stk. langfristig
Kamin: nein
Musik/Stereowand: nein - aber großer Fernseher der oft genutzt wird
Balkon, Dachterrasse: definitiv nein!
Garage, Carport: Carport im Bauwich (im Norden?)
Nutzgarten, Treibhaus: definitives ja! Gartenarbeit ist ein großer Wunsch und der Grund für das ganze Projekt
weitere Wünsche/Besonderheiten/Tagesablauf, gern auch Begründungen, warum dieses oder das nicht sein soll: Das Haus soll möglichst auf Effizienz (bei Bau und vor allem im Betrieb) ausgelegt sein, daher keine verwinkelten Erker etc (A/V Verhältnis)
Weitere Wünsche: Kontrollierte-Wohnraumlüftung, Wäscheabwurfschacht, Trennwand zwischen den Kinderzimmern “nicht tragend”, damit diese in einigen Jahren entfernt werden kann wenn der große irgendwann gar nicht mehr kommt.
Das wichtigste ist uns ein möglichst großer Garten, daher kommt auch der Wunsch nach dem Keller, damit möglichst wenig Fläche verbaut wird.
Küche sollte definitiv groß genug sein, damit mindestens 2 Leute gleichzeitig darin kochen können - ist aktuell in der Wohnung ein Problem
Hausentwurf
Von wem stammt die Planung: Do-it-Yourself mit viel Input von Planern
Was gefällt besonders? Warum?: Quasi alle Wünsche umgesetzt
Was gefällt nicht? Warum?: Speis ist relativ klein, OG irgendwie noch nicht ganz ausgereift, Nische im Flur als Abstellraum-Ersatz für Staubsauger etc.
Preisschätzung lt Architekt/Planer: 430.000 € schlüsselfertig, 350.000 € “schlüsselfertig mit Bauherrenmithilfe”
Persönliches Preislimit fürs Haus, inkl Ausstattung: 350.000 € Belagsfertig ist das Ziel, hier ist noch ein ausreichender Polster vorhanden aber das wäre unsere Wunschvorstellung
favorisierte Heiztechnik: Wärmepumpe mit Erdwärmekollektor (Ringgrabenkollektor)
Anmerkung: Wir haben keinen Zeitdruck mit Planung und Bau. Wir sind sehr gerne dazu bereit und auch in der Lage vieles am Haus selbst zu bauen / auszubauen. Entsprechende “Eigenleistungsnachweise” für die Bank stellen auch kein Problem dar. Dadurch können wir die Baukosten gering halten.
Wenn Ihr verzichten müsst, auf welche Details/Ausbauten
-könnt Ihr verzichten: auf quasi alles außer der Speis und die offene Küche
-könnt Ihr nicht verzichten: Speis, offene Küche, ungern auf die Kontrollierte-Wohnraumlüftung
Warum ist der Entwurf so geworden, wie er jetzt ist?
Ein Gemisch aus vielen Beispielen aus Musterparks, Magazinen und vielen Gesprächen mit Planern / Architekten etc.
Was macht ihn in Euren Augen besonders gut oder schlecht?
Alle Räume die wir uns vorstellen vorhanden, relativ kurze Transportwege , kaum verschwendeter Platz
Was ist die wichtigste/grundlegende Frage zum Grundriss in 130 Zeichen zusammengefasst?
Wie findet ihr den Entwurf? Wo seht ihr noch Optimierungspotential? Platzierung Wäscheabwurfschacht?
Ich freue mich auf eure Meinungen und Kommentare!
Liebe Grüße,
euer Gugelhupf
W
WilhelmRo20.03.19 11:38Moin,
1. Jeder der nach oben will, muss am Sofa vorbei.
Das würde mir den Ruhebereich Wohnzimmer zerstören.
2. Küche einzeichnen. Am besten mit Original Maßen.
3. Viele Maße fehlen. Z.B. OG Band Klo. Sieht aus als könnte man nicht mehr von der Schüssel fallen, weil man darin eingekeilt wird (weiß ich aber nicht, da Maße fehlen. müssten hier min 1m sein eher 1,1m)
4. Welches Maß hat man um aus der Dusche zu kommen? (0,65m sind absolutes Minimum)
5. Wie "winzig" ist die Badewanne genau? Und wie wenig Platz hat man zwischen Badewanne und Waschbecken genau?
6. Satteldach? Dann 2 Höhenlinien eintragen: 1,5m und 2m. Denn die Dusche sieht bisher nach Kopfstoßen aus.
7. Treppenmaße 3,2m x 2,2m bei einer Podesttreppe
8. esstisch min 1,2m von der Wand weg und wieder ECHTE Maße nehmen bitte. Google: Ikea: Esstisch: 210x80 zB.
9. Überlegen ob Dusche im EG verzichtbar ist.
10. 80.000€ "Muskelhypothek" Bitte nicht! Nicht mal mit "ja aber mein Opa war mal Maurer" ... nein Bitte nicht! Über 15.000€ kann man reden.
Kosten:
160qm:
160*2000 = 320k
+ 50k Baunebenkosten = 370k
+ 60k Keller = 430k
+ 30k Decke Böden Außen Puffer = 460k
+ 10k Karport =
470.000€
Grundstück: Vorhanden? Kostet?
Bitte keine Diskussionen "das geht günstiger" etc.
Dafür dann die "Suche" bemühen: "Warum ein Hausbau immer teurer wird als geplant".
mfg
1. Jeder der nach oben will, muss am Sofa vorbei.
Das würde mir den Ruhebereich Wohnzimmer zerstören.
2. Küche einzeichnen. Am besten mit Original Maßen.
3. Viele Maße fehlen. Z.B. OG Band Klo. Sieht aus als könnte man nicht mehr von der Schüssel fallen, weil man darin eingekeilt wird (weiß ich aber nicht, da Maße fehlen. müssten hier min 1m sein eher 1,1m)
4. Welches Maß hat man um aus der Dusche zu kommen? (0,65m sind absolutes Minimum)
5. Wie "winzig" ist die Badewanne genau? Und wie wenig Platz hat man zwischen Badewanne und Waschbecken genau?
6. Satteldach? Dann 2 Höhenlinien eintragen: 1,5m und 2m. Denn die Dusche sieht bisher nach Kopfstoßen aus.
7. Treppenmaße 3,2m x 2,2m bei einer Podesttreppe
8. esstisch min 1,2m von der Wand weg und wieder ECHTE Maße nehmen bitte. Google: Ikea: Esstisch: 210x80 zB.
9. Überlegen ob Dusche im EG verzichtbar ist.
10. 80.000€ "Muskelhypothek" Bitte nicht! Nicht mal mit "ja aber mein Opa war mal Maurer" ... nein Bitte nicht! Über 15.000€ kann man reden.
Kosten:
160qm:
160*2000 = 320k
+ 50k Baunebenkosten = 370k
+ 60k Keller = 430k
+ 30k Decke Böden Außen Puffer = 460k
+ 10k Karport =
470.000€
Grundstück: Vorhanden? Kostet?
Bitte keine Diskussionen "das geht günstiger" etc.
Dafür dann die "Suche" bemühen: "Warum ein Hausbau immer teurer wird als geplant".
mfg
G
Gugelhupf20.03.19 12:15Hallo Willhelm,
Danke für deine Antwort.
Auf einige Punkte möchte ich dabei auch gleich eingehen.
Originalmaße der Küche sind schwierig, weil es ja noch keine Küche gibt?
Ich kann die Rechnung jetzt nicht ganz nachvollziehen, da wir bereits ein Angebot für wie erwähnt 430k€ SCHLÜSSELFERTIG inklusive Keller vorliegen haben. Wie bereits im Eingangspost erwähnt, wäre das auch ok und mit ausreichend Polster immer noch ok. Ich will an der Stelle jetzt auch nicht großartig über Finanzen diskutieren. Es sei einfach erwähnt, dass die der Preis im Angebot für uns ok wäre und die Eigenleistungdie wir rein stecken wollen dann einfach als Einsparungspotential nett ist. Wir kalkulieren mit dem schlüsselfertigen Preis (natürlich + Polster), und was es günstiger wird ist gut.
Bitte hier Fokus auf den Grundriss und nicht auf Finanzierung. Die ist auch ohne Eigenleistung mit einer ausreichenden Eigenkapitalquote gesichert...

Danke für deine Antwort.
Auf einige Punkte möchte ich dabei auch gleich eingehen.
WilhelmRo schrieb:einige Maße hab ich erfänzt, siehe angefügtes Bild.
2. Küche einzeichnen. Am besten mit Original Maßen.
3. Viele Maße fehlen. Z.B. OG Band Klo. Sieht aus als könnte man nicht mehr von der Schüssel fallen, weil man darin eingekeilt wird (weiß ich aber nicht, da Maße fehlen. müssten hier min 1m sein eher 1,1m)
4. Welches Maß hat man um aus der Dusche zu kommen? (0,65m sind absolutes Minimum)
5. Wie "winzig" ist die Badewanne genau? Und wie wenig Platz hat man zwischen Badewanne und Waschbecken genau?
Originalmaße der Küche sind schwierig, weil es ja noch keine Küche gibt?
WilhelmRo schrieb:Bei einer Max. Gebäudehöhe von 6,8m (Traufe) bzw. 8,5m First sind Dachschrägen nicht zwingend erforderlich. Kann gerne versuchen einen Schnitt anzufertigen, aber muss mich mit dme Programm spieln wie das geht...
6. Satteldach? Dann 2 Höhenlinien eintragen: 1,5m und 2m. Denn die Dusche sieht bisher nach Kopfstoßen aus.
WilhelmRo schrieb:Podesttreppe ist definitiv nicht zwingend, das war einfach die "Beispieltreppe" die auf Anbieb am besten rein gepasst hat... Gerne auch gewendelte Treppe möglich.
7. Treppenmaße 3,2m x 2,2m bei einer Podesttreppe
WilhelmRo schrieb:Esstisch ist originalmaße von unserem verfügbaren Tisch, den wir übersiedeln möchten (bereits in der "ausgezogenen" Stellung)
8. Esstisch min 1,2m von der Wand weg und wieder ECHTE Maße nehmen bitte. Google: IKEA: Esstisch: 210x80 zB.
WilhelmRo schrieb:Ist prinzipiell verzichtbar, würden wir aber gerne für Gäste, aber auch für Ausnahmen behalten.
9. Überlegen ob Dusche im EG verzichtbar ist.
WilhelmRo schrieb:
10. 80.000€ "Muskelhypothek" Bitte nicht! Nicht mal mit "ja aber mein Opa war mal Maurer" ... nein Bitte nicht! Über 15.000€ kann man reden.
Kosten:
160qm:
160*2000 = 320k
+ 50k Baunebenkosten = 370k
+ 60k Keller = 430k
+ 30k Decke Böden Außen Puffer = 460k
+ 10k Karport =
470.000€
Ich kann die Rechnung jetzt nicht ganz nachvollziehen, da wir bereits ein Angebot für wie erwähnt 430k€ SCHLÜSSELFERTIG inklusive Keller vorliegen haben. Wie bereits im Eingangspost erwähnt, wäre das auch ok und mit ausreichend Polster immer noch ok. Ich will an der Stelle jetzt auch nicht großartig über Finanzen diskutieren. Es sei einfach erwähnt, dass die der Preis im Angebot für uns ok wäre und die Eigenleistungdie wir rein stecken wollen dann einfach als Einsparungspotential nett ist. Wir kalkulieren mit dem schlüsselfertigen Preis (natürlich + Polster), und was es günstiger wird ist gut.
Bitte hier Fokus auf den Grundriss und nicht auf Finanzierung. Die ist auch ohne Eigenleistung mit einer ausreichenden Eigenkapitalquote gesichert...
WilhelmRo schrieb:Wie im Ausgangspost erwähnt, Grundstück vorhanden und gekauft.
Grundstück: Vorhanden? Kostet
G
Grantlhaua20.03.19 12:36Wieso die Dusche im EG? Ihr habt mit euren 135m² nicht wirklich üppig Platz. Solltet ihr unbedingt eine 2. Dusche benötigen, ist zu überlegen diese eventuell im Keller zum Fitnessraum zu integrieren?
Nur zum Verständnis:
- Wo ist die Autostellfläche?
- Das Gelbe soll der Garten sein - der Rest gehört auch zum Grundstück? Oder ist das schwarze Viereck der Nachbar? Bitte mal die Grundstücksgrenezen genau definieren.
- Die Wandstärken scheinen mir teilweise aus dem Ruder zu laufen. Welche Wandstärke soll die Außenmauer haben?
Für Skizzen gängig sind 40cm (36,5 + Putz). Wenn höhere Engerieklassen erzielt werden sollen, bitte mal erklären. Innenwände sind mit 20cm (17,5 + Putz) tragend, 15cm (11,5 + Beplankung) nicht tragend ganz gut darstellbar.
- Wo ist die Autostellfläche?
- Das Gelbe soll der Garten sein - der Rest gehört auch zum Grundstück? Oder ist das schwarze Viereck der Nachbar? Bitte mal die Grundstücksgrenezen genau definieren.
- Die Wandstärken scheinen mir teilweise aus dem Ruder zu laufen. Welche Wandstärke soll die Außenmauer haben?
Für Skizzen gängig sind 40cm (36,5 + Putz). Wenn höhere Engerieklassen erzielt werden sollen, bitte mal erklären. Innenwände sind mit 20cm (17,5 + Putz) tragend, 15cm (11,5 + Beplankung) nicht tragend ganz gut darstellbar.
Ähnliche Themen