stefanc84 schrieb:
Wie sind denn die Außenmaße vom Gebäude? Auf den Bildern ist das (bei mir) nicht zu erkennen.
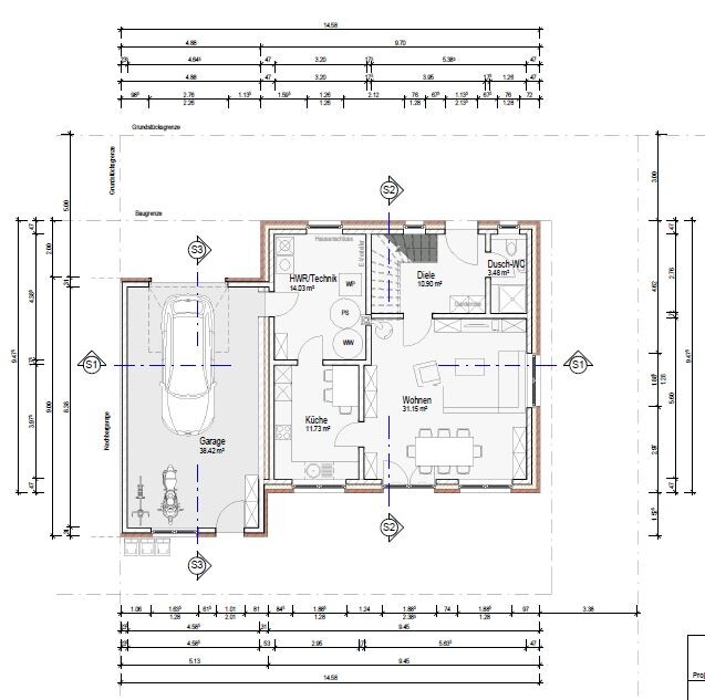
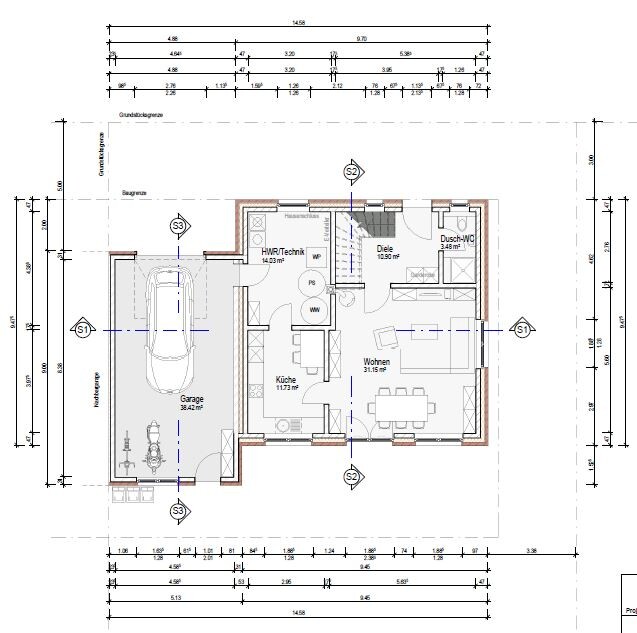
Es scheint ein eher kleines Haus zu sein und dementsprechend wenig überraschend empfinde ich alles als deutlich zu eng. Auf die zweite Dusche und einen Ankleideraum würde ich persönlich eh verzichten, vor allem aber bei den begrenzten Maßen. Die Küche würde ich auch noch etwas kleiner machen. Dafür dann aber Kinderzimmer, Esszimmer, Bad und Diele (wohin mit einer Garderobe und Schuhen?) größer. Der Technikraum wird wohl auch nicht als Abstellraum reichen, wenn kein Keller vorhanden ist.
Du bist Single, da klingt der Rat größer zu bauen vielleicht erst mal sinnfrei. Aber ich glaube nicht, dass ein paar qm mehr an den Baukosten groß etwas ändern würden. Baukosten pro qm anzusetzen ist sehr ungenau, es ist halt einfacher zu rechnen. Ich würde tippen 10qm mehr kosten dich vielleicht 5.000-8.000€ mehr. Und das halte ich in dem Fall für eine gute Investition. Auf dem Grundstück ist auch noch genügend Platz.
Ich schließe mich auch der Meinung an, dass die Aufteilung nicht gerade ideal ist.
Und ich frage mich erneut (wie schon bei unserer eigenen Planung) weshalb so viele Architekten nicht BEWOHNBAR planen können...
Also du merkst schon, ich bin nicht so begeistert, ist nicht böse gemeint. Ich hab bestimmt auch eine sehr eigene Vorstellung, brauche offene Laufwege und Platz für Möbel. Letztendlich muss es dir gefallen. Aber ich glaube, dass du hier im Forum bessere Vorschläge erhalten wirst als vom Architekten.Hallo,
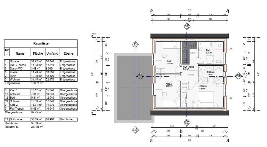
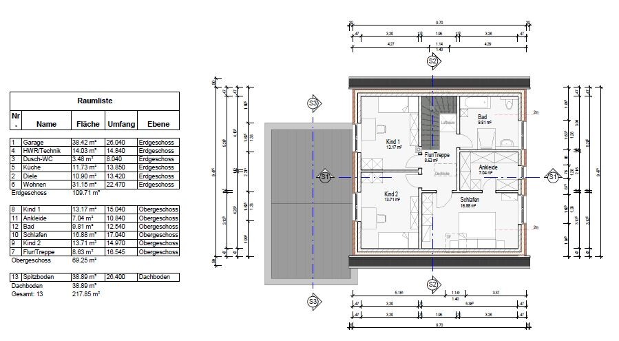
nach einiger Überlegung finde ich deinen Gedanke üb.er ca. 10 qm mehr und dafür etwas offener nicht verkehrt. Außenmaße sind 9.45 x 8.85.
Die Dusche im EG ist auf der Basis von, zweite Möglichkeit um bei Gästen, Kindern eine Ausweichmöglichkeit zu haben. Ist glaube ich kein gutes Argument!
Die Anordnung der Zimmer im OG wird auch anders (Vorschlag von kaho674).
Auch mit der möblierung im WZ der Couch, Fernsehen und Esstisch bin ich noch nicht zufrieden.
Danke für die offenen Worte, ist echt besser hier im Forum mit viel Brainpower über Pläne gucken zu lassen.
S
stefanc8406.11.17 18:21Ok so klein ist die Fläche ja gar nicht. Aber halt evtl etwas klein für Ankleide, 2te Dusche und Wohnküche.
Vorschläge von kaho finde ich auch gut, allerdings eher die erste Variante mit den Schrägen. Wirkt etwas weniger eckig und man kann in den Kinderzimmern evtl Schränke an den Wänden hinter den Türen platzieren. Schranknischen finde ich persönlich sehr sinnvoll. Wir haben überall schöne große Schranknischen außer im Bad, da hat das vom Grundriss her auch nicht hin gehaut.
Daher würde ich dir raten die Grundrisse von kaho herzunehmen und zu überlegen wie du dort das Bad einrichten würdest. Das war bei uns gar nicht so einfach und wir haben jetzt auch final keine perfekte Lösung dafür gefunden.
Vorschläge von kaho finde ich auch gut, allerdings eher die erste Variante mit den Schrägen. Wirkt etwas weniger eckig und man kann in den Kinderzimmern evtl Schränke an den Wänden hinter den Türen platzieren. Schranknischen finde ich persönlich sehr sinnvoll. Wir haben überall schöne große Schranknischen außer im Bad, da hat das vom Grundriss her auch nicht hin gehaut.
Daher würde ich dir raten die Grundrisse von kaho herzunehmen und zu überlegen wie du dort das Bad einrichten würdest. Das war bei uns gar nicht so einfach und wir haben jetzt auch final keine perfekte Lösung dafür gefunden.
Hallo,
nach euren Anregungen habe ich einige Sachen beim Architekten noch mal in Auftrag gegeben. Dabei habe ich den Vorschlag von kaho (Zimmerverteilung im OG) und Stefanc84 (etwas größer) mit einbezogen. Herausgekommen sind nun die folgenden neuen Pläne. Die sagen mir auch schon mehr zu als die vorherigen!
Natürlich sind z.B. die Möblierung im Wohn/Esszimmer noch nicht gut; die Dusche im Gäste-WC kommt wahrscheinlich raus (viel zu eng so); das Schlafzimmer ist nun sehr groß (~17 m2 plus Ankleide 7 m2), ich sehe aber keine weitere Möglichkeit das weiter zu optimieren (oder Ihr?). Das Dach ist nun auch gedreht mit viel Tageslicht bis Abends für die Kinder Zimmer.
Schöne Grüße.


nach euren Anregungen habe ich einige Sachen beim Architekten noch mal in Auftrag gegeben. Dabei habe ich den Vorschlag von kaho (Zimmerverteilung im OG) und Stefanc84 (etwas größer) mit einbezogen. Herausgekommen sind nun die folgenden neuen Pläne. Die sagen mir auch schon mehr zu als die vorherigen!
Natürlich sind z.B. die Möblierung im Wohn/Esszimmer noch nicht gut; die Dusche im Gäste-WC kommt wahrscheinlich raus (viel zu eng so); das Schlafzimmer ist nun sehr groß (~17 m2 plus Ankleide 7 m2), ich sehe aber keine weitere Möglichkeit das weiter zu optimieren (oder Ihr?). Das Dach ist nun auch gedreht mit viel Tageslicht bis Abends für die Kinder Zimmer.
Schöne Grüße.
Ich find das irgendwie voll gemütlich. Mir gefällt es jedenfalls.
Ok, so paar Kleinigkeiten. Die Dusche unten muss weg. Dazu ist einfach zu wenig Platz. Aber das ist ok. Die würde eh niemand nutzen, wenn es so eng ist.
Und oben im Bad rennt man gegen die Dusche, wenn man rein kommt. Hier würde ich überlegen, ob der Luftraum das wert ist. Vielleicht streicht man den lieber und setzt dafür die Bad-Tür dort hin und die Dusche dann hinter die Tür. Schwierige Entscheidung - da müssen die Badplaner mal zeigen, was so geht.
Großes Schlafzimmer find ich auch toll. Fernseher an die Wand - perfekter Ausweichraum, wenn man sich mal in der Wolle hat. 😉
Ok, so paar Kleinigkeiten. Die Dusche unten muss weg. Dazu ist einfach zu wenig Platz. Aber das ist ok. Die würde eh niemand nutzen, wenn es so eng ist.
Und oben im Bad rennt man gegen die Dusche, wenn man rein kommt. Hier würde ich überlegen, ob der Luftraum das wert ist. Vielleicht streicht man den lieber und setzt dafür die Bad-Tür dort hin und die Dusche dann hinter die Tür. Schwierige Entscheidung - da müssen die Badplaner mal zeigen, was so geht.
Großes Schlafzimmer find ich auch toll. Fernseher an die Wand - perfekter Ausweichraum, wenn man sich mal in der Wolle hat. 😉
K
kkk27272910.11.17 08:16Der Nebeneingang in den Hauswirtschaftsraum ist aus meiner Sicht nicht optimal? Man müsste ja zwangsweise immer durchs Wohnzimmer?
kkk272729 schrieb:
Der Nebeneingang in den Hauswirtschaftsraum ist aus meiner Sicht nicht optimal? Man müsste ja zwangsweise immer durchs Wohnzimmer?Ja, die Frage, ob man unter die Treppe noch ne Tür machen sollte. Vor allem auch wegen Wäsche waschen.Ähnliche Themen