Hallo zusammen,
Ich war lange Zeit ein stiller Leser in diesem Forum, aber nun ist es endlich soweit und wir wollen unseren Traum vom Eigenheim verwirklichen.
Ich hoffe ihr habt uns ein paar hilfreiche Tipps zur Verbesserung unseres Entwurfs. Vielen Dank schon mal im voraus!
Bebauungsplan/Einschränkungen
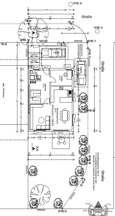
Größe des Grundstücks: 702 m2
Hang: Nein
Grundflächenzahl: ?
Geschossflächenzahl: ?
Anzahl Stellplatz: 2
Geschossigkeit: 2 Vollgeschosse
Dachform: Walmdach
Stilrichtung: Stadtvilla
Anforderungen der Bauherren
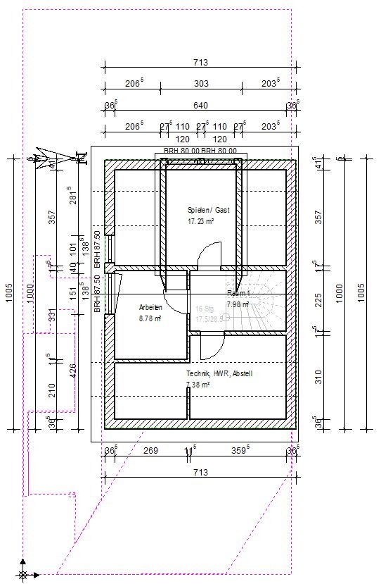
Stadtvilla 2 Vollgeschosse mit Keller
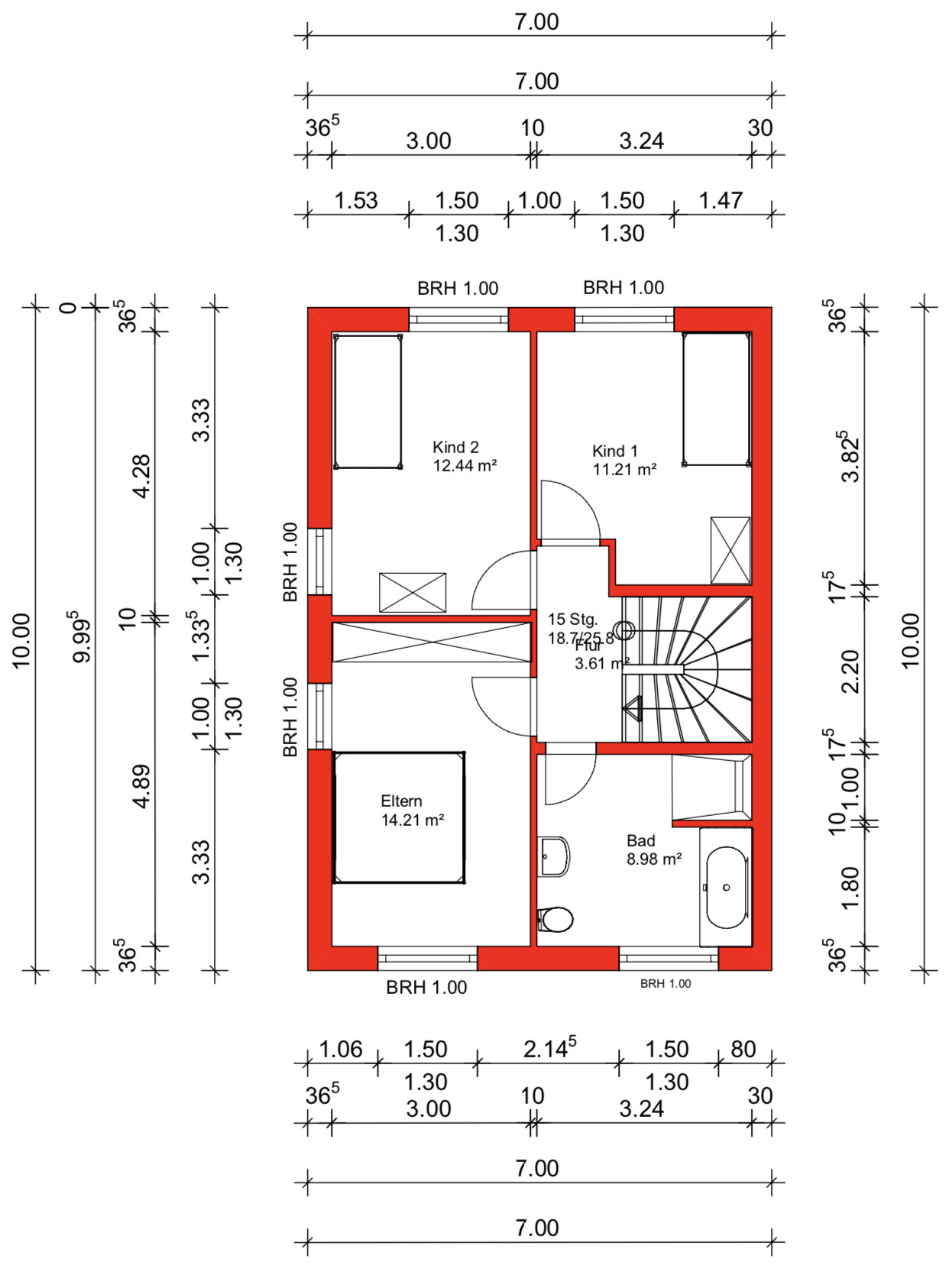
Wohnfläche: ca. 155m2
Anzahl der Personen, Alter: 2 Erwachsene m30 w 28 +1 Kind 3 Monate
Büro: Familiennutzung oder Homeoffice: Familiennutzung
Schlafgäste pro Jahr: nicht relevant
offene oder geschlossene Architektur: offene
konservativ oder moderne Bauweise: moderne Bauweise
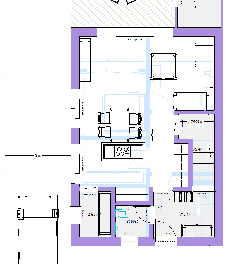
offene Küche, Kochinsel: offene Küche ohne Kochinsel
Anzahl Essplätze: 6 Plätze
Kamin: ja
Musik/Stereowand: evtl
Balkon, Dachterrasse: nicht notwendig
Garage, Carport: Doppelgarage Flachdach
Hausentwurf
Von wem stammt die Planung: Architekt des Bauunternehmens
Was gefällt besonders? Warum? Der offene Wohnraum
Was gefällt nicht: sind eigentlich zufrieden
Preisschätzung lt Architekt/Planer: kommt demnächst
Persönliches Preislimit fürs Haus, inkl Ausstattung: 450k
favorisierte Heiztechnik: Nahwärme + Kamin
Warum ist der Entwurf so geworden, wie er jetzt ist?
der Entwurf wurde nach unseren Wünschen genau angepasst.
Was ist die wichtigste/grundlegende Frage zum Grundriss in 130 Zeichen zusammengefasst?
Wie findet ihr unseren Hausentwurf bzw. hättet ihr Verbesserungsvorschläge?
Fragen welche wir uns aktuell stellen:
• Fenster im Wohnzimmer hinter dem Sofa bodentief?
• Fenster im Wohnzimmer Richtung Osten (Oberlicht) notwendig? Oder lieber darauf verzichten und dafür die Garage etwas vergrößern…
• Heizung im Hauswirtschaftsraum notwendig?
Anmerkung:
Wir haben unseren Entwurf geändert, leider haben wir bis jetzt den neueren Entwurf noch nicht.
Was hat sich geändert?
Das Fenster in der Küche geht über das Eck. Siehe Erdgeschossplan (Außenansicht stimmt momentan nicht)
Ost Ansicht: das obere linke Fenster wird durch ein Oberlicht getauscht. Das Fenster in der Mitte durch zwei senkrechte 2m Fenster getauscht und das rechte Fenster( Bad) kommt komplett weg.
Erdgeschoss: das Haus wird von 9,99m auf 10,99m vergrößert, somit haben wir im Wohnzimmer und Esszimmer 9m2 zusätzlich (Breite dadurch 4m. davor 3m) Ebenso kommen dadurch im Obergeschoss 9m2 dazu.



Ich war lange Zeit ein stiller Leser in diesem Forum, aber nun ist es endlich soweit und wir wollen unseren Traum vom Eigenheim verwirklichen.
Ich hoffe ihr habt uns ein paar hilfreiche Tipps zur Verbesserung unseres Entwurfs. Vielen Dank schon mal im voraus!
Bebauungsplan/Einschränkungen
Größe des Grundstücks: 702 m2
Hang: Nein
Grundflächenzahl: ?
Geschossflächenzahl: ?
Anzahl Stellplatz: 2
Geschossigkeit: 2 Vollgeschosse
Dachform: Walmdach
Stilrichtung: Stadtvilla
Anforderungen der Bauherren
Stadtvilla 2 Vollgeschosse mit Keller
Wohnfläche: ca. 155m2
Anzahl der Personen, Alter: 2 Erwachsene m30 w 28 +1 Kind 3 Monate
Büro: Familiennutzung oder Homeoffice: Familiennutzung
Schlafgäste pro Jahr: nicht relevant
offene oder geschlossene Architektur: offene
konservativ oder moderne Bauweise: moderne Bauweise
offene Küche, Kochinsel: offene Küche ohne Kochinsel
Anzahl Essplätze: 6 Plätze
Kamin: ja
Musik/Stereowand: evtl
Balkon, Dachterrasse: nicht notwendig
Garage, Carport: Doppelgarage Flachdach
Hausentwurf
Von wem stammt die Planung: Architekt des Bauunternehmens
Was gefällt besonders? Warum? Der offene Wohnraum
Was gefällt nicht: sind eigentlich zufrieden
Preisschätzung lt Architekt/Planer: kommt demnächst
Persönliches Preislimit fürs Haus, inkl Ausstattung: 450k
favorisierte Heiztechnik: Nahwärme + Kamin
Warum ist der Entwurf so geworden, wie er jetzt ist?
der Entwurf wurde nach unseren Wünschen genau angepasst.
Was ist die wichtigste/grundlegende Frage zum Grundriss in 130 Zeichen zusammengefasst?
Wie findet ihr unseren Hausentwurf bzw. hättet ihr Verbesserungsvorschläge?
Fragen welche wir uns aktuell stellen:
• Fenster im Wohnzimmer hinter dem Sofa bodentief?
• Fenster im Wohnzimmer Richtung Osten (Oberlicht) notwendig? Oder lieber darauf verzichten und dafür die Garage etwas vergrößern…
• Heizung im Hauswirtschaftsraum notwendig?
Anmerkung:
Wir haben unseren Entwurf geändert, leider haben wir bis jetzt den neueren Entwurf noch nicht.
Was hat sich geändert?
Das Fenster in der Küche geht über das Eck. Siehe Erdgeschossplan (Außenansicht stimmt momentan nicht)
Ost Ansicht: das obere linke Fenster wird durch ein Oberlicht getauscht. Das Fenster in der Mitte durch zwei senkrechte 2m Fenster getauscht und das rechte Fenster( Bad) kommt komplett weg.
Erdgeschoss: das Haus wird von 9,99m auf 10,99m vergrößert, somit haben wir im Wohnzimmer und Esszimmer 9m2 zusätzlich (Breite dadurch 4m. davor 3m) Ebenso kommen dadurch im Obergeschoss 9m2 dazu.
face26 schrieb:
Naja ist heute ein Arbeitstag, vielleicht sind nicht alle so digital natives wie viele Mitglieder hier.Ich hätte nichts gesagt, wenn a) nicht #18 gewesen wäre und b) ich den TE seit gestern Abend schon einige Male online gesehen habe. Aber jetzt ist ja alles gut F
Familie_B02.03.20 22:20Da wir momentan leider in der Arbeit sowie privat sehr beschäftigt sind, versuche ich, sobald ich wieder etwas Luft habe, auf eure Fragen einzugehen und mir nochmals genaue Gedanken zu machen, wie ich es mir vorstelle und falls ich schon die ein oder andere Idee habe teile ich sie euch natürlich mit.
Wünsche euch noch einen schönen Abend
Wünsche euch noch einen schönen Abend
Spunk schrieb:
So mal zum Vergleichen und Ideen bekommen.Vier der Fünf sind Reihenendhäuser, davon doppelt (oder dreifach ?) dasjenige von @goalkeeper https://www.instagram.com/11antgmxde/
https://www.linkedin.com/company/bauen-jetzt/
Spunk schrieb:
Naja, der Entwurf vom TE is ja auch mehr alleinstehendes Doppelhaus Das hast Du schön gesagt ...Spunk schrieb:
Das nimmt sich jetzt nicht viel.... aber einen wesentlichen Unterschied zwischen den ein/angebauten und dem freistehenden Reihenendhaus sehe dennoch - nämlich die vierte Fensterseite. Immerhin hast Du mich motiviert, noch mal nach dem Entwurf von @RobsonMKK zu graben:https://www.hausbau-forum.de/threads/vorschlaege-zum-Grundriss.15130/page-13#post-173659 bzw.
https://www.hausbau-forum.de/threads/vorschlaege-zum-Grundriss.15130/page-14#post-173688
https://www.instagram.com/11antgmxde/
https://www.linkedin.com/company/bauen-jetzt/
Ähnliche Themen