Hausausrichtung

4,50 Stern(e) 8 Votes
Zuletzt aktualisiert 27.11.2025
Sie befinden sich auf der Seite 3 der Diskussion zum Thema: Hausausrichtung
>> Zum 1. Beitrag <<

Y

ypg

Warum wird das mit der Traufseite zur Straße nicht eingehalten?
Die Traufe befindet sich normal an der längeren Hausseite. Wenn sich die Traufe an der kurzen Seite befindet, sieht ein Haus ungewöhnlich aus, also nicht gerade nett - ich sagte ja: wie ein ausgeschnittenes Reihenhaus.
-> lange Seite des Hauses parallel zur Strasse.
Man kann ja davon ausgehen, dass Ihr von der Form/Grundriss her ein relativ normales Standardhaus bauen wollt, ansonsten hättest Du es ja erwähnt, wenn es anders sein sollte ;)

Wenn es da unten SW sein soll, dann wirst Du wohl Recht haben - dann ist der Plan nicht genordet.
Mich würde es dennoch stören, einen versteckten Eingang zu haben, da gibt es bessere Möglichkeiten.
Und wie ich schon sagte: wird es vermutlich so sein, dass Du mehr Freiheiten hast, um die Garage/Carport zu stellen, als nur das gelbe Feld.
Das gelbe Feld wird sehr wahrscheinlich eine Erweiterung des Baufensters für die Stellplätze sein, alles andere wäre Nonsens: oberer Bereich ist ja gerade mal ein Meter, unten fünf, das reicht alles nicht für einen Stellplatz, aber eben für die Grenzbebauung, die man kann, aber vermutlich nicht muss.
 
kbt09

kbt09

Mal Yvonnes einen Plan so pi mal Daumen aufs Grundstück gedreht ... so sind doch die Richtungen zu verstehen - oder?

Der orangene Bereich W bis Nord wäre dann im Sommer die Abendsonne.

Architekturplan mit Grundrisszeichnungen, Bauplänen und Kompass auf Layout


Traufrichtung hätte ich jetzt auch wie Yvonne verstanden.

Hat der Nachbar schon gebaut? Dann versuche mal den Lageplan zu erweitern und in etwa einzuzeichnen, wie das Haus des Nachbarn liegt.
 
kbt09

kbt09

;) .. ich wollte halt verdeutlichen, dass in deiner Variante im Sommer abends auf deiner Terrasse tatsächlich noch Sonne ist, während es in dieser Variante:


eher sonnenknapp wird, zumindest an Sommerabenden.
 
L

Lulu24118

Moin,

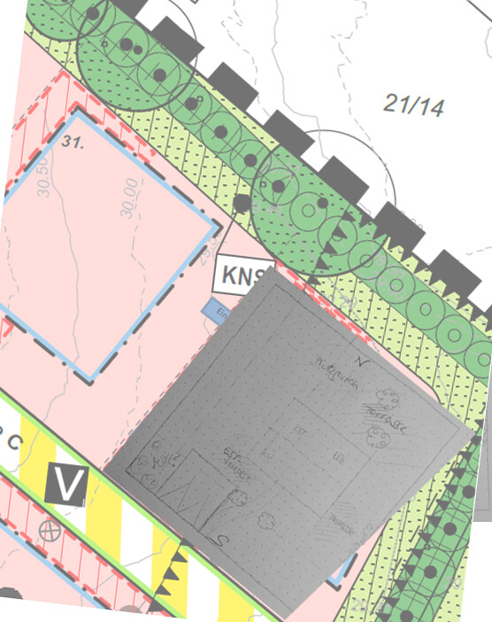
vielen Dank für eure bisherigen Anregungen. Ich habe das Gebäude noch einmal in den Lageplan eingezeichnet. Zusätzlich auch das Nachbargrundstück mit dem Haus.


Lageplan eines Grundstücks mit Parzellen, grünen Grenzlinien, blauen Bauflächen, Maßstab 1:1000


Somit hätte ich meine West-Terrasse gegenüber der Süd-Ost Terrasse meines Nachbars.
 
L

Lulu24118

Moin,

vielen Dank für eure bisherigen Anregungen. Ich habe das Gebäude noch einmal in den Lageplan eingezeichnet. Zusätzlich auch das Nachbargrundstück mit dem Haus.

Anhang anzeigen 12935

Somit hätte ich meine West-Terrasse gegenüber der Süd-Ost Terrasse meines Nachbars.

Was mir noch dazu einfällt. Der Nachbar liegt mit seinem Haus lt. Bebauungsplan ca. 1 Meter höher als mein Haus. Könnte das die Sonneneinstrahlung beeinflussen?
 
Zuletzt aktualisiert 27.11.2025
Im Forum Bauplanung gibt es 5072 Themen mit insgesamt 100818 Beiträgen


Ähnliche Themen zu Hausausrichtung
Nr.ErgebnisBeiträge
1Terrasse mit Plenera Dielen 32
2Grundriss Einfamilienhaus mit Doppelgarage und Terrasse 19
3Begehbare Garage (Terrasse) - Seite 211
4Terrasse mit Platten über Eck (L-Form). Realisierung Gefälle 12
5Terrasse erstellen lassen 11
6Terrasse auf Flachdach - Aufbau - Belag 12
7Fundament/Untergrund WPC Terrasse 36
8Terrasse und Auffahrt 55
9Terrasse auf Garage wird nur zum teil genehmigt 11
10Terrasse vom Nachbar grenzt an Garage 11
11Wohin mit Terrasse/Wohnräumen wenn Straße auf Westseite liegt? 45
12Winkelbungalow, Terrasse ganz oder halb überdachen? 57
13Terrasse anlegen - Probleme mit dem Gefälle 18
14Holz-Terrasse - Welche Holzart wählen, oder WPC Dielen? - Seite 431
15Lichtverlust durch überdachte Terrasse zu gross? 16
16Ausrichtung und Form von Einfamilienhaus - Ecke für Terrasse abschneiden? 14
17Schuhe an der Terrasse; wohin damit? Wäre ein Schrank die Lösung? 28
18Terrasse an Hanglage auf Stelzen - Holz oder Stahl besser? 38
19Neu verlegte Terrasse mit Betonsteinplatten -> ist das normal? - Seite 211
20Terrasse ebenerdig raus? Oder mit Stufe? 12

Oben