ᐅ Haus von 1987 - Meinungen zu Grundriss und Verbesserungspotenzialen
Erstellt am: 23.01.26 15:01
B
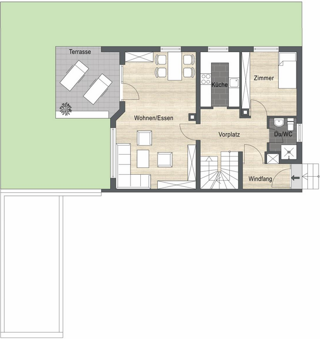
Biene32Wir haben ein Haus von 1987 gekauft, welches wir in den nächsten Monaten etwas sanieren. Wir sind bald zu 4., also 2 Erwachsene und 2 Kinder. K1 ist 2,5. Langfristig werden wir also 3 Schlafzimmer brauchen. Da wir beide im Homeoffice arbeiten können, ist ein Büro zwingend erforderlich. Außenmaße Haus sind 8x10,5m. Ausrichtung ist wie im Bild (Norden ist oben)
Unsere Pläne und Probleme, auf die wir bisher gestoßen sind:
EG

DG

UG

Wie würdet ihr das Haus gestalten? Machen unsere Überlegungen Sinn? Oder habt ihr vielleicht ganz andere, verrückte Ideen?
Unsere Pläne und Probleme, auf die wir bisher gestoßen sind:
EG
- Wand zwischen Küche und Wohnen entfernen. Witzigerweiße war diese auch in den ursprünglichen Bauplänen nicht enthalten, wurde wohl beim Bau oder im Nachgang hochgezogen. Im Baugesuch ist die Küche offen gestaltet, ohne Türe. Damit ergibt sich eine etwa 3,00mx2,4m große Küche. Die Küche ist so relativ klein. Die Idee meines Mannes war, die untere Wand zu versetzen und so etwa 50cm zu gewinnen. So würde man eine zusätzliche Zeile schaffen, da sonst mit Halbinsel zum Wohnbereich der Durchgang in die Küche zu klein wird. Damit würde aber die Nische für eine Garderobe wegfallen, die ich schon auch wichtig finde. Dafür sehe ich sonst keinen geeigneten Platz.
- Das Zimmer unten würde ich gerne als reines Spielzimmer für die Kinder nutzen, da diese ja meistens da sind, wo auch die Eltern sind. Langfristig (>10 Jahre) könnten wir Eltern dann ins EG ziehen. Das Zimmer ist etwa 3,50x3m groß, sollte also ausreichen.
DG
- Schlaf- und Kinderzimmer sind eigentlich klar gesetzt. Wie oben schon geschrieben würden wir dann, wenn die Kinder ihre eigenen Zimmer haben wohlen, ins EG ziehen.
- Beim Büro sind wir uns auch nicht ganz einig. Mein Mann würde hier einen begehbaren Kleiderschrank machen, da die verfügbare Wandfläche im Schlafzimmer gering ist. Oder man müsste die Schränke als Art Raumteiler in den Raum stellen. Er würde das Büro runter ins Spielzimmer, oder in den Hobbyraum legen. Argument ist auch, dass so zwei kleine Kinder 2 ganze Räume belegen, was total ineffizient wäre.
UG
- Hierüber haben wir uns noch nicht viele Gedanken gemacht. Klar ist, dass die Wand zu den Öltanks wegmuss, um Platz für die Technik (WP, später ggfs. Photovoltaik) zu schaffen
- Der Hobbyraum mit großzügigem Lichthof könnte man als Büro, Schmutzschleuse oder Fitness-Raum nutzen. Der Hobbyraum wurde bisher beheizt. Da wir eine Fußbodenheizung in Erwägung ziehen (gefräst), müssten wir uns dann wahrscheinlich auch entscheiden, ob das hier Sinn macht.
- Noch der Hinweis, dass der Durchgang zur Garage offen ist.
Wie würdet ihr das Haus gestalten? Machen unsere Überlegungen Sinn? Oder habt ihr vielleicht ganz andere, verrückte Ideen?
Außenansichten wäre nicht schlecht.
Die Nische hate ich schon für wichtig. Ich würde Essen und Küche tauschen. Das Wasser könnte man wohl gut versetzen. Dann habt Ihr eine größere Küche mit Terrassenzugang und die Küche dann als Essbereich. Tisch für den Alltag an das Fenster, und wenn Besuch kommt, drehen.
Also in das Wohnzimmer. Kinder sind entweder so jung, dass sie bei den Eltern im WZ spielen, am Esstisch oder so alt, dass sie für sich oben sein wollen.
Auch für Schränke? Wenn doch die Idee zu einer Ankleide im Kopf schwebt, sind das krasse Differenzen in den Bedürfnissen.
Ich würde die Schlafräume oben belassen und das Büro im EG haben wollen. Genau dann kann man doch auch die Kinder tagsüber betreuen, wenn sie Betreuung brauchen, bzw. kurze Wege zur Küche, was kochen oder Wäsche, dann weiterarbeiten.
Die Frage ist, ob man die Loggia so lässt oder feststellt, dass sie über ist und hier dann ggf eine Wohnraumerweiterung macht.
Biene32 schrieb:
ie Idee meines Mannes war, die untere Wand zu versetzen und so etwa 50cm zu gewinnen. So würde man eine zusätzliche Zeile schaffen, da sonst mit Halbinsel zum Wohnbereich der Durchgang in die Küche zu klein wird. Damit würde aber die Nische für eine Garderobe wegfallen, die ich schon auch wichtig finde. Dafür sehe ich sonst keinen geeigneten Platz.
Die Nische hate ich schon für wichtig. Ich würde Essen und Küche tauschen. Das Wasser könnte man wohl gut versetzen. Dann habt Ihr eine größere Küche mit Terrassenzugang und die Küche dann als Essbereich. Tisch für den Alltag an das Fenster, und wenn Besuch kommt, drehen.
Biene32 schrieb:
eines Spielzimmer für die Kinder nutzen, da diese ja meistens da sind, wo auch die Eltern sind.
Also in das Wohnzimmer. Kinder sind entweder so jung, dass sie bei den Eltern im WZ spielen, am Esstisch oder so alt, dass sie für sich oben sein wollen.
Biene32 schrieb:
Eltern dann ins EG ziehen. Das Zimmer ist etwa 3,50x3m groß, sollte also ausreichen.
Auch für Schränke? Wenn doch die Idee zu einer Ankleide im Kopf schwebt, sind das krasse Differenzen in den Bedürfnissen.
Biene32 schrieb:
Wie oben schon geschrieben würden wir dann, wenn die Kinder ihre eigenen Zimmer haben wohlen, ins EG ziehen.
Ich würde die Schlafräume oben belassen und das Büro im EG haben wollen. Genau dann kann man doch auch die Kinder tagsüber betreuen, wenn sie Betreuung brauchen, bzw. kurze Wege zur Küche, was kochen oder Wäsche, dann weiterarbeiten.
Die Frage ist, ob man die Loggia so lässt oder feststellt, dass sie über ist und hier dann ggf eine Wohnraumerweiterung macht.
Biene32 schrieb:
Wand zwischen Küche und Wohnen entfernen. Witzigerweiße war diese auch in den ursprünglichen Bauplänen nicht enthalten, wurde wohl beim Bau oder im Nachgang hochgezogen. Im Baugesuch ist die Küche offen gestaltet, ohne Türe. [...] Noch der Hinweis, dass der Durchgang zur Garage offen ist.Weniger witzigerweise (Susi-S, kein scharfes) hast Du hier Hinweise unterschlagen, die für unsere Hilfe sehr nützliche Grundlagen wären :-(
Wenn Du die Baupläne kennst, solltest Du sie hier auch zeigen (gerne mit dem Kommentar, was in der Wirklichkeit anders ist als im Bauantrag). Die Zeichnungen (aus dem Exposé des Vorbesitzers / Maklers ?) geben Hinweise, die Dein Text ausläßt.
Beispielsweise, daß es sich vermutlich um eine Doppelhaushälfte handelt. Die Wand zwischen Küche und Wohnen ist den gezeigten Zeichnungen nach zu urteilen (und auch sonst vermutlich) tragend, was sowohl Deine Umbauplanung in entscheidender Weise berührt als auch die Darstellung der vermutet spontanen Hinzufügung unwahrscheinlich macht.
https://www.instagram.com/11antgmxde/
https://www.linkedin.com/company/bauen-jetzt/
ypg schrieb:
Außenansichten wäre nicht schlecht.
Biene32 schrieb:
ie Idee meines Mannes war, die untere Wand zu versetzen und so etwa 50cm zu gewinnen. So würde man eine zusätzliche Zeile schaffen, da sonst mit Halbinsel zum Wohnbereich der Durchgang in die Küche zu klein wird. Damit würde aber die Nische für eine Garderobe wegfallen, die ich schon auch wichtig finde. Dafür sehe ich sonst keinen geeigneten Platz.
Die Nische hate ich schon für wichtig. Ich würde Essen und Küche tauschen. Das Wasser könnte man wohl gut versetzen. Dann habt Ihr eine größere Küche mit Terrassenzugang und die Küche dann als Essbereich. Tisch für den Alltag an das Fenster, und wenn Besuch kommt, drehen.
Biene32 schrieb:
eines Spielzimmer für die Kinder nutzen, da diese ja meistens da sind, wo auch die Eltern sind.
Also in das Wohnzimmer. Kinder sind entweder so jung, dass sie bei den Eltern im WZ spielen, am Esstisch oder so alt, dass sie für sich oben sein wollen.
Biene32 schrieb:
Eltern dann ins EG ziehen. Das Zimmer ist etwa 3,50x3m groß, sollte also ausreichen.
Auch für Schränke? Wenn doch die Idee zu einer Ankleide im Kopf schwebt, sind das krasse Differenzen in den Bedürfnissen.
Biene32 schrieb:
Wie oben schon geschrieben würden wir dann, wenn die Kinder ihre eigenen Zimmer haben wohlen, ins EG ziehen.
Ich würde die Schlafräume oben belassen und das Büro im EG haben wollen. Genau dann kann man doch auch die Kinder tagsüber betreuen, wenn sie Betreuung brauchen, bzw. kurze Wege zur Küche, was kochen oder Wäsche, dann weiterarbeiten.
Die Frage ist, ob man die Loggia so lässt oder feststellt, dass sie über ist und hier dann ggf eine Wohnraumerweiterung macht.Danke für die Denkanstöße. Die Loggia (wie man unten auf den Plänen sieht) war früher zu, und wir haben auch bereits nachgedacht, diese zu schließen. Das würde nur das Sanierungsbudget sprengen und müsste irgendwann nachgeholt werden. Mit was für Kosten darf man da rechnen? 10.000 EUR?
Hier noch einige Ansichten:
Den Kaminofen hätten wir abgerissen und gegen einen kleineren Schwedenofen getauscht.
11ant schrieb:
Weniger witzigerweise (Susi-S, kein scharfes) hast Du hier Hinweise unterschlagen, die für unsere Hilfe sehr nützliche Grundlagen wären :-(
Wenn Du die Baupläne kennst, solltest Du sie hier auch zeigen (gerne mit dem Kommentar, was in der Wirklichkeit anders ist als im Bauantrag). Die Zeichnungen (aus dem Exposé des Vorbesitzers / Maklers ?) geben Hinweise, die Dein Text ausläßt.
Beispielsweise, daß es sich vermutlich um eine Doppelhaushälfte handelt. Die Wand zwischen Küche und Wohnen ist den gezeigten Zeichnungen nach zu urteilen (und auch sonst vermutlich) tragend, was sowohl Deine Umbauplanung in entscheidender Weise berührt als auch die Darstellung der vermutet spontanen Hinzufügung unwahrscheinlich macht.Sorry dafür, ich wollte das Ganze nicht allzu verwirrend machen. Ich habe die Baupläne inkl. Maße angehängt.
Ich gehe auch davon aus, dass die Wand tragend ist. Das dürfte dann aber mit einem Stahlträger realisierbar sein, oder nicht? Ist auf jedenfall im Budget mal drin (mit 6.000 EUR).
Biene32 schrieb:
Den Kaminofen hätten wir abgerissen und gegen einen kleineren Schwedenofen getauscht.Ihr lasst aber die Fliesen und Heizung so drin? Oder ist ein Austausch geplant inklusive Fußbodenheizung?
Kann sein, dass Ihr dann ein Fliesenproblem bekommt, wenn es zum Abbruch des Kamins kommt.
Biene32 schrieb:
Sorry dafür, ich wollte das Ganze nicht allzu verwirrend machen. Ich habe die Baupläne inkl. Maße angehängt.Danke.
Biene32 schrieb:
Ich gehe auch davon aus, dass die Wand tragend ist.Jepp, die wurde sicherlich dann ensprechend tragend weiter in die Küche gefürt, die Wand. Träger ist machbar.
Energetisch ist das vorgezogene Fenster eine Sau. Das gehört ausgetauscht, kann man aber später noch machen, wenn man Zug verspürt.
ypg schrieb:
Biene32 schrieb:
Den Kaminofen hätten wir abgerissen und gegen einen kleineren Schwedenofen getauscht.
Ihr lasst aber die Fliesen und Heizung so drin? Oder ist ein Austausch geplant inklusive Fußbodenheizung?
Kann sein, dass Ihr dann ein Fliesenproblem bekommt, wenn es zum Abbruch des Kamins kommt.
Biene32 schrieb:
Sorry dafür, ich wollte das Ganze nicht allzu verwirrend machen. Ich habe die Baupläne inkl. Maße angehängt.
Danke.
Biene32 schrieb:
Ich gehe auch davon aus, dass die Wand tragend ist.
Jepp, die wurde sicherlich dann ensprechend tragend weiter in die Küche gefürt, die Wand. Träger ist machbar.
Energetisch ist das vorgezogene Fenster eine Sau. Das gehört ausgetauscht, kann man aber später noch machen, wenn man Zug verspürt.Boden kommt raus, Fußbodenheizung Fräsen ist geplant, also kommt der Heizkörper weg. Da ist nur die Frage, ob der Estrich hoch genug ist. Plan B wäre dann Heizkörper.
Deine Idee mit der Küche vor der Terrassentür würde dann so aussehen, dass ich links vom Fenster zwei Hochschränke habe und dann Unterschränke mit Insel? Oder ein L zum Esstisch?
Dieses Erkerfenster wurde auch gemeinsam mit der Loggia nachträglich eingebaut. Wird natürlich entfernt, da wir einen kompletten Fenstertausch planen.
Ähnliche Themen