Guten Tag liebe Gemeinde,
wir sind mit unserer Planung ein gutes Stück weiter gekommen. Soll heißen: Grundstück gehört offiziell uns. Haus fertig geplant und Baugenehmigung ist auch schon da.
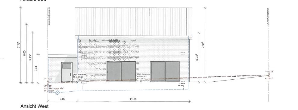
Jetzt ging es an den Entwässerungsantrag. Da unser Grundstück leichte Hanglage Richtung Norden hat, ist das Haus aktuell ein Stückweit tiefer gesetzt. Das liegt unteranderem auch daran, dass ich jeden Zentimeter in der Garagenhöhe brauchen kann.
Jetzt stört mich das "tiefer Gesetze Haus" ein wenig. Ich habe bereits mit unserem Ing. gesprochen. Der gab mir 2 Möglichkeiten. A. so lassen. B. alles aufschütten, aber dann müssen wir die Garage deutlich niedriger machen, da die 3m von der ursprünglichen Geländehöhe genommen werden muss. (beschissene Regel).
Den Nachbarn könnte man noch um Erlaubnis fragen, ob es ok wäre höher zu gehen, aber die das Grundstück neben bzw. hinter uns haben, sind derzeit noch nicht fix.
Was würdet ihr machen? hat jemand eine Idee?
ich habe bisher an eine Zwischenlösung gedacht. Sprich nur ein wenig aufschütten, aber nicht voll auf südliches Straßenniveau. So hat man weniger Hang bei der Einfahrt und kann die Garage trotzdem relativ hoch machen.
Ich hoffe ich konnte mein Problem halbwegs gut schildern.
Ich habe ein paar Bilder von den Ansichten und dem Grundstücksplan inkl. Höhenmeter beigefügt.
Evtl. hat jemand eine zündende Idee.
MFG
Brauki





wir sind mit unserer Planung ein gutes Stück weiter gekommen. Soll heißen: Grundstück gehört offiziell uns. Haus fertig geplant und Baugenehmigung ist auch schon da.
Jetzt ging es an den Entwässerungsantrag. Da unser Grundstück leichte Hanglage Richtung Norden hat, ist das Haus aktuell ein Stückweit tiefer gesetzt. Das liegt unteranderem auch daran, dass ich jeden Zentimeter in der Garagenhöhe brauchen kann.
Jetzt stört mich das "tiefer Gesetze Haus" ein wenig. Ich habe bereits mit unserem Ing. gesprochen. Der gab mir 2 Möglichkeiten. A. so lassen. B. alles aufschütten, aber dann müssen wir die Garage deutlich niedriger machen, da die 3m von der ursprünglichen Geländehöhe genommen werden muss. (beschissene Regel).
Den Nachbarn könnte man noch um Erlaubnis fragen, ob es ok wäre höher zu gehen, aber die das Grundstück neben bzw. hinter uns haben, sind derzeit noch nicht fix.
Was würdet ihr machen? hat jemand eine Idee?
ich habe bisher an eine Zwischenlösung gedacht. Sprich nur ein wenig aufschütten, aber nicht voll auf südliches Straßenniveau. So hat man weniger Hang bei der Einfahrt und kann die Garage trotzdem relativ hoch machen.
Ich hoffe ich konnte mein Problem halbwegs gut schildern.
Ich habe ein paar Bilder von den Ansichten und dem Grundstücksplan inkl. Höhenmeter beigefügt.
Evtl. hat jemand eine zündende Idee.
MFG
Brauki
Otus11 schrieb:
Garage mit Schrägdach als Alternative?
In Zeiten zunehmender Starkregenereignisse würde ich jedenfalls ein Haus nie in so eine Senke bauen.
Ist die Straße samt Gehweg schon fertig?
Die kommen am Ende gern auch noch mal deutlich höher.ja wäre eine Alternative. Fenster zur Garage haben wir Keine.
Naja das Haus wäre nicht in eine Senke. Es wäre an der Südseite abschüssig und läuft dann gerade rüber zum Nachbarn. Dieser ist ebenfalls am Hang, nur weiter "unten".
Snowy36 schrieb:
Wir haben uns in der Baugenehmigung genau aus diesen Gründen eine Abweichungserlaubnis geholt.....Hat gedauert u bisschen was gekostet, aber mir war es das Wert.....
Hatte das Gefühl beim Bebauungsplan hatte sich da so genau keiner Gedanken drüber gemacht....In wie fern eine Abweichungserlaubnis? das ihr die Garage höher als 3m über normal gewachsenem Boden machen dürft?F
Fairplay-Haus29.04.19 15:56Hallo Brauki
Sehe ich das richtig, dass das Haus unterhalb der Rückstauebene liegt? Dann solltet Ihr für eine gute Oberflächendränage einplanen. Ich glaube nicht, das man nach der Erteilung der Baugenehmigung das Haus einfach höher setzen darf. Soll die Garage für PKW sein? Dann kann man mit 2,25 m Rohbauhöhe auskommen plus Fundament und Dachkonstruktion sollten 25 cm übrig bleiben.
Sehe ich das richtig, dass das Haus unterhalb der Rückstauebene liegt? Dann solltet Ihr für eine gute Oberflächendränage einplanen. Ich glaube nicht, das man nach der Erteilung der Baugenehmigung das Haus einfach höher setzen darf. Soll die Garage für PKW sein? Dann kann man mit 2,25 m Rohbauhöhe auskommen plus Fundament und Dachkonstruktion sollten 25 cm übrig bleiben.
Ähnliche Themen