ᐅ Grundrissvorschlag für 3-geschossiges Stadthaus, 6- Zimmer
Erstellt am: 24.08.12 09:48
C
chris_in_LEC
chris_in_LE24.08.12 09:48Hallo alle miteinander,
wir planen im nächsten Jahr ein Eigenheim für unsere 5-köpfige Familie (3 Kinder von 0-4) zu bauen. Momentan sind wir in fortgeschrittenen Planungen mit einer Architektin für eine super gelegene Baulücke, welche mit einer Stadthaus-Doppelhaushälfte 3-geschossig mit Flachdach bebaut werden darf.
Nun haben wir Grundrissvorschläge von der Architektion erhalten. Um von den Erfahrungen der hier Mitlesenden zu profitieren würde ich die Grundrisse gerne zur Diskussion stellen. Vielleicht fallen jemandem noch Verbesserungsvorschläge ein, oder Dinge, die man selbst im Nachhinein gerne anders gehabt hätte.
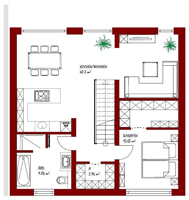
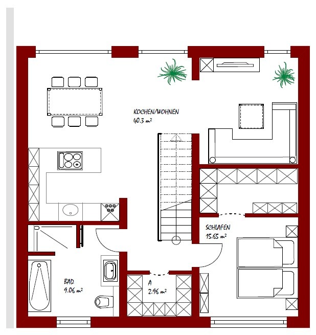
Zu unseren Vorgaben: 3 ähnliche große Kinderzimmer mit eigenem Duschbad, Elternzimmer mit Ankleide, Arbeitszimmer, zusammenhängende Wohnküche. Carport mit Abstellraum und Zugang zum Garten (damit man nicht mit Schubkarre etc. durch das ganze Haus muss).
Zum Grundstück: Es ist 316 qm groß, relativ länglich, Breite zur Strasse hin ca. 9 m. Der Garten geht nach Süden raus, der Blick nach hinten ist unverbaubar, da Grünfläche / Parkanlage.
Insbesondere würde mich interessieren, wie Ihr das Angebot an Stellfläche beurteilt. Ich hätte mir ja ein geneigtes Sattel-/Walm-/Pultdach o.Ä. gewünscht um da etwas Stauraum zu haben, aber es ist nun mal Flachdach vorgeschrieben. Einen Keller werden wir uns angesichts der Kosten (hoher Grundwasserspiegel -> in jedem Fall Weiße Wanne nötig) nicht leisten.
Vielen Dank für Eure Anregungen!
Christian K.






wir planen im nächsten Jahr ein Eigenheim für unsere 5-köpfige Familie (3 Kinder von 0-4) zu bauen. Momentan sind wir in fortgeschrittenen Planungen mit einer Architektin für eine super gelegene Baulücke, welche mit einer Stadthaus-Doppelhaushälfte 3-geschossig mit Flachdach bebaut werden darf.
Nun haben wir Grundrissvorschläge von der Architektion erhalten. Um von den Erfahrungen der hier Mitlesenden zu profitieren würde ich die Grundrisse gerne zur Diskussion stellen. Vielleicht fallen jemandem noch Verbesserungsvorschläge ein, oder Dinge, die man selbst im Nachhinein gerne anders gehabt hätte.
Zu unseren Vorgaben: 3 ähnliche große Kinderzimmer mit eigenem Duschbad, Elternzimmer mit Ankleide, Arbeitszimmer, zusammenhängende Wohnküche. Carport mit Abstellraum und Zugang zum Garten (damit man nicht mit Schubkarre etc. durch das ganze Haus muss).
Zum Grundstück: Es ist 316 qm groß, relativ länglich, Breite zur Strasse hin ca. 9 m. Der Garten geht nach Süden raus, der Blick nach hinten ist unverbaubar, da Grünfläche / Parkanlage.
Insbesondere würde mich interessieren, wie Ihr das Angebot an Stellfläche beurteilt. Ich hätte mir ja ein geneigtes Sattel-/Walm-/Pultdach o.Ä. gewünscht um da etwas Stauraum zu haben, aber es ist nun mal Flachdach vorgeschrieben. Einen Keller werden wir uns angesichts der Kosten (hoher Grundwasserspiegel -> in jedem Fall Weiße Wanne nötig) nicht leisten.
Vielen Dank für Eure Anregungen!
Christian K.
Du solltest die Grundrisse noch mal versuchen anders einzustellen. Meine Brille hat zumindest nicht ausgereicht.
Zumindest was ich erahnen konnte, habt Ihr nicht sehr viel Stauraum und das bei 3 Kindern.
Wird der Platz unter den Treppen irgendwie genutzt?
Der Raum hinterm Carport ist offen?
Das UG ist zumindest laut Bild kleiner als das 1. OG. Der Treppe nach zu urteilen sind die Mauern auf der Gartenseite übereinander und am Eingangsbereich zurückgesetzt oder? Hast du die Außenansichten dazu?
Als Laie würde ich sagen im UG ist noch Spielraum für Stauraum.
Das Haus sieht ja sehr modern aus. Ist die Nachbarschaftsbebauung auch so?
Zumindest was ich erahnen konnte, habt Ihr nicht sehr viel Stauraum und das bei 3 Kindern.
Wird der Platz unter den Treppen irgendwie genutzt?
Der Raum hinterm Carport ist offen?
Das UG ist zumindest laut Bild kleiner als das 1. OG. Der Treppe nach zu urteilen sind die Mauern auf der Gartenseite übereinander und am Eingangsbereich zurückgesetzt oder? Hast du die Außenansichten dazu?
Als Laie würde ich sagen im UG ist noch Spielraum für Stauraum.
Das Haus sieht ja sehr modern aus. Ist die Nachbarschaftsbebauung auch so?
C
chris_in_LE25.08.12 12:19Hallo Musketier,
danke für die schnelle Antwort. Habe gar nicht registriert dass die Grafiken so runterskaliert wurde. Kann leider den Beitrag nicht bearbeiten (vielleicht noch nicht genug Beiträge eingestellt?), hänge aber hier noch lesbare Versionen an.
Zu deinen Kommentaren:
1. Der knappe Stauraum ist ja etwas, dass auch mir Kopfzerbrechen bereitet. Da es ein durchgehendes Treppenhaus ist, gibt es nur unter der ersten Treppe im EG Platz, den wir nutzen werden. Ansonsten werden wohl Hauswirtschaftsraum, begehbarer Kleiderschrank und der kleine Stauraum im 1. OG Deckenhoch mit Regalen oder Schranken gefüllt werden müssen. Auch ein zusätzliches Gartenhäuschen würde ich schon mal fest einplanen.
2. Ja, zumindest in dieser Fassung ist der Raum hinter dem Carport offen zum Garten. Wir wollen dort neben den eingezeichneten Mülltonnen Fahrräder (wahrscheinlich mit platzsparender Aufhängung), Fahrradhänger und evt. Gartensachen unterbringen. Haben uns aber auch schon Gedanken gemacht, ob zumindest ein Tor zum Schutz der Räder sinnvoll wäre.
3. Richtig das EG ist im Bereich der Eingangstür zurückgesetzt sowie auch über dem kleinen quadratischen Terrassenanteil direkt an der Hintertür. Auch das 2. OG ist vorne und hinten etwas zurückgesetzt.
4. In der Umgebung ist die Bebauung recht gemischt: Teilweise noch unsanierte kleinere Mehrfamilienhäuser, einige neuere Einfamilien- bis Doppelhäuser, auf der anderen Straßenseite auch etwas Gewerbe (KFZ-Werkstatt). Ich hätte auch gegen ein "traditionelleres" Haus mit Sattel- oder Walmdach nichts auszusetzen gehabt, aber leider ist dies nicht erlaubt. Auf der anderen Seite haben natürlich die drei Vollgeschosse ohne Schrägen auch Vorteile.
Anbei die größeren Grafiken (merke gerade es sind nur 5 Dateien pro Beitrag erlaubt, daher erst mal nur EG und 1. OG):







danke für die schnelle Antwort. Habe gar nicht registriert dass die Grafiken so runterskaliert wurde. Kann leider den Beitrag nicht bearbeiten (vielleicht noch nicht genug Beiträge eingestellt?), hänge aber hier noch lesbare Versionen an.
Zu deinen Kommentaren:
1. Der knappe Stauraum ist ja etwas, dass auch mir Kopfzerbrechen bereitet. Da es ein durchgehendes Treppenhaus ist, gibt es nur unter der ersten Treppe im EG Platz, den wir nutzen werden. Ansonsten werden wohl Hauswirtschaftsraum, begehbarer Kleiderschrank und der kleine Stauraum im 1. OG Deckenhoch mit Regalen oder Schranken gefüllt werden müssen. Auch ein zusätzliches Gartenhäuschen würde ich schon mal fest einplanen.
2. Ja, zumindest in dieser Fassung ist der Raum hinter dem Carport offen zum Garten. Wir wollen dort neben den eingezeichneten Mülltonnen Fahrräder (wahrscheinlich mit platzsparender Aufhängung), Fahrradhänger und evt. Gartensachen unterbringen. Haben uns aber auch schon Gedanken gemacht, ob zumindest ein Tor zum Schutz der Räder sinnvoll wäre.
3. Richtig das EG ist im Bereich der Eingangstür zurückgesetzt sowie auch über dem kleinen quadratischen Terrassenanteil direkt an der Hintertür. Auch das 2. OG ist vorne und hinten etwas zurückgesetzt.
4. In der Umgebung ist die Bebauung recht gemischt: Teilweise noch unsanierte kleinere Mehrfamilienhäuser, einige neuere Einfamilien- bis Doppelhäuser, auf der anderen Straßenseite auch etwas Gewerbe (KFZ-Werkstatt). Ich hätte auch gegen ein "traditionelleres" Haus mit Sattel- oder Walmdach nichts auszusetzen gehabt, aber leider ist dies nicht erlaubt. Auf der anderen Seite haben natürlich die drei Vollgeschosse ohne Schrägen auch Vorteile.
Anbei die größeren Grafiken (merke gerade es sind nur 5 Dateien pro Beitrag erlaubt, daher erst mal nur EG und 1. OG):
Eine einfache Lösung für Stauraum hätte ich noch.
Macht im 2. OG noch genauso einen Stauraum wie im 1. OG und setzt dann erst das Bad nach hinten rein.
Oder ihr opfert komplett die Straßenansicht zugunsten von mehr Stauraum im 2. OG, indem ihr das Kinderbad auch mit nach vorn setzt und vielleicht zwischen Kinderbad und Kinderzimmer noch Stauraum schafft.
Wenn ich dran denke, was wir alles (ohne Kinder) schon unterbringen müssen.
Ihr als Leipziger??? hab vielleicht auch etwas Weihnachtszeug. Da fällt mir spontan noch Staubsauger und Putzzeug ein.
Dann hat man als Hausbesitzer auch immer Werkzeug, Bauzeug, Schrauben, Kabel, Bretter usw. rumliegen und vielleicht eine kleine Werkbank herumstehen. Ihr habt ja Nichtmal eine abgeschlossene Garage, wo man sowas lagern kann.
Ist das Arbeitszimmer eine privates Arbeitszimmer oder arbeitest du da täglich drin?
Macht im 2. OG noch genauso einen Stauraum wie im 1. OG und setzt dann erst das Bad nach hinten rein.
Oder ihr opfert komplett die Straßenansicht zugunsten von mehr Stauraum im 2. OG, indem ihr das Kinderbad auch mit nach vorn setzt und vielleicht zwischen Kinderbad und Kinderzimmer noch Stauraum schafft.
Wenn ich dran denke, was wir alles (ohne Kinder) schon unterbringen müssen.
Ihr als Leipziger??? hab vielleicht auch etwas Weihnachtszeug. Da fällt mir spontan noch Staubsauger und Putzzeug ein.
Dann hat man als Hausbesitzer auch immer Werkzeug, Bauzeug, Schrauben, Kabel, Bretter usw. rumliegen und vielleicht eine kleine Werkbank herumstehen. Ihr habt ja Nichtmal eine abgeschlossene Garage, wo man sowas lagern kann.
Ist das Arbeitszimmer eine privates Arbeitszimmer oder arbeitest du da täglich drin?
Ähnliche Themen