Grundrissplanung für Umbau eines Reihenhaus aus den 70ern

4,70 Stern(e) 6 Votes
Zuletzt aktualisiert 24.11.2025
Sie befinden sich auf der Seite 4 der Diskussion zum Thema: Grundrissplanung für Umbau eines Reihenhaus aus den 70ern
>> Zum 1. Beitrag <<

11ant

11ant

Zugegeben... Meine bisherigen Beiträge können schlecht davon überzeugen, dass ich vorher schon einige andere "Grundriss"-Themen gelesen habe. Leider fehlt mir bei so etwas komplett das Talent. Ich bekomme es nicht hin, diese Ideen zu übertragen
Mich konntest Du bisher noch nicht einmal davon überzeugen, daß Du die Wirklichkeit Deines Gebäudes überhaupt erfassen (und auf Übereinstimmung mit Zeichnungen prüfen) kannst. Ich erkenne noch nicht einmal klar, ob Deine Eigenzeichnungen auf einem Ursprungs- oder "Stand nach Veränderung" Releasestand der professionellen Bauzeichnungen aufbauen. Wenn eine andere Laienplanungs-Software angenehmer lesbare Darstellungen ermöglicht, dann heilt das diesen wesentlichen Mangel nicht im geringsten !
Höre (besser gestern als heute) auf, diesen Umbau ohne einen Architekten zu planen.
 
G

GalileoNRW

Danke für die offene Kritik (ernst gemeint, keine Ironie).

Meine Eigenzeichnung basiert auf dem Ursprungsplan, den ich hier ebenfalls hochgeladen habe. Das Gebäude wurde damals größtenteils in Eigenleistung gebaut. Dementsprechend habe ich die Räume nochmals vermessen, um zu erkennen, ob irgendwo vom ursprünglichen Plan abgewichen worden ist. Die mit der Zeit erfolgten Umbauten habe ich ebenfalls vermessen, da hierzu keine Zeichnungen existieren. Diese drei "Grundlagen" habe ich in meiner Eigenzeichnung berücksichtigt, so wie ich das in meinem gestrigen Beitrag beschrieben habe.
 
G

GalileoNRW

Hier nochmal der Versuch, die damalige Pläne und die aktuellen Pläne sortiert aufzulisten:

Originale Pläne aus 1975

EG

Grundriss Erdgeschoss eines Hauses mit Wohnen, Essen, Küche, Flur sowie Eltern- und Kinderzimmern.


Keller

Grundriss Kellergeschoss mit Kellerbar, Hobbyraum, Abstellraum, Vorräte.


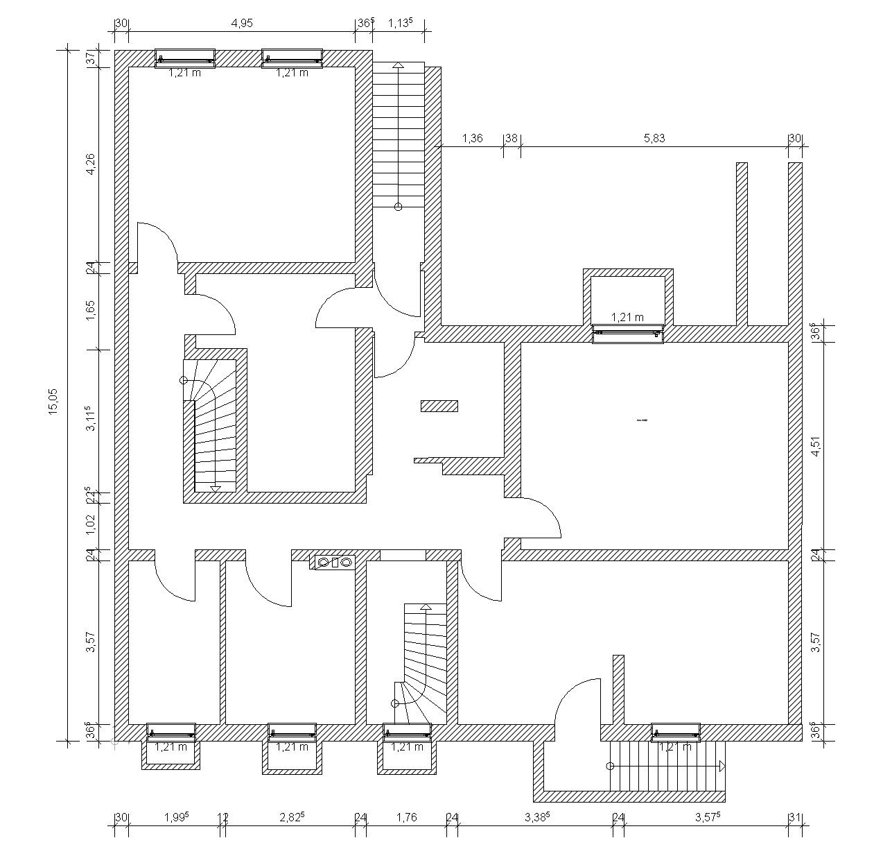
Heutiger Stand nach den Umbauten
Hier gibt's keinen offiziellen Plan, deshalb ist hier die eigene Zeichnung in vereinfachter Form entstanden (ohne Treppen im und außerhalb des Gebäudes, aber textuell gekennzeichnet)

EG

Grundriss eines Hauses: Zimmeraufteilung mit Schlaf-, Wohn-, Esszimmer, Küche, Bad, Flur.



Keller
Die Nutzung der Räume ist, bis auf "Öltank" und "Waschraum" identisch.
Öltank ist leer. Im Waschraum läuft nun die Treppe von oben runter.

Grundriss eines Gebäudes mit Wänden, Türen, Treppen und Maßlinien.


Vielleicht/Hoffentlich wird es so verständlicher und räumt das bisherige Chaos etwas auf.
 
Y

ypg

Hier gibt's keinen offiziellen Plan, deshalb ist hier die eigene Zeichnung in vereinfachter Form entstanden (ohne Treppen im und außerhalb des Gebäudes, aber textuell gekennzeichnet)
Es ist wahrscheinlich einfacher und näher an der Wahrheit, wenn Du einfach mal die Änderungen in den Originalplan einzeichnest.
 
Zuletzt aktualisiert 24.11.2025
Im Forum Grundrissplanung / Grundstücksplanung gibt es 2536 Themen mit insgesamt 88011 Beiträgen


Ähnliche Themen zu Grundrissplanung für Umbau eines Reihenhaus aus den 70ern
Nr.ErgebnisBeiträge
1Einfamilienhaus 160m2 mit Keller, 500m2 Grundstück 108
2alter Keller gekauft. Trägt er nur Holzständer oder auch Massiv? - Seite 317
3Mit Keller oder ohne in Süddeutschland Bauen - Erfahrungen? - Seite 755
4Kostenschätzung Keller realistisch? 32
5Fußbodenheizung im Keller sinnvoll?? - Seite 560
6Erstkontakt und Vorstellung unserer Pläne 10
7Frage zum Vermessen einen Grundstücks bezgl. Eingabeplan 16
8Haus mit oder ohne Keller? - Erfahrungen 20
9Keller aus Hochlochziegeln oder Beton? - Seite 211
10Massivhaus mit Keller. Reicht unser Budget? 11
11Baukosten KFW70 Haus mit Keller Schlüsselfertig 15
12Position Kontrollierte-Wohnraumlüftung im unterirdischen Keller? 16
13Außenliegende Perimeterdämmung Bodenplatte, Schimmelrisiko Keller 11
14Kosten Erdarbeiten ohne Keller 15
15Budget für Bau eines Einfamilienhaus mit WU-Beton Keller 27
16Kosteneinschätzung: Fertighaus, Keller, Carport, Einzelgarage 10
17Zusätzliche Dämmung im Ytong-Keller (36er) ?? 14
18Durchschnittliche Bauzeit Doppelhaushälfte mit Keller - Seite 211
19Grundriss Einfamilienhaus mit Keller - Eure Meinungen bitte - Seite 216
20Kosten sparen/Keller/günstige Fliesen/versiegelter Estrich? 13

Oben