Hallo zusammen!
Wir würden uns sehr freuen, wenn wir Feedback zu unserem bisherigen Stand in der Grundrissplanung und der Grundstücksplanung bekommen.
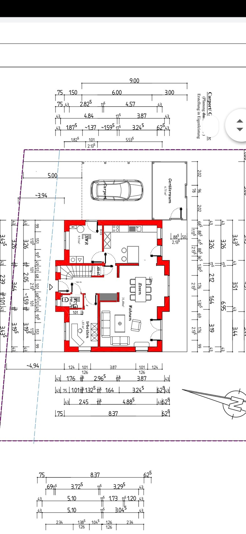
Wir sind eine vierköpfige Familie mit 2 Kindern im Alter von 4 und 7. Wir bauen ländlich.
Ergänzend: zwischen Küche und dem Wohn Bereich wird eine Schiebetür eingesetzt.
Bebauungsplan/Einschränkungen
Größe des Grundstücks. 672m2
Hang nein
Baufenster, Baulinie und -Grenze es gibt kein Baufenster.
Randbebauung maximal 9m
Anzahl Stellplatz 2
Geschossigkeit maximal 2
Dachform mindestens 18grad
Stilrichtung frei
Ausrichtung Nord - Süd
Maximale Höhen/Begrenzungen
weitere Vorgaben
Anforderungen der Bauherren
Landhaus
1,5 Geschosse, ohne Keller
4 Personen : 30,27,7,4
Büro: Familiennutzung
Schlafgäste pro Jahr maximal bei den Kindern ihre Freunde
geschlossene Architektur
konservative Bauweise
Anzahl Essplätze 6
Carport
Hausentwurf
Von wem stammt die Planung:
-Planer eines Bauunternehmens
Was gefällt besonders? Warum? Flexibilität im Wohnbereich (mit der Schiebetür), gleich grosse Kinderzimmer, Heer Flur im OG für eine Leseecke
Was gefällt nicht? Warum? Eventuell zu kleine Kinderzimmer? Zu kleiner Hauswirtschaftsraum?
Preisschätzung lt Architekt/Planer:202.000
Persönliches Preislimit fürs Haus, inkl Ausstattung: 230.000
favorisierte Heiztechnik: Fußbodenheizung
Wenn Ihr verzichten müsst, auf welche Details/Ausbauten
-könnt Ihr verzichten: Erker
-könnt Ihr nicht verzichten: Frontgiebel
Warum ist der Entwurf so geworden, wie er jetzt ist? ZB
Standardentwurf vom Planer? Standard zur Grundlage, aber etwas abgeändert.
Was macht ihn in Euren Augen besonders gut oder schlecht? Trotz relativ wenig Raum, findet jeder seinen Platz und es ist an alles gedacht.
Ich bedanke mich


Wir würden uns sehr freuen, wenn wir Feedback zu unserem bisherigen Stand in der Grundrissplanung und der Grundstücksplanung bekommen.
Wir sind eine vierköpfige Familie mit 2 Kindern im Alter von 4 und 7. Wir bauen ländlich.
Ergänzend: zwischen Küche und dem Wohn Bereich wird eine Schiebetür eingesetzt.
Bebauungsplan/Einschränkungen
Größe des Grundstücks. 672m2
Hang nein
Baufenster, Baulinie und -Grenze es gibt kein Baufenster.
Randbebauung maximal 9m
Anzahl Stellplatz 2
Geschossigkeit maximal 2
Dachform mindestens 18grad
Stilrichtung frei
Ausrichtung Nord - Süd
Maximale Höhen/Begrenzungen
weitere Vorgaben
Anforderungen der Bauherren
Landhaus
1,5 Geschosse, ohne Keller
4 Personen : 30,27,7,4
Büro: Familiennutzung
Schlafgäste pro Jahr maximal bei den Kindern ihre Freunde
geschlossene Architektur
konservative Bauweise
Anzahl Essplätze 6
Carport
Hausentwurf
Von wem stammt die Planung:
-Planer eines Bauunternehmens
Was gefällt besonders? Warum? Flexibilität im Wohnbereich (mit der Schiebetür), gleich grosse Kinderzimmer, Heer Flur im OG für eine Leseecke
Was gefällt nicht? Warum? Eventuell zu kleine Kinderzimmer? Zu kleiner Hauswirtschaftsraum?
Preisschätzung lt Architekt/Planer:202.000
Persönliches Preislimit fürs Haus, inkl Ausstattung: 230.000
favorisierte Heiztechnik: Fußbodenheizung
Wenn Ihr verzichten müsst, auf welche Details/Ausbauten
-könnt Ihr verzichten: Erker
-könnt Ihr nicht verzichten: Frontgiebel
Warum ist der Entwurf so geworden, wie er jetzt ist? ZB
Standardentwurf vom Planer? Standard zur Grundlage, aber etwas abgeändert.
Was macht ihn in Euren Augen besonders gut oder schlecht? Trotz relativ wenig Raum, findet jeder seinen Platz und es ist an alles gedacht.
Ich bedanke mich
S
SamSamSam11.01.21 21:51Jnble2020 schrieb:
Weil es kein komplettes Gewerk ist, was wir da raus nehmen und weil ich, nichts für ungut, hier immer noch in erster Linie für den Grundriss und die Grundstücksplanung bin. Ich hatte erwähnt, dass wir alles gut kalkuliert haben und viele Leute vom Fach innerhalb der Familie und den Freunden haben und ich hier ungern alles aufschlüsseln möchte, da es doch ein komplexer Sachverhalt ist, den ich sowieso nicht gern im Netz diskutiere.Hallo, wir planen auch mit diesen Unternehmen zu Bauen... kannst du berichten wie es gelaufen ist?würden uns über eine Rückmeldung freuen.