J
Jnble202026.02.20 11:27Hallo zusammen!
Wir würden uns sehr freuen, wenn wir Feedback zu unserem bisherigen Stand in der Grundrissplanung und der Grundstücksplanung bekommen.
Wir sind eine vierköpfige Familie mit 2 Kindern im Alter von 4 und 7. Wir bauen ländlich.
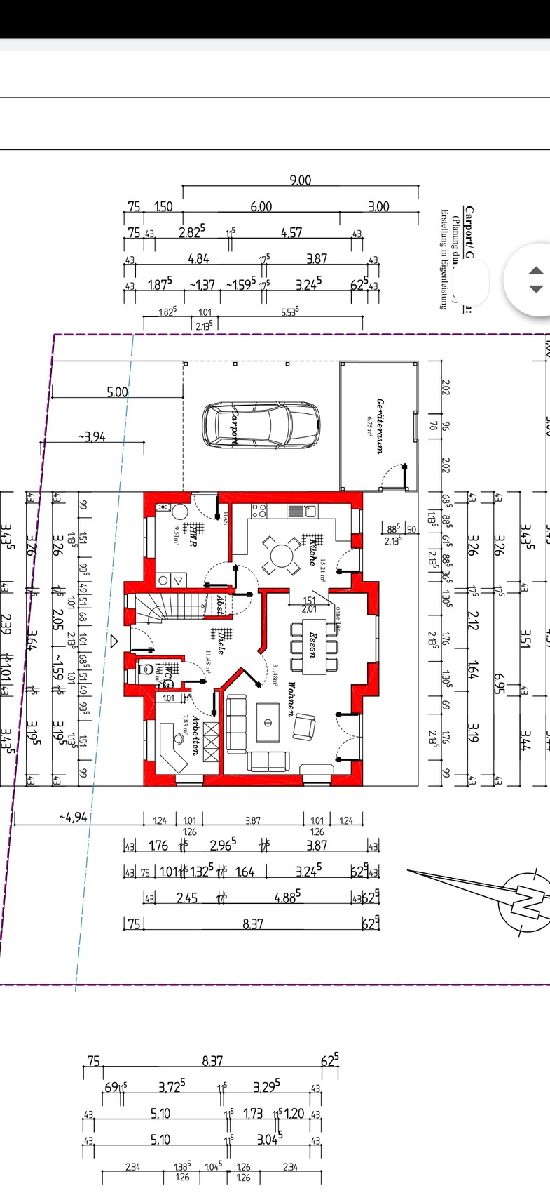
Ergänzend: zwischen Küche und dem Wohn Bereich wird eine Schiebetür eingesetzt.
Bebauungsplan/Einschränkungen
Größe des Grundstücks. 672m2
Hang nein
Baufenster, Baulinie und -Grenze es gibt kein Baufenster.
Randbebauung maximal 9m
Anzahl Stellplatz 2
Geschossigkeit maximal 2
Dachform mindestens 18grad
Stilrichtung frei
Ausrichtung Nord - Süd
Maximale Höhen/Begrenzungen
weitere Vorgaben
Anforderungen der Bauherren
Landhaus
1,5 Geschosse, ohne Keller
4 Personen : 30,27,7,4
Büro: Familiennutzung
Schlafgäste pro Jahr maximal bei den Kindern ihre Freunde
geschlossene Architektur
konservative Bauweise
Anzahl Essplätze 6
Carport
Hausentwurf
Von wem stammt die Planung:
-Planer eines Bauunternehmens
Was gefällt besonders? Warum? Flexibilität im Wohnbereich (mit der Schiebetür), gleich grosse Kinderzimmer, Heer Flur im OG für eine Leseecke
Was gefällt nicht? Warum? Eventuell zu kleine Kinderzimmer? Zu kleiner Hauswirtschaftsraum?
Preisschätzung lt Architekt/Planer:202.000
Persönliches Preislimit fürs Haus, inkl Ausstattung: 230.000
favorisierte Heiztechnik: Fußbodenheizung
Wenn Ihr verzichten müsst, auf welche Details/Ausbauten
-könnt Ihr verzichten: Erker
-könnt Ihr nicht verzichten: Frontgiebel
Warum ist der Entwurf so geworden, wie er jetzt ist? ZB
Standardentwurf vom Planer? Standard zur Grundlage, aber etwas abgeändert.
Was macht ihn in Euren Augen besonders gut oder schlecht? Trotz relativ wenig Raum, findet jeder seinen Platz und es ist an alles gedacht.
Ich bedanke mich



Wir würden uns sehr freuen, wenn wir Feedback zu unserem bisherigen Stand in der Grundrissplanung und der Grundstücksplanung bekommen.
Wir sind eine vierköpfige Familie mit 2 Kindern im Alter von 4 und 7. Wir bauen ländlich.
Ergänzend: zwischen Küche und dem Wohn Bereich wird eine Schiebetür eingesetzt.
Bebauungsplan/Einschränkungen
Größe des Grundstücks. 672m2
Hang nein
Baufenster, Baulinie und -Grenze es gibt kein Baufenster.
Randbebauung maximal 9m
Anzahl Stellplatz 2
Geschossigkeit maximal 2
Dachform mindestens 18grad
Stilrichtung frei
Ausrichtung Nord - Süd
Maximale Höhen/Begrenzungen
weitere Vorgaben
Anforderungen der Bauherren
Landhaus
1,5 Geschosse, ohne Keller
4 Personen : 30,27,7,4
Büro: Familiennutzung
Schlafgäste pro Jahr maximal bei den Kindern ihre Freunde
geschlossene Architektur
konservative Bauweise
Anzahl Essplätze 6
Carport
Hausentwurf
Von wem stammt die Planung:
-Planer eines Bauunternehmens
Was gefällt besonders? Warum? Flexibilität im Wohnbereich (mit der Schiebetür), gleich grosse Kinderzimmer, Heer Flur im OG für eine Leseecke
Was gefällt nicht? Warum? Eventuell zu kleine Kinderzimmer? Zu kleiner Hauswirtschaftsraum?
Preisschätzung lt Architekt/Planer:202.000
Persönliches Preislimit fürs Haus, inkl Ausstattung: 230.000
favorisierte Heiztechnik: Fußbodenheizung
Wenn Ihr verzichten müsst, auf welche Details/Ausbauten
-könnt Ihr verzichten: Erker
-könnt Ihr nicht verzichten: Frontgiebel
Warum ist der Entwurf so geworden, wie er jetzt ist? ZB
Standardentwurf vom Planer? Standard zur Grundlage, aber etwas abgeändert.
Was macht ihn in Euren Augen besonders gut oder schlecht? Trotz relativ wenig Raum, findet jeder seinen Platz und es ist an alles gedacht.
Ich bedanke mich
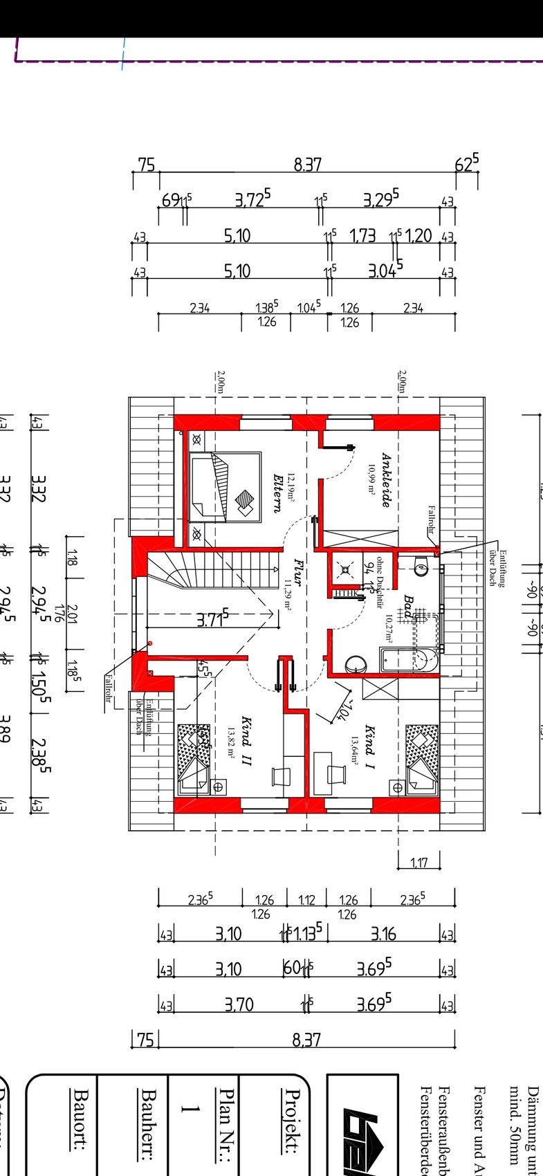
Also ich glaub, der ist voll aus der Mottenkiste, aber deswegen nicht schlecht. Auf den ersten Blick gefällt mir das. Auf den zweiten sind dann doch ein paar Häkchen:
- Das Bad liegt über dem Wohnbereich. Wie ist die Entwässerung geplant?
- Was genau passiert in der Ecke im Kinderzimmer II am Kapitänsgiebel?
- Ist eine Ankleide so wichtig bei der Hausgröße?
- Das Arbeitszimmer ist wirklich klein - da wird ja schon bald die Luft knapp.
- Wenn der Flur oben als Spielflur gedacht ist, find ich das super. Wenn die Kiddis größer werden, sind sie aber möglicherweise genervt von den 13m². Da wäre mehr drin, wenn man konsequenter umplant und auf die "Galerie" verzichtet. Aber das nur als Option.
- Das Bad liegt über dem Wohnbereich. Wie ist die Entwässerung geplant?
- Was genau passiert in der Ecke im Kinderzimmer II am Kapitänsgiebel?
- Ist eine Ankleide so wichtig bei der Hausgröße?
- Das Arbeitszimmer ist wirklich klein - da wird ja schon bald die Luft knapp.
- Wenn der Flur oben als Spielflur gedacht ist, find ich das super. Wenn die Kiddis größer werden, sind sie aber möglicherweise genervt von den 13m². Da wäre mehr drin, wenn man konsequenter umplant und auf die "Galerie" verzichtet. Aber das nur als Option.
J
Jnble202026.02.20 11:52kaho674 schrieb:
Also ich glaub, der ist voll aus der Mottenkiste, aber deswegen nicht schlecht. Auf den ersten Blick gefällt mir das. Auf den zweiten sind dann doch ein paar Häkchen:
- Das Bad liegt über dem Wohnbereich. Wie ist die Entwässerung geplant?
- Was genau passiert in der Ecke im Kinderzimmer II am Kapitänsgiebel?
- Ist eine Ankleide so wichtig bei der Hausgröße?
- Das Arbeitszimmer ist wirklich klein - da wird ja schon bald die Luft knapp.
- Wenn der Flur oben als Spielflur gedacht ist, find ich das super. Wenn die Kiddis größer werden, sind sie aber möglicherweise genervt von den 13m². Da wäre mehr drin, wenn man konsequenter umplant und auf die "Galerie" verzichtet. Aber das nur als Option.Die Ecke im Kinderzimmer war vorher eine tote Ecke am Flur. Die Wand haben wir geändert, sodass wir im Kinderzimmer dort selber Regalböden oder eine Schrankverkleidung bauen. Dort verschwinden dann ein paar Spielgegenstände etc..
Der Flur oben soll schon genutzt werden. Wir lesen sehr viel und wollen den Bereich als Bücher und Leseecke nutzen.
Der Grundriss ist wirklich ein Basis Grundriss ohne viel Schick Schnack das stimmt. Dennoch ist er der am häufigsten gebaute des Bauunternehmens.
Die Ankleide wird auch als Bügelzimmer genutzt.
S
Sparfuchs7726.02.20 11:59Steht ihr früh zugleich auf? So muss man immer durch das Schlafzimmer in die Ankleide und wenn mal einer länger schlafen kann / möchte nervt das vielleicht. Eventuell Schlafzimmer und Ankleide tauschen?
Meint ihr, das ihr die Leseecke viel nutzt wenn die Kids Musik in ihren Zimmern hören und ihr ein großes gemütliches Wohnzimmer habt?
Ernst gemeinte und keine rhetorische Frage. Wenn das zu euch passt ist es ja gut!
@kaho674 wir haben bei uns auch nur knapp 7qm für das ,,Büro,,. Meiner Frau reicht das zum Nähen und bissl Papierkram völlig zu, meint sie. Man muss ja nicht riesige Aktenschränke rein bauen. Wir planen die Lagerflächen (als Do it yourself Regal ) um die Zimmertür herum. Damit bleibt vom Raum noch (für uns) recht viel übrig.
Meint ihr, das ihr die Leseecke viel nutzt wenn die Kids Musik in ihren Zimmern hören und ihr ein großes gemütliches Wohnzimmer habt?
Ernst gemeinte und keine rhetorische Frage. Wenn das zu euch passt ist es ja gut!
@kaho674 wir haben bei uns auch nur knapp 7qm für das ,,Büro,,. Meiner Frau reicht das zum Nähen und bissl Papierkram völlig zu, meint sie. Man muss ja nicht riesige Aktenschränke rein bauen. Wir planen die Lagerflächen (als Do it yourself Regal ) um die Zimmertür herum. Damit bleibt vom Raum noch (für uns) recht viel übrig.
J
Jnble202026.02.20 12:03Sparfuchs_ schrieb:
Steht ihr früh zugleich auf? So muss man immer durch das Schlafzimmer in die Ankleide und wenn mal einer länger schlafen kann / möchte nervt das vielleicht. Eventuell Schlafzimmer und Ankleide tauschen?
@kaho674 wir haben bei uns auch nur knapp 7qm für das ,,Büro,,. Meiner Frau reicht das zum Nähen und bissl Papierkram völlig zu, meint sie. Man muss ja nicht riesige Aktenschränke rein bauen. Wir planen die Lagerflächen (als Do it yourself Regal ) um die Zimmertür herum. Damit bleibt vom Raum noch (für uns) recht viel übrig.Der Tipp ist super mit dem Regal.
Wir stehen beide zeitgleich morgens auf. Sind generell Frühaufsteher.
Sparfuchs_ schrieb:
@kaho674 wir haben bei uns auch nur knapp 7qm für das ,,Büro,,. Meiner Frau reicht das zum Nähen und bissl Papierkram völlig zu, meint sie. Man muss ja nicht riesige Aktenschränke rein bauen.Ja, wenn das reicht. Die 7m² nimmt bei uns ja allein PC und Drucker ein. Naja fast. Die Wohnecke mal mit TV möblieren. Ich denke, da müssen die Terrassentüren vor den Esstisch wandern.
Ähnliche Themen