Hallo zusammen,
ich habe schon viel mitgelesen im Forum und freue mich jetzt meinen ersten eigenen Beitrag erstellen zu können :-) Ich bin sehr gespannt auf eure Rückmeldungen und Erfahrungen und freue mich auf Antworten.
Vielen Dank schon vorab dafür.
Wenn ihr noch weitere Ansichten oder Informationen für eine Einschätzung bzw. Rückmeldung braucht, kann ich diese gerne nachliefern. Die Grundrisse der Geschosse sind eingefügt nach dem Fragenkatalog.
Bebauungsplan/Einschränkungen
Größe des Grundstücks: 375m²
Hang: nein
Grundflächenzahl: -
Geschossflächenzahl: -
Baufenster, Baulinie und -grenze: -
Randbebauung: nein
Anzahl Stellplatz: Garage + Stellplatz
Geschossigkeit: 1,5
Dachform: Satteldach DN 40°
Stilrichtung
Ausrichtung: Ost-West (Dachneigungen)
Maximale Höhen/Begrenzungen: Traufhöhe 424cm, FH = 761cm
weitere Vorgaben
Anforderungen der Bauherren
Stilrichtung, Dachform, Gebäudetyp: -
Keller, Geschosse: kein Keller – geplant von Bauträger
Anzahl der Personen, Alter: 3 (31, 35, 0)
Raumbedarf im EG, OG (130-145m²)
Büro: Familiennutzung oder Homeoffice?: Homeoffice (kleines Büro notwendig)
Schlafgäste pro Jahr: 5
offene oder geschlossene Architektur: offen
konservativ oder moderne Bauweise: modern
offene Küche, Kochinsel: U-Küche oder mit Kochinsel (kein unbedingter Wunsch – muss funktional sein im Grundriss)
Anzahl Essplätze: 6
Kamin: nein
Musik/Stereowand: Dolby Surround für TV
Balkon, Dachterrasse: Beides wie geplant von Bauträger
Garage, Carport: Garage
Nutzgarten, Treibhaus: kein besonderer Wunsch
Wünsche: Eckbadewanne, Stauraum hinter Garage wird Kellerersatz, evtl. noch Gartenhaus, falls möglich, Spitzgiebel möglich oder bei dieser Höhe eher nicht empfehlenswert?
Nach Möglichkeit Beachtung von Schallschutzmaßnahmen
Hausentwurf
Von wem stammt die Planung:
Geplant von Bauträger in Verbindung mit Architektenbüro
Was gefällt besonders? Warum? – Offener Wohn-Ess-Koch-Bereich
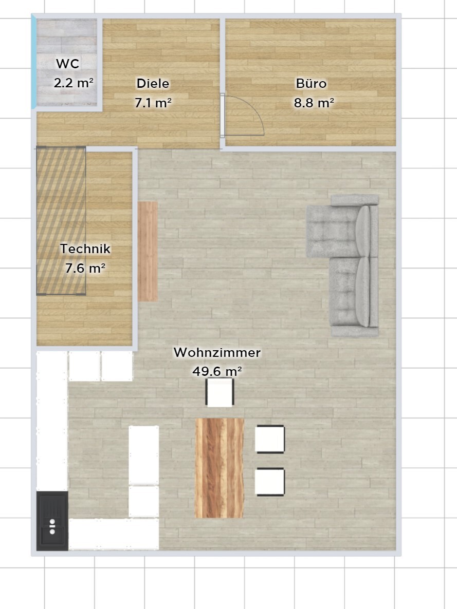
Was gefällt nicht? Warum? – Zu großer Technikraum? Schränkt evtl. Fernseheck ein – Geht dies auch kleiner oder eher unpraktisch?
Persönliches Preislimit fürs Haus, inkl. Ausstattung: Festpreis von Bauträger: Für Veränderungen bzw. Umbauten Sonderwünsche etc. aktuell 50-60k Puffer geplant
favorisierte Heiztechnik: Wärmepumpe geplant
Wenn Ihr verzichten müsst, auf welche Details/Ausbauten
-könnt Ihr verzichten: Trempel / Abstellfläche im Haus, separater Ankleidebereich
-könnt Ihr nicht verzichten: Sofaabstand von TV-Wand kleiner 4m, offener Wohn-Ess-Bereich
Warum ist der Entwurf so geworden, wie er jetzt ist? ZB
Standardentwurf vom Planer bzw. vorgefertigter Entwurf und bereits so beantragt von Bauträger
Aktuell stellen wir uns folgende Fragen:
Zu großer Technikraum? Schränkt evtl. Fernseheck ein – Geht dies auch kleiner oder eher unpraktisch?
Spitzgiebel möglich oder bei dieser Höhe eher nicht empfehlenswert?
Wäre eine andere Treppenform passender für die Gestaltung des OG’s bzw. des Abstell-Technikraumes im EG?
Könnte man evtl. Wohnraum gewinnen mit Maßnahmen wie (Zusätzliches Dachfenster an geschickter Stelle oder baulichen Maßnahmen, wie z.B. Gaube oder Kniestockerhöhung, falls im preislichen Rahmen (10-15k) und das Bauamt mitspielt)
Ich bin gespannt auf eure Rückmeldungen und freue mich sehr über ein paar Erfahrungen bzw. Tipps von euch zur „optimalen“ Gestaltung des Grundrisses.

ich habe schon viel mitgelesen im Forum und freue mich jetzt meinen ersten eigenen Beitrag erstellen zu können :-) Ich bin sehr gespannt auf eure Rückmeldungen und Erfahrungen und freue mich auf Antworten.
Vielen Dank schon vorab dafür.
Wenn ihr noch weitere Ansichten oder Informationen für eine Einschätzung bzw. Rückmeldung braucht, kann ich diese gerne nachliefern. Die Grundrisse der Geschosse sind eingefügt nach dem Fragenkatalog.
Bebauungsplan/Einschränkungen
Größe des Grundstücks: 375m²
Hang: nein
Grundflächenzahl: -
Geschossflächenzahl: -
Baufenster, Baulinie und -grenze: -
Randbebauung: nein
Anzahl Stellplatz: Garage + Stellplatz
Geschossigkeit: 1,5
Dachform: Satteldach DN 40°
Stilrichtung
Ausrichtung: Ost-West (Dachneigungen)
Maximale Höhen/Begrenzungen: Traufhöhe 424cm, FH = 761cm
weitere Vorgaben
Anforderungen der Bauherren
Stilrichtung, Dachform, Gebäudetyp: -
Keller, Geschosse: kein Keller – geplant von Bauträger
Anzahl der Personen, Alter: 3 (31, 35, 0)
Raumbedarf im EG, OG (130-145m²)
Büro: Familiennutzung oder Homeoffice?: Homeoffice (kleines Büro notwendig)
Schlafgäste pro Jahr: 5
offene oder geschlossene Architektur: offen
konservativ oder moderne Bauweise: modern
offene Küche, Kochinsel: U-Küche oder mit Kochinsel (kein unbedingter Wunsch – muss funktional sein im Grundriss)
Anzahl Essplätze: 6
Kamin: nein
Musik/Stereowand: Dolby Surround für TV
Balkon, Dachterrasse: Beides wie geplant von Bauträger
Garage, Carport: Garage
Nutzgarten, Treibhaus: kein besonderer Wunsch
Wünsche: Eckbadewanne, Stauraum hinter Garage wird Kellerersatz, evtl. noch Gartenhaus, falls möglich, Spitzgiebel möglich oder bei dieser Höhe eher nicht empfehlenswert?
Nach Möglichkeit Beachtung von Schallschutzmaßnahmen
Hausentwurf
Von wem stammt die Planung:
Geplant von Bauträger in Verbindung mit Architektenbüro
Was gefällt besonders? Warum? – Offener Wohn-Ess-Koch-Bereich
Was gefällt nicht? Warum? – Zu großer Technikraum? Schränkt evtl. Fernseheck ein – Geht dies auch kleiner oder eher unpraktisch?
Persönliches Preislimit fürs Haus, inkl. Ausstattung: Festpreis von Bauträger: Für Veränderungen bzw. Umbauten Sonderwünsche etc. aktuell 50-60k Puffer geplant
favorisierte Heiztechnik: Wärmepumpe geplant
Wenn Ihr verzichten müsst, auf welche Details/Ausbauten
-könnt Ihr verzichten: Trempel / Abstellfläche im Haus, separater Ankleidebereich
-könnt Ihr nicht verzichten: Sofaabstand von TV-Wand kleiner 4m, offener Wohn-Ess-Bereich
Warum ist der Entwurf so geworden, wie er jetzt ist? ZB
Standardentwurf vom Planer bzw. vorgefertigter Entwurf und bereits so beantragt von Bauträger
Aktuell stellen wir uns folgende Fragen:
Zu großer Technikraum? Schränkt evtl. Fernseheck ein – Geht dies auch kleiner oder eher unpraktisch?
Spitzgiebel möglich oder bei dieser Höhe eher nicht empfehlenswert?
Wäre eine andere Treppenform passender für die Gestaltung des OG’s bzw. des Abstell-Technikraumes im EG?
Könnte man evtl. Wohnraum gewinnen mit Maßnahmen wie (Zusätzliches Dachfenster an geschickter Stelle oder baulichen Maßnahmen, wie z.B. Gaube oder Kniestockerhöhung, falls im preislichen Rahmen (10-15k) und das Bauamt mitspielt)
Ich bin gespannt auf eure Rückmeldungen und freue mich sehr über ein paar Erfahrungen bzw. Tipps von euch zur „optimalen“ Gestaltung des Grundrisses.
H
Harald_071123.07.24 15:55K a t j a schrieb:
Kannst Du noch was zu dem Zimmer unten sagen? Ist das optional als Technikraum möglich, um mehr Platz im Wohnbereich zu bekommen oder ist das anderweitig verplant?Hey, das Zimmer soll als Büro dienen. Ich denke es macht schon Sinn die Technik in Richtung Garage unterzubringen, da auf dieser Seite ja sowieso keine Fenster möglich sind.
Generell bestünde immer noch die Möglichkeit das TV-Eck mit dem Küchenbereich zu tauschen.
Anbei noch 2 Entwürfe auf Basis eurer Rückmeldungen. @ypg Vielen Dank für den Tipp mit dem Tool
H
Harald_071123.07.24 17:18Harald_0711 schrieb:
Anbei noch 2 Entwürfe auf Basis eurer Rückmeldungen. @ypg Vielen Dank für den Tipp mit dem ToolGern!Aber Du musst die Größen anpassen: Treppe ist zu klein, Esstisch zu schmal, TK zu klein.
M
motorradsilke23.07.24 18:37Harald_0711 schrieb:
Anbei noch die weiteren Entwürfe für TV und Küche im EG getauscht und ein potenzieller Grundriss fürs OG mit der Treppe an der Wand (falls dies machbar ist, wäre schön) inkl. eingezeichneter 2m Linie (Kniestock ist 1m)


Würde ich so nicht machen. Dann hast du im Wohnbereich nie Ruhe, Jeder muss da immer durch.Ähnliche Themen