ᐅ Grundrissplanung Einfamilienhaus 190qm Bodenplatte Saarland
Erstellt am: 12.03.20 01:12
H
Henning_85
Bebauungsplan/Einschränkungen
Größe des Grundstücks 541qm
Hang leichte Hanglage
Grundflächenzahl 0,4
Geschossflächenzahl 0,8
Baufenster, Baulinie und -grenze jeweils ca. 6m
Randbebauung
Anzahl Stellplatz 2 Stellplätze
Geschossigkeit 2 Vollgeschosse
Dachform Flachdach
Stilrichtung Bauhaus
Ausrichtung Südausrichtung Garten
Maximale Höhen/Begrenzungen
weitere Vorgaben
Anforderungen der Bauherren
Stilrichtung, Dachform, Gebäudetyp
Keller, Geschosse
Anzahl der Personen, Alter 2 Personen, 33 und 35 Jahre
Raumbedarf im EG, OG ca. 190qm
Büro: Familiennutzung oder Homeoffice? Familiennutzung
Schlafgäste pro Jahr vernachlässigbar
offene oder geschlossene Architektur offene
konservativ oder moderne Bauweise modern
offene Küche, Kochinsel ja
Anzahl Essplätze 12
Kamin ja, Deko
Musik/Stereowand geplant Stereowand
Balkon, Dachterrasse fast umlaufende Dachterrasse
Garage, Carport Doppelgarage
Nutzgarten, Treibhaus nein
weitere Wünsche/Besonderheiten/Tagesablauf, gern auch Begründungen, warum dieses oder das nicht sein soll
Hausentwurf
Von wem stammt die Planung:
-Planer eines Bauunternehmens
-Architekt
-Do-it-Yourself eigener Entwurf
Was gefällt besonders? Warum?
Was gefällt nicht? Warum?
Preisschätzung lt Architekt/Planer: grobe Preisschätzung laut DIN 450.000
Persönliches Preislimit fürs Haus, inkl Ausstattung: 500.000
favorisierte Heiztechnik: Geothermie
Was ist die wichtigste/grundlegende Frage zum Grundriss in 130 Zeichen zusammengefasst?
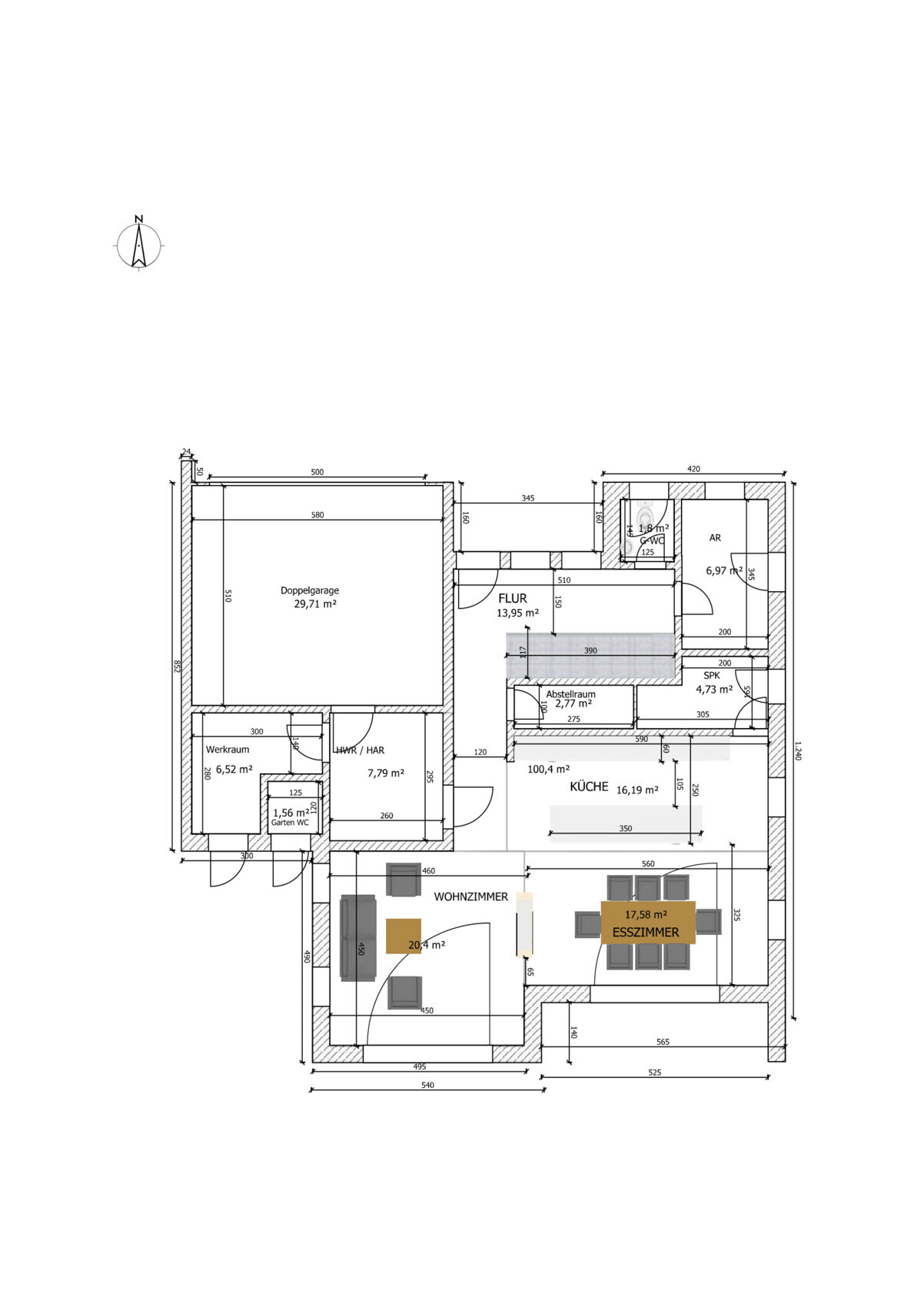
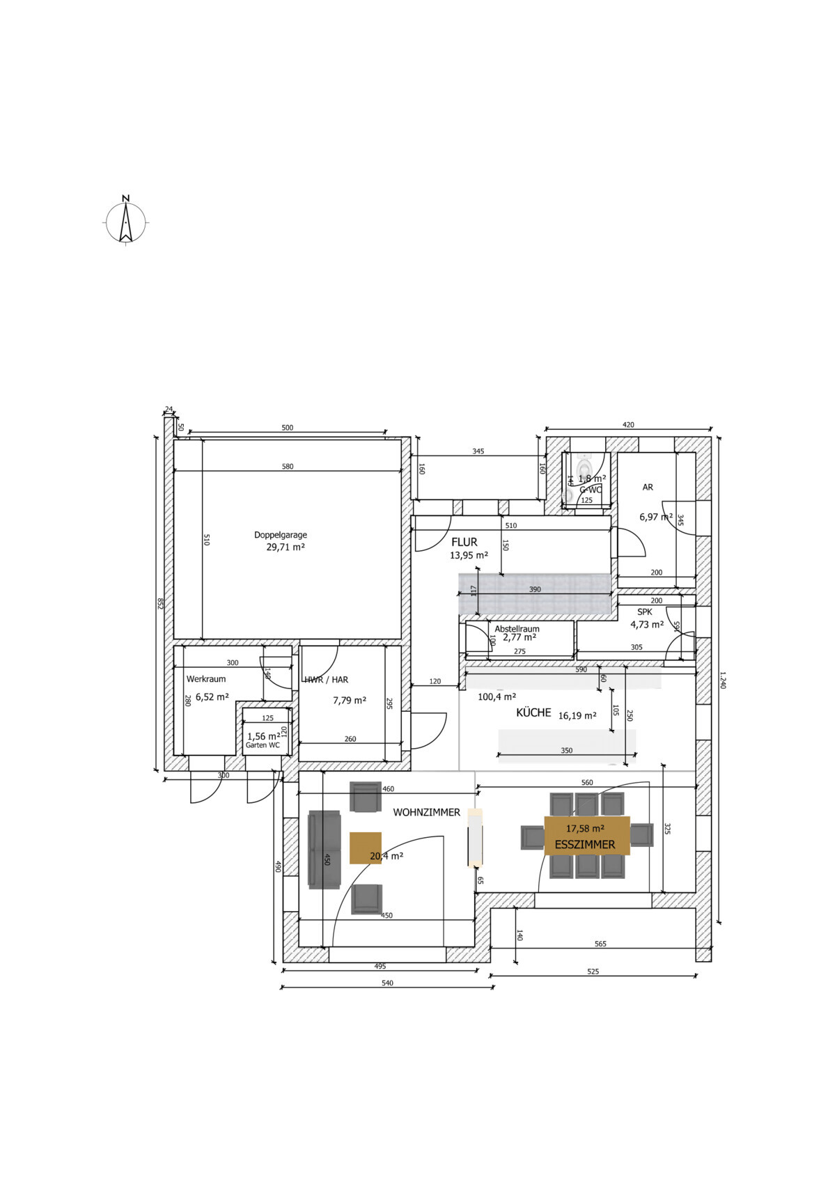
Hallo liebes Forum,
anbei unser erster Entwurf unseres geplantes Einfamilienhaus. Ich wünsche mir von Euch gute Ideen, Kritik, Tipps und Tricks....entschuldigt, dass die Bemassungen oder teilweise noch die Einrichtung fehlen. Es geht mir lediglich um den groben Grundriss.
Zwischen Wohn- und Esszimmer soll sich ein Kamin bzw. eine Attrappe befinden, welche als Raumtrenner dient. In der Pergola, welche mit einem Solarglasdach ausgestattet sein soll, ist ein Pool geplant, sollte es das Budget noch hergeben.
Wir planen mit einem Baumanager bzw. Baubetreuer in Einzelgewerkevergabe in Massivbauweise zu bauen.
Vielen Dank für Eure Meinungen.


Größe des Grundstücks 541qm
Hang leichte Hanglage
Grundflächenzahl 0,4
Geschossflächenzahl 0,8
Baufenster, Baulinie und -grenze jeweils ca. 6m
Randbebauung
Anzahl Stellplatz 2 Stellplätze
Geschossigkeit 2 Vollgeschosse
Dachform Flachdach
Stilrichtung Bauhaus
Ausrichtung Südausrichtung Garten
Maximale Höhen/Begrenzungen
weitere Vorgaben
Anforderungen der Bauherren
Stilrichtung, Dachform, Gebäudetyp
Keller, Geschosse
Anzahl der Personen, Alter 2 Personen, 33 und 35 Jahre
Raumbedarf im EG, OG ca. 190qm
Büro: Familiennutzung oder Homeoffice? Familiennutzung
Schlafgäste pro Jahr vernachlässigbar
offene oder geschlossene Architektur offene
konservativ oder moderne Bauweise modern
offene Küche, Kochinsel ja
Anzahl Essplätze 12
Kamin ja, Deko
Musik/Stereowand geplant Stereowand
Balkon, Dachterrasse fast umlaufende Dachterrasse
Garage, Carport Doppelgarage
Nutzgarten, Treibhaus nein
weitere Wünsche/Besonderheiten/Tagesablauf, gern auch Begründungen, warum dieses oder das nicht sein soll
Hausentwurf
Von wem stammt die Planung:
-Planer eines Bauunternehmens
-Architekt
-Do-it-Yourself eigener Entwurf
Was gefällt besonders? Warum?
Was gefällt nicht? Warum?
Preisschätzung lt Architekt/Planer: grobe Preisschätzung laut DIN 450.000
Persönliches Preislimit fürs Haus, inkl Ausstattung: 500.000
favorisierte Heiztechnik: Geothermie
Was ist die wichtigste/grundlegende Frage zum Grundriss in 130 Zeichen zusammengefasst?
Hallo liebes Forum,
anbei unser erster Entwurf unseres geplantes Einfamilienhaus. Ich wünsche mir von Euch gute Ideen, Kritik, Tipps und Tricks....entschuldigt, dass die Bemassungen oder teilweise noch die Einrichtung fehlen. Es geht mir lediglich um den groben Grundriss.
Zwischen Wohn- und Esszimmer soll sich ein Kamin bzw. eine Attrappe befinden, welche als Raumtrenner dient. In der Pergola, welche mit einem Solarglasdach ausgestattet sein soll, ist ein Pool geplant, sollte es das Budget noch hergeben.
Wir planen mit einem Baumanager bzw. Baubetreuer in Einzelgewerkevergabe in Massivbauweise zu bauen.
Vielen Dank für Eure Meinungen.
Henning_85 schrieb:
Am Bien-Zenker Concept M Wuppertal gefällt es besonders gut der großzügige Eingangsbereich und die Galerie nach vorne mit den großen lichtspendenden Fensterelementen. Des Weiteren finden wir den Wohn- Essbereich sehr schön unterteilt mit dem Kamin bzw. der Attrape und der Anordnung der Küche. Die Aufteilung der Räume im OG find ich verbesserungswürdig.haydee schrieb:
In deinen Plänen findet sich das Bien-Zenker Wuppertal nicht. Schon gar nicht die von dir genannten Punkte.Das grenzt wirklich schon an einen Farbklecks-Interpretationstest, im hier gezeigten Entwurf eine Nachahmung des Bien-Zenker Concept M Wuppertal mit modifiziertem OG erkennen zu sollen https://www.instagram.com/11antgmxde/
https://www.linkedin.com/company/bauen-jetzt/
H
Henning_8501.04.20 23:16Henning_85 schrieb:
Ich versuchs noch einmalEine Sauna, in die man sich nicht legen kann, die aber ein Eckfenster hat. Ein Flur wie ein Gewehrlauf. Eine Garage, in der schon Fünfer oder E-Klasse mit dem Nummernschild vorne anstoßen. Du scheinst wirklich komplett ohne Dimensionengefühl irgendwelche Optiken nachzubauen. Wärest Du König, Du würdest den Planer köpfen lassen, wenn das (Vorhänge)schloss fertig in seinem Glanz erstrahlt. Architekt lernt man nicht in einer Ferien-Fahrschule https://www.instagram.com/11antgmxde/
https://www.linkedin.com/company/bauen-jetzt/
Also ich finde den Eingangsbereich leider alles andere als großzügig, da man beim Reinkommen einen langen Schlauch vor sich hat.
Lässt sich das Büro denn überhaupt möblieren? Das wirkt auch sehr schmal.
OG: die Anordnung der Elternräume finde ich so besser, da es so in meinen Augen viel mehr Sinn macht (Stichwort Ruhe).
Aber leider gibt es auch hier diesen langen schmalen Flur.
Fitnessraum ohne Fenster? War denn eigentlich ein Keller geplant oder ohne?
Dachterrasse: meinst du, dass ihr die Richtung Norden und Richtung Straße wirklich nutzt?
Edit: und auf der anderen Seite gibt es ja auch noch einen Balkon... Meine Erfahrung/Meinung: nutzt man alles nicht, wenn man einen Garten hat. Höchstens das Kind zum Rauchen
Der Weg vom Kinderzimmer zum Kinderbad könnte auch nicht länger sein. Dann hat das Kind dort noch nicht mal Ruhe, weil noch jemand durch den Fitnessraum reinplatuen kann.
Lässt sich das Büro denn überhaupt möblieren? Das wirkt auch sehr schmal.
OG: die Anordnung der Elternräume finde ich so besser, da es so in meinen Augen viel mehr Sinn macht (Stichwort Ruhe).
Aber leider gibt es auch hier diesen langen schmalen Flur.
Fitnessraum ohne Fenster? War denn eigentlich ein Keller geplant oder ohne?
Dachterrasse: meinst du, dass ihr die Richtung Norden und Richtung Straße wirklich nutzt?
Edit: und auf der anderen Seite gibt es ja auch noch einen Balkon... Meine Erfahrung/Meinung: nutzt man alles nicht, wenn man einen Garten hat. Höchstens das Kind zum Rauchen
Der Weg vom Kinderzimmer zum Kinderbad könnte auch nicht länger sein. Dann hat das Kind dort noch nicht mal Ruhe, weil noch jemand durch den Fitnessraum reinplatuen kann.
H
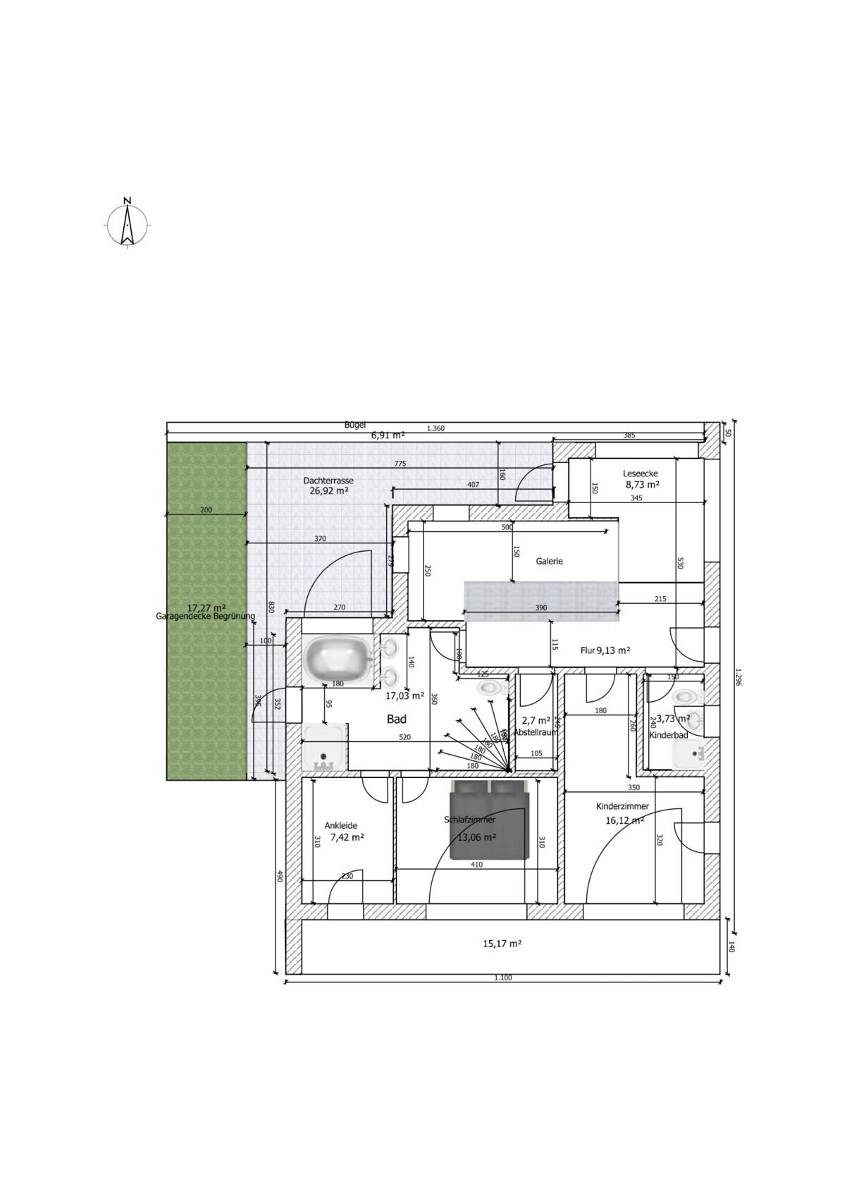
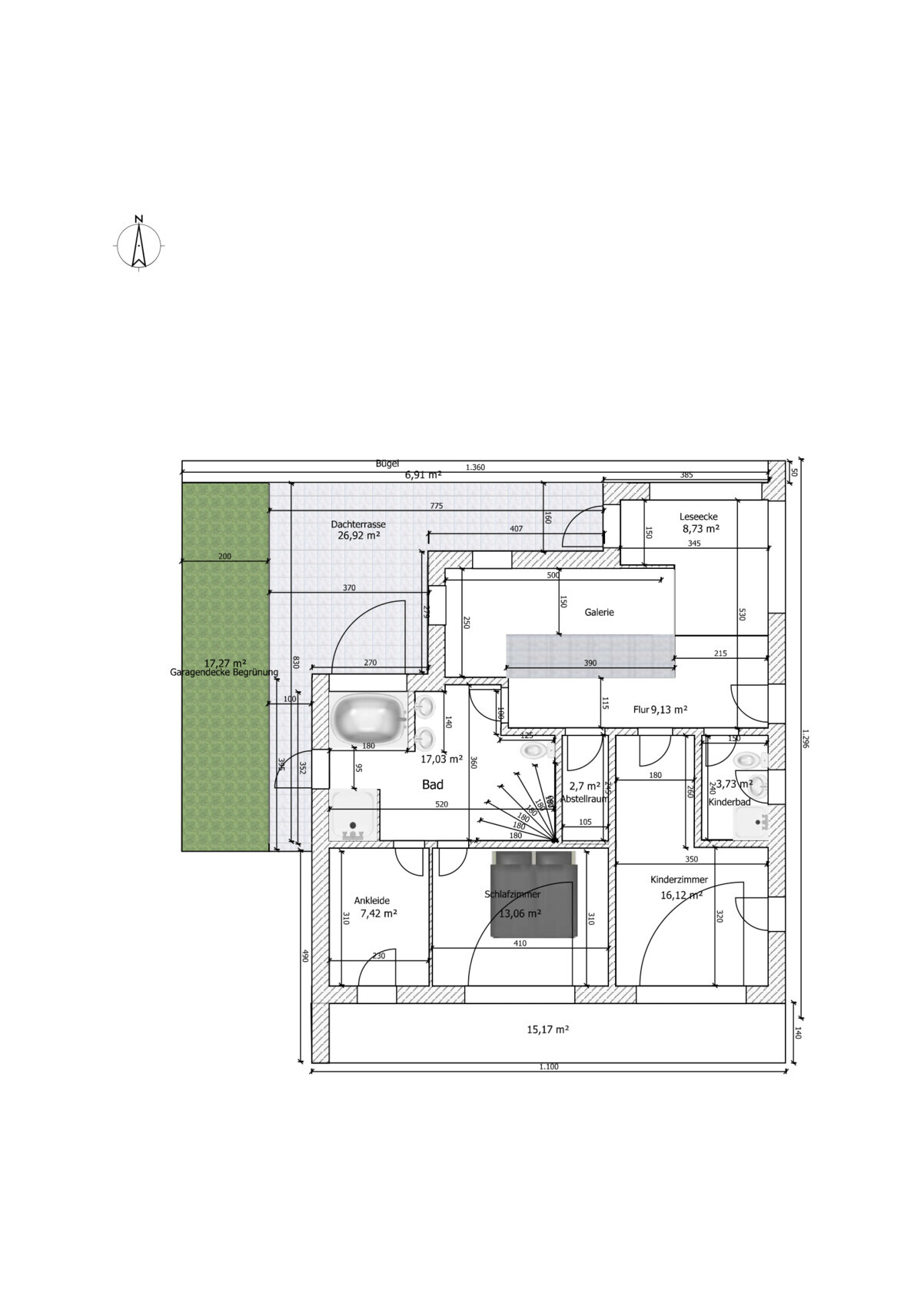
Henning_8521.04.20 01:26Hallo liebes Forum,
der Grundriss wurde nochmals überarbeitet. Das OG wurde fast gänzlich geändert. Die Bäder liegen entweder über Hauswirtschaftsraum oder Küche oder am Hauseingang. Das ganze Haus wurde etwas komprimiert, um Kosten zu sparen. Meiner Meinung nach ohne Wohnkomfort zu verlieren.
Der Hauswirtschaftsraum / HAR ist mir noch etwas zu klein. Ebenso der AR.


der Grundriss wurde nochmals überarbeitet. Das OG wurde fast gänzlich geändert. Die Bäder liegen entweder über Hauswirtschaftsraum oder Küche oder am Hauseingang. Das ganze Haus wurde etwas komprimiert, um Kosten zu sparen. Meiner Meinung nach ohne Wohnkomfort zu verlieren.
Der Hauswirtschaftsraum / HAR ist mir noch etwas zu klein. Ebenso der AR.
Ähnliche Themen