ᐅ Grundrissplanung Einfamilienhaus 190qm Bodenplatte Saarland
Erstellt am: 12.03.20 01:12
H
Henning_85
Bebauungsplan/Einschränkungen
Größe des Grundstücks 541qm
Hang leichte Hanglage
Grundflächenzahl 0,4
Geschossflächenzahl 0,8
Baufenster, Baulinie und -grenze jeweils ca. 6m
Randbebauung
Anzahl Stellplatz 2 Stellplätze
Geschossigkeit 2 Vollgeschosse
Dachform Flachdach
Stilrichtung Bauhaus
Ausrichtung Südausrichtung Garten
Maximale Höhen/Begrenzungen
weitere Vorgaben
Anforderungen der Bauherren
Stilrichtung, Dachform, Gebäudetyp
Keller, Geschosse
Anzahl der Personen, Alter 2 Personen, 33 und 35 Jahre
Raumbedarf im EG, OG ca. 190qm
Büro: Familiennutzung oder Homeoffice? Familiennutzung
Schlafgäste pro Jahr vernachlässigbar
offene oder geschlossene Architektur offene
konservativ oder moderne Bauweise modern
offene Küche, Kochinsel ja
Anzahl Essplätze 12
Kamin ja, Deko
Musik/Stereowand geplant Stereowand
Balkon, Dachterrasse fast umlaufende Dachterrasse
Garage, Carport Doppelgarage
Nutzgarten, Treibhaus nein
weitere Wünsche/Besonderheiten/Tagesablauf, gern auch Begründungen, warum dieses oder das nicht sein soll
Hausentwurf
Von wem stammt die Planung:
-Planer eines Bauunternehmens
-Architekt
-Do-it-Yourself eigener Entwurf
Was gefällt besonders? Warum?
Was gefällt nicht? Warum?
Preisschätzung lt Architekt/Planer: grobe Preisschätzung laut DIN 450.000
Persönliches Preislimit fürs Haus, inkl Ausstattung: 500.000
favorisierte Heiztechnik: Geothermie
Was ist die wichtigste/grundlegende Frage zum Grundriss in 130 Zeichen zusammengefasst?
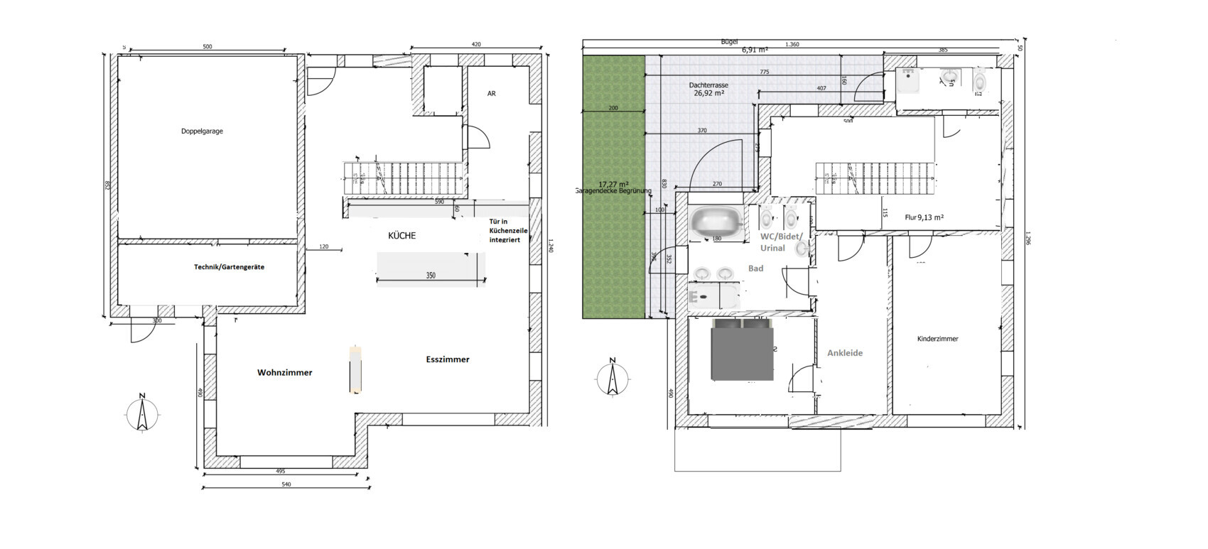
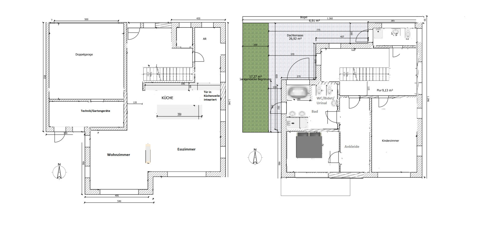
Hallo liebes Forum,
anbei unser erster Entwurf unseres geplantes Einfamilienhaus. Ich wünsche mir von Euch gute Ideen, Kritik, Tipps und Tricks....entschuldigt, dass die Bemassungen oder teilweise noch die Einrichtung fehlen. Es geht mir lediglich um den groben Grundriss.
Zwischen Wohn- und Esszimmer soll sich ein Kamin bzw. eine Attrappe befinden, welche als Raumtrenner dient. In der Pergola, welche mit einem Solarglasdach ausgestattet sein soll, ist ein Pool geplant, sollte es das Budget noch hergeben.
Wir planen mit einem Baumanager bzw. Baubetreuer in Einzelgewerkevergabe in Massivbauweise zu bauen.
Vielen Dank für Eure Meinungen.


Größe des Grundstücks 541qm
Hang leichte Hanglage
Grundflächenzahl 0,4
Geschossflächenzahl 0,8
Baufenster, Baulinie und -grenze jeweils ca. 6m
Randbebauung
Anzahl Stellplatz 2 Stellplätze
Geschossigkeit 2 Vollgeschosse
Dachform Flachdach
Stilrichtung Bauhaus
Ausrichtung Südausrichtung Garten
Maximale Höhen/Begrenzungen
weitere Vorgaben
Anforderungen der Bauherren
Stilrichtung, Dachform, Gebäudetyp
Keller, Geschosse
Anzahl der Personen, Alter 2 Personen, 33 und 35 Jahre
Raumbedarf im EG, OG ca. 190qm
Büro: Familiennutzung oder Homeoffice? Familiennutzung
Schlafgäste pro Jahr vernachlässigbar
offene oder geschlossene Architektur offene
konservativ oder moderne Bauweise modern
offene Küche, Kochinsel ja
Anzahl Essplätze 12
Kamin ja, Deko
Musik/Stereowand geplant Stereowand
Balkon, Dachterrasse fast umlaufende Dachterrasse
Garage, Carport Doppelgarage
Nutzgarten, Treibhaus nein
weitere Wünsche/Besonderheiten/Tagesablauf, gern auch Begründungen, warum dieses oder das nicht sein soll
Hausentwurf
Von wem stammt die Planung:
-Planer eines Bauunternehmens
-Architekt
-Do-it-Yourself eigener Entwurf
Was gefällt besonders? Warum?
Was gefällt nicht? Warum?
Preisschätzung lt Architekt/Planer: grobe Preisschätzung laut DIN 450.000
Persönliches Preislimit fürs Haus, inkl Ausstattung: 500.000
favorisierte Heiztechnik: Geothermie
Was ist die wichtigste/grundlegende Frage zum Grundriss in 130 Zeichen zusammengefasst?
Hallo liebes Forum,
anbei unser erster Entwurf unseres geplantes Einfamilienhaus. Ich wünsche mir von Euch gute Ideen, Kritik, Tipps und Tricks....entschuldigt, dass die Bemassungen oder teilweise noch die Einrichtung fehlen. Es geht mir lediglich um den groben Grundriss.
Zwischen Wohn- und Esszimmer soll sich ein Kamin bzw. eine Attrappe befinden, welche als Raumtrenner dient. In der Pergola, welche mit einem Solarglasdach ausgestattet sein soll, ist ein Pool geplant, sollte es das Budget noch hergeben.
Wir planen mit einem Baumanager bzw. Baubetreuer in Einzelgewerkevergabe in Massivbauweise zu bauen.
Vielen Dank für Eure Meinungen.
also diese Bad-Schlafzimmer-Aufteilung geht ja gar nicht...der eine hockt auf der Toilette und der Partner kommt nicht aus dem Schlafzimmer . Einer bügelt im Schlafzimmer, saugt, putzt, bezieht die Betten, räumt Wäsche in die Ankleide und der andere kann in dieser Zeit nicht ins Bad bzw. müsste den Partner im Schlafzimmer einschließen um seine Ruhe im Bad zu haben. Wenn er nun noch vergisst, die Schlafzimmertüre wieder zu öffnen...dann ist man im Schlafzimmer gefangen.
Dann dieser sinnlose Schlauch im Kinderzimmer, der nur deshalb existiert weil man das Kinderbad daneben geplant hat. Man sollte den Elternbereich von der Ankleide aus betreten, dann geht eine Tür ins Bad, die andere ins Schlafzimmer, so stört niemand den anderen.
LG
Sabine
Dann dieser sinnlose Schlauch im Kinderzimmer, der nur deshalb existiert weil man das Kinderbad daneben geplant hat. Man sollte den Elternbereich von der Ankleide aus betreten, dann geht eine Tür ins Bad, die andere ins Schlafzimmer, so stört niemand den anderen.
LG
Sabine
Curly schrieb:
Wenn er nun noch vergisst, die Schlafzimmertüre wieder zu öffnen...dann ist man im Schlafzimmer gefangen.Deswegen ja der Pool als Sprungtuch *SCNR*https://www.instagram.com/11antgmxde/
https://www.linkedin.com/company/bauen-jetzt/
Ich wollts ja trotz der grauenvollen Plangrafik versuchen, aber...dit wird nich besser... immerhin hat man in der Ankleide richtig viele Schrankmeter <3

Dass es in dem Fall absolut blöde ist, ist außer Frage.
opalau schrieb:Wieso nicht? Quasi jedes Zimmer kann von außen verschlossen werden.
Mal ernsthaft: Ist überhaupt erlaubt? Also ein Raum dessen einzige Tür von außen verschlossen werden kann?
Dass es in dem Fall absolut blöde ist, ist außer Frage.
matte1987 schrieb:
@Tamstar
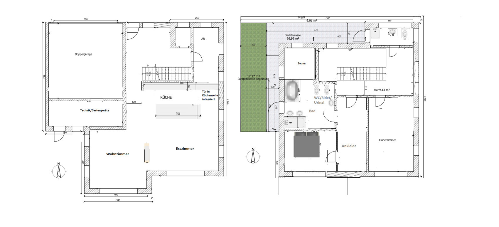
Der Platz für die Sauna fehlt...Ja, man kann nicht alles haben, ne? Gibt's halt ne Gartensauna, passend zum Pool.
Oder man lässt die obere abgenagte Ecke auch noch weg...
Könnte(!) man ja dann en Detail überlegen, aber dafür ist der Entwurf weiterhin zu ungeeignet, das gehört neu gemacht...
Ähnliche Themen