Hausbau - Ratgeber
Bauherrenhilfe
- Bauherrenhilfe vor Vertragsabschluss
-- Warum einen unabhängigen Baubetreuer?
-- Vertragsgrundlagen
-- Bausumme
-- Zahlungsplan zur Kostenkontrolle
-- Pflichten des Bauherren vor Vertragsabschluss
-- Unterlagen beim Hausbau vor Vertragsabschluss
- Bauherrenhilfe nach Vertragsabschluss
-- Bauantrag bei Behörden
-- Bau-Genehmigungsverfahren bei Baubehörden
-- Bauspezifische Versicherungen
-- Bauzeitenplan
-- Baubeginn - die Letzten Pflichten der Bauherrschaft
- Bauherrenhilfe während der Bauzeit
- Gewährleistungsansprüche
- Bauabnahme
Baufinanzierung
- Baufinanzierung - Allgemeine Fragen
- Kreditarten
- Kredit-Konditionen
- Bausparen
- Staatliche Förderungen
- Verkehrswert
- Haushaltsrechnung und Bonität
Hausbau Planung
- Haustypen
- Hausbau Vorbereitungsarbeiten
- Das Baugrundstück
- Baugrund beim Hausbau
- Baurecht
- Gebäudeschutz
- Erdarbeiten und Wasserhaltung
- Stützmauern
- Einfriedung
- Untergeschoss
- Kanalisation
- Tragende Elemente
- Nichttragende Innenwände
- Fundation / Fundament
- Deckenkonstruktionen
- Dächer
- Kaminanlagen
- Treppen Rampen Leitern
- Dachbeläge und Spengler
- Fenster
- Sonnen und Wetterschutz
- Aussenputze
- Einbauten, Küchen, Türen
- Bodenbeläge und Unterlagsböden
- Parkett
- Gips, Wand, Decke
Haustechnik und Energie
- Heiztechnik
- Lüftung und Klimatechnik
- Sanitärtechnik
- Elektrotechnik
- Erneuerbare Energie
Whirlpools / Jacuzzi
Hausbau Magazin
- Baufinanzierung trotz Krise?
- Das Blockhaus
- Moderne Dämmstoffe im Vergleich
- Erker Vor- und Nachteile
- Glasflächen beim Hausbau
- Günstig ein Haus Bauen
- Mediterraner Hausbaustil
- Mehrgenerationenhaus
- Moderne Architektur
- Gartengestaltung leicht gemacht
- Traditioneller Ziegelbau
- Villa als höchster Traum
- Im Eigenheim Ruhestand geniessen
- Altbau sanieren
- Kauf einer Holzgarage
- Immobilienmakler
- Arbeitshandschuhe für den Winter
- Zuhause verschönern
- Outdoor-Plissees
- Schlafzimmer planen
- Terrassenüberdachung
- Wohngebäudeversicherung
- Zaunarten und Eigenschaften
- Hauseingang gestalten
- Der perfekte Grundriss
- Sparsamer heizen im Altbau
- Einfamilienhaus smart finanzieren
- Planung einer PV-Anlage
- Neues Haus
- Immobilienfinanzierung
- Installation einer Photovoltaikanlage
- Asbest erkennen und entfernen
- Gartenpflege im Frühling – worauf achten
- Sauna im Fokus - Wellness zuhause
- Erfolgreich vermieten
- Die perfekte Winterbekleidung
- Das Niedrigenergiehaus
- Der April und seine Stürme
- Architektonische Vielfalt
- Ökologisch und nachhaltig bauen
- Das perfekte Schlafzimmer
- Nachhaltige Energieversorgung
- Zukunftsorientiert bauen
- Nachhaltigkeit beim Hausbau
- Tiny Houses
- Wärmepumpen als nachhaltige Heizvariante
- Maßgeschneiderten Kleiderschrank
- Der richtige Baukredit
- Ratgeber für erfolgreichen Hausbau
- Haus als Altersvorsorge
Do-it-yourself Anleitungen
- Verlegeanleitung für Bodenbeläge und Parkett
- Bodenbeläge und Parkett reinigen und pflegen
- Malerarbeiten am Haus
- Garten Tipps
- Umzug und Reinigung

ᐅ Grundrissplanung Bungalow 170qm ohne Keller

Erstellt am: 16.03.20 21:43
F
Focus9.9
F
Focus9.9
16.03.20 21:43
Hallo liebe Forums-Gemeinde,

wir stehen aktuell vor der größten Entscheidung unseres Lebens und planen aktuell unser Eigenheim. Dabei sind wir ziemlich unverblümt in die Planung gestartet und haben nun einen ersten Plan ausgearbeitet. Begonnen haben wir bei einem L-Bungalow und sind aktuell bei einem T-Bungalow gelandet. Soviel erst mal als Vorgeschichte.

Bebauungsplan/Einschränkungen
Größe des Grundstücks: ca. 1900qm
keine Hanglage
Grundflächenzahl -> keine Festlegung aufgrund eines Mischgebiets
Geschossflächenzahl -> keine Festlegung aufgrund eines Mischgebiets
Baufenster, Baulinie und -grenze -> eingezeichnet auf dem Lageplan
Randbebauung: Max. 9m
Anzahl Stellplatz: 2
Geschossigkeit: keine Einschränkung
Dachform: keine Einschränkung
Stilrichtung: keine Einschränkung
Ausrichtung: keine Einschränkung
Maximale Höhen/Begrenzungen: keine Einschränkung


Anforderungen der Bauherren
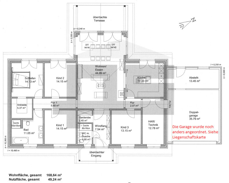
Bungalow (KFW 55)
1 Geschoss ohne Keller
Satteldach
Aktuell 2 (28/27) + 2 – 3 Kinder in Planung
Büro: Familiennutzung
Schlafgäste pro Jahr: Aktuell noch alle 2 – 3 Wochenenden
Der Wohn- und Essbereich soll offen gestaltet werden.
konservativ Bauweise
Küche soll eine Kochinsel beinhalten aber durch eine Schiebetür trennbar sein
Anzahl Essplätze: 8
Kamin: Aktuell geplant
Doppelgarage
Aktuell plane ich eine KNX Hausautomation

Hausentwurf
Von wem stammt die Planung:
-Planer eines Bauunternehmens
Was gefällt besonders? Warum?
- Offene Raumgestaltung des Wohn-/Essbereichs.
Was gefällt nicht? Warum?
- Unsicherheit bei der Hausausrichtung auf dem Grundstück
Preisschätzung lt Architekt/Planer:
- ca. 320.000€
favorisierte Heiztechnik:
- Erdwärmepumpe + (Solarvorbereitung)

Wenn Ihr verzichten müsst, auf welche Details/Ausbauten
-könnt Ihr verzichten: Kamin, Überdachung d. Hauseingangs

Warum ist der Entwurf so geworden, wie er jetzt ist?
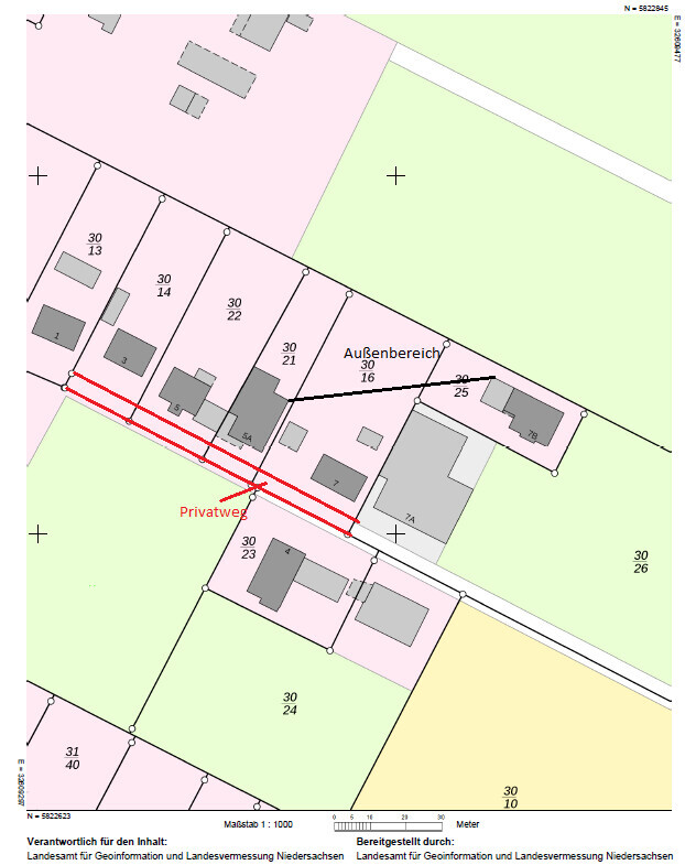
Eingangs haben wir einen L-Bungalow geplant. Durch den Privatweg auf dem Grundstück (Süd-West) wurde der erste Entwurf durch den Planer in einen T-Bungalow geändert, um zum einen den Garten vollständig nutzen zu können als auch einen hellen Wohnbereich umsetzen zu können.
Unsere größten Bedenken sind aktuell die Ausrichtung des Einfamilienhaus und die Nutzung des Grundstücks.

Ich freue mich auf eure Kritik und bedanke mich im Voraus.
Florian

Grundriss eines Hauses mit Wohn- und Essbereich, Küche, Schlafzimmer, Bad und Garage.


Ansicht einer Flurkarte mit Parzellen, rotem Privatweg und Gebäuden in der Wohnsiedlung; Lageplan.


Lageplan eines Grundstücks mit Parzellen und Gebäuden, zentrale Gebäudestruktur sichtbar.
H
haydee
16.03.20 22:49
Was soll in den 320 k alles dabei sein?

Wie fährst du in die Garage?

Bleibt das Bestandsgebäude stehen bleiben?

Warum ist das Haus soweit in den Osten geschoben?
Warum nicht gespiegelt mit Südausrichtung?

Bitte den Grundriss bemaßen
F
Focus9.9
18.03.20 08:18
Hallo haydee,

in den 320k ist ein schlüsselfertiges Haus bis auf den KNX Teil. In den Angebot ist eine konvetionelle Elektroinstallation ausgeschrieben und wir haben vereinbart das wir bei Vertragsabschluss ein anderes Angebot einfließen lassen.

Die Garage wurde gedreht (siehe schwarz/weiß Lageplan).

Die Bestandsgebäude sind bereits abgerissen und somit ist das Grundstück aktuell leer.

Auf der Ostseite des Grundstücks befindet sich ein Betrieb und davor eine graue Trennmauer. Der Anblick ist nicht der schönste. Deshalb haben wir bisher geplant auf der Seite die Einfahrt zu haben und die Wohnräume zur gegenüberliegenden Seite. Da ich den Einwand aber durchaus berechtigt finde werden wir am Wochenende noch mal zum Grundstück fahren und schauen ob eventuell eine Hecke oder ähnliches das augenscheinliche Bild verbessern würde. In dem Zuge würde ich dann auch ein zwei Bilder von dem Grundstück hier miteinfließen lassen.

Aktuell habe ich leider keinen vermassten Grundriss. Ich messe es auf der Zeichnung aus und werde euch heute Abend ein update mit einem händisch vermassten Grundriss zur Verfügung stellen.

Vielen Dank.
Pinky030118.03.20 09:22
Wieso wollt ihr einen Bungalow bauen? Bei 4 Schlafzimmer ergibt das ja eine riesige Grundfläche. Die Kosten sind dadurch auch höher als wenn es noch ein Ober-/Dachgeschoss geben würde.
Der Wohn-/Essbereich gefällt mir gar nicht. Sofa ist Durchgangsbereich, also kein Ruhe. Weg von der Küche zum Esstisch ist unnötig weit.
Zu den 320k können dir andere vermutlich noch mehr sagen, aber das ist wohl sehr optimistisch geplant. Sind da drin die Baunebenkosten enthalten?
H
hampshire
18.03.20 09:37
Hier mal meine 5 Cent:

Der grundsätzlich gut strukturierte Aufbau (Links Rückzug, Mitte Wohnen, Rechts Funktion) wird durch das 3. Kinderzimmer unterbrochen. Das funktioniert zwar irgendwie, ist aber nicht konsequent gut umgesetzt.
Wenn Ihr zu den Familien gehört, deren Leben sich an einen großen Tisch abspielt ist es eine gute Idee diesen prominent in einen hellen Bereich aufzustellen wie im Plan. Was nicht dazu passt ist die Zugänglichkeit des Bereiches, da dieser immer durch einen Wohnbereich oder "Wohnflur" führt - sogar aus der Küche heraus.
Der Wohnbereich erinnert mich an ein offenes Wartezimmer oder eine Longue im Abflug-Terminal. An allen Seiten offen - für mich wäre das nichts.
Die "Ankleide" ist ein eher begehbarer Kleiderschrank. Der Vorteil störungsarm für einen noch Schlafenden den Tag zu beginnen ist verschenkt.

Gute Ideen, die sich gegenseitig irgendwie verkorksen. Die Aneinanderreihung von baulichen Aspekten und Ideen ergibt eben leider noch keine gute Architektur.
M
Matthew03
19.03.20 09:16
Der Süden hat nicht ein einziges (!) Fenster...wow.
Ankleide komplett ohne Fenster --> würde ich niemals machen.

Ich mag Bungalows, der hätte auch Charme, aber die Ausrichtung verstehe ich null. Küche im dunklen Norden, Schlafzimmer dafür im Süden, da springt einen das spiegeln ja förmlich an.
knxbungalowgrundstückkücheplanerwohnbereichlageplanessbereichkaminentwurf