Hallo zusammen,
aktuell planen meine Frau und auf einem 600m² großen Grundstück ein Einfamilienhaus und sind aktuell mit dem Architekten zugange, um einen Entwurf für einen Bauantrag fertigzustellen.
Bebauungsplan/Einschränkungen
Größe des Grundstücks: ziemlich genau 600m²
Hang: Nein
Grundflächenzahl: 0,3
Geschossflächenzahl: 0,4
Baufenster, Baulinie und -grenze: offene Bauweise, Baugrenze
Randbebauung: -
Anzahl Stellplatz: -
Geschossigkeit: -
Dachform: -
Stilrichtung: -
Ausrichtung: -
Maximale Höhen/Begrenzungen: -
weitere Vorgaben: -
Anforderungen der Bauherren
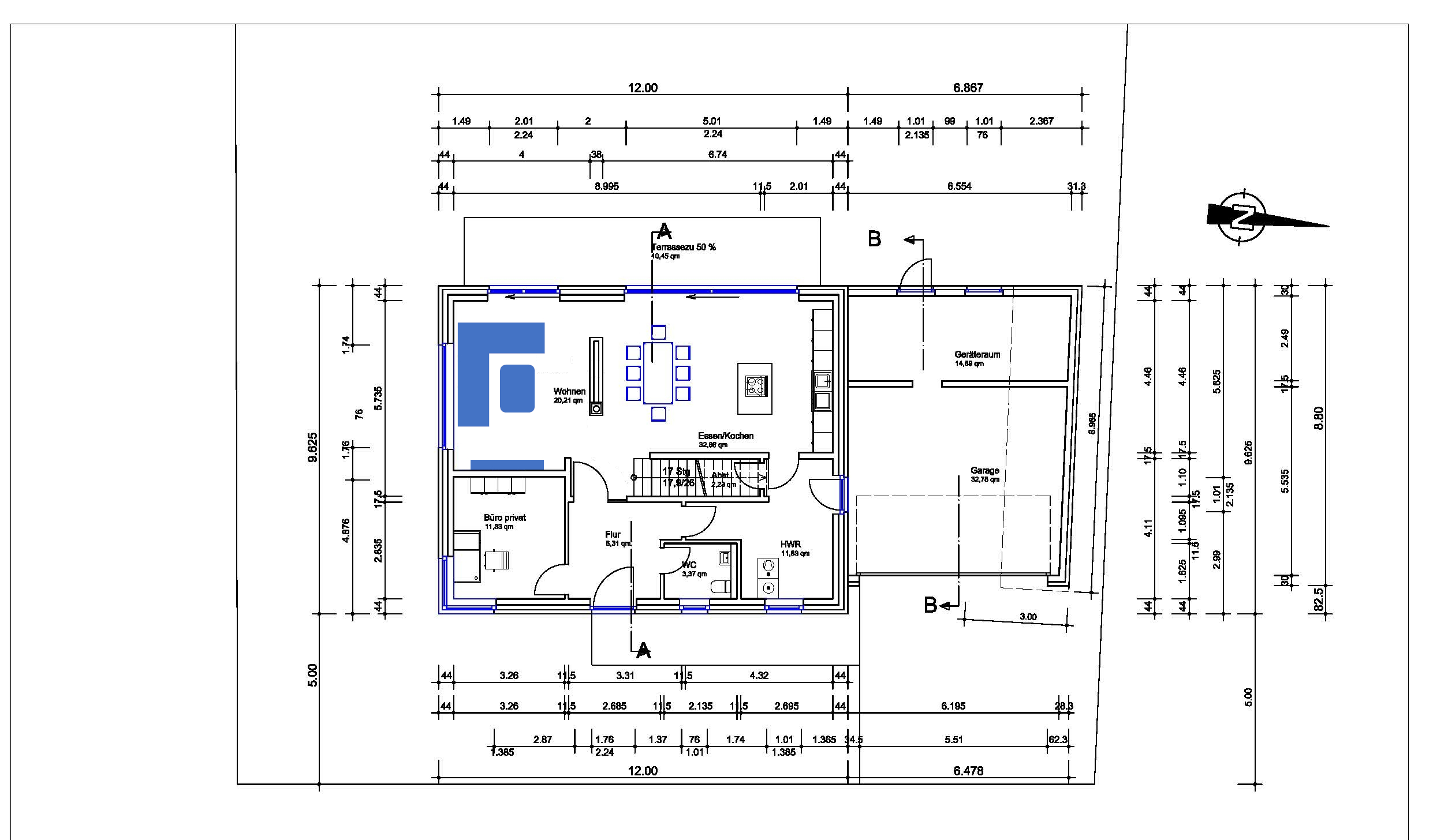
Stilrichtung, Dachform, Gebäudetyp: modern, hell und offen, Satteldach flache Dachziegel, ohne dachüberstand, leicht rechteckig
Keller, Geschosse: kein Keller, 1,5 geschosse mit höherem Kniestock (Wunsch waren Vollgeschosse aber der Bebauungsplan macht uns einen Strich durch die Rechnung
Anzahl der Personen, Alter: 2 Erwachsene, 3 Kinder Planung
Raumbedarf im EG, OG:
Büro: Aktuell Home Office, mehr Arbeitszimmer als Familiennutzung
Schlafgäste pro Jahr: Nicht einschätzbar, durchschnittlich
offene oder geschlossene Architektur: Offene Architektur
konservativ oder moderne Bauweise: modene Bauweise
offene Küche, Kochinsel: Kochinsel von ca. 3 Metern
Anzahl Essplätze: offener Essbereich
Kamin: Kaminwand geplant
Musik/Stereowand: -
Balkon, Dachterrasse: -
Garage, Carport: Doppelgarage mit Geräteraum
Nutzgarten, Treibhaus: -
weitere Wünsche/Besonderheiten/Tagesablauf, gern auch Begründungen, warum dieses oder das nicht sein soll: Das Haus soll komplett mit einer Haussteuerung eingerichtet werden, es ist eine Geothermie Anlage gewünscht (Prüfung ob möglich muss stattfinden) und in der Garage soll ein Starkstromanschluss für zukünftige, elektrische Fahrzeuge eingebaut werden.
Hausentwurf
Von wem stammt die Planung: Architekt
Was gefällt besonders? Warum?
Wir mögen die offene Treppe besonders aber haben bisher unterschiedliche Meinungen dazu gehört, was ein wenig verunsichert.
Das Elternbad ist aktuell nicht so, wie wir es gerne hätten. Die Badewanne soll vor dem Fenster stehen und wie wir das WC, die Dusche und Waschbecken platzieren ist auch noch nicht ganz klar.
Preisschätzung lt Architekt/Planer: k.A.
Persönliches Preislimit fürs Haus, inkl Ausstattung: 390.000€
favorisierte Heiztechnik: Geothermie mit Tiefenbohrung
Wenn Ihr verzichten müsst, auf welche Details/Ausbauten
-könnt Ihr verzichten: -
-könnt Ihr nicht verzichten: Die 5 Meter Panorama Fensterfront muss laut meiner Frau bleiben.
Warum ist der Entwurf so geworden, wie er jetzt ist? ZB
Standardentwurf vom Planer? Nein
Entsprechende/Welche Wünsche wurden vom Architekten umgesetzt?
Wir haben uns viele Gedanken gemacht, dass das Haus so praktisch wie möglich ist, wir uns Wege sparen und es zugleich modern ist.
Was ist die wichtigste/grundlegende Frage zum Grundriss in 130 Zeichen zusammengefasst?
Was haltet ihr von unseren Ideen und welche Erfahrungen habt ihr vielleicht bei einigen Aspekten gemacht (Fenster, Hausssteuerung, Heiztechnik, Größe der Garage, Wege Hauswirtschaftsraum, Küche). Habt ihr Anregungen zum Elternbereich im OG? Wie würdet ihr das Zimmer umsetzen, um eine Ankleide oder die Kleiderschränke unterzubringen?





aktuell planen meine Frau und auf einem 600m² großen Grundstück ein Einfamilienhaus und sind aktuell mit dem Architekten zugange, um einen Entwurf für einen Bauantrag fertigzustellen.
Bebauungsplan/Einschränkungen
Größe des Grundstücks: ziemlich genau 600m²
Hang: Nein
Grundflächenzahl: 0,3
Geschossflächenzahl: 0,4
Baufenster, Baulinie und -grenze: offene Bauweise, Baugrenze
Randbebauung: -
Anzahl Stellplatz: -
Geschossigkeit: -
Dachform: -
Stilrichtung: -
Ausrichtung: -
Maximale Höhen/Begrenzungen: -
weitere Vorgaben: -
Anforderungen der Bauherren
Stilrichtung, Dachform, Gebäudetyp: modern, hell und offen, Satteldach flache Dachziegel, ohne dachüberstand, leicht rechteckig
Keller, Geschosse: kein Keller, 1,5 geschosse mit höherem Kniestock (Wunsch waren Vollgeschosse aber der Bebauungsplan macht uns einen Strich durch die Rechnung
Anzahl der Personen, Alter: 2 Erwachsene, 3 Kinder Planung
Raumbedarf im EG, OG:
Büro: Aktuell Home Office, mehr Arbeitszimmer als Familiennutzung
Schlafgäste pro Jahr: Nicht einschätzbar, durchschnittlich
offene oder geschlossene Architektur: Offene Architektur
konservativ oder moderne Bauweise: modene Bauweise
offene Küche, Kochinsel: Kochinsel von ca. 3 Metern
Anzahl Essplätze: offener Essbereich
Kamin: Kaminwand geplant
Musik/Stereowand: -
Balkon, Dachterrasse: -
Garage, Carport: Doppelgarage mit Geräteraum
Nutzgarten, Treibhaus: -
weitere Wünsche/Besonderheiten/Tagesablauf, gern auch Begründungen, warum dieses oder das nicht sein soll: Das Haus soll komplett mit einer Haussteuerung eingerichtet werden, es ist eine Geothermie Anlage gewünscht (Prüfung ob möglich muss stattfinden) und in der Garage soll ein Starkstromanschluss für zukünftige, elektrische Fahrzeuge eingebaut werden.
Hausentwurf
Von wem stammt die Planung: Architekt
Was gefällt besonders? Warum?
- Die Treppe aus dem Wohnbereich war ein besonderer Wunsch mit dem Gedanken aus einem Wohnbereich in einen Wohnbereich ins OG zu gehen und hineinzukommen. Bei klassischen Planungen muss der Wohnbereich verlassen und in den Flur gegangen werden, um ins OG zu kommen.
- Der Zugang von der Garage in den Hauswirtschaftsraum und von dort in die Küche und den Flur mögen wir sehr, weil der Hauswirtschaftsraum der mit am häufigsten genutzte Raum ist und dort zentral zugänglich ist. Vor allem aus der Küche direkt in den Vorratsraum unter der Treppe.
- Wir hoffen, dass unsere Planung aufgeht und wir es schaffen aus den beiden Badezimmern im OG jeweils Wäscheschächte umzusetzen, die zum Hauswirtschaftsraum im EG führen.
- Der separate Elternbereich mit eigenem Bad gefällt uns sehr, da wir uns dann nicht mit 5 Personen um ein Bad streiten müssen. Hier müssen wir schauen, wie wir die Ankleide/Kleiderschränke sinnvoll unterbekommen
- Im Wohn-/Essbereich ist eine 5 Meter Fensterfront mit Schiebetüren geplant und diese liegt meiner Frau sehr am Herzen, da dadurch der gesamte Bereich mit Licht versorgt werden soll, vor allem, wenn die Wand in der Küche komplett mit Schränken vorgesehen ist.
- Die Trennwand zum Wohnzimmer soll ein wenig länger aber der Kamin, der dort vorgesehen ist gefällt uns sehr gut, weil sowohl aus dem Essbereich als auch aus dem Wohnzimmer der Kamin gesehen und genossen werden kann.
- Mit 20m² ist das Wohnzimmer überschaubar aber an die Wand zum Büro soll eine Wohnwand mit einem großen TV und ein Surround System, weswegen der Abstand nicht allzu groß zur Wand sein sollte.
- Im Eingangsbereich ist es geplant, dass die Garderobe nach Rechts direkt an die WC Wand kommt und die WC Tür von der oberen Wand umgesetzt werden soll (Das WC sollte max. 2,5m² ohne Dusche sein, da wir bereits zwei Bäder haben und das vorgesehene Kinderbad von Gästen verwendet werden kann)
Wir mögen die offene Treppe besonders aber haben bisher unterschiedliche Meinungen dazu gehört, was ein wenig verunsichert.
Das Elternbad ist aktuell nicht so, wie wir es gerne hätten. Die Badewanne soll vor dem Fenster stehen und wie wir das WC, die Dusche und Waschbecken platzieren ist auch noch nicht ganz klar.
Preisschätzung lt Architekt/Planer: k.A.
Persönliches Preislimit fürs Haus, inkl Ausstattung: 390.000€
favorisierte Heiztechnik: Geothermie mit Tiefenbohrung
Wenn Ihr verzichten müsst, auf welche Details/Ausbauten
-könnt Ihr verzichten: -
-könnt Ihr nicht verzichten: Die 5 Meter Panorama Fensterfront muss laut meiner Frau bleiben.
Warum ist der Entwurf so geworden, wie er jetzt ist? ZB
Standardentwurf vom Planer? Nein
Entsprechende/Welche Wünsche wurden vom Architekten umgesetzt?
- Wir haben mit einem technischen Zeichner unsere Ideen (klassischerweise von Pinterest, Magazinen, Instagram usw.) als Entwurf vorbereitet und diese vom Architekten gemäß des Bebauungsplan umsetzen lassen und schrauben aktuell an einigen Stellschrauben.
- Die Fensterelemente sind noch nicht endgültig und müssen noch abgestimmt werden.
- Gleiches gilt für die Eingangstür, dort ist ein Sichtfenster an der Seite und oberhalb der Tür als Idee aktuell vorgesehen.
Wir haben uns viele Gedanken gemacht, dass das Haus so praktisch wie möglich ist, wir uns Wege sparen und es zugleich modern ist.
Was ist die wichtigste/grundlegende Frage zum Grundriss in 130 Zeichen zusammengefasst?
Was haltet ihr von unseren Ideen und welche Erfahrungen habt ihr vielleicht bei einigen Aspekten gemacht (Fenster, Hausssteuerung, Heiztechnik, Größe der Garage, Wege Hauswirtschaftsraum, Küche). Habt ihr Anregungen zum Elternbereich im OG? Wie würdet ihr das Zimmer umsetzen, um eine Ankleide oder die Kleiderschränke unterzubringen?
Moin zusammen,
also das Wohnzimmer haben wir uns wie unten vorgestellt. Ich habe mal meine digitalen Fähigkeiten unter Beweis gestellt und den Grundriss hinsichtlich des Kamins und des Wohnzimmers ein wenig angepasst. Der TV soll nämlich nicht an die Kaminwand, sondern an die Bürowand. Hat den Grund, dass mehrere Geräte dort hin müssten und es schwer wäre die unterzubekommen. Bspw. Subwoofer, Sound Receiver, TV Receiver, Konsolen. Aus diesem Grund soll die Bürowand ein wenig weitergeführt und mit einer Wohnwand versehen werden.
Die Fenster links im Wohnzimmer sollen schmale, festverglase Elemente sein, die als Lichtquelle dienen und höher gelegen sind. Das hintere Fenster Richtung Terrasse soll ebenfalls festverglast sein und die Größe gleich dem festen Element im OG Flur haben (wenn man die Treppe hinauf kommt).

Wir hatten die Nische vorher als Ankleide versucht einzuplanen aber dafür war sie zu klein. Deswegen blieb der Abstellraum, den ich in meinem "jugendlichen" Leichtsinn eigentlich nicht so schlecht finde.
also das Wohnzimmer haben wir uns wie unten vorgestellt. Ich habe mal meine digitalen Fähigkeiten unter Beweis gestellt und den Grundriss hinsichtlich des Kamins und des Wohnzimmers ein wenig angepasst. Der TV soll nämlich nicht an die Kaminwand, sondern an die Bürowand. Hat den Grund, dass mehrere Geräte dort hin müssten und es schwer wäre die unterzubekommen. Bspw. Subwoofer, Sound Receiver, TV Receiver, Konsolen. Aus diesem Grund soll die Bürowand ein wenig weitergeführt und mit einer Wohnwand versehen werden.
Die Fenster links im Wohnzimmer sollen schmale, festverglase Elemente sein, die als Lichtquelle dienen und höher gelegen sind. Das hintere Fenster Richtung Terrasse soll ebenfalls festverglast sein und die Größe gleich dem festen Element im OG Flur haben (wenn man die Treppe hinauf kommt).
ypg schrieb:Danke, immerhin für die Tür 😀
Allerdings finde ich die Tür toll 🙂
ypg schrieb:Das stimmt natürlich aber einen Tot muss man irgendwie immer sterben. Meine Frau wünschte sich die beiden Badezimmer nebeneinander und über dem Hauswirtschaftsraum wegen der Wäscheschächte.
(Ab-)Stellfläche kann man und sollte man auch im OG haben, aber doch nicht einfach eine übrig gebliebene Nische im Süden, sondern geplant.
Wir hatten die Nische vorher als Ankleide versucht einzuplanen aber dafür war sie zu klein. Deswegen blieb der Abstellraum, den ich in meinem "jugendlichen" Leichtsinn eigentlich nicht so schlecht finde.
Alessandro schrieb:Das nehme ich noch mal mit und bespreche das mit dem Kamin oder auch Bauleiter.
Der Kamin fällt immer viel dicker aus als ihn die Architekten einzeichnen.
Alessandro schrieb:Meine Frau wünscht sich schon einen Holzkamin, mit Gas brauche ich (aktuell zumindest) nicht um die Ecke kommen 😀
Um Platz zu sparen würde ich einen Gaskamin einbauen. Den meisten Menschen gehts eh mehr um die Optik als um die Wärme.
Mit Gas ist der Ofen auf Knopfdruck an, er gibt nicht so viel Wärme ab und du kannst das Ding so schmal bauen wie im Plan eingezeichnet.
lastdrop schrieb:Meine Frau meint, dass ihr der Platz reicht. Der Raum wird auch ausschließlich für Hauswirtschaftsraum genutzt, da ich die Haustechnik im Geräteraum, in der Garage unterbringen möchte. (Hier finde ich es auch sehr gut, dass der Weg von der Wärmepumpe (ich hoffe, dass ich das korrekte Gerät) zur Küche, den Bädern und dem Hauswirtschaftsraum letztlich nicht so weit ist.)
50% des Hauswirtschaftsraum ist Verkehrsfläche. Kann man sich leisten, aber der Platz fehlt dann eben
lastdrop schrieb:Thema Treppe tue ich mich sehr schwer, das war ein großer Wunsch von mir und ein romantischer Gedanke, den ich nach wie vor sehr schön finde und den Gedanken (ich übertreibe mal) nicht in den kalten Flur und an der Haustür vorbei ins OG zu gehen, fand ich sehr schön. Argument der Kinder und des Nervens verstehe ich definitiv.
Treppe würde ich keinesfalls so machen, ich sehe da absolut keinen Mehrwert drin.
A
Alessandro16.12.20 11:59wenn ihr aber viel fernseht, ist diese Ausrichtung der Couch mit TV an der Bürowand nicht optimal.
Denn dann können 2 Leute gerade auf den TV schauen, während die anderen 3 später im Kreis laufen weil sie eine Genicksperre bekommen 😉
Denn dann können 2 Leute gerade auf den TV schauen, während die anderen 3 später im Kreis laufen weil sie eine Genicksperre bekommen 😉
H
Hausbautraum2016.12.20 12:48Ruksson schrieb:
großer Wunsch von mir und ein romantischer Gedanke, den ich nach wie vor sehr schön finde und den Gedanken (ich übertreibe mal) nicht in den kalten Flur und an der Haustür vorbei ins OG zu gehen, fand ich sehr schön. Argument der Kinder und des Nervens verstehe ich definitiv.Also mir gefällt euer Grundriss eigentlich ganz gut.
Die Anmerkungen von ypg im 1.Beitrag hätte ich auch gehabt.
Treppe wäre für mich der größte Alptraum, aber es muss ja euch gefallen.
Das Argument mit der "Haustür sehen" und durchs kalte gehen verstehen wir aber. Deswegen bauen wir ganz altmodisch nen Windfang.
Mich würde ja nur noch interessieren, wie dieses Projekt unter 400k umgesetzt werden soll. Wir bauen bescheidener und kommen da weit drüber.
Ruksson schrieb:
Das stimmt natürlich aber einen Tot muss man irgendwie immer sterben.Aber nicht so viele 😉Ruksson schrieb:
da ich die Haustechnik im Geräteraum, in der Garage unterbringen möchte.Thermische Hülle! Die Technik muss in die thermische Hülle.Hausbautraum20 schrieb:
Treppe wäre für mich der größte Alptraum, aber es muss ja euch gefallen.Ja, wie schon gesagt: geiles (Pinterest-)Teil, aber im Alltag mit Kindern für mich ein No-Go.Nehmt mal den Gedanken auf, dass Pinterest oft nur dekorierte Räume, keine real existierenden Räume zeigt. Moderne Möbelhäuser und Schöner Wohnen arrangieren einen Raum und fotografieren ihn in Totalen und Details so, dass sie in fast jedem Thema verlinkt werden und Lust am Wohnen (und kaufen) machen. Vieles hat nichts mit wirklichen Alltagsräumen zu tun, sondern nur mit AlltagsTräumen.
Alessandro schrieb:
wenn ihr aber viel fernseht, ist diese Ausrichtung der Couch mit TV an der Bürowand nicht optimal.
Denn dann können 2 Leute gerade auf den TV schauen, während die anderen 3 später im Kreis laufen weil sie eine Genicksperre bekommen 😉Das erzähle gerne meiner Frau. Genau dieses Argument habe ich angeführt, hat aber leider nicht gezündet. 😀 Ich wollte den TV nicht an der Kaminwand haben, da das indirekte Licht beim Filme schauen schon störend sein kann. Vor allem bin ich da ein kleiner Filme Junkie und möchte das vollends genießen. Deswegen konnte ich meine Frau zur Wohnwand an der Bürowand überreden, um alles unterzubekommen. Der Abstand ist mir tatsächlich ein Dorn im Auge aber leider ist dies einer der Punkte, die ich in Kauf nehme, wenn wir es so zumindest realisiert bekommen. Naja, ich plane mittelfristig dann auch mit einem 75" TV, von daher könnte das mit dem Abstand dann gut hinkommen, um 4K Filme zu genießen.
Hausbautraum20 schrieb:
Mich würde ja nur noch interessieren, wie dieses Projekt unter 400k umgesetzt werden soll. Wir bauen bescheidener und kommen da weit drüber.Ich hatte bereits ein paar mal unseren Bauleiter erwähnt. Naja, ich komme aus einer Handwerker Familie und dadurch können wir zum einen auf viel Erfahrung zurückgreifen aber zum anderen auch viele Dinge gut umsetzen. Mein Bruder ist Maurermeister und baut teilweise auch schlüsselfertig, der andere Bruder ist Zimmerermeister und auch andere Gewerke haben wir im Kreis, die wir gut bedienen können.Was uns der Spaß dann tatsächlich kostet, dass werden wir in nächster Zeit noch detaillierter kalkulieren aber uns wurde grob überschlagen bereits zuversichtlich mitgeteilt, dass wir mit unserem Budget hinkommen könnten. Wo wir am Ende abstriche machen müssen, zeigt sich dann. 😀
A
Alessandro16.12.20 14:43wie du meinst. Die eingezeichnete Couch ist mMn. nich für Filmjunkies ausgerichtet!
Die breite des Kamins im Plan kannst du mal locker verdoppeln um realistisch planen zu können.
Die breite des Kamins im Plan kannst du mal locker verdoppeln um realistisch planen zu können.
Ähnliche Themen