ᐅ Grundriss 170m2 - Hauswirtschaftsraum zu klein? Verbesserungsvorschläge?
Erstellt am: 09.03.21 09:13
S
Stephan—
Hallo zusammen,
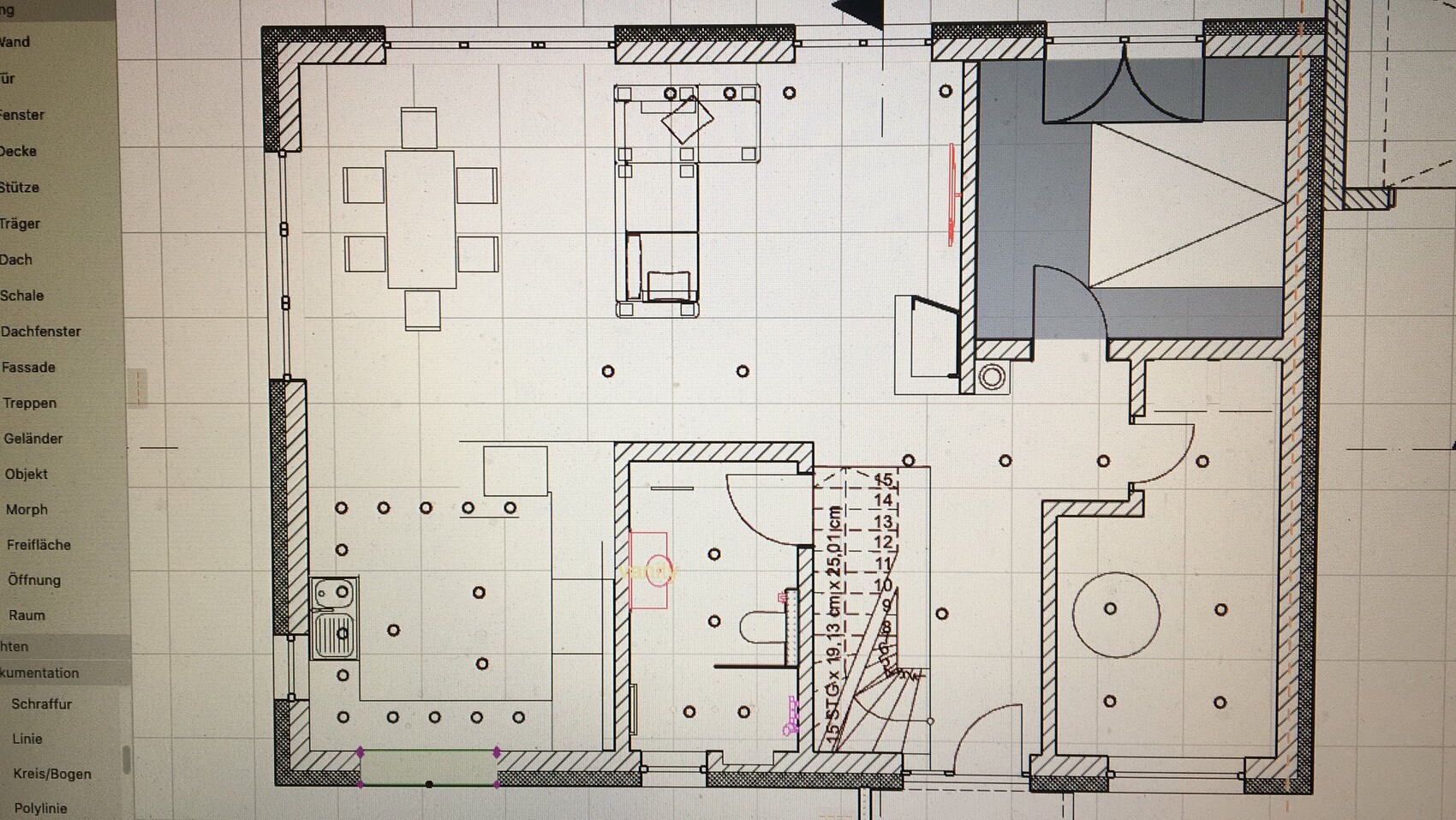
mein Gehirn quillt sich auf seit Tagen mit folgender Frage "Ist der Hauswirtschaftsraum zu klein"? 6,8m2
Mein Plan ist, an der linken Wand Kontrollierte-Wohnraumlüftung und Solepumpe unterzubringen und an der rechten Wand den Trockner und Waschmaschine.
Stromkasten soll in die Garage auswandern.
Habt ihr ggf. sinnvolle Verschiebungen von Wänden als Vorschläge?
Das Gästezimmer /Altersschlafzimmer muss 3,2x3,5m erreichen

mein Gehirn quillt sich auf seit Tagen mit folgender Frage "Ist der Hauswirtschaftsraum zu klein"? 6,8m2
Mein Plan ist, an der linken Wand Kontrollierte-Wohnraumlüftung und Solepumpe unterzubringen und an der rechten Wand den Trockner und Waschmaschine.
Stromkasten soll in die Garage auswandern.
Habt ihr ggf. sinnvolle Verschiebungen von Wänden als Vorschläge?
Das Gästezimmer /Altersschlafzimmer muss 3,2x3,5m erreichen
ypg schrieb:
Ich sehe da nicht den wohnlichen Gegenwert von 170qm.Ich führe das mal anders herum aus:Wohnzimmer als Durchgangsraum, Schlafzimmer als Durchgangsraum, Treppe am Eingang, verwinkelter Flur im OG, schmaler Flur, Fenster über Wanne, das sind alles Situationen, die sich zwangsläufig durch wenige vorhandene QM im zb Reihen- oder Doppelhaus, 110-130qm, ergeben.
Wo hat sich denn bei Euch der Planer versteckt?
Ich finde das ziemlich befremdlich, sich ein relativ gesehen beinahe schon Tinyhouse neben eine Vierfachgarage zu stellen. Was ist der Hintergrund dieses revolutionären Konzeptes ?
https://www.instagram.com/11antgmxde/
https://www.linkedin.com/company/bauen-jetzt/
https://www.instagram.com/11antgmxde/
https://www.linkedin.com/company/bauen-jetzt/
11ant schrieb:
Ich finde das ziemlich befremdlich, sich ein relativ gesehen beinahe schon Tinyhouse neben eine Vierfachgarage zu stellen. Was ist der Hintergrund dieses revolutionären Konzeptes ?Mein Kollege würde jetzt sagen: Angst frisst Seele auf 😳M
motorradsilke11.03.21 07:23Ich würde auf jeden Fall Küche und Wohnzimmer tauschen. So rennt dir jedes Kind mit Freunden erst durch das WZ, wenn es nur etwas zu trinken holen will. Wenn die Kids größer sind, auch spätabends. Wäre mir zu ungemütlich.
Die Couch dann an die Wand zur Toilette, den Fernseher an die linke Wand, und das Fenster an dieser Wand etwas größer und bodentief. Dann kannst du auch wunderbar von der Couch aus rausgucken.
Und wenn möglich würde ich die Garage weiter nach vorn setzen, und einen direkten Zugang von der Garage zum Hauswirtschaftsraum einplanen.
Die Couch dann an die Wand zur Toilette, den Fernseher an die linke Wand, und das Fenster an dieser Wand etwas größer und bodentief. Dann kannst du auch wunderbar von der Couch aus rausgucken.
Und wenn möglich würde ich die Garage weiter nach vorn setzen, und einen direkten Zugang von der Garage zum Hauswirtschaftsraum einplanen.
Ähnliche Themen