ᐅ Grundrissoptimierung EFH, Flure zu schmal & lang, QM sparen, Treppe ins Dachgeschoss
Erstellt am: 04.07.25 21:26
J
JoMIBaGaHallo in die Runde,
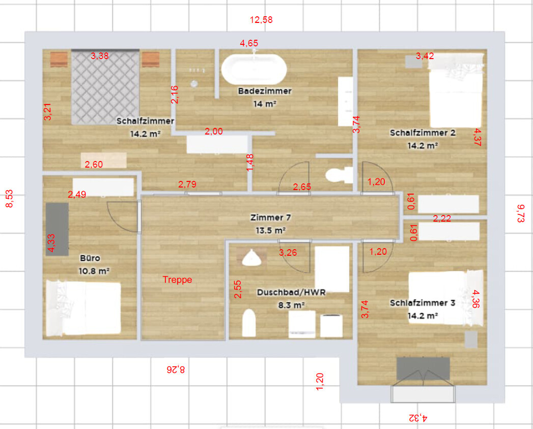
wir planen unser Einfamilienhaus und würden final gerne auf etwa 180qm kommen (gerade sind es 189qm bei zwei Geschossen ohne Schrägen). EG mit Hauswirtschaftsraum/Technik/Vorrat, Küche, Esszimmer, Wohnzimmer, Büro und Diele. OG mit Elternschlafzimmer/Ankleidebereich, Familienbad, Duschbad mit Waschmaschinennische, zwei Kinderzimmer und Büro/3. Kinderzimmer.
EG:
-Das Büro soll eventuell später als Apartment genutzt werden können.
OG:
-Der Flur im OG ist recht schmal und lang/dunkel.
-Der Ankleidebereich/ das Elternschlafzimmer gefällt uns so noch nicht.
-Gibt es eine Möglichkeit eine zweite Treppe zum Dachgeschoss zu realisieren?
Generell sind wir offen für Ideen und Anregungen.
Vielen Dank!


wir planen unser Einfamilienhaus und würden final gerne auf etwa 180qm kommen (gerade sind es 189qm bei zwei Geschossen ohne Schrägen). EG mit Hauswirtschaftsraum/Technik/Vorrat, Küche, Esszimmer, Wohnzimmer, Büro und Diele. OG mit Elternschlafzimmer/Ankleidebereich, Familienbad, Duschbad mit Waschmaschinennische, zwei Kinderzimmer und Büro/3. Kinderzimmer.
EG:
-Das Büro soll eventuell später als Apartment genutzt werden können.
OG:
-Der Flur im OG ist recht schmal und lang/dunkel.
-Der Ankleidebereich/ das Elternschlafzimmer gefällt uns so noch nicht.
-Gibt es eine Möglichkeit eine zweite Treppe zum Dachgeschoss zu realisieren?
Generell sind wir offen für Ideen und Anregungen.
Vielen Dank!
N
nordanney04.07.25 21:59Sorry. Würde den gesamten Grundriss in die Tonne kloppen.
Alle Räume mit Winkeln, Abwasser Bad mitten im Wohnzimmer, Außenansicht mit Fenstern und Türen? Gefällt mir gar nicht.
Du stellst am besten mal den Grundriss mit dem Fragebogen ein.
Wenn ich eine 3/4 Mio. für ein Haus ausgebe, lasse ich das einen Architekten machen.
Alle Räume mit Winkeln, Abwasser Bad mitten im Wohnzimmer, Außenansicht mit Fenstern und Türen? Gefällt mir gar nicht.
Du stellst am besten mal den Grundriss mit dem Fragebogen ein.
Wenn ich eine 3/4 Mio. für ein Haus ausgebe, lasse ich das einen Architekten machen.
Kann mich @nordanney nur anschließen. Außerdem bist du im falschen Forumsbereich, du solltest einen Thread in https://www.hausbau-forum.de/forums/grundrissplanung-grundstuecksplanung.237/ eröffnen. Aber unbedingt vorher https://www.hausbau-forum.de/threads/grundriss-planung-unbedingt-vor-beitrag-erstellung-lesen.11714/ lesen und die entsprechenden Infos dann auch in deinen neuen Thread einstellen.
Ähnliche Themen