ᐅ Grundrissdiskussion / Einfamilienhaus auf Grundstück länglich mit NO-Ausrichtung
Erstellt am: 16.01.25 07:05
Z
ZitronenwalterZ
Zitronenwalter16.01.25 07:05Hallo zusammen,
ich bin im Rahmen unserer Grundrissplanung und bei der Suche nach Erfahrungsberichte von evtl. geeigneten Hausbauern auf dieses Forum aufmerksam geworden.
Da hier ja schon mit ordentlich Fachwissen und technischem Tiefgang diskutiert wird, wollte ich gerne unseren angedachten Grundriss zur Diskussion stellen.
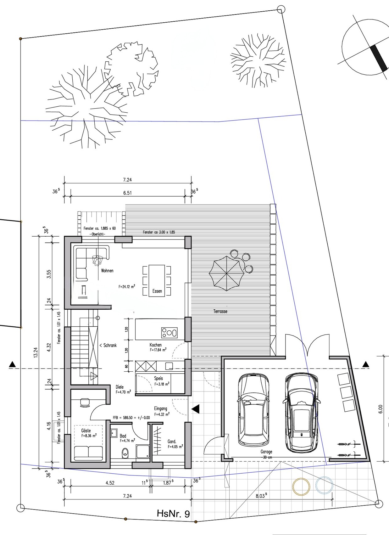
Das Grundstück befindet sich in einem Neubaugebiet, Nachbarbebauung aus dem alten Bestand gibt es Richtung süd/westen.
Insgesamt sind wir recht zufrieden mit dem Entwurf, was die Ausnützung der Grundstücksfläche angeht. Etwas unsicher sind wir, was die Ausrichtung und Größe der Fenster im Wohn-Ess-Bereich (Befensterung ausreichend, oder wird es im Winter düster?), sowie die Lage der Hauptterrasse (im Sommer Vormittags schattig und abends brüllend heiß?) angeht.
Gerne eure Meinungen zum Grundriss/Anordnung, bezogen auf unsere "Schmerzpunkte" oder auch allem anderen, was euch auffällt (sowohl gut als auch schlecht).
Bebauungsplan/Einschränkungen
Größe des Grundstücks: 500 qm
Hang: nein
Grundflächenzahl: 0.4
Geschossflächenzahl: 2
Baufenster, Baulinie und -grenze
Randbebauung: nein
Anzahl Stellplatz: 2
Geschossigkeit: 2 Vollgeschosse
Dachform: Satteldach
Stilrichtung: klassisch/modern
Ausrichtung: SW/NO
Maximale Höhen/Begrenzungen: s. Schnitte
weitere Vorgaben: Dachüberstand 0.5m
Anforderungen der Bauherren
Stilrichtung, Dachform, Gebäudetyp: klassisch/modern, Satteldach möglichst gering geneigt, Einfamilienhaus
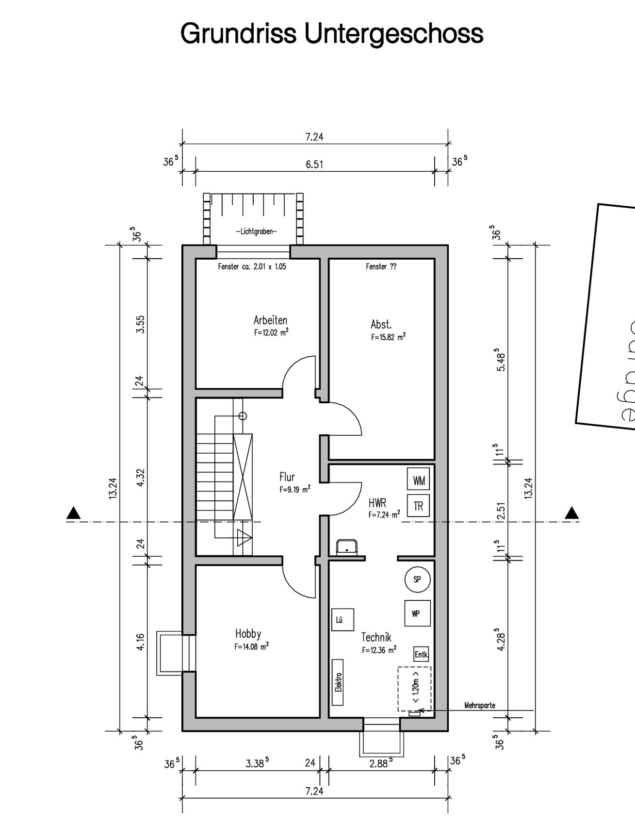
Keller, Geschosse: Keller, 2 Vollgeschosse
Anzahl der Personen, Alter: 5 (37,37,5,3,0)
Raumbedarf im EG, OG: 3 Kinderzimmer
Büro: Familiennutzung oder Homeoffice?: Familiennutzung im EG, Home Office im Keller
Schlafgäste pro Jahr: ca 10 Übernachtungen
offene oder geschlossene Architektur: offen
konservativ oder moderne Bauweise: konservativ-modern
offene Küche, Kochinsel: Kochinsel
Kamin: nein
Musik/Stereowand: nein
Balkon, Dachterrasse: nein
Garage, Carport: Doppelgarage
Nutzgarten, Treibhaus: nein
weitere Wünsche/Besonderheiten/Tagesablauf, gern auch Begründungen, warum dieses oder das nicht sein soll: dazu fällt mir nichts ein.
Hausentwurf
Von wem stammt die Planung: Architekt, Feintuning durch uns
Was gefällt besonders? Warum?:
Kurze und direkte Wege (z.b. Küche-essen, Küche-Terrasse, Garage-Eingang). Gute Ausnutzung der Flächen, gute Ausnutzung der Grundstücksfläche. Saubere Trennung Wohn- und Eingangs/Schmutzbereich. Alle Schlafzimmer auf einer Ebene mit der Option für die Kinder später eine einfache Galerie einzurichten.
Was gefällt nicht? Warum?:
Unsicherheit bzgl. Ausrichtung der Wohnecke mit Fernseher, und wand an der Treppe. Schottet diese den wohn Essbereich zu arg nach Süden ab? Leider habe ich da keine Idee etwas anders zu machen, ohne dass es uns den kompletten Grundriss zerhackt.
Preisschätzung laut Architekt/Planer: ca 700.000€ (Haus inkl. Nebenkosten, ohne Garage)
Persönliches Preislimit fürs Haus, inkl. Ausstattung: (700.000 €)
favorisierte Heiztechnik: Wärmepumpe/Fußbodenheizung
Wenn Ihr verzichten müsst, auf welche Details/Ausbauten
-könnt Ihr verzichten:
-könnt Ihr nicht verzichten:
Warum ist der Entwurf so geworden, wie er jetzt ist? ZB
Welche Wünsche wurden vom Architekten umgesetzt? Großer wohn-Essbereich, mit Hebe-Schiebetüre, möglichst viel Gartenfläche, Doppelgarage bzw Carport





ich bin im Rahmen unserer Grundrissplanung und bei der Suche nach Erfahrungsberichte von evtl. geeigneten Hausbauern auf dieses Forum aufmerksam geworden.
Da hier ja schon mit ordentlich Fachwissen und technischem Tiefgang diskutiert wird, wollte ich gerne unseren angedachten Grundriss zur Diskussion stellen.
Das Grundstück befindet sich in einem Neubaugebiet, Nachbarbebauung aus dem alten Bestand gibt es Richtung süd/westen.
Insgesamt sind wir recht zufrieden mit dem Entwurf, was die Ausnützung der Grundstücksfläche angeht. Etwas unsicher sind wir, was die Ausrichtung und Größe der Fenster im Wohn-Ess-Bereich (Befensterung ausreichend, oder wird es im Winter düster?), sowie die Lage der Hauptterrasse (im Sommer Vormittags schattig und abends brüllend heiß?) angeht.
Gerne eure Meinungen zum Grundriss/Anordnung, bezogen auf unsere "Schmerzpunkte" oder auch allem anderen, was euch auffällt (sowohl gut als auch schlecht).
Bebauungsplan/Einschränkungen
Größe des Grundstücks: 500 qm
Hang: nein
Grundflächenzahl: 0.4
Geschossflächenzahl: 2
Baufenster, Baulinie und -grenze
Randbebauung: nein
Anzahl Stellplatz: 2
Geschossigkeit: 2 Vollgeschosse
Dachform: Satteldach
Stilrichtung: klassisch/modern
Ausrichtung: SW/NO
Maximale Höhen/Begrenzungen: s. Schnitte
weitere Vorgaben: Dachüberstand 0.5m
Anforderungen der Bauherren
Stilrichtung, Dachform, Gebäudetyp: klassisch/modern, Satteldach möglichst gering geneigt, Einfamilienhaus
Keller, Geschosse: Keller, 2 Vollgeschosse
Anzahl der Personen, Alter: 5 (37,37,5,3,0)
Raumbedarf im EG, OG: 3 Kinderzimmer
Büro: Familiennutzung oder Homeoffice?: Familiennutzung im EG, Home Office im Keller
Schlafgäste pro Jahr: ca 10 Übernachtungen
offene oder geschlossene Architektur: offen
konservativ oder moderne Bauweise: konservativ-modern
offene Küche, Kochinsel: Kochinsel
Kamin: nein
Musik/Stereowand: nein
Balkon, Dachterrasse: nein
Garage, Carport: Doppelgarage
Nutzgarten, Treibhaus: nein
weitere Wünsche/Besonderheiten/Tagesablauf, gern auch Begründungen, warum dieses oder das nicht sein soll: dazu fällt mir nichts ein.
Hausentwurf
Von wem stammt die Planung: Architekt, Feintuning durch uns
Was gefällt besonders? Warum?:
Kurze und direkte Wege (z.b. Küche-essen, Küche-Terrasse, Garage-Eingang). Gute Ausnutzung der Flächen, gute Ausnutzung der Grundstücksfläche. Saubere Trennung Wohn- und Eingangs/Schmutzbereich. Alle Schlafzimmer auf einer Ebene mit der Option für die Kinder später eine einfache Galerie einzurichten.
Was gefällt nicht? Warum?:
Unsicherheit bzgl. Ausrichtung der Wohnecke mit Fernseher, und wand an der Treppe. Schottet diese den wohn Essbereich zu arg nach Süden ab? Leider habe ich da keine Idee etwas anders zu machen, ohne dass es uns den kompletten Grundriss zerhackt.
Preisschätzung laut Architekt/Planer: ca 700.000€ (Haus inkl. Nebenkosten, ohne Garage)
Persönliches Preislimit fürs Haus, inkl. Ausstattung: (700.000 €)
favorisierte Heiztechnik: Wärmepumpe/Fußbodenheizung
Wenn Ihr verzichten müsst, auf welche Details/Ausbauten
-könnt Ihr verzichten:
-könnt Ihr nicht verzichten:
Warum ist der Entwurf so geworden, wie er jetzt ist? ZB
Welche Wünsche wurden vom Architekten umgesetzt? Großer wohn-Essbereich, mit Hebe-Schiebetüre, möglichst viel Gartenfläche, Doppelgarage bzw Carport
Das ist mal ein schöner Eröffnungsbeitrag. Nordpfeil, Lageplan incl. Lage des Hauses. Danke.
Und grundsätzlich gefällt mir der Grundriss, habe 2 oder 3 Anmerkungen:
EG

Im Schnitt ist für Zimmer 1 eine zusätzliche Ebene zu sehen. Wie breit soll die sein und was ist da angedacht? Könnte etwas kritisch werden.
Und grundsätzlich gefällt mir der Grundriss, habe 2 oder 3 Anmerkungen:
EG
- Das Gästezimmer ist schon wirklich arg schmal. Evtl. lässt sich durch Verschmälerung des Bades und dort andere Anordnung (Dusche planunten und dann rechts kleines Waschbecken und WC und Tür nach außen aufgehend das Gästezimmer zumindest im Bereich des Bettes etwas verbreitern.
- Speisekammer unbedingt die Tür nach außen öffnen lassen und nur ca. 71-76 cm breit. Dann können die Wände rechts oder links z. B. für Staubsauger, Wischer, 20 cm tiefes Regal usw. genutzt werden und man kommt auch ran
- Treppe evtl. läßt sich die Länge noch um 1 Stufe verringern, dafür am planoberen Treppenteil 1 Stufe mehr.
- Küchentechnisch würde ich versuchen, die Hochschränke der Küche ins Treppenauge zu bekommen und sowohl die Zeile als auch die Insel dann nur ebene Fläche.
- WZ wg. Treppenwand habe ich keine Bedenken.
- Bei allen Türen mit Schränken dahinter darauf achten, dass dort im Rohbau möglichst mind. 70 cm sind. Daher Zimmer 1 Tür etwas nach planoben und fürs Schlafzimmer mal prüfen.
- Schlafzimmer, Fenster würde ich nach planunten setzen und das Bett mit dem Kopf nach rechts. Wie es jetzt ist, kann man mit dem freien Raum nichts weiter anfangen. Gedreht bleibt z. B. Platz für eine wenig tiefe Kommode an der Wand zum Bad oder ähnliches
- Bad .. die T-Lösung mit Dusch am Fenster finde ich ungünstig. Daher z. B. wie in der folgenden Zeichnung. Rot markiert auch die Wandtiefe für den Schlafzimmerschrank
Im Schnitt ist für Zimmer 1 eine zusätzliche Ebene zu sehen. Wie breit soll die sein und was ist da angedacht? Könnte etwas kritisch werden.
kbt09 schrieb:
Das ist mal ein schöner Eröffnungsbeitrag.Das finde auch ich - klar wie der Entwurf!kbt09 schrieb:
Küchentechnisch würde ich versuchen, die Hochschränke der Küche ins Treppenauge zu bekommen und sowohl die Zeile als auch die Insel dann nur ebene Fläche.Anfangs dachte ich: Speis weg bzw. unter die Treppe, unbedingt die Küche vergrößern.„Leider“ gibt es einen Keller.
Die Küche wäre mir mit 2 Personen zu klein. Einige Geräte stehen offen und somit ist die Zeile besetzt. Insel würde bei 5 Personen Arbeitsfläche sprengen. Hantieren mit Backblech sehe ich nicht.
Zitronenwalter schrieb:
Schottet diese den wohn Essbereich zu arg nach Süden ab?Nein. Ich würde allerdings neben dem Treppenfenster noch ein gleiches im Wohnbereich setzen.Zitronenwalter schrieb:
Alle Schlafzimmer auf einer Ebene mit der Option für die Kinder später eine einfache Galerie einzurichten.Würde ich nicht machen. Treppe hoch, dann eine Reling, wo man sich nur gebückt nach oben bewegen kann, ist suboptimal. Hochbetten oder Galerie bietet sich ggf. längs an oder von Firstseite. Aber nicht so wie eingezeichnet. Praktisch ist das auch nicht.Was ich noch erwähnen kann:
Zugang zum Haus wird zugig, Terrasse ungemütlich. Da würde ich den Weg zwischen Garage und Haus zu machen. Dann auch dort Müllboxen aufstellen. Der Platz in der Garage wird wohl auch vom Fuhrpark der Kinder und Fahrräder gebraucht.
Der Grundriss wirkt äußerst aufgeräumt und man hat das Gefühl: Das passt so.
Oben angefangen stimme ich @kbt09 zu und würde diesen Vorschlag auf jeden Fall favorisieren. Diese manchmal gesehene T-Lösung wirkt für mich auf den ersten Blick immer ganz nett, je länger ich aber hinschaue, umso weniger gefällt es mir dann bzw. kann ich darin keinen Vorteil sehen. Die Tür im Rücken zu haben beim Zähneputzen würde mir nicht gefallen. Die in dem neuen Vorschlag entstehende Dusche würde ich halbhoch mauern und darauf eine einfache Scheibe stellen, das empfinde ich als praktisch und an der halben Wand kann man neben WC z.B. auch Dinge anschrauben/ablegen.
Bei Zimmer 2 würde ich mir überlegen, ob dies tatsächlich zwei große Fenster benötigt und ob dies dem Nutzer nicht Stellfläche für Möbel oder Nutzfläche der Wand für Deko, Bilder etc. nimmt. Fensterbereich über dem Bett ist ohnehin fraglich.
Nun kenne ich nicht die bestimmenden Parameter für Euren Plan aber gemessen am äußerst üppigen Keller mit 14qm Hobby, fast 16qm Abstellraum, 9qm Flur, und daneben noch über 12qm alleine für Technik finde ich die 12qm Arbeitszimmer eher dürftig, insbesondere aber eben auch die generelle Tatsache, dass Arbeiten im Keller mit Lichtschacht stattfindet.
Mir drängt sich das Gefühl auf, dass ihr Eure 500qm Grundstück maximal für Freizeit "ausnutzen" wollt und daher wenigst möglich für das Wohngebäude "verschwenden" wollt, weil sich alleine aufgrund des Grundsücksverlaufes ein Keller ja nicht zwingend geboten wäre, oder? Ich selbst mag es grundsätzlich gerne kompakt und daher ist der erste Eindruck auch positiv, aber beim Keller trennt es sich dann bei mir. Dieser ist nämlich genauso teuer wie überirdischer Wohnraum dagegen aber maximal unkomfortabel zusätzlich durch Treppe, fehlende Tageslicht und erhebliche Erdarbeiten etc.
Jetzt will ich ja Eure offenbar schon gereifte Entscheidung nicht in Frage stellen aber solange Nichts gebaut ist darf man ja kritisieren finde ich. Etwas Fertiggestelltes kritisiere ich so nicht mehr, dann würde ich es eher, auchn bei meinem Bau selbst, als Häme empfinden, weil man ja Nichts mehr ändern kann.
Warum also habt ihr Euch für einen Keller entschieden anstatt überirdisch angemessen zu vergrößern und dadurch Euer tägliches Leben komfortabler zu gestalten?
Ehrlich gesagt täuscht (zumindest mich) der erste Blick z.B. auf Euren Allraum hinsichtlich dessen Geräumigkeit und ich bin mir auch nicht sicher, ob die eingezeichneten Möbel (Sofa, Esstisch, Stühle etc.) auch mit echten Maßen Eurer späteren Realität entsprechen; stimmen diese Maße wirklich so?
Etwa 41qm Allraum für 5 Personen ist beileibe nicht viel und davon fast 18qm für die Küche, die dann am Ende so doch nicht wirklich viel Staufläche bietet, empfinde ich eher als leichte Schräglage. Vlt. sollte man die Speis ja auch ganz rausnehmen und den dann größeren Küchenbereich durch praktische Möbel nutzen, die aktuelle Speis kostet Geld und die Tür nimmt ihr maximal Nutzraum dazu. Der extra Ausgang aus der Küche nimmt dieser weitere Stellfläche und muss so nicht sein. Sofern TV bei Euch wichtig ist passt die Möblierung überhaupt nicht für mehrere Personen.
Riesigen Fensterflächen gefallen mir ja generell aber aktuell könnt ihr wirklich Nichts irgendwo hinstellen, keinerlei Stellfläche.
Die Garagenzufahrt ist, so wie gezeichnet zu eng an der Einfahrtstelle, da wird es bald Kratzer geben, zieh mal eine Linie, wie das Fzg. ein-/ausfahren würde und Du siehst das Problem
Euer alltäglicher Wohnbereich ist wirklich sehr knapp bemessen, was ja an sich nicht schlimm wäre, wenn nicht mehr möglich wäre. Am Keller und der riesigen, auch kostspieligen Terrasse und der üppigen Garage sehe ich aber, das offenbar doch finanzielle Flexibilität vorhanden ist, die ich zumindest definitiv mehr im Wohnraum (EG-OG) einsetzen würde; wie gesagt sind es die Proportionen.
Ich hoffe, das kommt nicht falsch an aber irgendwie empfinde ich eine Art Unwucht in der Gewichtung zwischen den kleinen Wohnräumen (Allraum, Kinderzimmer), den riesigen Glasflächen und der noch größeren Terrasse mit entsprechenden Folgekosten für Beschattung etc., also viel zu viel an Keller und Terrasse und zu wenig an oberirdischer Wohnfläche.
Oben angefangen stimme ich @kbt09 zu und würde diesen Vorschlag auf jeden Fall favorisieren. Diese manchmal gesehene T-Lösung wirkt für mich auf den ersten Blick immer ganz nett, je länger ich aber hinschaue, umso weniger gefällt es mir dann bzw. kann ich darin keinen Vorteil sehen. Die Tür im Rücken zu haben beim Zähneputzen würde mir nicht gefallen. Die in dem neuen Vorschlag entstehende Dusche würde ich halbhoch mauern und darauf eine einfache Scheibe stellen, das empfinde ich als praktisch und an der halben Wand kann man neben WC z.B. auch Dinge anschrauben/ablegen.
Bei Zimmer 2 würde ich mir überlegen, ob dies tatsächlich zwei große Fenster benötigt und ob dies dem Nutzer nicht Stellfläche für Möbel oder Nutzfläche der Wand für Deko, Bilder etc. nimmt. Fensterbereich über dem Bett ist ohnehin fraglich.
Nun kenne ich nicht die bestimmenden Parameter für Euren Plan aber gemessen am äußerst üppigen Keller mit 14qm Hobby, fast 16qm Abstellraum, 9qm Flur, und daneben noch über 12qm alleine für Technik finde ich die 12qm Arbeitszimmer eher dürftig, insbesondere aber eben auch die generelle Tatsache, dass Arbeiten im Keller mit Lichtschacht stattfindet.
Mir drängt sich das Gefühl auf, dass ihr Eure 500qm Grundstück maximal für Freizeit "ausnutzen" wollt und daher wenigst möglich für das Wohngebäude "verschwenden" wollt, weil sich alleine aufgrund des Grundsücksverlaufes ein Keller ja nicht zwingend geboten wäre, oder? Ich selbst mag es grundsätzlich gerne kompakt und daher ist der erste Eindruck auch positiv, aber beim Keller trennt es sich dann bei mir. Dieser ist nämlich genauso teuer wie überirdischer Wohnraum dagegen aber maximal unkomfortabel zusätzlich durch Treppe, fehlende Tageslicht und erhebliche Erdarbeiten etc.
Jetzt will ich ja Eure offenbar schon gereifte Entscheidung nicht in Frage stellen aber solange Nichts gebaut ist darf man ja kritisieren finde ich. Etwas Fertiggestelltes kritisiere ich so nicht mehr, dann würde ich es eher, auchn bei meinem Bau selbst, als Häme empfinden, weil man ja Nichts mehr ändern kann.
Warum also habt ihr Euch für einen Keller entschieden anstatt überirdisch angemessen zu vergrößern und dadurch Euer tägliches Leben komfortabler zu gestalten?
Ehrlich gesagt täuscht (zumindest mich) der erste Blick z.B. auf Euren Allraum hinsichtlich dessen Geräumigkeit und ich bin mir auch nicht sicher, ob die eingezeichneten Möbel (Sofa, Esstisch, Stühle etc.) auch mit echten Maßen Eurer späteren Realität entsprechen; stimmen diese Maße wirklich so?
Etwa 41qm Allraum für 5 Personen ist beileibe nicht viel und davon fast 18qm für die Küche, die dann am Ende so doch nicht wirklich viel Staufläche bietet, empfinde ich eher als leichte Schräglage. Vlt. sollte man die Speis ja auch ganz rausnehmen und den dann größeren Küchenbereich durch praktische Möbel nutzen, die aktuelle Speis kostet Geld und die Tür nimmt ihr maximal Nutzraum dazu. Der extra Ausgang aus der Küche nimmt dieser weitere Stellfläche und muss so nicht sein. Sofern TV bei Euch wichtig ist passt die Möblierung überhaupt nicht für mehrere Personen.
Riesigen Fensterflächen gefallen mir ja generell aber aktuell könnt ihr wirklich Nichts irgendwo hinstellen, keinerlei Stellfläche.
Die Garagenzufahrt ist, so wie gezeichnet zu eng an der Einfahrtstelle, da wird es bald Kratzer geben, zieh mal eine Linie, wie das Fzg. ein-/ausfahren würde und Du siehst das Problem
Euer alltäglicher Wohnbereich ist wirklich sehr knapp bemessen, was ja an sich nicht schlimm wäre, wenn nicht mehr möglich wäre. Am Keller und der riesigen, auch kostspieligen Terrasse und der üppigen Garage sehe ich aber, das offenbar doch finanzielle Flexibilität vorhanden ist, die ich zumindest definitiv mehr im Wohnraum (EG-OG) einsetzen würde; wie gesagt sind es die Proportionen.
Ich hoffe, das kommt nicht falsch an aber irgendwie empfinde ich eine Art Unwucht in der Gewichtung zwischen den kleinen Wohnräumen (Allraum, Kinderzimmer), den riesigen Glasflächen und der noch größeren Terrasse mit entsprechenden Folgekosten für Beschattung etc., also viel zu viel an Keller und Terrasse und zu wenig an oberirdischer Wohnfläche.
W
wiltshire16.01.25 12:51Willkommen! Der Entwurf gefällt mir sehr gut. Ich kann mir vorstellen, dass dieses Haus exzellent für eine aktive und sich vertragende Famile mit offener Haltung zu Gästen drinnen wie draußen sehr gut funktionieren kann. Die eine oder andere Stelle erfordert eine gelassene Einstellung zu Improvisation, aber genau das macht den Entwurf ja auch so gut, da er nicht versucht jede erdenkliche Eventualität im Leben vollends abzubilden.
Zitronenwalter schrieb:Wir haben in den Kinderwohnungen schlecht begehbare Galerien mit einer unkomfortabel steilen Treppe ausgestattet - und es lohnt sich voll. Dieses Feature schafft nicht nur Lebensraum, sondern bringt Charakter in die Zimmer. Die schlechte Alltagsergonomie wird von jungen Menschen weniger wahrgenommen und der "höhlige" Raum ist eine Bereicherung.
Alle Schlafzimmer auf einer Ebene mit der Option für die Kinder später eine einfache Galerie einzurichten.
Zitronenwalter schrieb:Diese Unsicherheit hätte ich ebensowenig wie die Vorschreiber. Dein Haus ist nicht leise - da fallen solche Bedenken nicht ins Gewicht.
Unsicherheit bzgl. Ausrichtung der Wohnecke mit Fernseher, und wand an der Treppe
Zitronenwalter schrieb:Nein, nicht zu arg. Die Position ist passend und im Sommer auch nicht zu heiß.
Schottet diese den wohn Essbereich zu arg nach Süden ab?
kbt09 schrieb:Das ist so. Ich würde, wenn ich einen Computerarbeitsplatz zu Hause hätte diesen Raum dafür regelmäßig nutzen und nur wenn Geäste kommen in den als "Arbeitszimmer" betitelten Raum umziehen. Ordner und Archiv kann ja alles in diesem Kellerraum geordnet sein. So zu sagen eine Art "Hotdesking" im eigenen Haus. Wenn Du auch so denkst, dann kannst Du Dir einen Baukostenpuffer sparen, denn bei 10 Übernachtungen im Jahr bist Du maximal 10 Tage im Keller-"Arbeitszimmer" - und dafür brauchst Du auch keinen teuren Lichtschacht. (Stichwort "Improvisation")
Das Gästezimmer ist schon wirklich arg schmal.
kbt09 schrieb:Ja, unbedingt.
Speisekammer unbedingt die Tür nach außen öffnen lassen und nur ca. 71-76 cm breit.
kbt09 schrieb:Wir leben sein fast 6 Jahren mit einer T-Lösung (auch ohne Badewanne) und sie funktioniert einwandfrei. In einem 5-Personen-Haushalt wird es hier und da zu Abstimmungserfordernissen der Badnutzung kommen, dass ist aber nicht die Frage nach dem "T". Potenziell werden sich Teenager phasenweise lange in dem Raum aufhalten wollen. Als Eltern hätte ich da eine Ersatzzahnbürste im Erdgeschoss parat, sehe darin aber kein grundsätzliches Problem (Stichwort Improvisation)
Bad .. die T-Lösung mit Dusch am Fenster finde ich ungünstig.
ypg schrieb:Ja, der Arbeitsbereich ist eng. Dazu das Stichwort "Improvisation": Man verwende einfach hin und wieder den Esstisch mit. Unterlage drauf und Plätzchen ausstanzen, Nudelteig rollen oder was auch immer während eine andere Person weitere Dinge in der Küche anstellt.
Die Küche wäre mir mit 2 Personen zu klein. Einige Geräte stehen offen und somit ist die Zeile besetzt. Insel würde bei 5 Personen Arbeitsfläche sprengen. Hantieren mit Backblech sehe ich nicht.
Arauki11 schrieb:Ja, in diesem Raum kann es wuselig werden. Das ist eine Frage des Lebensstils. Und auch hier Stichwort "Improvisation": Wenn eine größere Tafel entsteht wie z.B. für ein Fest, dann wird es eben etwas eng und "gestückelt".
Etwa 41qm Allraum für 5 Personen ist beileibe nicht viel und davon fast 18qm für die Küche, die dann am Ende so doch nicht wirklich viel Staufläche bietet, empfinde ich eher als leichte Schräglage.
Arauki11 schrieb:Ja, das ist eng und die Wahrscheinlichkeit von Kratzern ist dadurch eher hoch. Ich würde ein Tor mit Überbreite oder ein breiteres und ein schmaleres Tor vorsehen. Das Auto in der mittleren Position ist in Sachen Kratzer bei der aktuellen Torplanung das "Opferauto", da hier die Kinder mit ihren Fahrzeugen vorbeiziehen werden. Finanzieren könntest Du den Mehraufwand durch den Wegfall des Lichtschachtes.
Die Garagenzufahrt ist, so wie gezeichnet zu eng an der Einfahrtstelle, da wird es bald Kratzer geben, zieh mal eine Linie, wie das Fzg. ein-/ausfahren würde und Du siehst das Problem
ypg schrieb:An dieser Stelle macht sich eine Türe sehr gut um Zug zu vermeiden und den privaten Terrassenbereich bei Bedarf von der Straße abzuschotten. Gerade mit Kindern ist diese Zugangsmöglichkeit im Alltag ein Feature, auf das ich nicht verzichten wollte. Die Kinder können dann rein und raus ohne dass jedes mal einer die Haustüre öffnen muss oder Hausschlüssel mitgeführt werden müssen. Das belastet zwar den "Dreck" im Koch-Essbereich aber es wäre auch so zu sehen: "Gute Eltern haben dreckige Böden und glückliche Kinder." (Und bitte nicht mit irgendeinem logikfremden Umkehrschluss kommen und denken, dass Eltern mit sauberen Böden keine glücklichen Kinder haben könnten.)
Zugang zum Haus wird zugig, Terrasse ungemütlich. Da würde ich den Weg zwischen Garage und Haus zu machen.
Der Gratulation zum Hausentwurf und dem Dank für den angenehmen Eingangsbeitrag schließe ich mich an. Der Architekt ist ein bißchen in 1980 stehen geblieben, weshalb mich die Verletzung des Baurichtmaß-Taktes bei den Raummaßen / Wandpositionen um so mehr erstaunt. Was ich nie mehr machen würde (damals aber auch gemacht habe) sind einseitig laibungslose Fensteröffnungen, nicht nur weil es "schief" aussieht.
https://www.instagram.com/11antgmxde/
https://www.linkedin.com/company/bauen-jetzt/
https://www.instagram.com/11antgmxde/
https://www.linkedin.com/company/bauen-jetzt/
Ähnliche Themen