Hallo zusammen,
wir sind drauf und dran in die Genehmigungsplanung zu gehen, trotzdem würde uns das Feedback aus dem Forum noch interessieren. Da wir ggf. etwas völlig übersehen haben oder uns manche Frage noch nicht gestellt haben.
Bebauungsplan/Einschränkungen
Größe des Grundstücks: 606
Hang => Jupp
Grundflächenzahl 0.4
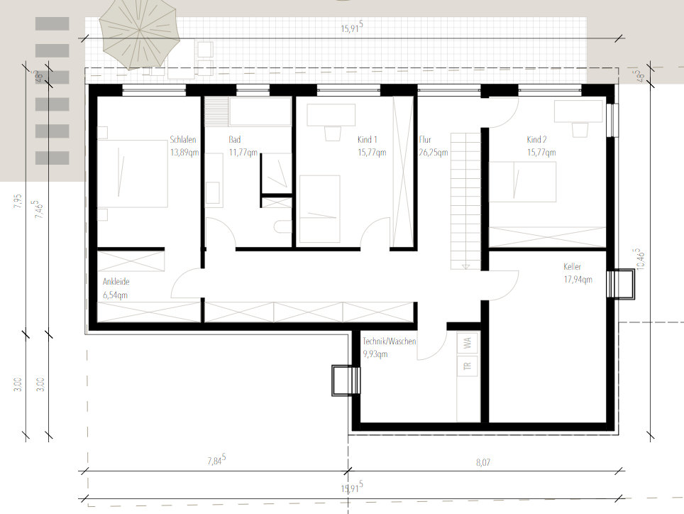
Baufenster, Baulinie und -grenze - Siehe Skizze
Randbebauung - Ja, Garage
Anzahl Stellplatz - zwei
Geschossigkeit - zwei
Dachform - Flachdach
Anforderungen der Bauherren
Anzahl der Personen - 4 + zwei Erwachsene, zwei Kinder
Ich glaube unsere Anforderungen sind in die Planung der Architektin mehr als gut eingeflossen. Wir haben an den Grundriss keine Änderungswünsche mehr. Bad und Fenster wollen wir noch anpassen, Raumaufteilung nicht mehr bzw. nur im Eingangsbereich. Hier sind wir uns noch nicht sicher ob wir Klo/Dusche und Garderobe komplett tauschen wollen
Hausentwurf
Von wem stammt die Planung:
-Architekt
Gefällt uns sehr gut, da schlicht und offen und sehr gradlinig. Wir sind noch nicht sicher ob wir die Teressase überdachen wollen. In Frage käme Betondach (sichtbeton) oder flexibel über automatisches Sonnensegel. Wegen des Lichteinfalls tendieren wir zu Sonnensegel.


wir sind drauf und dran in die Genehmigungsplanung zu gehen, trotzdem würde uns das Feedback aus dem Forum noch interessieren. Da wir ggf. etwas völlig übersehen haben oder uns manche Frage noch nicht gestellt haben.
Bebauungsplan/Einschränkungen
Größe des Grundstücks: 606
Hang => Jupp
Grundflächenzahl 0.4
Baufenster, Baulinie und -grenze - Siehe Skizze
Randbebauung - Ja, Garage
Anzahl Stellplatz - zwei
Geschossigkeit - zwei
Dachform - Flachdach
Anforderungen der Bauherren
Anzahl der Personen - 4 + zwei Erwachsene, zwei Kinder
Ich glaube unsere Anforderungen sind in die Planung der Architektin mehr als gut eingeflossen. Wir haben an den Grundriss keine Änderungswünsche mehr. Bad und Fenster wollen wir noch anpassen, Raumaufteilung nicht mehr bzw. nur im Eingangsbereich. Hier sind wir uns noch nicht sicher ob wir Klo/Dusche und Garderobe komplett tauschen wollen
Hausentwurf
Von wem stammt die Planung:
-Architekt
Gefällt uns sehr gut, da schlicht und offen und sehr gradlinig. Wir sind noch nicht sicher ob wir die Teressase überdachen wollen. In Frage käme Betondach (sichtbeton) oder flexibel über automatisches Sonnensegel. Wegen des Lichteinfalls tendieren wir zu Sonnensegel.
A
Alessandro22.07.20 15:44fett! gefällt mir
Ich kann mir nicht vorstellen, dass es insbesondere im Sommer angenehm ist, die Mülltonnen so nah und eingehaust vor der Haustür zu haben.
Also mitgeplant und integriert in dieses "Vorhaus" finde ich gut, aber ich würde die von der anderen Seite begehbar machen, auch wenns ein weiterer Weg ist.
Also mitgeplant und integriert in dieses "Vorhaus" finde ich gut, aber ich würde die von der anderen Seite begehbar machen, auch wenns ein weiterer Weg ist.
P
pagoni202022.07.20 16:12Gefällt mir auch echt gut, eben auch die Geradlinigkeit; wahrscheinlich habt ihr sowieso sch Alles mehrfach umgedreht und bedacht-
Wohl würde ich den Zugang aus der Garage weiter vorne machen und nicht so nahe zum Wohnraum; ein möglicher Mehrweg zur Küche wäre ja nur minimal aber neben den Einkäufen kommen eben auch Garagengerüche, Kälte etc. ins Haus. Ebenso wäre mir die zusätzliche Tür von/zur Speisekammer zu viel, da es direkt nebenan eh einen an deren Zugang gibt aus der Küche.
Ansonsten.....schick mir die Adresse - ich zieh ein !
ach ja wg. Terrasse; ich buin ein Freund von Glasdach mit Beschattungsoption drunter, weil wir das 9 Monate quasi als Wohnraum im Freien nutzen und das Glasdach den Tau/Feuchtigkeit fernhält.
Wohl würde ich den Zugang aus der Garage weiter vorne machen und nicht so nahe zum Wohnraum; ein möglicher Mehrweg zur Küche wäre ja nur minimal aber neben den Einkäufen kommen eben auch Garagengerüche, Kälte etc. ins Haus. Ebenso wäre mir die zusätzliche Tür von/zur Speisekammer zu viel, da es direkt nebenan eh einen an deren Zugang gibt aus der Küche.
Ansonsten.....schick mir die Adresse - ich zieh ein !
ach ja wg. Terrasse; ich buin ein Freund von Glasdach mit Beschattungsoption drunter, weil wir das 9 Monate quasi als Wohnraum im Freien nutzen und das Glasdach den Tau/Feuchtigkeit fernhält.
Fehlen ein paar Infos und Maße.
Auf dem 1. Blick sieht es echt super aus. Endlich mal das UG als richtigen Wohnraum berücksichtigt.
Zeichne in jedem Raum, im Maßstab die vorhandene und gewünschte Möblierung ein. Beim Tisch die Laufwege nicht vergessen.
Ich würde WC und Garderobe nicht tauschen. So wie eingezeichnet hast du eine saubere Trennung von Schmutzbereich und Wohnen. Anders mußt du mit Socken durch eine Wasserlache von den Schuhen.
Der Einwand mit den Mülltonnen finde ich berechtigt. Der fehlende Stauraum ist gut gelöst durch die Schrankwand im UG
Bin für Sonnensegel. Einfach weil es nicht verdunkelt, wenn man es nicht benutzt.
Auf dem 1. Blick sieht es echt super aus. Endlich mal das UG als richtigen Wohnraum berücksichtigt.
Zeichne in jedem Raum, im Maßstab die vorhandene und gewünschte Möblierung ein. Beim Tisch die Laufwege nicht vergessen.
Ich würde WC und Garderobe nicht tauschen. So wie eingezeichnet hast du eine saubere Trennung von Schmutzbereich und Wohnen. Anders mußt du mit Socken durch eine Wasserlache von den Schuhen.
Der Einwand mit den Mülltonnen finde ich berechtigt. Der fehlende Stauraum ist gut gelöst durch die Schrankwand im UG
Bin für Sonnensegel. Einfach weil es nicht verdunkelt, wenn man es nicht benutzt.
A
Alessandro22.07.20 16:16die Mülltonnen würd ich vielleicht auch eher aus dem Eingangsbereich nehmen und in die Garage verfrachten. Groß genug wäre sie ja
Ähnliche Themen