Grundriss: Vorentwurf des Fertighaus-Anbieters liegt vor

4,30 Stern(e) 3 Votes
Zuletzt aktualisiert 21.11.2025
Sie befinden sich auf der Seite 6 der Diskussion zum Thema: Grundriss: Vorentwurf des Fertighaus-Anbieters liegt vor
>> Zum 1. Beitrag <<

B

Bauexperte

@Bauexperte: wieso Bad und Kind 1 tauschen?
dann poltert der kleine genau über mir herum, dann hat er die dunklere Hausseite und das Bad wäre riesig...
Wieso? Wie in der Anlage angedacht, liegen die Sanitärbereiche jetzt übereinander; die Entwässerung der Dusche läßt sich im Estrich verziehen. Niemand trampelt über Dir herum und auch keine Verkastung raubt Dir Platz im Arbeits-/Gästezimmer

Oben kannst Du auch problemlos Wände schieben, da nicht tragend; außer die Umfassungswände des Treppenauges.

Grüße, Bauexperte

Dachgeschoss-Grundriss: Elternzimmer, Kind 1, Kind 2, Bad, Flur und Treppe.
 
B

Bauexperte

mit unmittelbar, meinte ich unmittelbar!
nicht irgendwo in NRW, sondern in Sichtweite zum bagger. zwischen der Grube und uns liegt ein Feld + eine bewaldete Anhöhe - dahinter thronen die stahl-Kolosse...
Hehe - vlt. solltest Du Eintrittsgelder nehmen? Da ist am Wochenende ja häufig einiges los

Grüße, Bauexperte
 
K

krachbumms

@Bauexperte: irgendwo missverstehen wir uns glaube ich... denn ich sehe hier nur Nachteile.

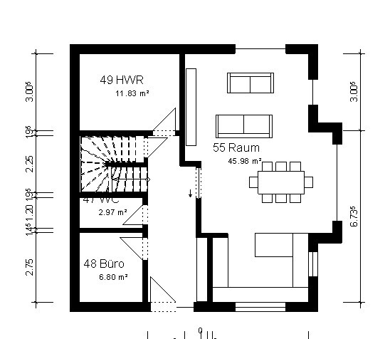
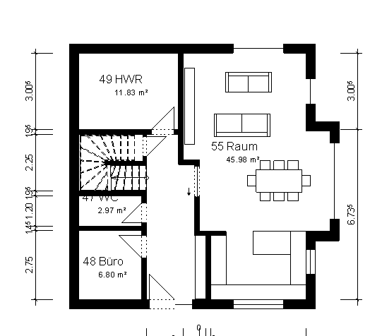
nach deiner Skizze (vielen dank für die mühe!) trampelt jetzt unser kleiner genau über dem Büro herum. nein, danke.
eine "verkastung" gibt es im Büro nicht. falls du die Nische Richtung Technikraum meinst: das soll ein Regal/Schrank werden.

kostentechnisch ist es übrigens auch völlig wurscht, ob die Installationen der Bäder übereinander liegen, falls das dein Punkt ist (?)

das Bad an dieser stelle finde ich ziemlich verschachtelt und die dusche hängt vorm Fenster... ich hab das natürlich auch schon erwogen und bin bzgl. badaufteilung auf keinen grünen Zweig gekommen.
 
K

krachbumms

wow. womit erstellst du die Pläne - sieht ja richtig profimäßig aus.

auch dir danke für die mühen. ich verstehe die Vorteile von dieser Variante, ehrlich - aber die Nachteile sind nicht zu verkraften. allein das Büro geht in dieser Größe gar nicht. ich bin selbstständig und arbeite da täglich und empfange dort auch hin und wieder Kunden; es ist also kein "ich sortiere mal die post Büro"
 
K

krachbumms

Yvonne schlug ja eine doppelflügelige Glastür vor. sehr praktisch, ohne frage - aber Glas gefällt uns leider so gar nicht. also so richtig gar nicht. no-go. überhaupt denke ich bei doppelflügeligen Türen immer sofort an sprossen-Fenster, Landhaus Stil, skandinavische gemütlichkeit. es steht auf meiner liste, mal nach modernen Varianten zu googeln - bin ich aber bisher nicht zu gekommen.

wir hatten schon überlegt, dort einfach einen breiten Durchgang völlig offen zu lassen (oder als teure Variante eine in die Wand laufende Schiebetür), sofern wir die Treppe mit einer wand schließen, damit man nicht ständig vom Esstisch unter die Treppe guckt.
ist das hinsichtlich Heizkosten und der Belüftungsanlage usw. völlig absurd oder kann man das ruhig machen?
 
Zuletzt aktualisiert 21.11.2025
Im Forum Grundrissplanung / Grundstücksplanung gibt es 2535 Themen mit insgesamt 87982 Beiträgen


Ähnliche Themen zu Grundriss: Vorentwurf des Fertighaus-Anbieters liegt vor
Nr.ErgebnisBeiträge
1Bodengleiche Dusche mit Fenster in der Nähe 13
2Dusche direkt am Fenster - kompatibel oder inkompatibel? - Seite 422
3Grundrissfrage, Treppe, Fenster, Ausrichtung 12
4OG Stadtville optimieren. Fenster Bodentief - Seite 7104
5Grundriss Einfamilienhaus 150qm - Fenster- und Badplanung - Seite 218
6Grundrissfrage: Tausch gerader Treppe durch L-Treppe 31
7Badaufteilung eines 4,5qm EG-Bad mit Dusche 14
8Grundriss Einfamilienhaus geplant, Fenster gefallen uns 43
9Grundrissfrage, Garage, Treppe 33
10Grundriss Bad mit Dusche 11
11Dusche auf Podest und Schubfach 13
12größere Dusche im Grundriss unterbringen - Welche Größe wählen? - Seite 538
13Renovierung-Tipps für sehr kleines Bad mit Dusche statt Badewanne 36
14Grundrissplanung: Badezimmer Dusche 47
15Walk-in Dusche / Eure Tipps und Ideen 18
16Badplanung - Dusche und Badewanne tauschen? 24
17Badplanung 14m², Neubau, quadratisch, zwei Fenster 70
18Frontansicht Fenster sind suboptimal und müssen optimiert werden - Seite 290
19Bad-Grundriss 8,7qm, mit Dusche und Badewanne 16
20Fensterantrieb für Dreh-Kipp-Fenster oder manuell? 11

Oben