Grundriss Traumhaus - 173m² mit 3 Kinderzimmern

4,80 Stern(e) 23 Votes
Zuletzt aktualisiert 19.11.2025
Sie befinden sich auf der Seite 17 der Diskussion zum Thema: Grundriss Traumhaus - 173m² mit 3 Kinderzimmern
>> Zum 1. Beitrag <<

roteweste

roteweste

An diesem Punkt gehört die Baukörper(höhenlagen)komposition bereits geklärt, dazu finde ich aber auch auf Roteweste nichts neues (?)
Das wollt ich zwar erst später machen, aber für dich mache ich gerne eine Ausnahme. Der Zählerkasten kommt übrigens wieder in den Technikraum. Das passt noch. Position Mülltonnen bitte ignorieren!

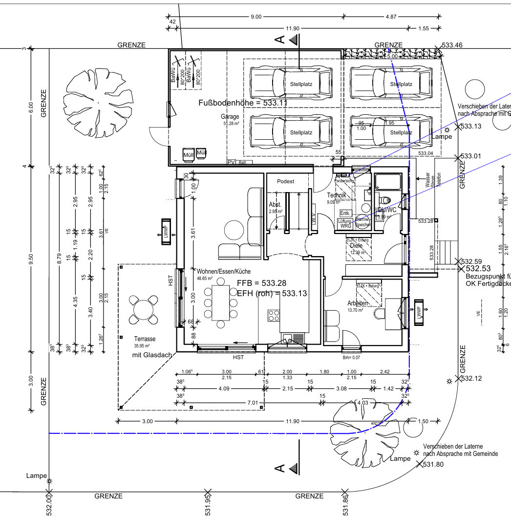
Grundriss eines Hauses: Garage mit Stellplätzen, Wohnen/Essen/Küche, Terrasse und Garten.


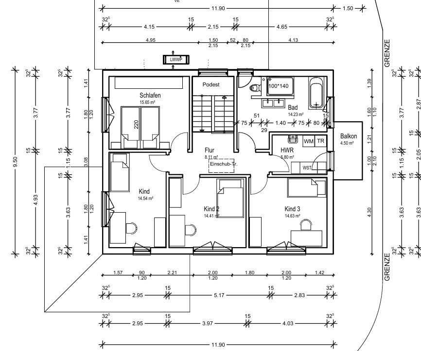
Grundriss einer Etage: Schlafzimmer, drei Kindzimmer, Flur, Bad, Balkon, HWR


Schnitt A-A: Querschnitt durch zweigeschossiges Haus mit Treppe, Türen und Fenstern.


Mit einer Stufe zur Garage / zum Garagendach. Die ist jetzt 17/20 cm hoch.
Linienzeichnung eines zweistöckigen Hauses mit Garage; Straßenszene und Gruppe von Personen.

Nordansicht eines Hauses mit Grenzfläche, Auto links, zwei Personen rechts, Maßangaben.
 
Y

ypg

Die Rundbögen sind wirklich überlegt oder ein Gimmick zur Prüfung, ob die Forenaufmerksamkeit noch funktioniert?
 
roteweste

roteweste

Die Rundbögen sind wirklich überlegt oder ein Gimmick zur Prüfung, ob die Forenaufmerksamkeit noch funktioniert?
Meine Fangruppe springt doch schon ohne Bogen über jedes Stöckchen.

Wie haben zwei in unserer derzeitigen Wohnung (mit noch längeren Flur) und finden die optisch sehr ansprechend.

@11ant: Betonfertiggarage, 5,2m Sektionaltor.
 
kbt09

kbt09

Auf jeden Fall bei der Küche L mit Insel. Sinnvoll wäre es aber immer, eine Grundrissansicht mit Maßen einzustellen und nicht nur bunte Bilder.

Die Sofaposition finde ich kontraproduktiv, weil sie den Raum wieder einkastelt. Einen Sofaschenkel würde ich nicht als Raumtrenner wählen, sondern das L-Sofa planoben rechts in die Wohnzimmerecke planen. Das wirkt dann insgesamt viel großzügiger.
 
Zuletzt aktualisiert 19.11.2025
Im Forum Grundrissplanung / Grundstücksplanung gibt es 2536 Themen mit insgesamt 87973 Beiträgen


Ähnliche Themen zu Grundriss Traumhaus - 173m² mit 3 Kinderzimmern
Nr.ErgebnisBeiträge
1Garage direkt an Einfamilienhaus. Fundament ausreichend? 20
2Hausfinanzierung - Haus, Garage und Bodenplatte ca. 290.000 EUR 11
3Technikraum in Garage einbauen? Ist dies möglich? 35
4Beheizung Garage. Was ist die beste / günstigste Lösung? 10
5Wo stellen wir Haus und Garage hin? 10
6Kostenschätzung Einfamilienhaus mit Garage 11
7Bungalow mit 140qm und Garage im Grundriss 13
8Erstes Angebot, 157m2 mit Keller, KFW 70, Garage 14
9Grundrissentwurf eines Passivhauses 170m² mit Garage - Seite 218
10Garage: Gestaltungsmöglichkeit des Daches, Erscheinungsbild 14
11Hausausrichtung / Hauseingang und Garage - Seite 214
12Begehbare Garage (Terrasse) 11
13Planung optimale Anordnung Haus, Garage und Einfahrt 13
14Grundriss mit Garage auf Grundstück realisierbar? 29
15Entwurf Einfamilienhaus mit Garage/Carport - bitte um Bewertung 22
16Wo günstige Garage beziehen? - Seite 211
17Regenspeicher in der Garage? 11
18Einfamilienhaus mit Einliegerwohnung & Garage 14
19Garage - Bauantrag - Verwirrung - Seite 636
20Haus ohne Garage und Keller? Ausbau Dachboden? Fresswarze? - Seite 585

Oben