S
SirDenniMiles28.03.19 10:40Hallo ihr netten Mitforumer
Wir verfolgen nun schon seit längerem dieses Forum, jedoch immer nur als Gast.
Jetzt, wo unsere Pläne konkreter werden und die Zeit drängt, haben wir uns angemeldet.
Wir sind am verzweifeln mit der bestmöglichen Raumaufteilung im EG unserer Stadtvilla.
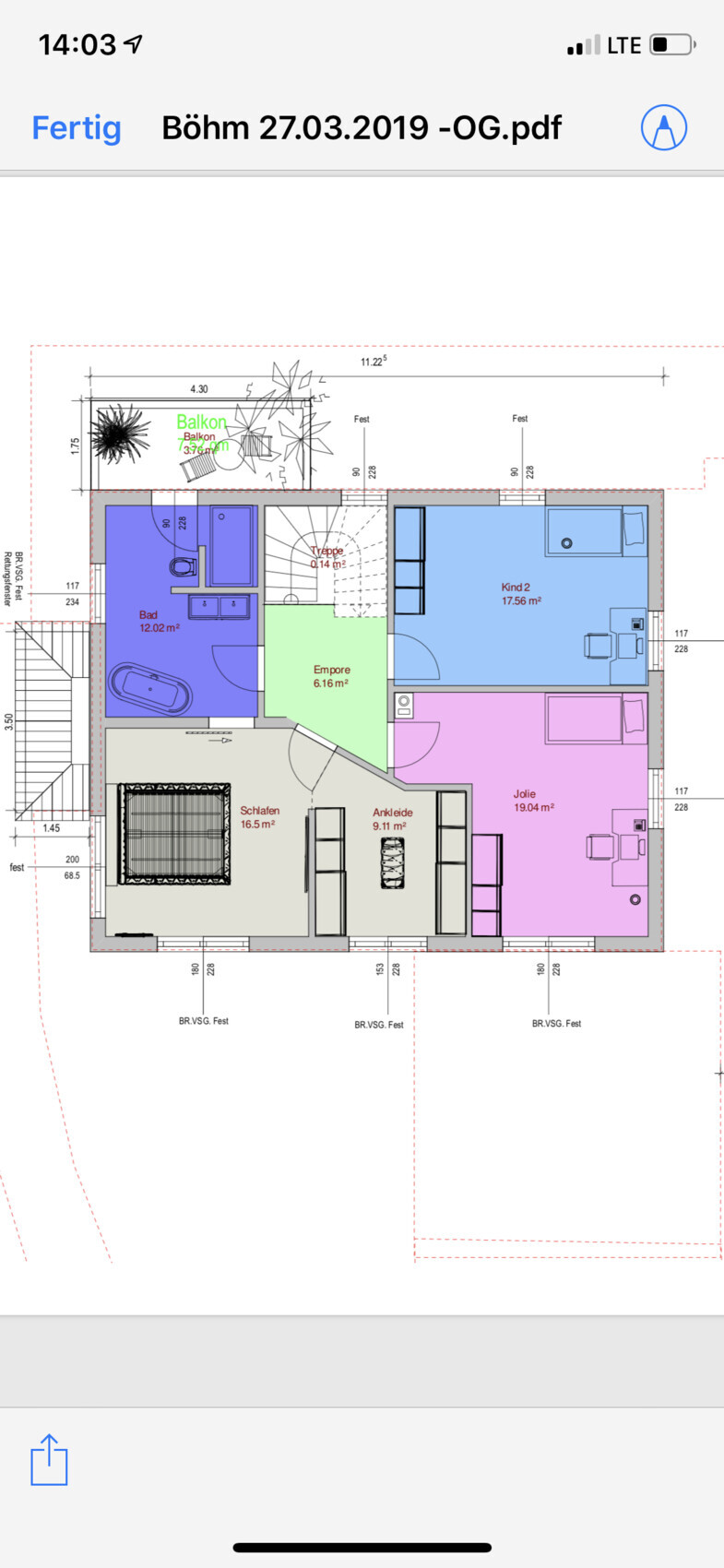
Gebaut wird mit Weberhaus - 165qm (Keller nicht mitgerechnet) auf einem 700qm Grundstück mit Hanglage, 2 Vollgeschosse, mit Keller und Walmdach im mediterranen Stil, was das äußere des Hauses betrifft.
Wir haben nun 2 Grundrisse und sind nun am überlegen welche der nutzbar bessere ist, welcher mehr Vorteile mitbringt im Erdgeschoss.
Wir haben uns gegen eine gerade Treppe entschieden, weil uns gesagt wurde das diese mehr Platz weg nimmt.
Was sagt ihr? Welcher Grundriss ist sinnvoller? Was könnten wir verbessern? Worauf müssen wir noch achten?
Wir freuen uns auf Antworten!!






Wir verfolgen nun schon seit längerem dieses Forum, jedoch immer nur als Gast.
Jetzt, wo unsere Pläne konkreter werden und die Zeit drängt, haben wir uns angemeldet.
Wir sind am verzweifeln mit der bestmöglichen Raumaufteilung im EG unserer Stadtvilla.
Gebaut wird mit Weberhaus - 165qm (Keller nicht mitgerechnet) auf einem 700qm Grundstück mit Hanglage, 2 Vollgeschosse, mit Keller und Walmdach im mediterranen Stil, was das äußere des Hauses betrifft.
Wir haben nun 2 Grundrisse und sind nun am überlegen welche der nutzbar bessere ist, welcher mehr Vorteile mitbringt im Erdgeschoss.
Wir haben uns gegen eine gerade Treppe entschieden, weil uns gesagt wurde das diese mehr Platz weg nimmt.
Was sagt ihr? Welcher Grundriss ist sinnvoller? Was könnten wir verbessern? Worauf müssen wir noch achten?
Wir freuen uns auf Antworten!!
S
SirDenniMiles28.03.19 11:38kaho674 schrieb:
Heilig's Blechle! Die Schräge im OG ist hitverdächtig.
Also m.E. ist keiner der beiden Grundrisse annehmbar, geeignet, solide oder irgendwas, was einen Bau rechtfertigt. Die Verbesserung läge deshalb zuerst in der Suche nach einem Architekten, der den Namen verdient. Was genau ist in deinen Augen denn so verkehrt? Wir suchen nach Lösungen ☺️
W
WilhelmRo28.03.19 11:45Ach quatsch, nicht verunsichern lassen.
Die Schräge im OG gerade machen, dann ist schon mal viel gerettet.
Dann den Fragebogen ausfüllen.
mfg
Die Schräge im OG gerade machen, dann ist schon mal viel gerettet.
Dann den Fragebogen ausfüllen.
mfg
Ähnliche Themen