ᐅ Grundriss Stadtvilla 160 qm, ohne Keller - Eure Meinungen dazu?
Erstellt am: 10.05.18 02:46
P
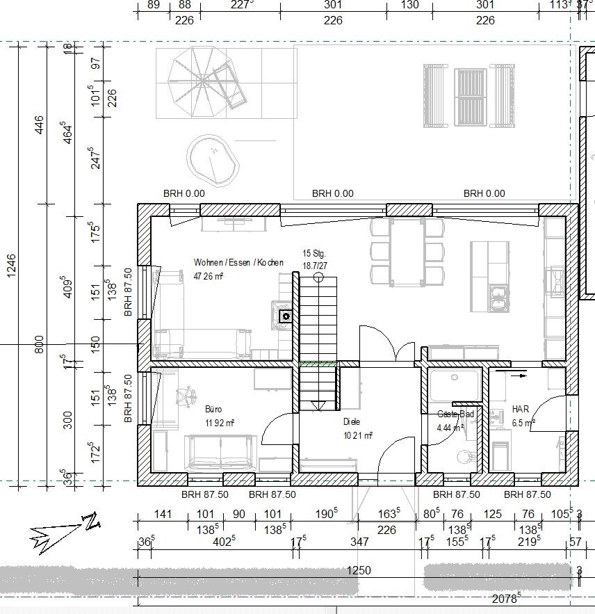
PatkiaHmm .. ganz schön viele Mauerecken . (ja, wir haben immer etwas zu Meckern ).
Technikraum ... ist eigentlich ein Flur (Weg Garage ins Haus), wo nichts stehen kann.
Faketür zur Speisekammer neben Side By Side Kühlschrank wird eine ganz schöne Sonderkonstruktion und wird sinnvollerweise eh eine gewisse Überbreite (65-70 cm) haben (also nicht nur 60 cm Standard-Küchenfronttür). Zum Halten solcher Türen braucht man schon ganz schön Scharnierteile. Ich glaube daher nicht, dass da noch viele Gewürze an die Innenseite der Tür passen.
Google mal nach dem Blum Space Tower, 2 Stück davon, von unten ca. 2/3 Höhe mit den Innenauszügen, dadrüber dann 2 oder 3 Bretter für seltener genutzte Küchengeräte und du wirst auch nicht teurer werden als mit deiner Mini-Speisekammer und der Fake-Tür.
OG-Schlafzimmer ... Ehebett wirklich unterhalb eines Fensters? Putzen?
9,1 qm Raum für knapp 5 m kleiderschrank?
Technikraum ... ist eigentlich ein Flur (Weg Garage ins Haus), wo nichts stehen kann.
Faketür zur Speisekammer neben Side By Side Kühlschrank wird eine ganz schöne Sonderkonstruktion und wird sinnvollerweise eh eine gewisse Überbreite (65-70 cm) haben (also nicht nur 60 cm Standard-Küchenfronttür). Zum Halten solcher Türen braucht man schon ganz schön Scharnierteile. Ich glaube daher nicht, dass da noch viele Gewürze an die Innenseite der Tür passen.
Google mal nach dem Blum Space Tower, 2 Stück davon, von unten ca. 2/3 Höhe mit den Innenauszügen, dadrüber dann 2 oder 3 Bretter für seltener genutzte Küchengeräte und du wirst auch nicht teurer werden als mit deiner Mini-Speisekammer und der Fake-Tür.
OG-Schlafzimmer ... Ehebett wirklich unterhalb eines Fensters? Putzen?
9,1 qm Raum für knapp 5 m kleiderschrank?
@kbt09
Danke für deinen konstruktiven Beitrag
Ja mit der Faketür ist so die Idee. Danke für den Hinweis, das kann natürlich tatsächlich schwierig umzusetzen sein. möglicherweise tauschen wir noch den Kühlschrank mit dem ofenschrank, aber wahrscheinlicher wäre es dann, dass wir den falschen Schrank weg lassen und einfach eine kleine, einfache Tür mit Scharnieren dort vor machen. So war das auch wo wir das kürzlich sahen, das gefiel uns auch.
Was meinst Du mit den Ecken? wegen der Kante im Schlafzimmer, denen im OG für die Betten und der Ecke im Gästezimmer? Wir könnten den Flur oben halt auch mit einer durchgängigen Wand machen aber dann wäre lediglich 1 Meter Durchgang im Ganzen. das wäre wohl doch etwas wenig?
Fenster über dem Bett haben wir jetzt auch. genau so wie an der Badewanne. Haben wir kein Problem mit und finden es eigentlich auch ganz schön. Über die Fenster haben wir aber ehrlich gesagt noch nicht gesprochen. Die hatte ich im Groben so gelegt.
Das Schlafzimmer würden wir auf der linken Seite wohl doch eher mit einer Graden Wand versehen. dadurch wird die Umkleide etwas kleiner. und in diese soll ja nicht nur ein einziger Schrank, sondern auch Kleiderstangen.
bzgl. Hauswirtschaftsraum hatten wir die Bucht für die Heizungstechnik vorgesehen und die langen Wände für Elektrotechnik. Gingen davon aus das passt dann. meinst du da passt nichts hin?
Danke für deinen konstruktiven Beitrag
Ja mit der Faketür ist so die Idee. Danke für den Hinweis, das kann natürlich tatsächlich schwierig umzusetzen sein. möglicherweise tauschen wir noch den Kühlschrank mit dem ofenschrank, aber wahrscheinlicher wäre es dann, dass wir den falschen Schrank weg lassen und einfach eine kleine, einfache Tür mit Scharnieren dort vor machen. So war das auch wo wir das kürzlich sahen, das gefiel uns auch.
Was meinst Du mit den Ecken? wegen der Kante im Schlafzimmer, denen im OG für die Betten und der Ecke im Gästezimmer? Wir könnten den Flur oben halt auch mit einer durchgängigen Wand machen aber dann wäre lediglich 1 Meter Durchgang im Ganzen. das wäre wohl doch etwas wenig?
Fenster über dem Bett haben wir jetzt auch. genau so wie an der Badewanne. Haben wir kein Problem mit und finden es eigentlich auch ganz schön. Über die Fenster haben wir aber ehrlich gesagt noch nicht gesprochen. Die hatte ich im Groben so gelegt.
Das Schlafzimmer würden wir auf der linken Seite wohl doch eher mit einer Graden Wand versehen. dadurch wird die Umkleide etwas kleiner. und in diese soll ja nicht nur ein einziger Schrank, sondern auch Kleiderstangen.
bzgl. Hauswirtschaftsraum hatten wir die Bucht für die Heizungstechnik vorgesehen und die langen Wände für Elektrotechnik. Gingen davon aus das passt dann. meinst du da passt nichts hin?
Patkia schrieb:
Witzig, dass die Speisekammer auf der Zeichnung nicht begehbar ist. Dort ist nämlich gar keine darauf verzeichnet.Hm, ich sehe da doch ein Kämmerlein zw Küche und Büro... sogar mit Tür... witzig, ja
Patkia schrieb:
also ich muss sagen, es ist auch schwierig. einerseits sagt ihr, man soll auf Karo vorzeichnen, das bietet sich an, weil man dann die Maße ungefähr sehen kann. andererseits wenn man auf Karow zeichnet und danach die Papiermaße daneben schreibt ist es auch wieder nicht richtig.Vorschlag zur Güte: alle Wände (egal ob Außen- oder Innen-) einfach ein halbes Karo dick einzeichnen, schon kommt es in der Summe wieder hin.Patkia schrieb:
Die Außenwände und Innenwände sind alle 5mm dicker als das Mauerwerk sonst sein wird. dieses soll schon ein wenig den Putz etc. berücksichtigen.In den Computerzeichnungen sind 20 cm für Innen- und 40 cm für Außenwände ein praktikabel gerundetes Maß "auf der Skizzenebene".Patkia schrieb:
Was meinst Du mit den Ecken?Mehrere Wände machen hier Schlenker wie Baustellenfahrspuren.https://www.instagram.com/11antgmxde/
https://www.linkedin.com/company/bauen-jetzt/
11ant schrieb:
Vorschlag zur Güte: alle Wände (egal ob Außen- oder Innen-) einfach ein halbes Karo dick einzeichnen, schon kommt es in der Summe wieder hin.Versuch diesen Vorschlag mal umzusetzen. Außenwände sind knapp 1 Kästchen. Ich nehm für Innenwände eher einen abgewetzten Bleistift, dann kommt das immer ganz gut hin, zumindest sodass man die knappen Bereiche erkennt.
Mir war aber auch so, dass im Prinzip schon durch Katja alles durch ist? Du solltest auch mal einen Fachmann ranlassen.
Was mir gerade aufgefallen ist, dein letzte Variante war 10,5x10,5 m .. sollte es nicht auf Max. 100 qm Grundfläche begrenzt bleiben?
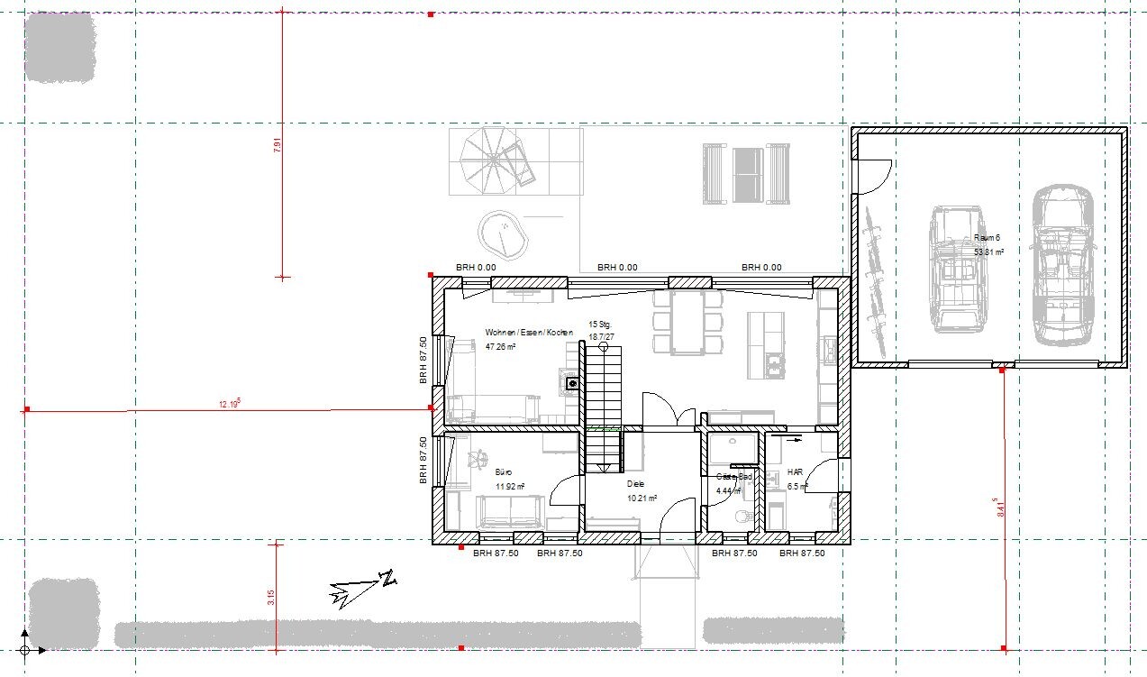
Ich habe mal 8x1250 verplant (und die 75 cm rechts der Garage vergessen .
Ich kann mir nämlich durchaus eher eine SüdWestwest-Terrasse an der Küche vorstellen. Daher jetzt dort knapp 8 m Abstand zum Grundstück des Nachbarn.
Im Süden sind immer noch über 12 m.
HAR im EG jetzt mit Außenzugang, würde ich aber streichen. So kann der Raum aber für Hausanschlüsse als auch Speisekammern-Stauraum genutzt werden. EG-Staubsauger und Wischer sollte auch noch Platz haben.
Im OG keinen echten eigenen Hauswirtschaftsraum, sondern eine Nische für Waschmaschine/Trockner, ggü. Nische für Staubsauger, Wischer, Bügelbrett. Außerdem Platz für allgemeines Staugut wie Bettwäsche, Handtücher, Koffer und was einem sonst noch einfällt.
Elternankleide auf jeden Fall 3m f. 60 cm tiefen Kleiderschrank und 3m f. 40 cm tiefen Kleiderschrank.



Ich habe mal 8x1250 verplant (und die 75 cm rechts der Garage vergessen .
Ich kann mir nämlich durchaus eher eine SüdWestwest-Terrasse an der Küche vorstellen. Daher jetzt dort knapp 8 m Abstand zum Grundstück des Nachbarn.
Im Süden sind immer noch über 12 m.
HAR im EG jetzt mit Außenzugang, würde ich aber streichen. So kann der Raum aber für Hausanschlüsse als auch Speisekammern-Stauraum genutzt werden. EG-Staubsauger und Wischer sollte auch noch Platz haben.
Im OG keinen echten eigenen Hauswirtschaftsraum, sondern eine Nische für Waschmaschine/Trockner, ggü. Nische für Staubsauger, Wischer, Bügelbrett. Außerdem Platz für allgemeines Staugut wie Bettwäsche, Handtücher, Koffer und was einem sonst noch einfällt.
Elternankleide auf jeden Fall 3m f. 60 cm tiefen Kleiderschrank und 3m f. 40 cm tiefen Kleiderschrank.
Ähnliche Themen