Hausbau - Ratgeber
Bauherrenhilfe
- Bauherrenhilfe vor Vertragsabschluss
-- Warum einen unabhängigen Baubetreuer?
-- Vertragsgrundlagen
-- Bausumme
-- Zahlungsplan zur Kostenkontrolle
-- Pflichten des Bauherren vor Vertragsabschluss
-- Unterlagen beim Hausbau vor Vertragsabschluss
- Bauherrenhilfe nach Vertragsabschluss
-- Bauantrag bei Behörden
-- Bau-Genehmigungsverfahren bei Baubehörden
-- Bauspezifische Versicherungen
-- Bauzeitenplan
-- Baubeginn - die Letzten Pflichten der Bauherrschaft
- Bauherrenhilfe während der Bauzeit
- Gewährleistungsansprüche
- Bauabnahme
Baufinanzierung
- Baufinanzierung - Allgemeine Fragen
- Kreditarten
- Kredit-Konditionen
- Bausparen
- Staatliche Förderungen
- Verkehrswert
- Haushaltsrechnung und Bonität
Hausbau Planung
- Haustypen
- Hausbau Vorbereitungsarbeiten
- Das Baugrundstück
- Baugrund beim Hausbau
- Baurecht
- Gebäudeschutz
- Erdarbeiten und Wasserhaltung
- Stützmauern
- Einfriedung
- Untergeschoss
- Kanalisation
- Tragende Elemente
- Nichttragende Innenwände
- Fundation / Fundament
- Deckenkonstruktionen
- Dächer
- Kaminanlagen
- Treppen Rampen Leitern
- Dachbeläge und Spengler
- Fenster
- Sonnen und Wetterschutz
- Aussenputze
- Einbauten, Küchen, Türen
- Bodenbeläge und Unterlagsböden
- Parkett
- Gips, Wand, Decke
Haustechnik und Energie
- Heiztechnik
- Lüftung und Klimatechnik
- Sanitärtechnik
- Elektrotechnik
- Erneuerbare Energie
Whirlpools / Jacuzzi
Hausbau Magazin
- Baufinanzierung trotz Krise?
- Das Blockhaus
- Moderne Dämmstoffe im Vergleich
- Erker Vor- und Nachteile
- Glasflächen beim Hausbau
- Günstig ein Haus Bauen
- Mediterraner Hausbaustil
- Mehrgenerationenhaus
- Moderne Architektur
- Gartengestaltung leicht gemacht
- Traditioneller Ziegelbau
- Villa als höchster Traum
- Im Eigenheim Ruhestand geniessen
- Altbau sanieren
- Kauf einer Holzgarage
- Immobilienmakler
- Arbeitshandschuhe für den Winter
- Zuhause verschönern
- Outdoor-Plissees
- Schlafzimmer planen
- Terrassenüberdachung
- Wohngebäudeversicherung
- Zaunarten und Eigenschaften
- Hauseingang gestalten
- Der perfekte Grundriss
- Sparsamer heizen im Altbau
- Einfamilienhaus smart finanzieren
- Planung einer PV-Anlage
- Neues Haus
- Immobilienfinanzierung
- Installation einer Photovoltaikanlage
- Asbest erkennen und entfernen
- Gartenpflege im Frühling – worauf achten
- Sauna im Fokus - Wellness zuhause
- Erfolgreich vermieten
- Die perfekte Winterbekleidung
- Das Niedrigenergiehaus
- Der April und seine Stürme
- Architektonische Vielfalt
- Ökologisch und nachhaltig bauen
- Das perfekte Schlafzimmer
- Nachhaltige Energieversorgung
- Zukunftsorientiert bauen
- Nachhaltigkeit beim Hausbau
- Tiny Houses
- Wärmepumpen als nachhaltige Heizvariante
- Maßgeschneiderten Kleiderschrank
- Der richtige Baukredit
- Ratgeber für erfolgreichen Hausbau
- Haus als Altersvorsorge
Do-it-yourself Anleitungen
- Verlegeanleitung für Bodenbeläge und Parkett
- Bodenbeläge und Parkett reinigen und pflegen
- Malerarbeiten am Haus
- Garten Tipps
- Umzug und Reinigung

ᐅ Grundriss Stadtvilla 160 qm, ohne Keller - Eure Meinungen dazu?

Erstellt am: 10.05.18 02:46
P
Patkia
11ant17.09.18 16:35
Patkia schrieb:
Es gibt Beispielgrundrisse des Bauunternehmens, aber es war von vorn herein klar, dass wir etwas eigenes nehmen, weil uns diese Beispiele nicht so zusagten oder bei uns nicht machbar waren.
Das "Original" der "Stadtvilla Loana" würde mir auch nicht schmecken
https://www.instagram.com/11antgmxde/
https://www.linkedin.com/company/bauen-jetzt/
kbt0917.09.18 16:49
@kaho674 ... Google mal Wäscheturm .. dürften so zwischen 60-80x60-80 cm Grundfläche verbrauchen. Es gibt unterschiedliche.
O
Obstlerbaum
17.09.18 17:12
kbt09 schrieb:
@Patkia ... ihr wollt in diesem L-Raum nicht wirklich bügeln - oder? Wenn da die Waschmaschinen stehen und 2 Wäschetürme, dann wird es mit Bügelbrett eng. Und an sich ist das dann auch eher Strafarbeit. Zum Bügeln gehört irgendwie TV schauen oder ähnliches .
Es gibt aber auch Menschen, die ihre Socken nicht bügeln. Ich persönlich habe z.B. kein einziges Kleidungsstück, das gebügelt wird. Ergo: vielleicht muss Patkia nur einmal pro Woche ein was auch immer bügeln und braucht dafür nicht länger als drei Minuten. Dann wäre jeder eigens dafür eingerichtete Infotainment-Saal Verschwendung...
kaho67417.09.18 17:29
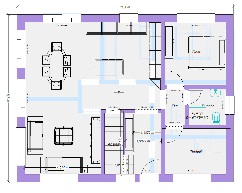
Nochmal einer mit ziemlich knappen Eingang. 1,45m Laufbreite ist gerade so Kotzgrenze.
Damit man nicht direkt auf den Relaxbereich darauf rennt, Küche im Westen und Wohnen südlich. Treppe wie immer wegen Programmfehler kein Podest!


Grundriss eines Innenraums mit Wohnzimmer, Essbereich, Flur, Gästezimmer, Technik, Dusche

Grundriss: zwei Zimmer K1 und K2, Flur, Dusche, Wäsche, Treppenhaus; Außenmaße 11,4x8,8 m.


Sehe allerdings keine Verbesserung zu #34 und vermutlich ist die Kiste jetzt wieder falsch rum oder sowas.
kbt0917.09.18 18:59
@kaho674 ... nö, 148 gefällt mir besser als 34 Dielenschrank ist mit nur 45 cm Tiefe etwas begrenzt.
kaho67417.09.18 19:17
kbt09 schrieb:
@kaho674 ... nö, 148 gefällt mir besser als 34 Dielenschrank ist mit nur 45 cm Tiefe etwas begrenzt.
Garderobenschränke sind Standard oft 45 tief.