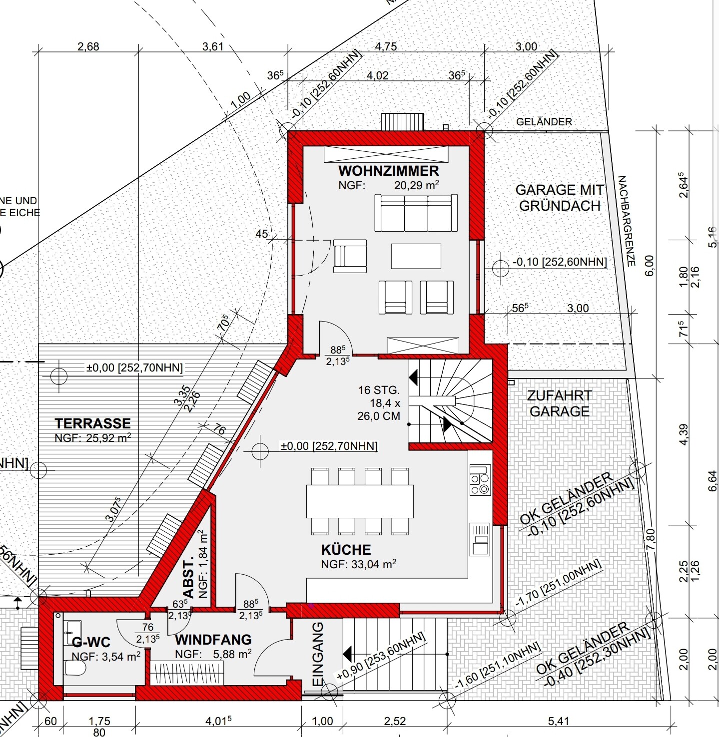
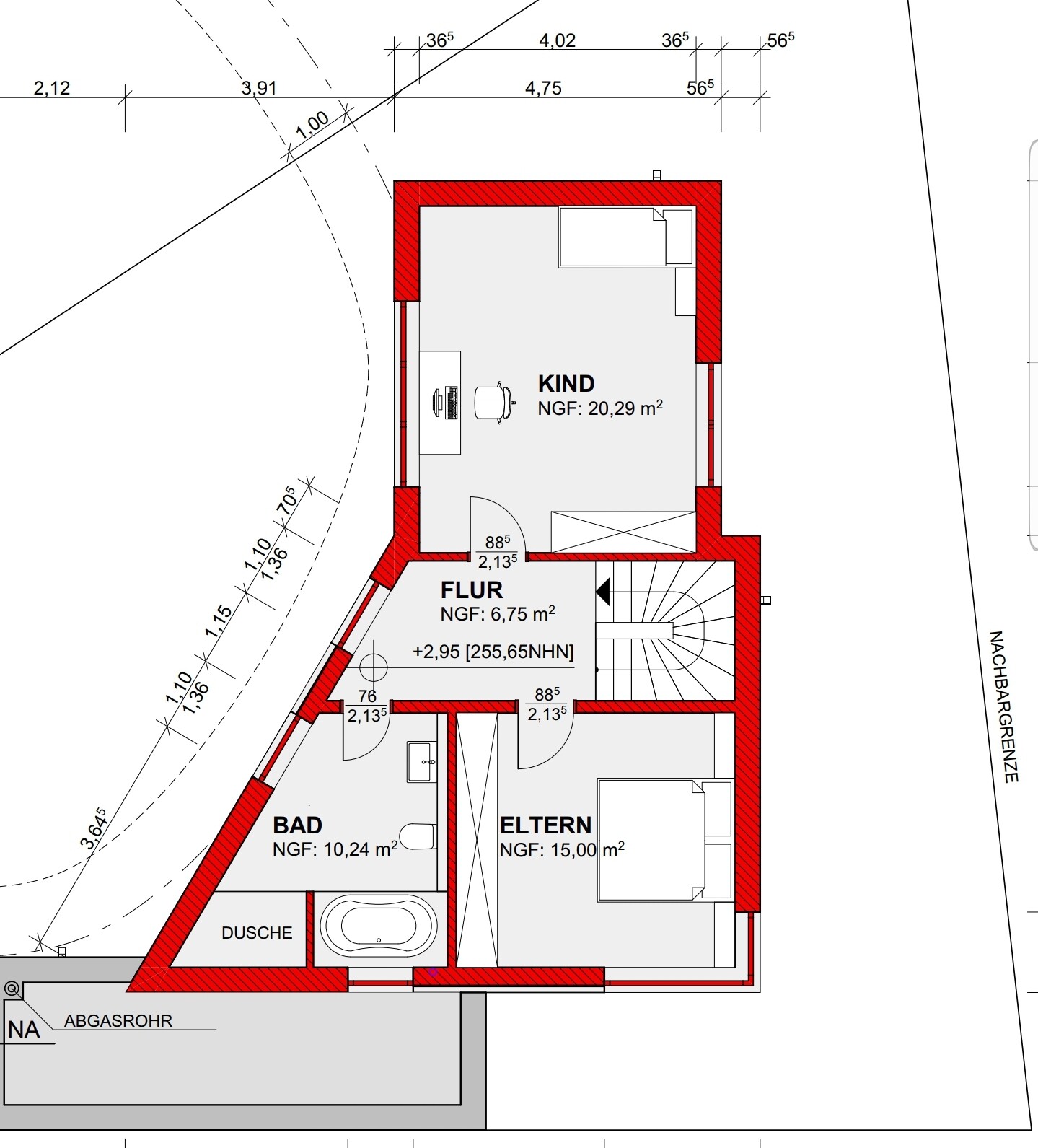
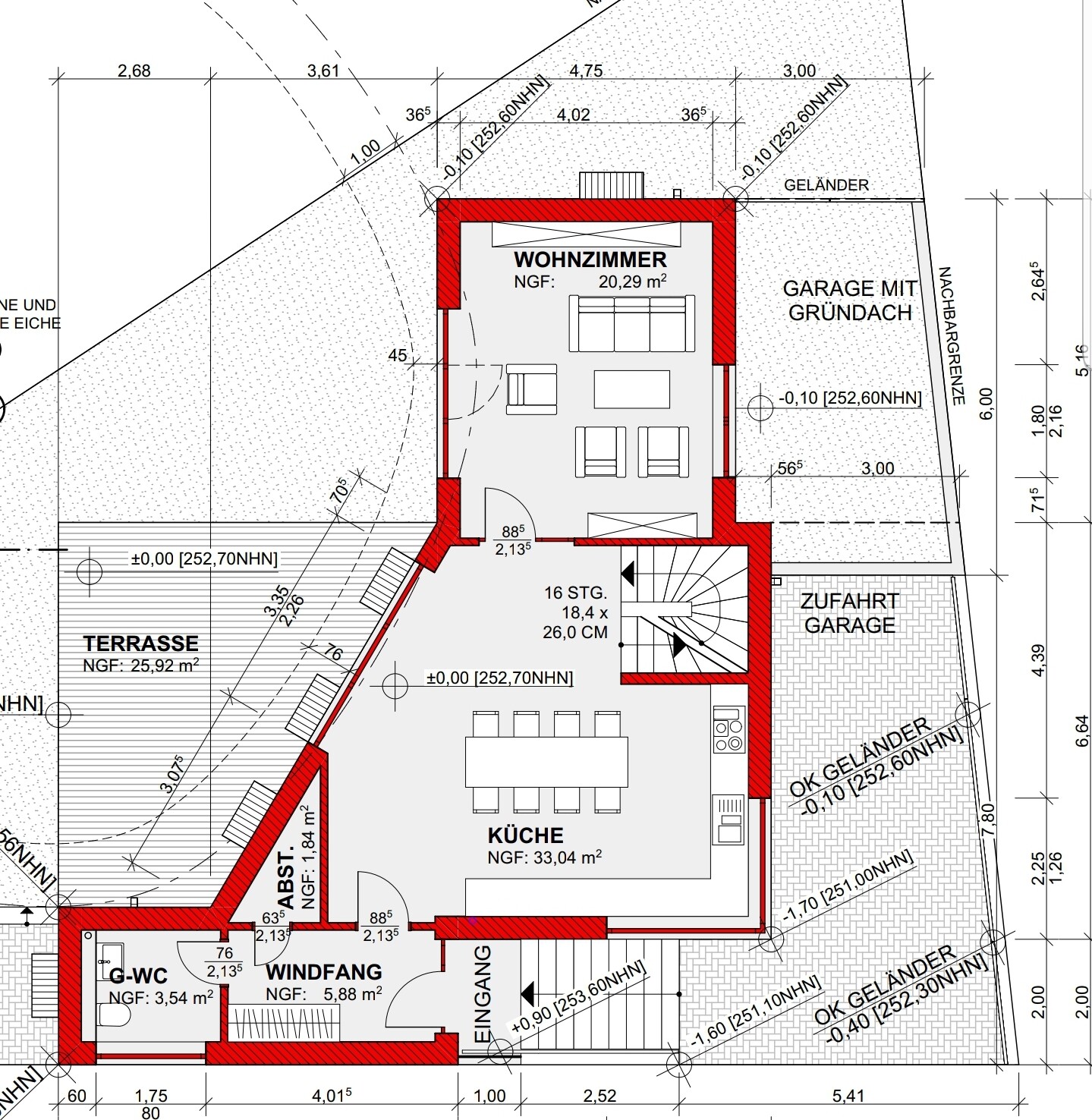
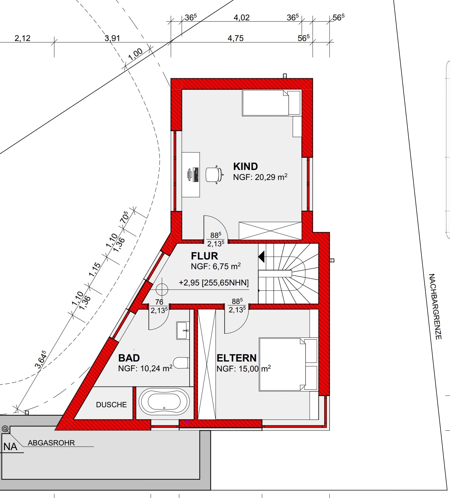
Grundriss Schlauchhaus L-Form Dreieckiges Grundstück samt Eiche

4,80 Stern(e) 37 Votes
Zuletzt aktualisiert 21.11.2025
Sie befinden sich auf der Seite 60 der Diskussion zum Thema: Grundriss Schlauchhaus L-Form Dreieckiges Grundstück samt Eiche
>> Zum 1. Beitrag <<

L

Lumpi_LE

Im Rahmen der Möglichkeiten doch ganz stimmig. Mir wären es zu wenig Räume, aber das muss ja jeder selbst wissen.
 
Zuletzt aktualisiert 21.11.2025
Im Forum Grundrissplanung / Grundstücksplanung gibt es 2535 Themen mit insgesamt 87982 Beiträgen
Oben