ᐅ Grundriss Sanierung
Erstellt am: 21.02.16 08:36
Hallo,
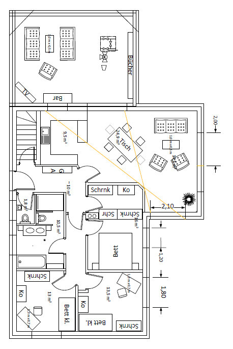
auch wir wollen euch gerne um eure Meinung zu unserem Grundriss bitten. Es geht um ein Sanierungsvorhaben mit Anbau - das heißt wir können die Innenwände beliebig verändern, aber die Außenwände sind fest (außer im Anbau) und auch der Ort von Küche und Bad wäre nur mit größerem Aufwand zu verlegen.
Das Grundstück ist 1.100 qm groß und liegt am Hang abschüßig Richtung Norden. Die Straße ist im Süden. Der Grundriss ist ebenfalls genordet. Das Rechteck ganz im Norden ist der Anbau mit Fensterfläche zum Norden, wo der schöne Ausblick ist.

Das Haus ist ein Bungalow und teilunterkellert. Das heutige Haus hat 110 qm Wohnfläche, mit Anbau werden wir 140qm haben. Im Souterrain (wegen Hang) gibt es zusätzlich noch ca. 30qm für Arbeits- und Gästezimmer.
Wir sind im Moment 2 Erwachsene und 1 Kind, perspektivisch werden es wahrscheinlich 2 Kinder sein.
Die Planung stammt von uns in Rücksprache mit einer befreundeten Architektin. Was uns daran noch nicht gefällt, ist dass die Garderobe so in den Flur hineinragt, andererseits wollen wir aber auch nicht auf dem Platz im Bad verzichten nur für die Garderobennische. Das Schlafzimmer ist uns eigentlich zu klein, aber die Ankleide ist wichtig für uns und daher können wir das akzeptieren. Auch die Küche dürfte größer sein, geht aber schlecht, weil da der Durchgang ins Wohnzimmer sein soll.
Bin mal gespannt, was ihr so denkt.
Liebe Grüße
Kerstin
auch wir wollen euch gerne um eure Meinung zu unserem Grundriss bitten. Es geht um ein Sanierungsvorhaben mit Anbau - das heißt wir können die Innenwände beliebig verändern, aber die Außenwände sind fest (außer im Anbau) und auch der Ort von Küche und Bad wäre nur mit größerem Aufwand zu verlegen.
Das Grundstück ist 1.100 qm groß und liegt am Hang abschüßig Richtung Norden. Die Straße ist im Süden. Der Grundriss ist ebenfalls genordet. Das Rechteck ganz im Norden ist der Anbau mit Fensterfläche zum Norden, wo der schöne Ausblick ist.
Das Haus ist ein Bungalow und teilunterkellert. Das heutige Haus hat 110 qm Wohnfläche, mit Anbau werden wir 140qm haben. Im Souterrain (wegen Hang) gibt es zusätzlich noch ca. 30qm für Arbeits- und Gästezimmer.
Wir sind im Moment 2 Erwachsene und 1 Kind, perspektivisch werden es wahrscheinlich 2 Kinder sein.
Die Planung stammt von uns in Rücksprache mit einer befreundeten Architektin. Was uns daran noch nicht gefällt, ist dass die Garderobe so in den Flur hineinragt, andererseits wollen wir aber auch nicht auf dem Platz im Bad verzichten nur für die Garderobennische. Das Schlafzimmer ist uns eigentlich zu klein, aber die Ankleide ist wichtig für uns und daher können wir das akzeptieren. Auch die Küche dürfte größer sein, geht aber schlecht, weil da der Durchgang ins Wohnzimmer sein soll.
Bin mal gespannt, was ihr so denkt.
Liebe Grüße
Kerstin
Ihr habt dann 2 Wohnzimmer? Oder was ist die Sitzgruppe neben dem Esstisch?
Ich finde den Begehbaren kleiderschrank nicht sonderlich ansprechend. Du musst vom Bad aus durch 3 Türen um dich anzuziehen.
Die Tür im Gang halte ich für extrem unpraktisch da Sie immer im Weg ist. Auf alle Fälle sollte Sie auf die andere Seite anschlagen, dann kann sie auch mal offen bleiben.
ohne zu viel zu ändern, evtl. den Kleiderschrank nach rechts schieben ins Eck und für das Schlafzimmer den ganzen raum nehmen, wobei dass vermutlich den Essbereich dunkler macht.
Ich finde den Begehbaren kleiderschrank nicht sonderlich ansprechend. Du musst vom Bad aus durch 3 Türen um dich anzuziehen.
Die Tür im Gang halte ich für extrem unpraktisch da Sie immer im Weg ist. Auf alle Fälle sollte Sie auf die andere Seite anschlagen, dann kann sie auch mal offen bleiben.
ohne zu viel zu ändern, evtl. den Kleiderschrank nach rechts schieben ins Eck und für das Schlafzimmer den ganzen raum nehmen, wobei dass vermutlich den Essbereich dunkler macht.
Zunächst mal wäre es interessant zu wissen, wo Terrassenausgänge sind. Ein paar mehr Maße wären auch gut, so sieht z. B. die Situation WC/Dusche im großen Bad sehr eng aus.
Warum die zweite Sitzecke im Ess-Kochbereich? Die macht alles sehr eng.
Seid ihr mit der Position des Durchgangs zum Anbau gebunden oder könnte die verschoben werden?
In welchem Bereich liegt die Unterkellerung?
Warum die zweite Sitzecke im Ess-Kochbereich? Die macht alles sehr eng.
Seid ihr mit der Position des Durchgangs zum Anbau gebunden oder könnte die verschoben werden?
In welchem Bereich liegt die Unterkellerung?
Das eigentliche Wohnzimmer soll in den Anbau. Die zweite Sitzgruppe im Wohn-/Essbereich war eine Idee von der Architektin, aber da sind wir usn auch noch nicht sicher, ob wir die tatsächlich hinstellen würden.
Das mit den 3 Türen ist ein sehr guter Punkt. Wahrscheinlich nehmen wir die Zwischentür im Gang wieder raus. Das war eine Idee um den Schallschutz zu verbessern. Die Architektin empfiehlt uns auch sehr noch eine Tür nach dem Eingang als Windfang zu machen, aber das ist uns irgendwie zu bedrängt und altmodisch.
Wie meinst Du das mit Kleiderschrank nach rechts schieben? Innerhalb vom Schlafzimmer oder würdest du die Schränke ins Esszimmer stellen?
Der Terrassenausgang ist Richtung Süßden aus dem Esszimmer, da wo wir mit den gelben Linien den Lichteinfall dargestellt haben. Der Durchgang zum Anbau ist durch das heutige Fenster weitestgehend festgelegt bzw. wäre recht teuer zu verschieben.
Unterkellert wird der Anbau (als Souterrain) und heute bereits unterkellert ist das Rechteck unter dem Essbereich, Küche, Bad und Flur (inkl. teilweise Ankleide und Bad)
Die Dusche ist 1x1,65m. Da mache ich mir keine Sorgen, dass das zu beengt wird. Oder?
Viele Grüße
Kerstin
Das mit den 3 Türen ist ein sehr guter Punkt. Wahrscheinlich nehmen wir die Zwischentür im Gang wieder raus. Das war eine Idee um den Schallschutz zu verbessern. Die Architektin empfiehlt uns auch sehr noch eine Tür nach dem Eingang als Windfang zu machen, aber das ist uns irgendwie zu bedrängt und altmodisch.
Wie meinst Du das mit Kleiderschrank nach rechts schieben? Innerhalb vom Schlafzimmer oder würdest du die Schränke ins Esszimmer stellen?
Der Terrassenausgang ist Richtung Süßden aus dem Esszimmer, da wo wir mit den gelben Linien den Lichteinfall dargestellt haben. Der Durchgang zum Anbau ist durch das heutige Fenster weitestgehend festgelegt bzw. wäre recht teuer zu verschieben.
Unterkellert wird der Anbau (als Souterrain) und heute bereits unterkellert ist das Rechteck unter dem Essbereich, Küche, Bad und Flur (inkl. teilweise Ankleide und Bad)
Die Dusche ist 1x1,65m. Da mache ich mir keine Sorgen, dass das zu beengt wird. Oder?
Viele Grüße
Kerstin
Der WC-Platz 😉 ist so richtig eingezwängt.
Kannst du mal skizzieren, wo Keller wäre? Und, in der Wand zum Anbau .. das sieht so aus, als wenn da 2 Fensterpositionen sind.
Wird der Souterrain-Bereich unter dem Anbau rundum Fenster bekommen? Mal so ein Grundgedanke:
EG:
1 größeren Raum als Schlafzimmer und Ankleide evtl. abgetrennt
1 größeren Raum aktuell als Kinderzimmer
Souterrain:
2 größere Zimmer, aktuell Gäste/Arbeitszimmer
evtl. noch kleineres Bad
Wenn 2. Kind kommt, anfangs evtl. beide Kinder im EG, nach einiger Zeit dann Kind 1 ins Souterrain. Später auch Kind 2 ins Souterrain und den EG-Kinderzimmerraum dann als kombiniertes Gäste-/Arbeitszimmer.
Dann hätte man 4 größere Räume, die sich evtl. besser nutzen lassen.
Kannst du mal skizzieren, wo Keller wäre? Und, in der Wand zum Anbau .. das sieht so aus, als wenn da 2 Fensterpositionen sind.
Wird der Souterrain-Bereich unter dem Anbau rundum Fenster bekommen? Mal so ein Grundgedanke:
EG:
1 größeren Raum als Schlafzimmer und Ankleide evtl. abgetrennt
1 größeren Raum aktuell als Kinderzimmer
Souterrain:
2 größere Zimmer, aktuell Gäste/Arbeitszimmer
evtl. noch kleineres Bad
Wenn 2. Kind kommt, anfangs evtl. beide Kinder im EG, nach einiger Zeit dann Kind 1 ins Souterrain. Später auch Kind 2 ins Souterrain und den EG-Kinderzimmerraum dann als kombiniertes Gäste-/Arbeitszimmer.
Dann hätte man 4 größere Räume, die sich evtl. besser nutzen lassen.
Ähnliche Themen