Hausbau - Ratgeber
Bauherrenhilfe
- Bauherrenhilfe vor Vertragsabschluss
-- Warum einen unabhängigen Baubetreuer?
-- Vertragsgrundlagen
-- Bausumme
-- Zahlungsplan zur Kostenkontrolle
-- Pflichten des Bauherren vor Vertragsabschluss
-- Unterlagen beim Hausbau vor Vertragsabschluss
- Bauherrenhilfe nach Vertragsabschluss
-- Bauantrag bei Behörden
-- Bau-Genehmigungsverfahren bei Baubehörden
-- Bauspezifische Versicherungen
-- Bauzeitenplan
-- Baubeginn - die Letzten Pflichten der Bauherrschaft
- Bauherrenhilfe während der Bauzeit
- Gewährleistungsansprüche
- Bauabnahme
Baufinanzierung
- Baufinanzierung - Allgemeine Fragen
- Kreditarten
- Kredit-Konditionen
- Bausparen
- Staatliche Förderungen
- Verkehrswert
- Haushaltsrechnung und Bonität
Hausbau Planung
- Haustypen
- Hausbau Vorbereitungsarbeiten
- Das Baugrundstück
- Baugrund beim Hausbau
- Baurecht
- Gebäudeschutz
- Erdarbeiten und Wasserhaltung
- Stützmauern
- Einfriedung
- Untergeschoss
- Kanalisation
- Tragende Elemente
- Nichttragende Innenwände
- Fundation / Fundament
- Deckenkonstruktionen
- Dächer
- Kaminanlagen
- Treppen Rampen Leitern
- Dachbeläge und Spengler
- Fenster
- Sonnen und Wetterschutz
- Aussenputze
- Einbauten, Küchen, Türen
- Bodenbeläge und Unterlagsböden
- Parkett
- Gips, Wand, Decke
Haustechnik und Energie
- Heiztechnik
- Lüftung und Klimatechnik
- Sanitärtechnik
- Elektrotechnik
- Erneuerbare Energie
Whirlpools / Jacuzzi
Hausbau Magazin
- Baufinanzierung trotz Krise?
- Das Blockhaus
- Moderne Dämmstoffe im Vergleich
- Erker Vor- und Nachteile
- Glasflächen beim Hausbau
- Günstig ein Haus Bauen
- Mediterraner Hausbaustil
- Mehrgenerationenhaus
- Moderne Architektur
- Gartengestaltung leicht gemacht
- Traditioneller Ziegelbau
- Villa als höchster Traum
- Im Eigenheim Ruhestand geniessen
- Altbau sanieren
- Kauf einer Holzgarage
- Immobilienmakler
- Arbeitshandschuhe für den Winter
- Zuhause verschönern
- Outdoor-Plissees
- Schlafzimmer planen
- Terrassenüberdachung
- Wohngebäudeversicherung
- Zaunarten und Eigenschaften
- Hauseingang gestalten
- Der perfekte Grundriss
- Sparsamer heizen im Altbau
- Einfamilienhaus smart finanzieren
- Planung einer PV-Anlage
- Neues Haus
- Immobilienfinanzierung
- Installation einer Photovoltaikanlage
- Asbest erkennen und entfernen
- Gartenpflege im Frühling – worauf achten
- Sauna im Fokus - Wellness zuhause
- Erfolgreich vermieten
- Die perfekte Winterbekleidung
- Das Niedrigenergiehaus
- Der April und seine Stürme
- Architektonische Vielfalt
- Ökologisch und nachhaltig bauen
- Das perfekte Schlafzimmer
- Nachhaltige Energieversorgung
- Zukunftsorientiert bauen
- Nachhaltigkeit beim Hausbau
- Tiny Houses
- Wärmepumpen als nachhaltige Heizvariante
- Maßgeschneiderten Kleiderschrank
- Der richtige Baukredit
- Ratgeber für erfolgreichen Hausbau
- Haus als Altersvorsorge
Do-it-yourself Anleitungen
- Verlegeanleitung für Bodenbeläge und Parkett
- Bodenbeläge und Parkett reinigen und pflegen
- Malerarbeiten am Haus
- Garten Tipps
- Umzug und Reinigung

ᐅ Grundriss Reiheneckhaus in Planung - Änderungsvorschläge?

Erstellt am: 20.08.22 21:05
B
Bauherrin123
Y
ypg
09.09.22 14:23
Screnshots vom Handy sind leider zu klein, um etwas zu erkennen.
B
Bauherrin123
09.09.22 14:30
ypg schrieb:

Screnshots vom Handy sind leider zu klein, um etwas zu erkennen.


Echt jetzt? Hab bisher immer nur Screenshots?!
B
Bauherrin123
09.09.22 14:49
Hab die nochmals ran gezoomt und geschnitten vielleicht besser?

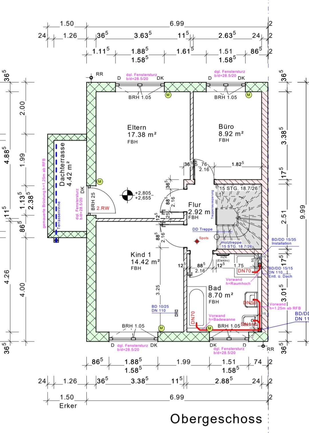
Dachgeschoss-Grundriss mit Studio, Flur, Bad, HWR, Treppe und Maßen


Grundriss Obergeschoss: Räume Eltern, Kind 1, Büro, Bad, Flur und Dachterrasse.


Grundriss Erdgeschoss: Wohnen/Essen, Küche, Diele; Terrasse mit wasserdurchlässigem Belag.
kbt0909.09.22 15:05
Wofür willst du denn 6 Spots mitten in der Küche haben? Arbeitsfläche beleuchten die nicht, im Gegenteil, man steht vor der Arbeitsfläche und durch das Spotlicht im Rücken fällt Schatten auf die Arbeitsfläche. Da gehört erst die korrekte Küchenplanung hin, dann, welche Leuchten dort die Arbeitsfläche beleuchten (z. B. Leuchten unterhalb der hängeschränke) und dann Tischposition (evtl. Hängelampe) und dann noch Licht über der Arbeitsfläche am Fenster, da dort keine Hängeschränke hängen.
B
Bauherrin123
09.09.22 15:13
kbt09 schrieb:

Wofür willst du denn 6 Spots mitten in der Küche haben? Arbeitsfläche beleuchten die nicht, im Gegenteil, man steht vor der Arbeitsfläche und durch das Spotlicht im Rücken fällt Schatten auf die Arbeitsfläche. Da gehört erst die korrekte Küchenplanung hin, dann, welche Leuchten dort die Arbeitsfläche beleuchten (z. B. Leuchten unterhalb der Hängeschränke) und dann Tischposition (evtl. Hängelampe) und dann noch Licht über der Arbeitsfläche am Fenster, da dort keine Hängeschränke hängen.


Du hast so Recht, hast mir sogar die Spots in der Küche rausgeredet. Ich finde Spots sehr schön,...dachte einpar irgendwo zu setzen, im Wohnzimmer will ich flexibel bleiben wie ich einrichte....und Bad fand ich es zuschade sie dort zu setzen.... jetzt bin ich am überlegen,....über dem Tisch in der Küche möchte ich keine hängende Lampe oder so.... nur deckenleuchte, das hängende über dem Tisch will ich im essbereich im Wohnzimmer....

Ich habe also 10 Spots die ich beliebig im Haus verteilen kann...um das ganze etwa schön zu machen... ich finde das 4. Spot an der Treppe auch komisch im EG...wie gesagt die Spots sind ja nur so eingemalt, ich soll ja sagen wo ich welche haben will...küchenplanung grob haben wir, wie es eingezeichnet ist, mehr können wir gerade nicht wissen...das mit deckenleuchten machen die aber auch nicht ...


Wer hat Ideen wo wir die Spots nehmen sollen? Finde in beiden Fluren aber auch recht schön...hab keine Ideen...ich möchte noch seitlich an Dr Wand der Treppen,...die kann man aber später machen die an der Decke müssen jetzt bestimmt werden...
kbt0909.09.22 16:59
Na, dann würde ich eine Spotreihe im Abstand von ca. 40 cm von der planunteren Küchenwand machen, also der Wand mit Fenster ... 3 Spots z. B., denn dort brauchst du definitiv Licht.

Ansonsten empfehlen sich oft eher Lichtschienen z. B. in Weiß an einer weißen Decke, in die man dann Spots oder Hängelampen nach Bedarf einsetzen kann.

Die 4 Spots im Flur finde ich recht passend.

Wie wollt ihr die Dusche im OG abtrennen? Mit raumhoher Wand? Dann würden sich auch 1 bis 2 Spots im Bereich der Dusche anbieten.

Man könnte auch im Wohnzimmer oben planrechts von planoben nach planunten eine Spotreihe (3 Spots setzen) so ca. 70 cm von der planrechten Wand entfernt. Wenn dann planrechts eine TV-Wand/Schrankwand ist, kann man die beleuchten bzw. durch das Licht sehen, was in den Schränken ist.

Denke auch über die Steckdosen nach.
arbeitsflächebeleuchtenküchenplanungwohnzimmerhängeschränkefensterspotreihedusche