
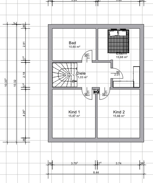
Ibdk14
Wie schon erwähnt. Fang die Planung im OG an. Es gibt genügend DH-Grundrisse, die funktionieren. Von einem EH abzuwandeln geht meist schief. Ich häng dir mal einen Grundriss an nur als Skizze. Eltern gefällt mir nicht, ob das mit dem Kamin im OG geht, weiß ich leider nicht. Hab ich nur schnell abgemalt, aber vielleicht kannst du davon ja was übernehmen.