ᐅ Grundriss-Planung, 2 Vollgeschosse, ca. 130-140 qm ohne Keller
Erstellt am: 29.07.21 16:45
P
prm2021prm2021 schrieb:
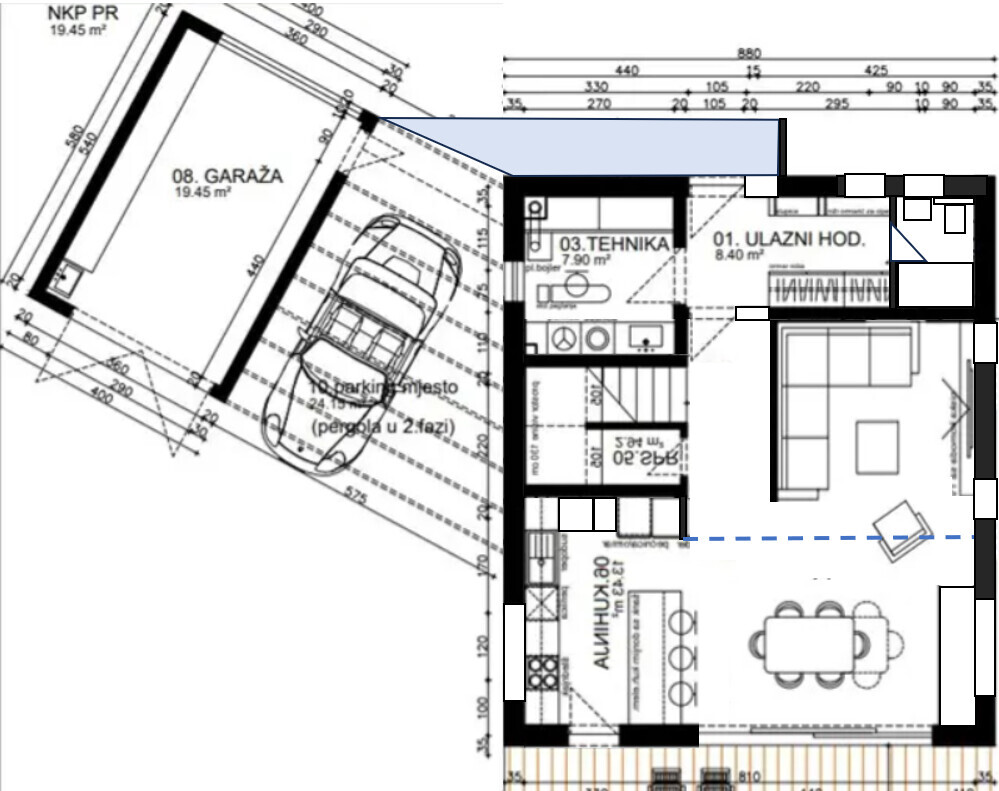
😳Ich habe nicht verstanden, wo sich die Treppe um 10 cm bewegen muss. Muss ich Architekt das sagen?Ja, die Treppe müsste 10cm nach Plan-oben. Also der Technikraum wird etwas kleiner. Oder Du machst die Hütte insgesamt 10cm größer. Außerdem: Dein Architekt arbeitet mit 20er Wänden. Ist das Trockenbau? Auf jeden Fall ist in der Skizze das Schrankmaß mit 3m x 0,6m auf Kante genäht. Falls noch Putz drauf kommt, brauchst Du mehr Spiel und solltest die Stellfläche als Bedingung festlegen, damit Dein Planer ausreichend Abstand einkalkuliert.
Meine Schwester hat große Kinder und sagt mir, ich solle unbedingt eine Dusche im Gäste-WC einbauen, da die Kinder später im OG-Bad Intimität wünschen.
Meine Kinder sind 5 und 2 Jahre alt und bisher habe ich keine Probleme.
Sollte ich ein Giebelfenster im Dachgeschoss (als Stauraum) auf der Südseite anbringen oder sollte ich auch eines auf der Nordseite haben?
Wie groß soll es sein?
Was sagen Sie?
Aaaa sehr gut, danke Katja, ich habe spontan vorgeschlagen, die WZ von 3,90 auf 4m zu verlängern.
Ja, Architekt empfiehlt Trockenbau (2 Gipskartonplatten auf jeder Seite der Wand und Wolle).
Sollte es 0,7 m für Ikea-Kleiderschränke (Pax) sein? (Ich habe es Architekt gesagt, weil ich es hier irgendwo gelesen habe).
Ihre kommode wird mein schrank sein (bis zur offenen Tür ausgestreckt), und meine Frau kann den gesamten 3-m-Schrank haben.
Danke Danke


Meine Kinder sind 5 und 2 Jahre alt und bisher habe ich keine Probleme.
Sollte ich ein Giebelfenster im Dachgeschoss (als Stauraum) auf der Südseite anbringen oder sollte ich auch eines auf der Nordseite haben?
Wie groß soll es sein?
Was sagen Sie?
K a t j a schrieb:
Ja, die Treppe müsste 10cm nach Plan-oben. Also der Technikraum wird etwas kleiner. Oder Du machst die Hütte insgesamt 10cm größer.
Außerdem: Dein Architekt arbeitet mit 20er Wänden. Ist das Trockenbau? Auf jeden Fall ist in der Skizze das Schrankmaß mit 3m x 0,6m auf Kante genäht. Falls noch Putz drauf kommt, brauchst Du mehr Spiel und solltest die Stellfläche als Bedingung festlegen, damit Dein Planer ausreichend Abstand einkalkuliert.
Aaaa sehr gut, danke Katja, ich habe spontan vorgeschlagen, die WZ von 3,90 auf 4m zu verlängern.
Ja, Architekt empfiehlt Trockenbau (2 Gipskartonplatten auf jeder Seite der Wand und Wolle).
Sollte es 0,7 m für Ikea-Kleiderschränke (Pax) sein? (Ich habe es Architekt gesagt, weil ich es hier irgendwo gelesen habe).
Ihre kommode wird mein schrank sein (bis zur offenen Tür ausgestreckt), und meine Frau kann den gesamten 3-m-Schrank haben.
Danke Danke
prm2021 schrieb:
Sollte ich ein Giebelfenster im Dachgeschoss (als Stauraum) auf der Südseite anbringen oder sollte ich auch eines auf der Nordseite haben?
Wie groß soll es sein?Nein, mache es lieber NUR auf der Nordseite. Die Größe wie eingezeichnet reicht.https://www.instagram.com/11antgmxde/
https://www.linkedin.com/company/bauen-jetzt/
prm2021 schrieb:
...Kommode wird mein Schrank sein (bis zur offenen Tür ausgestreckt), und meine Frau kann den gesamten 3-m-Schrank haben.Klingt fair. 😀Am besten suchst Du Dir jetzt schon einen Schrank aus und gibst links, rechts und hinten 3cm zu. Das ist dann Dein Stellmaß, was der Architekt als Vorgabe bekommt.
H
hanghaus202318.07.23 08:36Ähnliche Themen