icandoit schrieb:
Ich habe mich hier belehren lassen, dass man Fenster putzen laesst. 😉Akzeptiere ich ohne Widerspruch sofort - keine Widerrede! 😀
derclaus schrieb:
bestimme Dinge sind halt so.So isses.derclaus schrieb:
aber mit Belichtung o.ä. tu ich mich schwer. Alles kein Grund, Dinge im Grundriss ändern zu wollen,ich versuche schon, in meinen Augen und mit meinen Mitteln die Lichtsituation zu optimieren. Ich würde dann auch eher in einer Innenwand mal ein Oberlicht einbauen oder wie Du gesehen hast, einen Luftraum, nur des Lichts wegen...derclaus schrieb:
Chill-Out-Bereich sind ja auch nicht so "licht-wichtig"....TV und Abchillen funktioniert bei Kerzenlicht oder Stehlampe am besten 😉derclaus schrieb:
Wie dunkel wird eurer Meinung nach die Lichtsituation im EG im Couch-Bereich hinten,Eine Tageslicht könnte man anbringen für Zeiten, wo man dort "normales" Licht braucht.derclaus schrieb:
Wie dunkel wird der Gang im OG hinter den Zimmern,Tja... mit Luftraum nicht so dunkel im mittleren Bereich. Ohne Luftraum würde ich tatsächlich mit einer langen Schleppgaube arbeiten und über den Innen-Türen mit Oberlichtern arbeiten. Ist ja eh eine Kinderetage, da sollte das nicht negativ sein.derclaus schrieb:
Lässt sich diese Treppe theoretisch um ein Geschoss erweitern, um ein Dachgeschoss zu erschließen?Das sollte man tatsächlich einplanen und entsprechend dann die Treppe setzen. Da müsste man auch Prioritäten setzen, ob meinetwegen eine schlechte Treppenlage es wert ist, wenn man es dann doch nicht ausbaut. Da steht ja doch vieles in Abhängigkeit.derclaus schrieb:
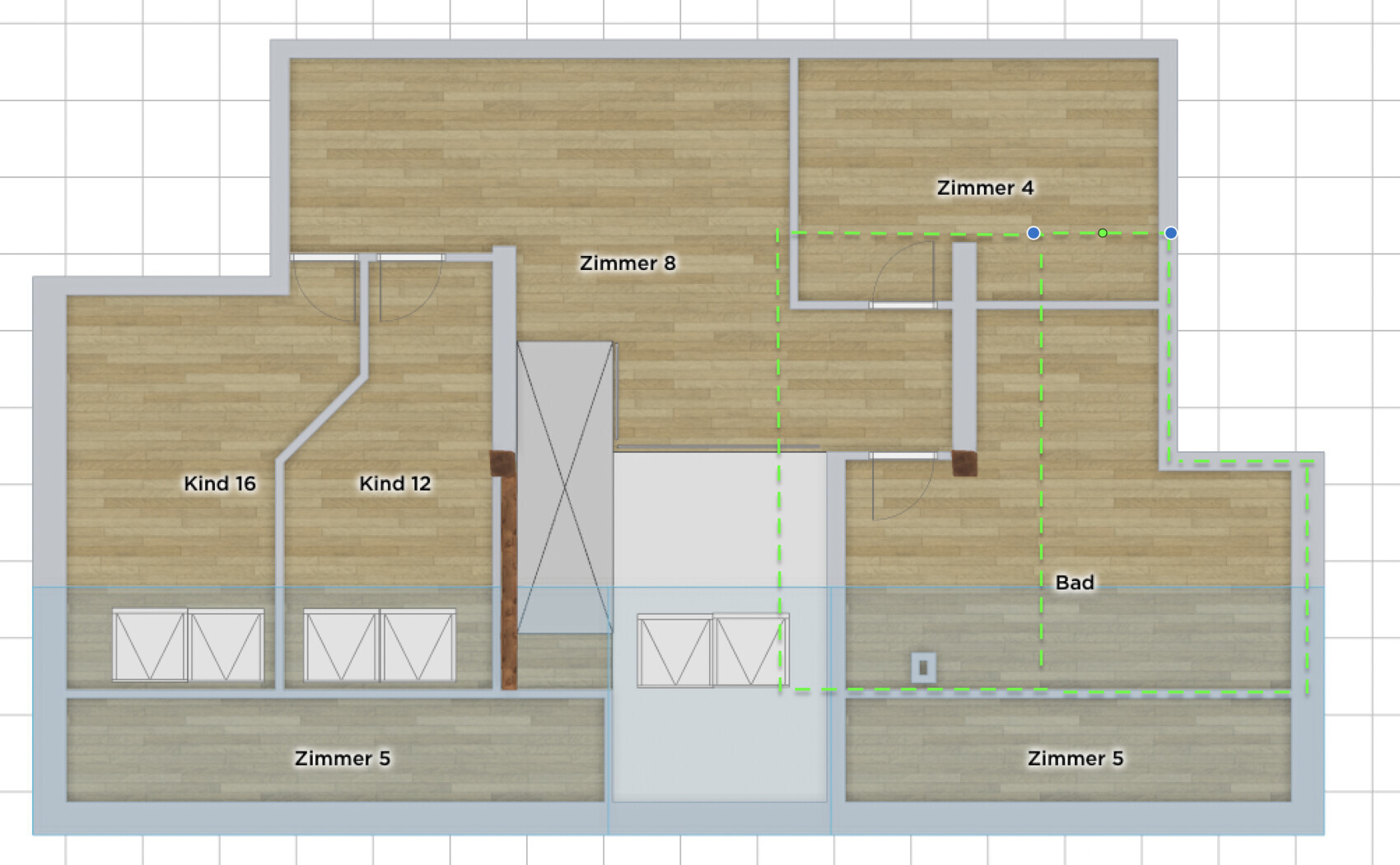
Somit könnte man weiteres Licht (über ein Doppelflügelfenster bspw. in das OG bringen.Ich habe jetzt eh gedacht, dass es nach oben offen wird 😀Screenshots, bevor ich wieder lösche:
das wäre eine Variante mit der Treppe noch im bestehenden Flur, nur andere Seite. Ohne Luftraum natürlich, aber 3 Kinderzimmer und Platz fürs Bad.
Ich werde nachher die Treppe weiter nach hinten setzen... Idee ist da... damit man im Dach ein viertes Zimmer bekommt. So hoffe ich. In Anlehnung an Claus'Idee


das wäre eine Variante mit der Treppe noch im bestehenden Flur, nur andere Seite. Ohne Luftraum natürlich, aber 3 Kinderzimmer und Platz fürs Bad.
Ich werde nachher die Treppe weiter nach hinten setzen... Idee ist da... damit man im Dach ein viertes Zimmer bekommt. So hoffe ich. In Anlehnung an Claus'Idee
ypg schrieb:
Screenshots, bevor ich wieder lösche:
das wäre eine Variante mit der Treppe noch im bestehenden Flur, nur andere Seite. Ohne Luftraum natürlich, aber 3 Kinderzimmer und Platz fürs Bad.
Ich werde nachher die Treppe weiter nach hinten setzen... Idee ist da... damit man im Dach ein viertes Zimmer bekommt. So hoffe ich. In Anlehnung an Claus'Idee
[ATTACH alt="Bildschirmfoto 2021-02-14 um 11.40.23.png"]57461[/ATTACH][ATTACH alt="Bildschirmfoto 2021-02-14 um 11.46.24.png"]57462[/ATTACH]Die Treppe vor holen gefaellt mir sehr gut. Das OG ist jetzt richtig aufgeraeumt.ypg schrieb:
Screenshots, bevor ich wieder lösche:
das wäre eine Variante mit der Treppe noch im bestehenden Flur, nur andere Seite. Ohne Luftraum natürlich, aber 3 Kinderzimmer und Platz fürs Bad.Ok, verstehe, danke. Das ist aufgeräumt im OG und funktioniert. Alles klar. Bedeutet jedoch, dass es also nicht klappt, 4 Zimmer oben mit Süd-Seite zu haben und einen Eingang, Treppe bzw. Diele im OG mit Luftraum zu erhalten?
Ich habe einfach mal ganz frech in deinem (vorigen) Entwurf herumgewerkelt, damit wir uns verstehen & den Luftraum geschmälter, dass gerade mal ein zweites Fenster Platz hat. Vielleicht könnte man auch den Eingang noch weiter nach planlinks versetzen...
Ähnliche Themen