ᐅ Grundriss: klassisches Einfamilienhaus ca. 180m2 auf 1800m2 Grundstück
Erstellt am: 01.02.21 00:32
B
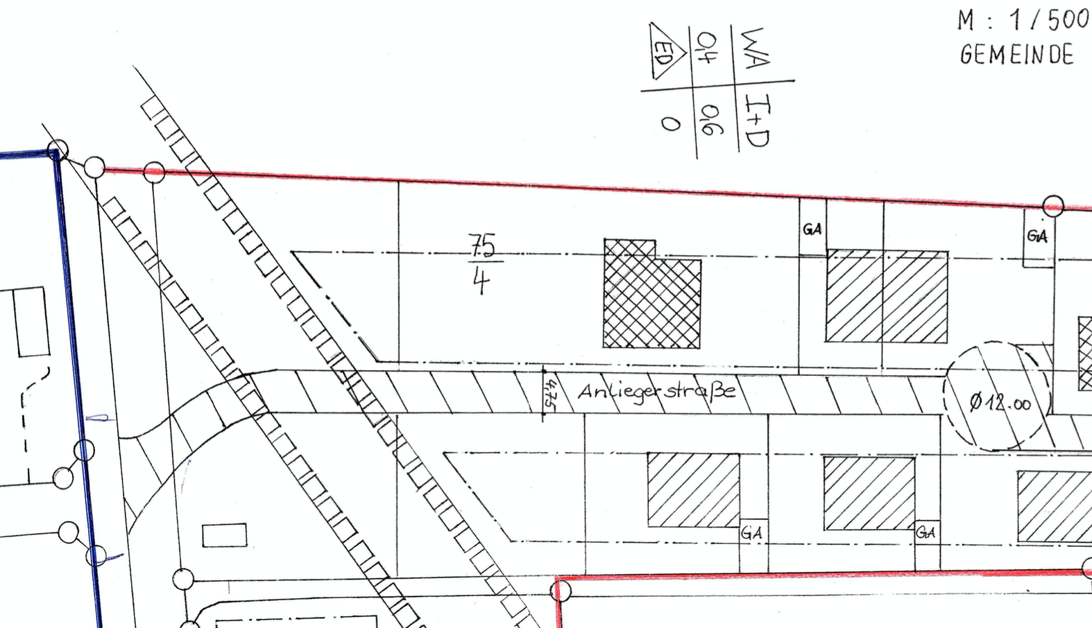
BofodBebauungsplan/Einschränkungen
!Abrundungssatzung!
Größe des Grundstücks: 1800m2
keine Hanglage
Grundflächenzahl 0,4
Geschossflächenzahl 0,6
Baufenster: 12,5 x 45m
Geschossigkeit I + D, DG als Vollgeschoss zuässig
keine weiteren Vorgaben, also sonst §34 (Einfamilienhaus, Doppelhaushälfte, jeweils ca. 8m Firsthöhe mit I + D Geschossigkeit im Umfeld)
- es handelt sich um Flurstück 75/4. Das Haus soll ungefähr an der eingezeichneten Stelle des bestehenden (Abriss)-Hauses errichtet werden.
Anforderungen der Bauherren
Klassiches Einfamilienhaus mit moderner Note
ohne Keller, zwei gut nutzbare Geschosse
2 Personen Anfang 30, 2 Kinder geplant
Büro: ich bin selbständig und arbeite meist von zu Hause. Meine Frau benötigt gelegentlich einen Arbeitsplatz.
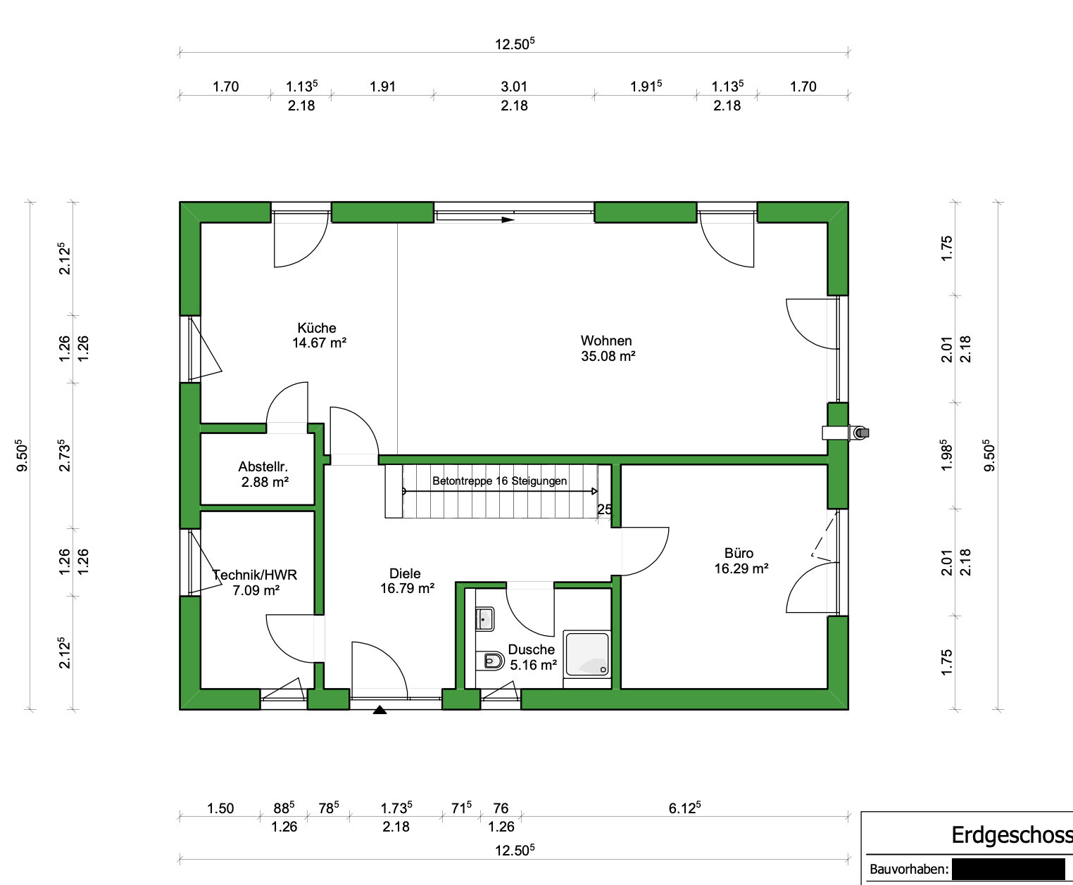
Offene Küche mit Insel
6 Essplätze
Kamin geplant
Doppelgarage an Nordseite (Büro) geplant
Hausentwurf
Von wem stammt die Planung:
Planer eines Bauunternehmens
Preis: ca. 360 TE
Gasheizung ! (Sonst KFW 55 Standard, Poroton T8, Fenster dreifachverglast, entsprechende Untersohlen und Zwischensparrendämmung)
Wenn Ihr verzichten müsst, auf welche Details/Ausbauten
-könnt Ihr verzichten: Dachfenster
-könnt Ihr nicht verzichten: Rollläden, Büro
Warum ist der Entwurf so geworden, wie er jetzt ist?
Ich habe bereits 2013 gebaut (Doppelhaushälfte, 130m2 auf 275m2 Grundstück im Nachbarstadtteil). Das Haus war nur als "Übergangslösung" geplant. Wir fühlen uns hier sehr wohl doch es fehlt der Platz für Kinder. Ein (kleines) Gästezimmer und ein großes Büro sind uns wichtig. Laut Bauunternehmer sollte der Hauswirtschaftsraum 7m2 nicht unterschreiten. Für uns wäre kleiner ausreichend (zu Gunsten der Speiserkammer). Wir hofffen, dass wir diese Wand in der Feinplanung noch verschieben können.
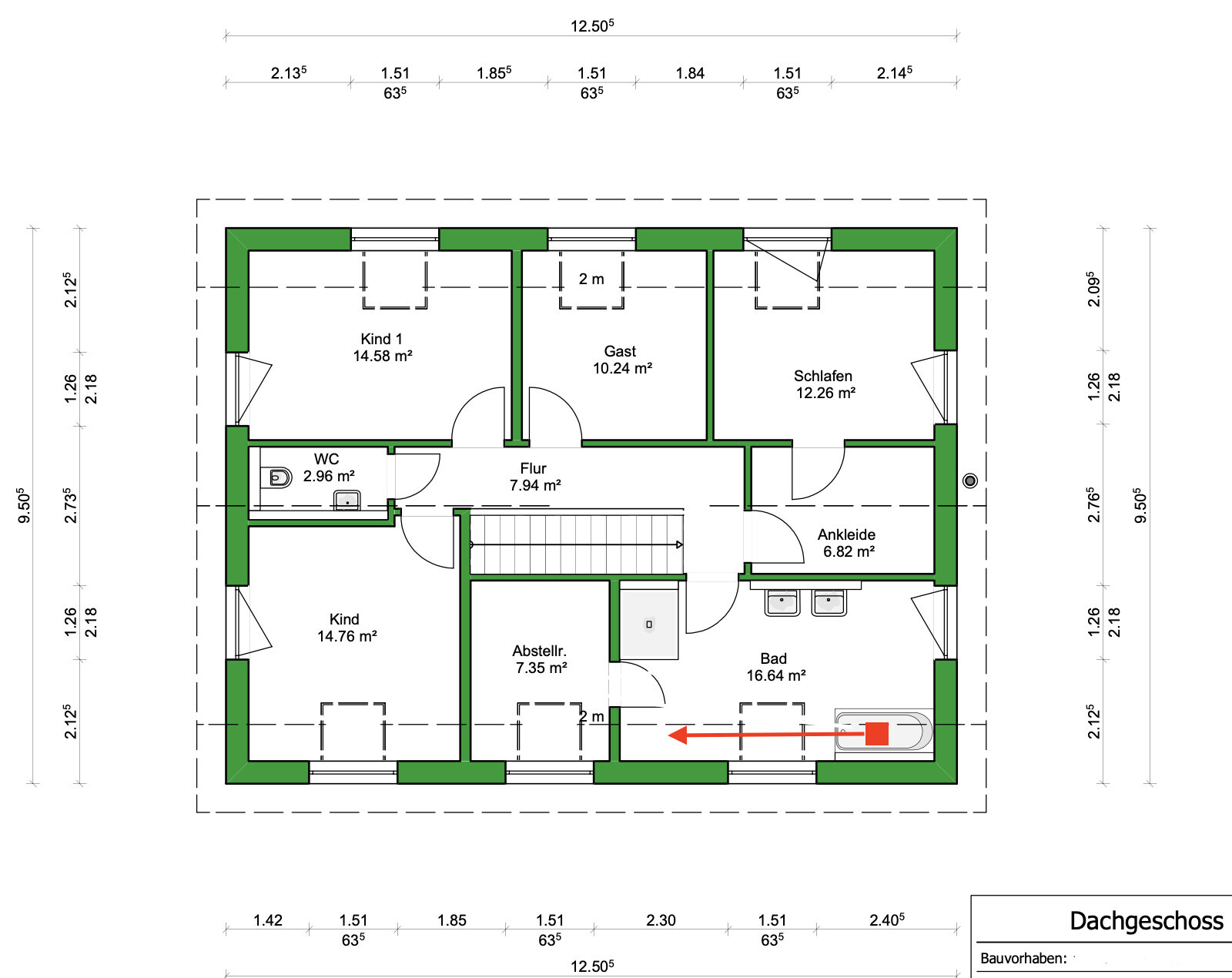
Die länglichen Fenster im OG sind alle bewusst nicht zu öffnen mit Ausnahme des Fensters im Schlafzimmer ("Katzenklappe" über Treppe oder Terrassendach).
Bad ist bewusst nicht im WC (im OG). Da wo noch Badewanne eingezeichnet ist soll später ggf. eine kleine Sauna Platz finden.
Was ist die wichtigste/grundlegende Frage zum Grundriss in 130 Zeichen zusammengefasst?
Haben wir grundlegenden "Unsinn" angestellt? Die zweite Abstellkammer im OG wird "Waschküche". Alle Dachfenster sind elektrisch zu öffnen und mit elektrischen Rollläden versehen. Was können wir verbessern? Grundsätzlich ist uns die "Großzügigkeit" im Eingangsbereich wichtig - vermutlich stellen wir uns das aber auch kleiner vor als es tatsächlich wird. Wir sind aber etwas gebeutelt mit einem "Vorraum" von 2 Quadratmetern an welchem man immer aneinander gerät - auch allein 😉
Vielen Dank im Voraus und einen guten Start in die Woche




!Abrundungssatzung!
Größe des Grundstücks: 1800m2
keine Hanglage
Grundflächenzahl 0,4
Geschossflächenzahl 0,6
Baufenster: 12,5 x 45m
Geschossigkeit I + D, DG als Vollgeschoss zuässig
keine weiteren Vorgaben, also sonst §34 (Einfamilienhaus, Doppelhaushälfte, jeweils ca. 8m Firsthöhe mit I + D Geschossigkeit im Umfeld)
- es handelt sich um Flurstück 75/4. Das Haus soll ungefähr an der eingezeichneten Stelle des bestehenden (Abriss)-Hauses errichtet werden.
Anforderungen der Bauherren
Klassiches Einfamilienhaus mit moderner Note
ohne Keller, zwei gut nutzbare Geschosse
2 Personen Anfang 30, 2 Kinder geplant
Büro: ich bin selbständig und arbeite meist von zu Hause. Meine Frau benötigt gelegentlich einen Arbeitsplatz.
Offene Küche mit Insel
6 Essplätze
Kamin geplant
Doppelgarage an Nordseite (Büro) geplant
Hausentwurf
Von wem stammt die Planung:
Planer eines Bauunternehmens
Preis: ca. 360 TE
Gasheizung ! (Sonst KFW 55 Standard, Poroton T8, Fenster dreifachverglast, entsprechende Untersohlen und Zwischensparrendämmung)
Wenn Ihr verzichten müsst, auf welche Details/Ausbauten
-könnt Ihr verzichten: Dachfenster
-könnt Ihr nicht verzichten: Rollläden, Büro
Warum ist der Entwurf so geworden, wie er jetzt ist?
Ich habe bereits 2013 gebaut (Doppelhaushälfte, 130m2 auf 275m2 Grundstück im Nachbarstadtteil). Das Haus war nur als "Übergangslösung" geplant. Wir fühlen uns hier sehr wohl doch es fehlt der Platz für Kinder. Ein (kleines) Gästezimmer und ein großes Büro sind uns wichtig. Laut Bauunternehmer sollte der Hauswirtschaftsraum 7m2 nicht unterschreiten. Für uns wäre kleiner ausreichend (zu Gunsten der Speiserkammer). Wir hofffen, dass wir diese Wand in der Feinplanung noch verschieben können.
Die länglichen Fenster im OG sind alle bewusst nicht zu öffnen mit Ausnahme des Fensters im Schlafzimmer ("Katzenklappe" über Treppe oder Terrassendach).
Bad ist bewusst nicht im WC (im OG). Da wo noch Badewanne eingezeichnet ist soll später ggf. eine kleine Sauna Platz finden.
Was ist die wichtigste/grundlegende Frage zum Grundriss in 130 Zeichen zusammengefasst?
Haben wir grundlegenden "Unsinn" angestellt? Die zweite Abstellkammer im OG wird "Waschküche". Alle Dachfenster sind elektrisch zu öffnen und mit elektrischen Rollläden versehen. Was können wir verbessern? Grundsätzlich ist uns die "Großzügigkeit" im Eingangsbereich wichtig - vermutlich stellen wir uns das aber auch kleiner vor als es tatsächlich wird. Wir sind aber etwas gebeutelt mit einem "Vorraum" von 2 Quadratmetern an welchem man immer aneinander gerät - auch allein 😉
Vielen Dank im Voraus und einen guten Start in die Woche
N
NatureSys01.02.21 00:36Wo ist der Grundriss?
Bofod schrieb:
Haben wir grundlegenden "Unsinn" angestellt?Ja.https://www.instagram.com/11antgmxde/
https://www.linkedin.com/company/bauen-jetzt/
11ant schrieb:
Ja.Danke, 11ant. Auf eine Ja-Nein-Frage gibt es natürlich auch nur zwei mögliche Antworten 🙂
Ich will also präzisieren: Haben wir grundlegenden Unsinn (bezüglich des Grundrisses oder allgemein dieser Anfrage) angestellt - und wenn ja, welchen? Wie lösen wir das Problem besser?
Es sieht auf den ersten Blick wie ein Bauplan aus, aber auf den zweiten wie Unsinn im Dutzend. Oder wie eine Übungsaufgabe für Bauzeichner. Tragende Wände doof unübereinander, Riesenbad mit Platz für nichts, Klo nur im Kinderbad, nominell der Fläche nach Platz für eine Sauna, aber wo sollte sie stehen. Irgendeine Wand wird in der Feinplanung noch zu verschieben gehofft, aha. Was ich als Pedant mit geschultem Baupläneblick wie immer zuerst gesehen habe, sind die bunten Phantasiemaße der Mauerstücke, die zu Pfuschertaschen en Masse führen werden. 209.5, 212.5, 213.5, 214.5, für jeden Geschmack ein Maß dabei. Die Küche nominell fast fünfzehn Quadratmeter, aber möblierbar für einen maximal Einkindhaushalt. Ein Unterzug wird mitten in den Sturz der Haustür stoßen, ein anderer in den der Terrassentür. Ob die elektrischen Doppelflügelfenster-Jalousien wirklich darüber trösten werden, daß die Fenster im OG bis auf die Giebel sämtlich zweiteilig sind ?
Ich will das wohl lieber nicht so genau wissen, was der Planer beruflich macht. Die Bemerkung über die Unschlüssigkeit bzgl. der Dimensionen kann ich vor dem Hintergrund 2013 gebaut zu haben nicht einordnen - das paßt eher zu jemandem, der noch null Einfamilienhauserfahrung hat.
https://www.instagram.com/11antgmxde/
https://www.linkedin.com/company/bauen-jetzt/
Ich will das wohl lieber nicht so genau wissen, was der Planer beruflich macht. Die Bemerkung über die Unschlüssigkeit bzgl. der Dimensionen kann ich vor dem Hintergrund 2013 gebaut zu haben nicht einordnen - das paßt eher zu jemandem, der noch null Einfamilienhauserfahrung hat.
https://www.instagram.com/11antgmxde/
https://www.linkedin.com/company/bauen-jetzt/
Ähnliche Themen